新丸の内ビル(千代田区、丸の内、東京、二重橋前) の賃貸オフィス情報

- 所在地
- 東京都千代田区丸の内1-5-1
- 最寄り駅
- 東京駅徒歩1分、二重橋前駅徒歩6分、大手町駅徒歩7分
- 竣工
- 2007年
- 規模
- 地上38階・地下4階
- 構造
- S造(鉄骨造)
- 耐震基準
- 新耐震基準適合
- セキュリティ
- 機械警備(24時間監視)
- エントランス
- 平日開放(6:00-24:30)
- エレベーター総数
- 34基(貨物用 2台)
- 駐車場設備
- 有(349台収容(高さ3,000mm対応)で24時間利用可能。)
- 設備
- セキュリティゲート(フラッパーゲート)、 貸会議室、 共用ラウンジ(テナント専用ラウンジ)、 リフレッシュコーナー、 再エネ導入
新丸の内ビルディングは、東京駅直結という利便性と制震構造による安全性を兼ね備えた大規模オフィスビルです。
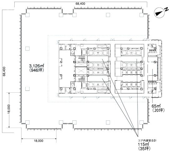
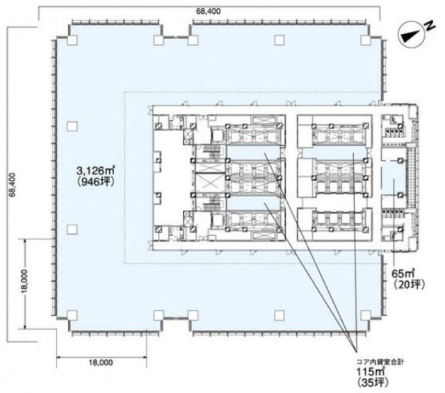
DBJ Green Building認証5つ星を取得し、環境配慮と快適性を両立。各階7分割ゾーニング+VAV空調方式により、執務エリアごとに最適な温度調整が可能です。天井高2,850mm、OAフロア150mm、床荷重500kg/㎡を確保し、重機設置にも対応。テナント専用ラウンジやフィットネスジム、貸会議室などの共用空間も充実しています。セキュリティゲートと24時間有人管理体制により、安心・快適なワークプレイスを提供します。
DBJ Green Building認証5つ星を取得し、環境配慮と快適性を両立。各階7分割ゾーニング+VAV空調方式により、執務エリアごとに最適な温度調整が可能です。天井高2,850mm、OAフロア150mm、床荷重500kg/㎡を確保し、重機設置にも対応。テナント専用ラウンジやフィットネスジム、貸会議室などの共用空間も充実しています。セキュリティゲートと24時間有人管理体制により、安心・快適なワークプレイスを提供します。
新丸の内ビル の募集区画 (総募集面積 37.66坪)
※月額費用、坪単価 ともに共益費込・税別の価格です
建物に関するよくある質問と回答
Q1:耐震性能は?
A1:制震構造を採用し、2007年竣工時の新耐震基準に適合した設計です。
Q2:空調仕様は?
A2:各階7分割ゾーニング+VAV方式により、柔軟な温度制御が可能。基準稼働時間は平日8:30〜19:00です。
Q3:通信環境は?
A3:光ファイバーを全館敷設し、高速通信に対応。電源容量は75VA/㎡で十分なIT環境を確保しています。
Q4:エレベーター構成は?
A4:乗用32基・貨物2基の計34基を設置。VIP対応の専用エレベーターも備えています。
Q5:セキュリティ体制は?
A5:セキュリティゲート+ICカード入退館システムを導入し、24時間有人管理を実施しています。
Q6:共用施設は?
A6:テナント専用ラウンジ、フィットネスジム、貸会議室、リラクゼーションルームを完備。
Q7:駐車場仕様は?
A7:349台収容(高さ3,000mm対応)で24時間利用可能。来客・定期双方に対応します。
Q8:BCP・環境対応は?
A8:DBJ Green Building認証5つ星取得。再生可能エネルギーの導入や24時間有人管理体制など、環境・防災両面に配慮した運用を行っています。
A1:制震構造を採用し、2007年竣工時の新耐震基準に適合した設計です。
Q2:空調仕様は?
A2:各階7分割ゾーニング+VAV方式により、柔軟な温度制御が可能。基準稼働時間は平日8:30〜19:00です。
Q3:通信環境は?
A3:光ファイバーを全館敷設し、高速通信に対応。電源容量は75VA/㎡で十分なIT環境を確保しています。
Q4:エレベーター構成は?
A4:乗用32基・貨物2基の計34基を設置。VIP対応の専用エレベーターも備えています。
Q5:セキュリティ体制は?
A5:セキュリティゲート+ICカード入退館システムを導入し、24時間有人管理を実施しています。
Q6:共用施設は?
A6:テナント専用ラウンジ、フィットネスジム、貸会議室、リラクゼーションルームを完備。
Q7:駐車場仕様は?
A7:349台収容(高さ3,000mm対応)で24時間利用可能。来客・定期双方に対応します。
Q8:BCP・環境対応は?
A8:DBJ Green Building認証5つ星取得。再生可能エネルギーの導入や24時間有人管理体制など、環境・防災両面に配慮した運用を行っています。
地図
東京都千代田区丸の内1-5-1 地図をクリックして拡大できます
新丸の内ビル の外観イメージ
最高部197.6mの地上38階建て。鉄骨造・一部鉄骨鉄筋コンクリート造による堅牢な構造で、制震機構を備えた高層ビルです。丸の内エリアのランドマークとして洗練されたファサードを持ち、車寄せ付きエントランスはVIP対応にも適しています。











新丸の内ビル の周辺イメージ
JR・東京メトロ丸ノ内線「東京」駅に直結し、雨に濡れずにアクセス可能。丸の内仲通りに面し、商業施設・飲食店・銀行・郵便局などが徒歩圏に集積。丸の内エリアの中心に位置するビジネスロケーションです。


新丸の内ビル の主な入居テナント
新丸の内ビル の募集終了区画
| 図面 | 階数 | 坪数 | 月額費用 | 坪単価 | 入居可能日 | |
|---|---|---|---|---|---|---|
![]() | 10階 | 12.63坪 | お問い合わせください | 募集終了 | 検討リスト | |
![]() | 10階 | 10.78坪 | お問い合わせください | 募集終了 | 検討リスト | |
![]() | 11階 | 34.68坪 | お問い合わせください | 募集終了 | 検討リスト | |
![]() | 11階 | 12.63坪 | お問い合わせください | 募集終了 | 検討リスト | |
![]() | 11階 | 9.70坪 | お問い合わせください | 募集終了 | 検討リスト | |
![]() | 11階 | 22.19坪 | お問い合わせください | 募集終了 | 検討リスト | |
![]() | 11階 | 89.12坪 | お問い合わせください | 募集終了 | 検討リスト | |
![]() | 11階 | 27.44坪 | お問い合わせください | 募集終了 | 検討リスト | |
![]() | 12階 | 236.15坪 | お問い合わせください | 募集終了 | 検討リスト | |
![]() | 12階 | 110.13坪 | お問い合わせください | 募集終了 | 検討リスト | |
![]() | 12階 | 37.62坪 | お問い合わせください | 募集終了 | 検討リスト | |
![]() | 12階 | 19.76坪 | お問い合わせください | 募集終了 | 検討リスト | |
![]() | 12階 | 41.16坪 | お問い合わせください | 募集終了 | 検討リスト | |
![]() | 12階 | 15.77坪 | お問い合わせください | 募集終了 | 検討リスト | |
![]() | 12階 | 12.75坪 | お問い合わせください | 募集終了 | 検討リスト | |
![]() | 12階 | 371.02坪 | お問い合わせください | 募集終了 | 検討リスト | |
![]() | 12階 | 12.63坪 | お問い合わせください | 募集終了 | 検討リスト | |
![]() | 13階 | 406.55坪 | お問い合わせください | 募集終了 | 検討リスト | |
![]() | 13階 | 371.02坪 | お問い合わせください | 募集終了 | 検討リスト | |
![]() | 13階 | 19.76坪 | お問い合わせください | 募集終了 | 検討リスト | |
![]() | 28階 | 409.68坪 | お問い合わせください | 募集終了 | 検討リスト | |
![]() | 28階 | 19.76坪 | お問い合わせください | 募集終了 | 検討リスト |
近くの物件紹介
千代田区のエリア
近くの駅
| 取扱態様 | 仲介 |
|---|---|
| 取扱会社 | 株式会社アドマイアー 東京都中央区日本橋3-2-3ユニバース第1ビル2F TEL. 03-5204-1031 宅地建物取引業免許 東京都知事(3)第94663号 マンション管理業免許 国土交通大臣(2)第034224号 賃貸住宅管理業免許 国土交通大臣(01)第005938号 |































