サンシャイン60(豊島区、東池袋、池袋、向原) の賃貸オフィス情報

- 所在地
- 東京都豊島区東池袋3-1-1
- 最寄り駅
- 東池袋駅徒歩4分、池袋駅徒歩8分、向原駅徒歩10分
- 竣工
- 1978年
- 規模
- 地上60階・地下4階
- 構造
- SRC造(鉄骨鉄筋コンクリート造)
- セキュリティ
- 機械警備・有人管理(24時間体制)
- エントランス
- 平日開放
- エレベーター総数
- 40基(人荷用エレベーター3台)
- 駐車場設備
- 要確認
東京・池袋のスカイラインを象徴する存在、それが「サンシャイン60」です。しかし、その価値は単なる超高層オフィスビルに留まりません。ここは、オフィス、商業施設、文化・エンターテイメント施設、ホテル、そして豊かなアメニティが融合した、日本を代表する大規模複合施設「サンシャインシティ」の中核なのです。
1978年、巣鴨プリズン跡地という歴史的な場所に誕生したサンシャインシティは、「都市の中の都市」という先進的なコンセプトのもと、常に時代の変化に対応し、進化を続けてきました。年間約3000万人が訪れるこの場所は、ビジネスの拠点としてだけでなく、ショッピング、グルメ、レジャー、文化体験の中心地としても、多くの人々を惹きつけてやみません。
サンシャイン60ビル自体も、竣工当時の記録的な高さを誇っただけでなく、東京都による耐震安全性評価で最高ランクを獲得し、長周期地震動対策も完了するなど、現代においても最高水準の安全性を確保しています。2023年には最上階の展望台が「てんぼうパーク」として魅力的にリニューアルオープン。サンシャインシティ全体としても、商業エリアの刷新や多彩なイベント開催を継続的に行い、常に新鮮な魅力と活気を提供し続けています。
池袋という交通至便な立地、約588坪の広大なオフィスフロア、そして施設内で全てが完結するほどの圧倒的な利便性。サンシャイン60とサンシャインシティが提供する、他に類を見ないビジネス環境と都市体験の全貌をご紹介します。
サンシャイン60ビルの特徴:池袋のランドマーク、安全性と機能性を両立
サンシャイン60ビルは、池袋を代表する超高層オフィスビルです。JR・私鉄・地下鉄が集まる池袋駅東口から徒歩約8分、東京メトロ有楽町線「東池袋」駅とは地下通路で直結し徒歩約4分という好立地。地上60階建て、1978年竣工ながら東京都の耐震評価で最高ランクを獲得し、長周期地震動対策も完了済みの高い安全性を誇ります。基準階約588坪のオフィスは、ビジネスに必要な基本設備を備えています。
サンシャイン60の外観と存在感
サンシャイン60は、高さ約240mを誇る、池袋エリアの紛れもないランドマークです。空に向かって伸びる直線的なフォルムと、ガラスカーテンウォールが織りなすシャープな外観は、竣工から年月を経てもなお、先進性と存在感を放ち続けています。周辺のビル群の中でも一際高くそびえ立ち、遠方からも容易に視認できるその姿は、入居企業にとって高いステータスと認知度をもたらします。足元には広大なサンシャインシティが広がり、都市の中核としての風格を感じさせます。
サンシャイン60のオフィス空間と充実設備
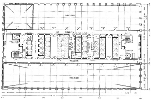
サンシャイン60のオフィスフロアは、企業の生産性を最大化するために設計されています。基準階面積は約588坪(約1,943㎡)と広大で、効率的なレイアウトを可能にする整形無柱空間が広がります。天井高は2,600mm(OAフロア設置部2,530mm)、床には高さ70mmのOAフロアが設置され、フレキシブルな配線に対応します。空調はセントラル方式で、快適な執務環境を提供。エレベーターは低層・中層・高層など5つのバンクに分かれており、スムーズな移動を実現します。セキュリティ面では、防災センターによる24時間監視体制と非接触型ICカードによる入退室管理システムを導入。各階には清潔な男女別トイレや給湯スペースも完備されています。さらに、テナント専用の食堂やラウンジ、ビル内の郵便局やクリニックなど、ビジネスサポート機能も充実しています。
サンシャインシティの周辺情報:全てが揃う「都市の中の都市」
サンシャイン60を取り囲む「サンシャインシティ」は、オフィスワーカーや来訪者のあらゆるニーズに応える施設で満ち溢れています。隣接するワールドインポートマートビル屋上には「天空のオアシス」をコンセプトにしたサンシャイン水族館や、リアルな星空体験を提供するコニカミノルタプラネタリウム満天があります。同ビル内には屋内型テーマパークNAMJATOWN(ナンジャタウン)や、古代オリエント博物館も。ショッピングには専門店街アルパやサンシャインシティアルタがあり、ファッションから雑貨、グルメまで多彩な店舗が軒を連ねます。文化会館ビルにはサンシャイン劇場や大規模な展示ホール・コンベンションセンターも併設。宿泊にはサンシャインシティプリンスホテルが利用できます。地下には1,800台収容のサンシャインパーキングがあり、首都高速道路「東池袋」出口直結と、車でのアクセスも非常に便利です。まさに、働く、買う、食べる、遊ぶ、学ぶ、泊まる、その全てがここで完結します。
サンシャインシティ全体の魅力:複合施設ならではの相乗効果と進化
サンシャインシティの真価は、これらの多様な施設が有機的に連携し、訪れる人々に常に新しい価値を提供し続けている点にあります。オフィスワーカーは、昼休みや仕事終わりにショッピングを楽しんだり、水族館やプラネタリウムでリフレッシュしたり、豊富なレストランで食事をしたりと、オンもオフも充実させることが可能です。テナント専用の食堂やラウンジに加え、これら施設内アメニティの充実は、従業員満足度(ES)の向上に大きく貢献します。
また、年間を通じて開催される多彩なイベント(アニメ・ゲームコラボ、季節催事、展示会、音楽ライブなど)は、施設全体に活気をもたらし、常に新鮮な魅力を発信し続けています。2023年の「サンシャイン60展望台 てんぼうパーク」へのリニューアルや、サンシャインシティアルタのリニューアルなど、時代のニーズに合わせて施設を進化させる投資を継続的に行っている点も、サンシャインシティが長年にわたり多くの人々を惹きつける理由です。
こんな企業におすすめ:サンシャイン60とサンシャインシティが最適な理由
サンシャイン60およびサンシャインシティは、その比類なきスケールと機能性により、特に以下のような企業にとって理想的なビジネス拠点となります。約588坪という広大な基準階面積を活かし、本社機能や大規模な開発拠点、コールセンターなどを集約したい企業。池袋駅・東池袋駅を中心とした優れた交通利便性を重視する企業。サンシャインシティ内の豊富なアメニティ(商業施設、飲食店、文化・エンタメ施設、ホテル、クリニック等)を従業員の福利厚生やビジネスサポートに活用したい企業。ランドマークとしての高い知名度とステータスを企業価値向上に繋げたい企業。そして、最高水準の耐震安全性と信頼性の高いビル管理体制を求める企業にとって、サンシャイン60は最適な選択肢の一つとなるでしょう。
1978年、巣鴨プリズン跡地という歴史的な場所に誕生したサンシャインシティは、「都市の中の都市」という先進的なコンセプトのもと、常に時代の変化に対応し、進化を続けてきました。年間約3000万人が訪れるこの場所は、ビジネスの拠点としてだけでなく、ショッピング、グルメ、レジャー、文化体験の中心地としても、多くの人々を惹きつけてやみません。
サンシャイン60ビル自体も、竣工当時の記録的な高さを誇っただけでなく、東京都による耐震安全性評価で最高ランクを獲得し、長周期地震動対策も完了するなど、現代においても最高水準の安全性を確保しています。2023年には最上階の展望台が「てんぼうパーク」として魅力的にリニューアルオープン。サンシャインシティ全体としても、商業エリアの刷新や多彩なイベント開催を継続的に行い、常に新鮮な魅力と活気を提供し続けています。
池袋という交通至便な立地、約588坪の広大なオフィスフロア、そして施設内で全てが完結するほどの圧倒的な利便性。サンシャイン60とサンシャインシティが提供する、他に類を見ないビジネス環境と都市体験の全貌をご紹介します。
サンシャイン60ビルの特徴:池袋のランドマーク、安全性と機能性を両立
サンシャイン60ビルは、池袋を代表する超高層オフィスビルです。JR・私鉄・地下鉄が集まる池袋駅東口から徒歩約8分、東京メトロ有楽町線「東池袋」駅とは地下通路で直結し徒歩約4分という好立地。地上60階建て、1978年竣工ながら東京都の耐震評価で最高ランクを獲得し、長周期地震動対策も完了済みの高い安全性を誇ります。基準階約588坪のオフィスは、ビジネスに必要な基本設備を備えています。
サンシャイン60の外観と存在感
サンシャイン60は、高さ約240mを誇る、池袋エリアの紛れもないランドマークです。空に向かって伸びる直線的なフォルムと、ガラスカーテンウォールが織りなすシャープな外観は、竣工から年月を経てもなお、先進性と存在感を放ち続けています。周辺のビル群の中でも一際高くそびえ立ち、遠方からも容易に視認できるその姿は、入居企業にとって高いステータスと認知度をもたらします。足元には広大なサンシャインシティが広がり、都市の中核としての風格を感じさせます。
サンシャイン60のオフィス空間と充実設備
サンシャイン60のオフィスフロアは、企業の生産性を最大化するために設計されています。基準階面積は約588坪(約1,943㎡)と広大で、効率的なレイアウトを可能にする整形無柱空間が広がります。天井高は2,600mm(OAフロア設置部2,530mm)、床には高さ70mmのOAフロアが設置され、フレキシブルな配線に対応します。空調はセントラル方式で、快適な執務環境を提供。エレベーターは低層・中層・高層など5つのバンクに分かれており、スムーズな移動を実現します。セキュリティ面では、防災センターによる24時間監視体制と非接触型ICカードによる入退室管理システムを導入。各階には清潔な男女別トイレや給湯スペースも完備されています。さらに、テナント専用の食堂やラウンジ、ビル内の郵便局やクリニックなど、ビジネスサポート機能も充実しています。
サンシャインシティの周辺情報:全てが揃う「都市の中の都市」
サンシャイン60を取り囲む「サンシャインシティ」は、オフィスワーカーや来訪者のあらゆるニーズに応える施設で満ち溢れています。隣接するワールドインポートマートビル屋上には「天空のオアシス」をコンセプトにしたサンシャイン水族館や、リアルな星空体験を提供するコニカミノルタプラネタリウム満天があります。同ビル内には屋内型テーマパークNAMJATOWN(ナンジャタウン)や、古代オリエント博物館も。ショッピングには専門店街アルパやサンシャインシティアルタがあり、ファッションから雑貨、グルメまで多彩な店舗が軒を連ねます。文化会館ビルにはサンシャイン劇場や大規模な展示ホール・コンベンションセンターも併設。宿泊にはサンシャインシティプリンスホテルが利用できます。地下には1,800台収容のサンシャインパーキングがあり、首都高速道路「東池袋」出口直結と、車でのアクセスも非常に便利です。まさに、働く、買う、食べる、遊ぶ、学ぶ、泊まる、その全てがここで完結します。
サンシャインシティ全体の魅力:複合施設ならではの相乗効果と進化
サンシャインシティの真価は、これらの多様な施設が有機的に連携し、訪れる人々に常に新しい価値を提供し続けている点にあります。オフィスワーカーは、昼休みや仕事終わりにショッピングを楽しんだり、水族館やプラネタリウムでリフレッシュしたり、豊富なレストランで食事をしたりと、オンもオフも充実させることが可能です。テナント専用の食堂やラウンジに加え、これら施設内アメニティの充実は、従業員満足度(ES)の向上に大きく貢献します。
また、年間を通じて開催される多彩なイベント(アニメ・ゲームコラボ、季節催事、展示会、音楽ライブなど)は、施設全体に活気をもたらし、常に新鮮な魅力を発信し続けています。2023年の「サンシャイン60展望台 てんぼうパーク」へのリニューアルや、サンシャインシティアルタのリニューアルなど、時代のニーズに合わせて施設を進化させる投資を継続的に行っている点も、サンシャインシティが長年にわたり多くの人々を惹きつける理由です。
こんな企業におすすめ:サンシャイン60とサンシャインシティが最適な理由
サンシャイン60およびサンシャインシティは、その比類なきスケールと機能性により、特に以下のような企業にとって理想的なビジネス拠点となります。約588坪という広大な基準階面積を活かし、本社機能や大規模な開発拠点、コールセンターなどを集約したい企業。池袋駅・東池袋駅を中心とした優れた交通利便性を重視する企業。サンシャインシティ内の豊富なアメニティ(商業施設、飲食店、文化・エンタメ施設、ホテル、クリニック等)を従業員の福利厚生やビジネスサポートに活用したい企業。ランドマークとしての高い知名度とステータスを企業価値向上に繋げたい企業。そして、最高水準の耐震安全性と信頼性の高いビル管理体制を求める企業にとって、サンシャイン60は最適な選択肢の一つとなるでしょう。
サンシャイン60 の募集区画 (総募集面積 2,136.44坪)
| 図面 | 階数 | 坪数 | 月額費用 | 坪単価 | 入居可能日 | |
|---|---|---|---|---|---|---|
![]() | 20階 | 293.97坪 | 非公開 | 非公開 | 即時 | 検討リスト お問い合わせ |
![]() | 22階 | 293.97坪 | 非公開 | 非公開 | 即時 | 検討リスト お問い合わせ |
![]() | 24階 | 78.65坪 | 非公開 | 非公開 | 即時 | 検討リスト お問い合わせ |
![]() | 32階 | 293.97坪 | 非公開 | 非公開 | 2026/1 | 検討リスト お問い合わせ |
![]() | 32階 | 293.97坪 | 非公開 | 非公開 | 2026/1 | 検討リスト お問い合わせ |
![]() | 34階 | 293.97坪 | 非公開 | 非公開 | 2026/4 | 検討リスト お問い合わせ |
![]() | 34階 | 293.97坪 | 非公開 | 非公開 | 2026/4 | 検討リスト お問い合わせ |
![]() | 38階 | 293.97坪 | 非公開 | 非公開 | 2026/4 | 検討リスト お問い合わせ |
※月額費用、坪単価 ともに共益費込・税別の価格です
地図
東京都豊島区東池袋3-1-1 地図をクリックして拡大できます
サンシャイン60 の外観イメージ
サンシャイン60(豊島区東池袋)の外観は、シルバーグレーを基調とした直線的なデザインで、239.7mの高さが池袋のシンボルとして親しまれています。ガラスカーテンウォールと幾何学的な窓配置がモダンな印象を与え、周囲の街並みから抜群の存在感を放っています。





















サンシャイン60 の周辺イメージ
サンシャイン60(豊島区東池袋)の周辺には、サンシャイン水族館やプラネタリウム、ナンジャタウンなどの商業施設が隣接しています。文化会館ビルやサンシャインシティプリンスホテルと一体となった複合施設群を形成し、商業・文化・宿泊機能が集積。首都高速道路の東池袋出口が至近距離に位置し、アクセス面でも優位性を発揮しています。



サンシャイン60 の主な入居テナント
株式会社クレディセゾンフィーチャ株式会社株式会社旅工房トランスコスモス株式会社株式会社オネスト株式会社日本システムコンサルタント株式会社アドバンスト・メディア株式会社Linksprout一般財団法人 日本気象協会
サンシャイン60 の募集終了区画
| 図面 | 階数 | 坪数 | 月額費用 | 坪単価 | 入居可能日 | |
|---|---|---|---|---|---|---|
![]() | 2階 | 226.62坪 | - | - | 募集終了 | 検討リスト |
![]() | 9階 | 101.10坪 | - | - | 募集終了 | 検討リスト |
![]() | 9階 | 293.97坪 | - | - | 募集終了 | 検討リスト |
![]() | 9階 | 140.43坪 | - | - | 募集終了 | 検討リスト |
![]() | 9階 | 65.55坪 | - | - | 募集終了 | 検討リスト |
![]() | 10階 | 114.21坪 | - | - | 募集終了 | 検討リスト |
![]() | 10階 | 52.44坪 | - | - | 募集終了 | 検討リスト |
![]() | 11階 | 39.33坪 | - | - | 募集終了 | 検討リスト |
![]() | 11階 | 114.21坪 | - | - | 募集終了 | 検討リスト |
![]() | 12階 | 293.97坪 | - | - | 募集終了 | 検討リスト |
![]() | 12階 | 166.65坪 | - | - | 募集終了 | 検討リスト |
![]() | 13階 | 293.97坪 | - | - | 募集終了 | 検討リスト |
![]() | 13階 | 293.97坪 | - | - | 募集終了 | 検討リスト |
![]() | 14階 | 293.97坪 | - | - | 募集終了 | 検討リスト |
![]() | 14階 | 293.97坪 | - | - | 募集終了 | 検討リスト |
![]() | 15階 | 74.88坪 | - | - | 募集終了 | 検討リスト |
![]() | 15階 | 293.97坪 | - | - | 募集終了 | 検討リスト |
![]() | 15階 | 153.54坪 | - | - | 募集終了 | 検討リスト |
![]() | 15階 | 74.88坪 | - | - | 募集終了 | 検討リスト |
![]() | 16階 | 198.56坪 | - | - | 募集終了 | 検討リスト |
![]() | 16階 | 219.08坪 | - | - | 募集終了 | 検討リスト |
![]() | 17階 | 293.97坪 | - | - | 募集終了 | 検討リスト |
![]() | 17階 | 293.97坪 | - | - | 募集終了 | 検討リスト |
![]() | 18階 | 293.97坪 | - | - | 募集終了 | 検討リスト |
![]() | 18階 | 293.97坪 | - | - | 募集終了 | 検討リスト |
![]() | 19階 | 205.98坪 | - | - | 募集終了 | 検討リスト |
![]() | 19階 | 39.00坪 | - | - | 募集終了 | 検討リスト |
![]() | 19階 | 114.21坪 | - | - | 募集終了 | 検討リスト |
![]() | 21階 | 293.97坪 | - | - | 募集終了 | 検討リスト |
![]() | 21階 | 293.97坪 | - | - | 募集終了 | 検討リスト |
![]() | 21階 | 13.80坪 | - | - | 募集終了 | 検討リスト |
![]() | 23階 | 294.00坪 | - | - | 募集終了 | 検討リスト |
![]() | 24階 | 166.65坪 | - | - | 募集終了 | 検討リスト |
![]() | 24階 | 293.97坪 | - | - | 募集終了 | 検討リスト |
![]() | 25階 | 192.87坪 | - | - | 募集終了 | 検討リスト |
![]() | 25階 | 101.10坪 | - | - | 募集終了 | 検討リスト |
![]() | 25階 | 13.80坪 | - | - | 募集終了 | 検討リスト |
![]() | 25階 | 91.76坪 | - | - | 募集終了 | 検討リスト |
![]() | 26階 | 293.97坪 | - | - | 募集終了 | 検討リスト |
![]() | 27階 | 293.97坪 | - | - | 募集終了 | 検討リスト |
![]() | 27階 | 293.97坪 | - | - | 募集終了 | 検討リスト |
![]() | 29階 | 13.80坪 | - | - | 募集終了 | 検討リスト |
![]() | 29階 | 293.97坪 | - | - | 募集終了 | 検討リスト |
![]() | 29階 | 13.80坪 | - | - | 募集終了 | 検討リスト |
![]() | 36階 | 140.43坪 | - | - | 募集終了 | 検討リスト |
![]() | 37階 | 52.44坪 | - | - | 募集終了 | 検討リスト |
![]() | 39階 | 101.10坪 | - | - | 募集終了 | 検討リスト |
![]() | 39階 | 20.83坪 | - | - | 募集終了 | 検討リスト |
![]() | 39階 | 13.80坪 | - | - | 募集終了 | 検討リスト |
![]() | 39階 | 293.97坪 | - | - | 募集終了 | 検討リスト |
![]() | 40階 | 293.97坪 | - | - | 募集終了 | 検討リスト |
![]() | 43階 | 78.65坪 | - | - | 募集終了 | 検討リスト |
![]() | 45階 | 179.76坪 | - | - | 募集終了 | 検討リスト |
![]() | 45階 | 293.97坪 | - | - | 募集終了 | 検討リスト |
![]() | 45階 | 114.21坪 | - | - | 募集終了 | 検討リスト |
![]() | 46階 | 293.97坪 | - | - | 募集終了 | 検討リスト |
![]() | 46階 | 293.97坪 | - | - | 募集終了 | 検討リスト |
![]() | 47階 | 293.97坪 | - | - | 募集終了 | 検討リスト |
![]() | 48階 | 30.22坪 | - | - | 募集終了 | 検討リスト |
![]() | 48階 | 166.65坪 | - | - | 募集終了 | 検討リスト |
![]() | 48階 | 87.99坪 | - | - | 募集終了 | 検討リスト |
![]() | 48階 | 30.25坪 | - | - | 募集終了 | 検討リスト |
![]() | 49階 | 140.43坪 | - | - | 募集終了 | 検討リスト |
![]() | 49階 | 153.54坪 | - | - | 募集終了 | 検討リスト |
![]() | 49階 | 293.97坪 | - | - | 募集終了 | 検討リスト |
![]() | 49階 | 13.80坪 | - | - | 募集終了 | 検討リスト |
![]() | 49階 | 30.25坪 | - | - | 募集終了 | 検討リスト |
![]() | 54階 | 61.78坪 | - | - | 募集終了 | 検討リスト |
![]() | 56階 | 91.76坪 | - | - | 募集終了 | 検討リスト |
![]() | 56階 | 293.97坪 | - | - | 募集終了 | 検討リスト |
![]() | 57階 | 293.97坪 | - | - | 募集終了 | 検討リスト |
![]() | 57階 | 153.54坪 | - | - | 募集終了 | 検討リスト |
近くの物件紹介
豊島区のエリア
近くの駅
| 取扱態様 | 仲介 |
|---|---|
| 取扱会社 | 株式会社アドマイアー 東京都中央区日本橋3-2-3ユニバース第1ビル2F TEL. 03-5204-1031 宅地建物取引業免許 東京都知事(3)第94663号 マンション管理業免許 国土交通大臣(2)第034224号 賃貸住宅管理業免許 国土交通大臣(01)第005938号 |




































