秋葉原駅の賃貸オフィス・貸事務所情報
検索結果 182 件
早川トナカイビル(千代田区、岩本町、秋葉原、神田)
- 所在地
- 東京都千代田区岩本町2-12-5
- 最寄り駅
- 岩本町駅徒歩2分、秋葉原駅徒歩6分、神田駅徒歩7分
- 竣工
- 1973年
- 規模
- 地上9階
- 耐震基準
- 耐震補強済み(新耐震相当)
- セキュリティ
- 機械警備(24時間監視)
- 駐車場設備
- 要確認
早川トナカイビル の募集区画 (総募集面積 162.53坪)
| 図面 | 階数 | 坪数 | 月額費用 | 坪単価 | 入居可能日 | |
|---|---|---|---|---|---|---|
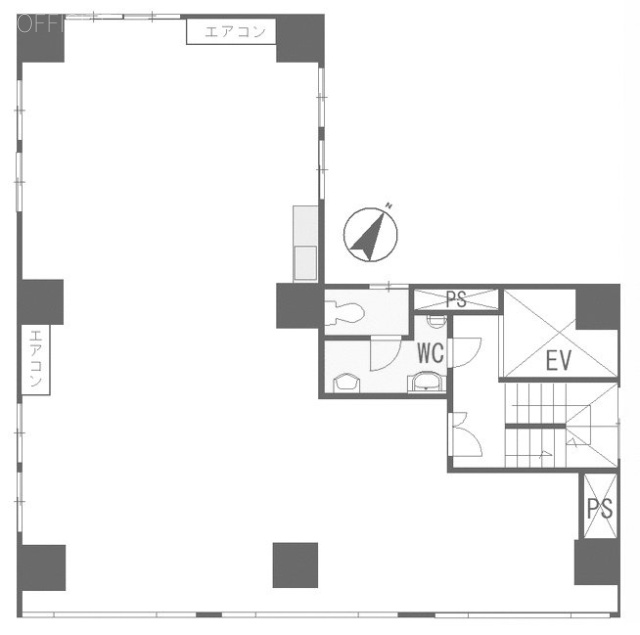
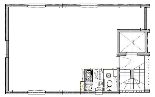
![]() | 2階 | 48.04坪 | 624,520円 | 13,000円 | 即時 | 検討リスト お問い合わせ |
![]() | 6階 | 114.49坪 | 1,831,800円 | 16,000円 | 2025/11/上 | 検討リスト お問い合わせ |
※月額費用、坪単価 ともに共益費込・税別の価格です
VORT岩本町Ⅰ(千代田区、岩本町、秋葉原、小伝馬町)
- 所在地
- 東京都千代田区岩本町3-4-6
- 最寄り駅
- 岩本町駅徒歩2分、秋葉原駅徒歩5分、小伝馬町駅徒歩6分
- 竣工
- 1989年
- 規模
- 地上9階
- 耐震基準
- 新耐震基準適合
- セキュリティ
- 機械警備(24時間監視)
- 駐車場設備
- 要確認
VORT岩本町Ⅰ の募集区画 (総募集面積 39.16坪)
※月額費用、坪単価 ともに共益費込・税別の価格です
トナカイタワーズ(千代田区、岩本町、秋葉原、神田)
- 所在地
- 東京都千代田区岩本町3-4-6
- 最寄り駅
- 岩本町駅徒歩1分、秋葉原駅徒歩6分、神田駅徒歩8分
- 竣工
- 1991年
- 規模
- 地上10階・地下1階
- 耐震基準
- 新耐震基準適合
- セキュリティ
- 機械警備(24時間監視)
- 駐車場設備
- 要確認
トナカイタワーズ の募集区画 (総募集面積 75.00坪)
※月額費用、坪単価 ともに共益費込・税別の価格です
千代田NSOビル(千代田区、岩本町、秋葉原、浅草橋)
- 所在地
- 東京都千代田区岩本町3-8-15
- 最寄り駅
- 岩本町駅徒歩2分、秋葉原駅徒歩5分、浅草橋駅徒歩10分
- 竣工
- 1991年
- 規模
- 地上10階
- 耐震基準
- 新耐震基準適合
- セキュリティ
- 共用部警備なし(簡易管理)
- 駐車場設備
- 要確認
千代田NSOビル の募集区画 (総募集面積 39.33坪)
※月額費用、坪単価 ともに共益費込・税別の価格です
岩本町寿共同ビル(千代田区、岩本町、秋葉原、神田)
- 所在地
- 東京都千代田区岩本町3-9-13
- 最寄り駅
- 岩本町駅徒歩1分、秋葉原駅徒歩5分、神田駅徒歩12分
- 竣工
- 1990年
- 規模
- 地上6階・地下1階
- 耐震基準
- 新耐震基準適合
- セキュリティ
- 機械警備(24時間監視)
- 駐車場設備
- 要確認
岩本町寿共同ビル の募集区画 (総募集面積 35.74坪)
| 図面 | 階数 | 坪数 | 月額費用 | 坪単価 | 入居可能日 | |
|---|---|---|---|---|---|---|
![]() | 1階 | 15.13坪 | 257,210円 | 17,000円 | 2026/2/中 | 検討リスト お問い合わせ |
![]() | 1階 | 20.61坪 | 350,370円 | 17,000円 | 2026/2/中 | 検討リスト お問い合わせ |
※月額費用、坪単価 ともに共益費込・税別の価格です
SHIMADA秋葉原ビル(千代田区、岩本町、秋葉原)
- 所在地
- 東京都千代田区岩本町3-9-4
- 最寄り駅
- 岩本町駅徒歩1分、秋葉原駅徒歩1分
- 竣工
- 1990年
- 規模
- 地上7階
- 耐震基準
- 新耐震基準適合
- セキュリティ
- 機械警備(24時間監視)
- 駐車場設備
- 要確認
SHIMADA秋葉原ビル の募集区画 (総募集面積 25.43坪)
※月額費用、坪単価 ともに共益費込・税別の価格です
第一瀬野ビル(千代田区、岩本町、秋葉原、馬喰町)
- 所在地
- 東京都千代田区岩本町3-9-9
- 最寄り駅
- 岩本町駅徒歩1分、秋葉原駅徒歩2分、馬喰町駅徒歩10分
- 竣工
- 1993年
- 規模
- 地上8階
- 耐震基準
- 新耐震基準適合
- セキュリティ
- 機械警備(24時間監視)
- 駐車場設備
- 要確認
第一瀬野ビル の募集区画 (総募集面積 20.55坪)
※月額費用、坪単価 ともに共益費込・税別の価格です
合人社東京秋葉原ビル(千代田区、岩本町、秋葉原、神田)
- 所在地
- 東京都千代田区岩本町3-5-2
- 最寄り駅
- 岩本町駅徒歩1分、秋葉原駅徒歩5分、神田駅徒歩5分
- 竣工
- 1985年
- 規模
- 地上9階
- 耐震基準
- 新耐震基準適合
- セキュリティ
- 機械警備(24時間監視)
- 駐車場設備
- 要確認
合人社東京秋葉原ビル の募集区画 (総募集面積 44.91坪)
※月額費用、坪単価 ともに共益費込・税別の価格です
第1東ビル(千代田区、岩本町、秋葉原、神田)
- 所在地
- 東京都千代田区岩本町3-4-5
- 最寄り駅
- 岩本町駅徒歩2分、秋葉原駅徒歩8分、神田駅徒歩10分
- 竣工
- 1972年
- 規模
- 地上10階
- セキュリティ
- 機械警備(24時間監視)
- 駐車場設備
- 要確認
第1東ビル の募集区画 (総募集面積 37.00坪)
| 図面 | 階数 | 坪数 | 月額費用 | 坪単価 | 入居可能日 | |
|---|---|---|---|---|---|---|
![]() | 8階 | 18.50坪 | 277,500円 | 15,000円 | 即時 | 検討リスト お問い合わせ |
![]() | 4階 | 18.50坪 | 277,500円 | 15,000円 | 2025/12 | 検討リスト お問い合わせ |
※月額費用、坪単価 ともに共益費込・税別の価格です
PMO岩本町(千代田区、岩本町、秋葉原、神田)
- 所在地
- 東京都千代田区岩本町3-9-2
- 最寄り駅
- 岩本町駅徒歩2分、秋葉原駅徒歩3分、神田駅徒歩8分
- 竣工
- 2009年
- 規模
- 地上8階
- 耐震基準
- 新耐震基準適合
- セキュリティ
- 機械警備(24時間監視)
- 駐車場設備
- 無
PMO岩本町 の募集区画 (総募集面積 90.00坪)
※月額費用、坪単価 ともに共益費込・税別の価格です
PMO秋葉原(千代田区、岩本町、秋葉原)
- 所在地
- 東京都千代田区岩本町3-11-6
- 最寄り駅
- 岩本町駅徒歩3分、秋葉原駅徒歩3分
- 竣工
- 2010年
- 規模
- 地上8階
- 耐震基準
- 新耐震基準適合
- セキュリティ
- 機械警備(24時間監視)
- 駐車場設備
- 有(機械式14台)
PMO秋葉原 の募集区画 (総募集面積 525.00坪)
| 図面 | 階数 | 坪数 | 月額費用 | 坪単価 | 入居可能日 | |
|---|---|---|---|---|---|---|
![]() | 2階 | 131.25坪 | 非公開 | 非公開 | 2026/1/1 | 検討リスト お問い合わせ |
![]() | 4階 | 131.25坪 | 非公開 | 非公開 | 2026/1/1 | 検討リスト お問い合わせ |
![]() | 5階 | 131.25坪 | 非公開 | 非公開 | 2026/1/1 | 検討リスト お問い合わせ |
![]() | 6階 | 131.25坪 | 非公開 | 非公開 | 2026/1/1 | 検討リスト お問い合わせ |
※月額費用、坪単価 ともに共益費込・税別の価格です
花岡ビル(千代田区、岩本町、秋葉原)
- 所在地
- 東京都千代田区岩本町3-9-1
- 最寄り駅
- 岩本町駅徒歩1分、秋葉原駅徒歩2分
- 竣工
- 1974年
- 規模
- 地上7階・地下1階
- セキュリティ
- 機械警備(24時間監視)
- 駐車場設備
- 要確認
花岡ビル の募集区画 (総募集面積 21.29坪)
※月額費用、坪単価 ともに共益費込・税別の価格です
フォロス岩本町ビル(千代田区、岩本町、秋葉原、神田)
- 所在地
- 東京都千代田区岩本町3-9-15
- 最寄り駅
- 岩本町駅徒歩4分、秋葉原駅徒歩8分、神田駅徒歩10分
- 竣工
- 2004年
- 規模
- 地上10階
- 耐震基準
- 新耐震基準適合
- セキュリティ
- 機械警備(24時間監視)
- 駐車場設備
- 要確認
フォロス岩本町ビル の募集区画 (総募集面積 19.13坪)
※月額費用、坪単価 ともに共益費込・税別の価格です
スヂノビル(千代田区、岩本町、秋葉原、神田)
- 所在地
- 東京都千代田区岩本町3-7-2
- 最寄り駅
- 岩本町駅徒歩2分、秋葉原駅徒歩5分、神田駅徒歩9分
- 竣工
- 1996年
- 規模
- 地上7階・地下1階
- 耐震基準
- 新耐震基準適合
- セキュリティ
- 機械警備(24時間監視)
- 駐車場設備
- 要確認
スヂノビル の募集区画 (総募集面積 51.34坪)
※月額費用、坪単価 ともに共益費込・税別の価格です
VORT秋葉原Ⅴ(千代田区、岩本町、秋葉原、小伝馬町)
- 所在地
- 東京都千代田区岩本町3-8-11
- 最寄り駅
- 岩本町駅徒歩4分、秋葉原駅徒歩9分、小伝馬町駅徒歩10分
- 竣工
- 2020年
- 規模
- 地上8階
- 耐震基準
- 新耐震基準適合
- セキュリティ
- 機械警備(24時間監視)
- 駐車場設備
- 要確認
VORT秋葉原Ⅴ の募集区画 (総募集面積 21.37坪)
※月額費用、坪単価 ともに共益費込・税別の価格です
岩本町ツインビル(千代田区、岩本町、秋葉原、小伝馬町)
- 所在地
- 東京都千代田区岩本町2-5-12
- 最寄り駅
- 岩本町駅徒歩2分、秋葉原駅徒歩5分、小伝馬町駅徒歩7分
- 竣工
- 1986年
- 規模
- 地上9階
- 耐震基準
- 新耐震基準適合
- セキュリティ
- 機械警備(24時間監視)
- 駐車場設備
- 要確認
岩本町ツインビル の募集区画 (総募集面積 50.03坪)
※月額費用、坪単価 ともに共益費込・税別の価格です
エスポアールビル(千代田区、岩本町、秋葉原)
- 所在地
- 東京都千代田区岩本町2-3-8
- 最寄り駅
- 岩本町駅徒歩4分、秋葉原駅徒歩6分
- 竣工
- 1985年
- 規模
- 地上6階
- 耐震基準
- 新耐震基準適合
- セキュリティ
- 共用部警備なし(簡易管理)
- 駐車場設備
- 要確認
エスポアールビル の募集区画 (総募集面積 31.18坪)
※月額費用、坪単価 ともに共益費込・税別の価格です
ステラ岩本町ビル(千代田区、岩本町、小伝馬町、秋葉原)
- 所在地
- 東京都千代田区岩本町3-3-14
- 最寄り駅
- 岩本町駅徒歩3分、小伝馬町駅徒歩5分、秋葉原駅徒歩10分
- 竣工
- 2021年
- 規模
- 地上5階
- 耐震基準
- 新耐震基準適合
- 駐車場設備
- 要確認
ステラ岩本町ビル の募集区画 (総募集面積 5.19坪)
※月額費用、坪単価 ともに共益費込・税別の価格です
IM内神田(千代田区、内神田、神田、新日本橋)
- 所在地
- 東京都千代田区内神田3-22-3
- 最寄り駅
- 神田駅徒歩2分、新日本橋駅徒歩7分、秋葉原駅徒歩10分
- 竣工
- 2020年
- 規模
- 地上12階
- 耐震基準
- 新耐震基準適合
- セキュリティ
- 機械警備(24時間監視)
- 駐車場設備
- 要確認
IM内神田 の募集区画 (総募集面積 48.12坪)
| 図面 | 階数 | 坪数 | 月額費用 | 坪単価 | 入居可能日 | |
|---|---|---|---|---|---|---|
![]() | 8階 | 24.06坪 | 553,380円 | 23,000円 | 2026/3/1 | 検討リスト お問い合わせ |
![]() | 9階 | 24.06坪 | 553,380円 | 23,000円 | 2026/1/1 | 検討リスト お問い合わせ |
※月額費用、坪単価 ともに共益費込・税別の価格です
秋山ビル(千代田区、鍛冶町、神田、岩本町)
- 所在地
- 東京都千代田区鍛冶町2-10-10
- 最寄り駅
- 神田駅徒歩3分、岩本町駅徒歩4分、秋葉原駅徒歩7分
- 竣工
- 1975年
- 規模
- 地上8階・地下1階
- セキュリティ
- 共用部警備なし(簡易管理)
- 駐車場設備
- 要確認
秋山ビル の募集区画 (総募集面積 72.00坪)
※月額費用、坪単価 ともに共益費込・税別の価格です
KA111(千代田区、神田淡路町、淡路町、小川町)
- 所在地
- 東京都千代田区神田淡路町1-1-1
- 最寄り駅
- 淡路町駅徒歩1分、小川町駅徒歩1分、新御茶ノ水駅徒歩3分
- 竣工
- 1989年
- 規模
- 地上11階・地下1階
- 耐震基準
- 新耐震基準適合
- 駐車場設備
- 要確認
KA111 の募集区画 (総募集面積 51.60坪)
※月額費用、坪単価 ともに共益費込・税別の価格です
昭和ビル(千代田区、神田和泉町、秋葉原、浅草橋)
- 所在地
- 東京都千代田区神田和泉町1-2-5
- 最寄り駅
- 秋葉原駅徒歩2分、浅草橋駅徒歩4分、岩本町駅徒歩4分
- 竣工
- 1963年
- 規模
- 地上5階
- セキュリティ
- 機械警備(24時間監視)
- 駐車場設備
- 要確認
昭和ビル の募集区画 (総募集面積 30.00坪)
※月額費用、坪単価 ともに共益費込・税別の価格です
鈴木ビル(千代田区、神田和泉町、秋葉原、浅草橋)
- 所在地
- 東京都千代田区神田和泉町1-13-13
- 最寄り駅
- 秋葉原駅徒歩5分、浅草橋駅徒歩8分、岩本町駅徒歩10分
- 竣工
- 1985年
- 規模
- 地上6階
- 耐震基準
- 新耐震基準適合
- 駐車場設備
- 要確認
鈴木ビル の募集区画 (総募集面積 19.66坪)
※月額費用、坪単価 ともに共益費込・税別の価格です
三恵ビル(千代田区、神田和泉町、秋葉原、浅草橋)
- 所在地
- 東京都千代田区神田和泉町1-3-1
- 最寄り駅
- 秋葉原駅徒歩4分、浅草橋駅徒歩5分、末広町駅徒歩7分
- 竣工
- 1988年
- 規模
- 地上10階
- 耐震基準
- 新耐震基準適合
- セキュリティ
- 機械警備(24時間監視)
- 駐車場設備
- 要確認
三恵ビル の募集区画 (総募集面積 39.47坪)
| 図面 | 階数 | 坪数 | 月額費用 | 坪単価 | 入居可能日 | |
|---|---|---|---|---|---|---|
![]() | 8階 | 26.31坪 | 447,270円 | 17,000円 | 即時 | 検討リスト お問い合わせ |
![]() | 9階 | 13.16坪 | 230,300円 | 17,500円 | 2025/11/上 | 検討リスト お問い合わせ |
※月額費用、坪単価 ともに共益費込・税別の価格です
久保田ビル(千代田区、神田和泉町、秋葉原、岩本町)
- 所在地
- 東京都千代田区神田和泉町1-12-17
- 最寄り駅
- 秋葉原駅徒歩4分、岩本町駅徒歩6分、浅草橋駅徒歩9分
- 竣工
- 1988年
- 規模
- 地上8階
- 耐震基準
- 新耐震基準適合
- セキュリティ
- 機械警備(24時間監視)
- 駐車場設備
- 要確認
久保田ビル の募集区画 (総募集面積 72.61坪)
※月額費用、坪単価 ともに共益費込・税別の価格です
I・T秋葉原ビル(千代田区、神田和泉町、秋葉原、岩本町)
- 所在地
- 東京都千代田区神田和泉町1-3-13
- 最寄り駅
- 秋葉原駅徒歩5分、岩本町駅徒歩8分、浅草橋駅徒歩11分
- 竣工
- 1991年
- 規模
- 地上6階
- 耐震基準
- 新耐震基準適合
- セキュリティ
- 機械警備(24時間監視)
- 駐車場設備
- 要確認
I・T秋葉原ビル の募集区画 (総募集面積 35.27坪)
※月額費用、坪単価 ともに共益費込・税別の価格です
秋葉原ビルヂング(千代田区、神田和泉町、秋葉原、浅草橋)
- 所在地
- 東京都千代田区神田和泉町1-11
- 最寄り駅
- 秋葉原駅徒歩4分、浅草橋駅徒歩10分、仲御徒町駅徒歩10分
- 竣工
- 2023年
- 規模
- 地上4階
- 耐震基準
- 新耐震基準適合
- セキュリティ
- 機械警備(24時間監視)
- 駐車場設備
- 要確認
秋葉原ビルヂング の募集区画 (総募集面積 16.78坪)
※月額費用、坪単価 ともに共益費込・税別の価格です
ワイズクレストビル(千代田区、神田和泉町、秋葉原、浅草橋)
- 所在地
- 東京都千代田区神田和泉町1-1-11
- 最寄り駅
- 秋葉原駅徒歩4分、浅草橋駅徒歩10分、馬喰町駅徒歩15分
- 竣工
- 1998年
- 規模
- 地上9階・地下1階
- 耐震基準
- 新耐震基準適合
- 駐車場設備
- 要確認
ワイズクレストビル の募集区画 (総募集面積 11.00坪)
※月額費用、坪単価 ともに共益費込・税別の価格です
森光ビル(千代田区、神田和泉町、秋葉原、仲御徒町)
- 所在地
- 東京都千代田区神田和泉町1-10-4
- 最寄り駅
- 秋葉原駅徒歩5分、仲御徒町駅徒歩10分、浅草橋駅徒歩11分
- 竣工
- 1983年
- 規模
- 地上5階・地下1階
- 耐震基準
- 新耐震基準適合
- 駐車場設備
- 要確認
森光ビル の募集区画 (総募集面積 10.00坪)
※月額費用、坪単価 ともに共益費込・税別の価格です
Biz Feel AKIHABARA(千代田区、神田岩本町、岩本町、秋葉原)
- 所在地
- 東京都千代田区神田岩本町1
- 最寄り駅
- 岩本町駅徒歩1分、秋葉原駅徒歩2分、神田駅徒歩6分
- 竣工
- 1989年
- 規模
- 地上9階
- 耐震基準
- 新耐震基準適合
- セキュリティ
- 機械警備(24時間監視)
- 駐車場設備
- 要確認
Biz Feel AKIHABARA の募集区画 (総募集面積 143.05坪)
| 図面 | 階数 | 坪数 | 月額費用 | 坪単価 | 入居可能日 | |
|---|---|---|---|---|---|---|
![]() | 2階 | 28.61坪 | 1,000,000円 | 34,953円 | 2026/1 | 検討リスト お問い合わせ |
![]() | 3階 | 28.61坪 | 1,000,000円 | 34,953円 | 2026/1 | 検討リスト お問い合わせ |
![]() | 4階 | 28.61坪 | 1,000,000円 | 34,953円 | 2026/2 | 検討リスト お問い合わせ |
![]() | 5階 | 28.61坪 | 1,000,000円 | 34,953円 | 2026/2 | 検討リスト お問い合わせ |
![]() | 6階 | 28.61坪 | 1,000,000円 | 34,953円 | 2025/12 | 検討リスト お問い合わせ |
※月額費用、坪単価 ともに共益費込・税別の価格です
VORT秋葉原Ⅶビル(千代田区、神田岩本町、岩本町、秋葉原)
- 所在地
- 東京都千代田区神田岩本町3-7-15
- 最寄り駅
- 岩本町駅徒歩3分、秋葉原駅徒歩5分、馬喰町駅徒歩8分
- 竣工
- 2024年
- 規模
- 地上11階
- 耐震基準
- 新耐震基準適合
- セキュリティ
- 機械警備(24時間監視)
- 駐車場設備
- 無
VORT秋葉原Ⅶビル の募集区画 (総募集面積 32.04坪)
※月額費用、坪単価 ともに共益費込・税別の価格です
岩本町ビル(千代田区、神田岩本町、岩本町、秋葉原)
- 所在地
- 東京都千代田区神田岩本町1-1
- 最寄り駅
- 岩本町駅徒歩1分、秋葉原駅徒歩3分、神田駅徒歩6分
- 竣工
- 1963年
- 規模
- 地上10階・地下1階
- セキュリティ
- 共用部警備なし(簡易管理)
- 駐車場設備
- 要確認
岩本町ビル の募集区画 (総募集面積 40.00坪)
※月額費用、坪単価 ともに共益費込・税別の価格です
東邦沢口ビル(千代田区、神田佐久間河岸、秋葉原、岩本町)
- 所在地
- 東京都千代田区神田佐久間河岸19
- 最寄り駅
- 秋葉原駅徒歩4分、岩本町駅徒歩7分、浅草橋駅徒歩7分
- 竣工
- 1992年
- 規模
- 地上8階
- 耐震基準
- 新耐震基準適合
- セキュリティ
- 共用部警備なし(簡易管理)
- 駐車場設備
- 要確認
東邦沢口ビル の募集区画 (総募集面積 67.91坪)
※月額費用、坪単価 ともに共益費込・税別の価格です
第一スレートビル(千代田区、神田佐久間河岸、秋葉原、岩本町)
- 所在地
- 東京都千代田区神田佐久間河岸51
- 最寄り駅
- 秋葉原駅徒歩3分、岩本町駅徒歩3分、馬喰町駅徒歩14分
- 竣工
- 1990年
- 規模
- 地上8階
- 耐震基準
- 新耐震基準適合
- セキュリティ
- 機械警備(24時間監視)
- 駐車場設備
- 無
第一スレートビル の募集区画 (総募集面積 27.88坪)
※月額費用、坪単価 ともに共益費込・税別の価格です































































































































































































































































































































































































































































































































































































































