西五反田の賃貸オフィス・貸事務所情報
品川区西五反田エリアは、品川区北部に位置し、東急目黒線の「不動前駅」が最寄りです。エリア内には「五反田TOCビル」や「五反田文化センター」があり、商業施設が充実しています。また、目黒川沿いには桜並木があり、春には美しい景色が楽しめます。交通アクセスも良好で、五反田駅や大崎広小路駅も近く、都心への移動が便利です。落ち着いた住宅街と商業施設が調和した環境が特徴で、賃貸オフィスを探す方にも魅力的な地域です。
検索結果 107 件
ジニアスビル(品川区、西五反田、五反田、大崎広小路)
- 所在地
- 東京都品川区西五反田2-23-5
- 最寄り駅
- 五反田駅徒歩4分、大崎広小路駅徒歩6分、不動前駅徒歩10分
- 竣工
- 1989年
- 規模
- 地上8階・地下1階
- 耐震基準
- 新耐震基準適合
- セキュリティ
- 機械警備(24時間監視)
- 駐車場設備
- 要確認
ジニアスビル の募集区画 (総募集面積 66.10坪)
※月額費用、坪単価 ともに共益費込・税別の価格です
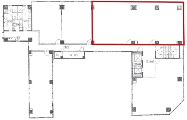
TOCビル(品川区、西五反田、大崎広小路、不動前)
- 所在地
- 東京都品川区西五反田7-22-17
- 最寄り駅
- 大崎広小路駅徒歩5分、不動前駅徒歩6分、五反田駅徒歩8分
- 竣工
- 1970年
- 規模
- 地上13階・地下3階
- 駐車場設備
- 要確認
TOCビル の募集区画 (総募集面積 3,211.37坪)
| 図面 | 階数 | 坪数 | 月額費用 | 坪単価 | 入居可能日 | |
|---|---|---|---|---|---|---|
![]() | 6階 | 50.67坪 | 非公開 | 非公開 | 即時 | 検討リスト お問い合わせ |
![]() | 10階 | 82.64坪 | 非公開 | 非公開 | 即時 | 検討リスト お問い合わせ |
![]() | 6階 | 27.23坪 | 非公開 | 非公開 | 即時 | 検討リスト お問い合わせ |
![]() | 6階 | 127.18坪 | 非公開 | 非公開 | 即時 | 検討リスト お問い合わせ |
![]() | 8階 | 30.85坪 | 非公開 | 非公開 | 即時 | 検討リスト お問い合わせ |
![]() | 10階 | 85.86坪 | 非公開 | 非公開 | 即時 | 検討リスト お問い合わせ |
![]() | 9階 | 2,181.11坪 | 非公開 | 非公開 | 即時 | 検討リスト お問い合わせ |
![]() | 10階 | 27.23坪 | 非公開 | 非公開 | 即時 | 検討リスト お問い合わせ |
![]() | 6階 | 325.46坪 | 非公開 | 非公開 | 即時 | 検討リスト お問い合わせ |
![]() | 6階 | 127.18坪 | 非公開 | 非公開 | 即時 | 検討リスト お問い合わせ |
![]() | 6階 | 25.10坪 | 非公開 | 非公開 | 即時 | 検討リスト お問い合わせ |
![]() | 8階 | 120.86坪 | 非公開 | 非公開 | 即時 | 検討リスト お問い合わせ |
※月額費用、坪単価 ともに共益費込・税別の価格です
五反田シティトラストビル(品川区、西五反田、大崎広小路、五反田)
- 所在地
- 東京都品川区西五反田1-23-7
- 最寄り駅
- 大崎広小路駅徒歩1分、五反田駅徒歩4分、大崎駅徒歩7分
- 竣工
- 1986年
- 規模
- 地上9階
- 耐震基準
- 新耐震基準適合
- セキュリティ
- 機械警備(24時間監視)
- 駐車場設備
- 要確認
五反田シティトラストビル の募集区画 (総募集面積 76.36坪)
| 図面 | 階数 | 坪数 | 月額費用 | 坪単価 | 入居可能日 | |
|---|---|---|---|---|---|---|
![]() | 3階 | 38.18坪 | 572,700円 | 15,000円 | 2025/12/上 | 検討リスト お問い合わせ |
![]() | 4階 | 38.18坪 | 572,700円 | 15,000円 | 2025/12/上 | 検討リスト お問い合わせ |
※月額費用、坪単価 ともに共益費込・税別の価格です
りそな五反田ビル(品川区、西五反田、五反田、大崎広小路)
- 所在地
- 東京都品川区西五反田1-23-9
- 最寄り駅
- 五反田駅徒歩5分、大崎広小路駅徒歩1分
- 竣工
- 1991年
- 規模
- 地上9階・地下1階
- 耐震基準
- 新耐震基準適合
- セキュリティ
- 機械警備(24時間監視)
- 駐車場設備
- 要確認
りそな五反田ビル の募集区画 (総募集面積 58.04坪)
※月額費用、坪単価 ともに共益費込・税別の価格です
今田ビル(品川区、西五反田、五反田)
- 所在地
- 東京都品川区西五反田1-25-9
- 最寄り駅
- 五反田駅徒歩4分
- 竣工
- 1980年
- 規模
- 地上5階・地下1階
- 駐車場設備
- 要確認
今田ビル の募集区画 (総募集面積 23.00坪)
※月額費用、坪単価 ともに共益費込・税別の価格です
東京モリスビルANNEX(品川区、西五反田、五反田、大崎広小路)
- 所在地
- 東京都品川区西五反田1-32-4
- 最寄り駅
- 五反田駅徒歩5分、大崎広小路駅徒歩5分、不動前駅徒歩6分
- 竣工
- 1974年
- 規模
- 地上4階
- 駐車場設備
- 要確認
東京モリスビルANNEX の募集区画 (総募集面積 8.72坪)
※月額費用、坪単価 ともに共益費込・税別の価格です
西五反田サインタワー(品川区、西五反田、五反田、大崎広小路)
- 所在地
- 東京都品川区西五反田1-33-10
- 最寄り駅
- 五反田駅徒歩3分、大崎広小路駅徒歩3分
- 竣工
- 1993年
- 規模
- 地上10階・地下1階
- 耐震基準
- 新耐震基準適合
- セキュリティ
- 機械警備(24時間監視)
- 駐車場設備
- 要確認
西五反田サインタワー の募集区画 (総募集面積 15.10坪)
※月額費用、坪単価 ともに共益費込・税別の価格です
プラネットビル(品川区、西五反田、五反田、目黒)
- 所在地
- 東京都品川区西五反田2-1-22
- 最寄り駅
- 五反田駅徒歩6分、目黒駅徒歩9分、不動前駅徒歩12分
- 竣工
- 1989年
- 規模
- 地上10階
- 耐震基準
- 新耐震基準適合
- セキュリティ
- 機械警備(24時間監視)
- 駐車場設備
- 要確認
プラネットビル の募集区画 (総募集面積 33.96坪)
※月額費用、坪単価 ともに共益費込・税別の価格です
五反田ブリックビル(品川区、西五反田、五反田、不動前)
- 所在地
- 東京都品川区西五反田2-11-20
- 最寄り駅
- 五反田駅徒歩5分、不動前駅徒歩9分、大崎広小路駅徒歩15分
- 竣工
- 1977年
- 規模
- 地上9階・地下1階
- 駐車場設備
- 要確認
五反田ブリックビル の募集区画 (総募集面積 63.37坪)
※月額費用、坪単価 ともに共益費込・税別の価格です
ブルーベルビル(品川区、西五反田、五反田、大崎広小路)
- 所在地
- 東京都品川区西五反田2-15-9
- 最寄り駅
- 五反田駅徒歩3分、大崎広小路駅徒歩6分、不動前駅徒歩10分
- 竣工
- 1989年
- 規模
- 地上10階
- 耐震基準
- 新耐震基準適合
- セキュリティ
- 機械警備(24時間監視)
- 駐車場設備
- 要確認
ブルーベルビル の募集区画 (総募集面積 36.09坪)
※月額費用、坪単価 ともに共益費込・税別の価格です
THE CROSS GOTANDA(品川区、西五反田、五反田、大崎広小路)
- 所在地
- 東京都品川区西五反田2-24-4
- 最寄り駅
- 五反田駅徒歩5分、大崎広小路駅徒歩7分
- 竣工
- 1993年
- 規模
- 地上10階・地下1階
- 耐震基準
- 新耐震基準適合
- セキュリティ
- 機械警備(24時間監視)
- 駐車場設備
- 要確認
THE CROSS GOTANDA の募集区画 (総募集面積 56.73坪)
※月額費用、坪単価 ともに共益費込・税別の価格です
日幸五反田ビル別館(品川区、西五反田、五反田、目黒)
- 所在地
- 東京都品川区西五反田2-29-11
- 最寄り駅
- 五反田駅徒歩5分、目黒駅徒歩17分
- 竣工
- 1978年
- 規模
- 地上5階
- セキュリティ
- 機械警備(24時間監視)
- 駐車場設備
- 要確認
日幸五反田ビル別館 の募集区画 (総募集面積 25.25坪)
※月額費用、坪単価 ともに共益費込・税別の価格です
いちご西五反田ビル(品川区、西五反田、五反田、不動前)
- 所在地
- 東京都品川区西五反田3-6-20
- 最寄り駅
- 五反田駅徒歩6分、不動前駅徒歩8分
- 竣工
- 1990年
- 規模
- 地上9階
- 耐震基準
- 新耐震基準適合
- セキュリティ
- 機械警備(24時間監視)
- 駐車場設備
- 要確認
いちご西五反田ビル の募集区画 (総募集面積 44.70坪)
※月額費用、坪単価 ともに共益費込・税別の価格です
五反田テックワンビル(品川区、西五反田、大崎広小路、不動前)
- 所在地
- 東京都品川区西五反田7-1-10
- 最寄り駅
- 大崎広小路駅徒歩7分、不動前駅徒歩7分、五反田駅徒歩8分
- 竣工
- 1988年
- 規模
- 地上9階
- 耐震基準
- 新耐震基準適合
- セキュリティ
- 機械警備(24時間監視)
- 駐車場設備
- 要確認
五反田テックワンビル の募集区画 (総募集面積 195.69坪)
| 図面 | 階数 | 坪数 | 月額費用 | 坪単価 | 入居可能日 | |
|---|---|---|---|---|---|---|
![]() | 2階 | 65.23坪 | 1,500,290円 | 23,000円 | 即時 | 検討リスト お問い合わせ |
![]() | 3階 | 65.23坪 | 1,500,290円 | 23,000円 | 即時 | 検討リスト お問い合わせ |
![]() | 8階 | 65.23坪 | 1,565,520円 | 24,000円 | 即時 | 検討リスト お問い合わせ |
※月額費用、坪単価 ともに共益費込・税別の価格です
第五花田ビル(品川区、西五反田、大崎広小路、五反田)
- 所在地
- 東京都品川区西五反田7-11-1
- 最寄り駅
- 大崎広小路駅徒歩4分、五反田駅徒歩5分、大崎駅徒歩13分
- 竣工
- 1988年
- 規模
- 地上5階
- 耐震基準
- 新耐震基準適合
- 駐車場設備
- 要確認
第五花田ビル の募集区画 (総募集面積 40.90坪)
※月額費用、坪単価 ともに共益費込・税別の価格です
東京モリスビル第10(品川区、西五反田、大崎広小路、五反田)
- 所在地
- 東京都品川区西五反田7-16-3
- 最寄り駅
- 大崎広小路駅徒歩5分、五反田駅徒歩7分
- 竣工
- 1989年
- 規模
- 地上5階
- 耐震基準
- 新耐震基準適合
- 駐車場設備
- 要確認
東京モリスビル第10 の募集区画 (総募集面積 52.37坪)
| 図面 | 階数 | 坪数 | 月額費用 | 坪単価 | 入居可能日 | |
|---|---|---|---|---|---|---|
![]() | 2階 | 26.33坪 | 381,785円 | 14,500円 | 即時 | 検討リスト お問い合わせ |
![]() | 3階 | 26.04坪 | 377,580円 | 14,500円 | 2026/2/6 | 検討リスト お問い合わせ |
※月額費用、坪単価 ともに共益費込・税別の価格です
五反田フラットアイアンビル(品川区、西五反田、戸越、大崎広小路)
- 所在地
- 東京都品川区西五反田7-25-9
- 最寄り駅
- 戸越駅徒歩7分、大崎広小路駅徒歩9分、五反田駅徒歩11分
- 竣工
- 1991年
- 規模
- 地上8階・地下1階
- 耐震基準
- 新耐震基準適合
- セキュリティ
- 機械警備(24時間監視)
- 駐車場設備
- 要確認
五反田フラットアイアンビル の募集区画 (総募集面積 518.43坪)
| 図面 | 階数 | 坪数 | 月額費用 | 坪単価 | 入居可能日 | |
|---|---|---|---|---|---|---|
![]() | 3階 | 171.76坪 | 非公開 | 非公開 | 即時 | 検討リスト お問い合わせ |
![]() | 4階 | 171.76坪 | 非公開 | 非公開 | 即時 | 検討リスト お問い合わせ |
![]() | 2階 | 174.91坪 | 非公開 | 非公開 | 即時 | 検討リスト お問い合わせ |
※月額費用、坪単価 ともに共益費込・税別の価格です
中村屋ビル(品川区、西五反田、大崎広小路、五反田)
- 所在地
- 東京都品川区西五反田8-1-8
- 最寄り駅
- 大崎広小路駅徒歩1分、五反田駅徒歩5分、大崎駅徒歩8分
- 竣工
- 1981年
- 規模
- 地上11階
- セキュリティ
- 機械警備(24時間監視)
- 駐車場設備
- 要確認
中村屋ビル の募集区画 (総募集面積 26.60坪)
※月額費用、坪単価 ともに共益費込・税別の価格です
日幸五反田ビル(品川区、西五反田、大崎広小路、五反田)
- 所在地
- 東京都品川区西五反田2-29-5
- 最寄り駅
- 大崎広小路駅徒歩3分、五反田駅徒歩5分
- 竣工
- 1982年
- 規模
- 地上8階・地下1階
- セキュリティ
- 機械警備・有人管理(24時間体制)
- 駐車場設備
- 要確認
日幸五反田ビル の募集区画 (総募集面積 61.27坪)
※月額費用、坪単価 ともに共益費込・税別の価格です
ヒキタカ五反田ビル(品川区、西五反田、大崎広小路、五反田)
- 所在地
- 東京都品川区西五反田8-1-10
- 最寄り駅
- 大崎広小路駅徒歩3分、五反田駅徒歩7分、大崎駅徒歩11分
- 竣工
- 1990年
- 規模
- 地上10階
- 耐震基準
- 新耐震基準適合
- 駐車場設備
- 要確認
ヒキタカ五反田ビル の募集区画 (総募集面積 31.18坪)
※月額費用、坪単価 ともに共益費込・税別の価格です
誠実ビル(品川区、西五反田、五反田、大崎広小路)
- 所在地
- 東京都品川区西五反田2-7-8
- 最寄り駅
- 五反田駅徒歩1分、大崎広小路駅徒歩7分
- 竣工
- 1996年
- 規模
- 地上9階・地下1階
- 耐震基準
- 新耐震基準適合
- セキュリティ
- 共用部警備なし(簡易管理)
- 駐車場設備
- 要確認
誠実ビル の募集区画 (総募集面積 24.95坪)
※月額費用、坪単価 ともに共益費込・税別の価格です
TK五反田ビル(品川区、西五反田、大崎広小路、五反田)
- 所在地
- 東京都品川区西五反田8-3-6
- 最寄り駅
- 大崎広小路駅徒歩3分、五反田駅徒歩6分、大崎駅徒歩11分
- 竣工
- 1989年
- 規模
- 地上9階・地下1階
- 耐震基準
- 新耐震基準適合
- セキュリティ
- 機械警備・有人管理(24時間体制)
- 駐車場設備
- 要確認
TK五反田ビル の募集区画 (総募集面積 139.54坪)
※月額費用、坪単価 ともに共益費込・税別の価格です
安藤ビル(品川区、西五反田、大崎広小路、五反田)
- 所在地
- 東京都品川区西五反田1-11-6
- 最寄り駅
- 大崎広小路駅徒歩4分、五反田駅徒歩5分
- 竣工
- 1994年
- 規模
- 地上8階
- 耐震基準
- 新耐震基準適合
- セキュリティ
- 機械警備(24時間監視)
- 駐車場設備
- 要確認
安藤ビル の募集区画 (総募集面積 34.08坪)
※月額費用、坪単価 ともに共益費込・税別の価格です
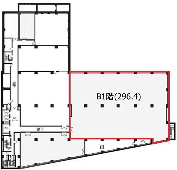
目黒テクノビル(品川区、西五反田、不動前、五反田)
- 所在地
- 東京都品川区西五反田4-31-18
- 最寄り駅
- 不動前駅徒歩3分、五反田駅徒歩14分、目黒駅徒歩15分
- 竣工
- 1993年
- 規模
- 地上5階・地下1階
- 耐震基準
- 新耐震基準適合
- セキュリティ
- 機械警備(24時間監視)
- 駐車場設備
- 要確認
目黒テクノビル の募集区画 (総募集面積 296.44坪)
※月額費用、坪単価 ともに共益費込・税別の価格です
五反田第2noteビル(品川区、西五反田、大崎広小路、五反田)
- 所在地
- 東京都品川区西五反田7-17-3
- 最寄り駅
- 大崎広小路駅徒歩4分、五反田駅徒歩6分、不動前駅徒歩11分
- 竣工
- 1986年
- 規模
- 地上5階
- 耐震基準
- 新耐震基準適合
- セキュリティ
- 機械警備(24時間監視)
- 駐車場設備
- 要確認
五反田第2noteビル の募集区画 (総募集面積 110.38坪)
※月額費用、坪単価 ともに共益費込・税別の価格です
たつみビル(品川区、西五反田、五反田)
- 所在地
- 東京都品川区西五反田7-3-1
- 最寄り駅
- 五反田駅徒歩7分
- 竣工
- 1988年
- 規模
- 地上5階
- 耐震基準
- 新耐震基準適合
- セキュリティ
- 機械警備(24時間監視)
- 駐車場設備
- 要確認
たつみビル の募集区画 (総募集面積 31.87坪)
※月額費用、坪単価 ともに共益費込・税別の価格です
KDX西五反田ビル(品川区、西五反田、大崎広小路、不動前)
- 所在地
- 東京都品川区西五反田7-20-9
- 最寄り駅
- 大崎広小路駅徒歩9分、不動前駅徒歩9分、五反田駅徒歩9分
- 竣工
- 1992年
- 規模
- 地上8階・地下1階
- 耐震基準
- 新耐震基準適合
- セキュリティ
- 機械警備(24時間監視)
- 駐車場設備
- 要確認
KDX西五反田ビル の募集区画 (総募集面積 53.50坪)
※月額費用、坪単価 ともに共益費込・税別の価格です
SGスクエア(品川区、西五反田、大崎広小路、五反田)
- 所在地
- 東京都品川区西五反田7-7-7
- 最寄り駅
- 大崎広小路駅徒歩3分、五反田駅徒歩6分、不動前駅徒歩10分
- 竣工
- 2011年
- 規模
- 地上8階
- 耐震基準
- 新耐震基準適合
- セキュリティ
- 機械警備(24時間監視)
- 駐車場設備
- 要確認
SGスクエア の募集区画 (総募集面積 303.68坪)
※月額費用、坪単価 ともに共益費込・税別の価格です
第2平森ビル(品川区、西五反田、大崎広小路、五反田)
- 所在地
- 東京都品川区西五反田8-1-2
- 最寄り駅
- 大崎広小路駅徒歩1分、五反田駅徒歩5分、不動前駅徒歩15分
- 竣工
- 2002年
- 規模
- 地上9階
- 耐震基準
- 新耐震基準適合
- セキュリティ
- 機械警備(24時間監視)
- 駐車場設備
- 要確認
第2平森ビル の募集区画 (総募集面積 20.12坪)
※月額費用、坪単価 ともに共益費込・税別の価格です
五反田佑気ビル(品川区、西五反田、大崎広小路、五反田)
- 所在地
- 東京都品川区西五反田8-2-8
- 最寄り駅
- 大崎広小路駅徒歩3分、五反田駅徒歩6分
- 竣工
- 1991年
- 規模
- 地上10階・地下1階
- 耐震基準
- 新耐震基準適合
- セキュリティ
- 機械警備(24時間監視)
- 駐車場設備
- 要確認
五反田佑気ビル の募集区画 (総募集面積 89.16坪)
※月額費用、坪単価 ともに共益費込・税別の価格です
Y.BLDG(品川区、西五反田、戸越銀座、戸越)
- 所在地
- 東京都品川区西五反田6-24-15
- 最寄り駅
- 戸越銀座駅徒歩6分、戸越駅徒歩7分、五反田駅徒歩12分
- 竣工
- 1988年
- 規模
- 地上9階
- 耐震基準
- 新耐震基準適合
- セキュリティ
- 機械警備(24時間監視)
- 駐車場設備
- 要確認
Y.BLDG の募集区画 (総募集面積 27.60坪)
※月額費用、坪単価 ともに共益費込・税別の価格です
ジブラルタ生命五反田ビル(品川区、西五反田、五反田、大崎広小路)
- 所在地
- 東京都品川区西五反田2-15-7
- 最寄り駅
- 五反田駅徒歩4分、大崎広小路駅徒歩8分、不動前駅徒歩12分
- 竣工
- 1989年
- 規模
- 地上8階・地下1階
- 耐震基準
- 新耐震基準適合
- セキュリティ
- 機械警備(24時間監視)
- 駐車場設備
- 要確認
ジブラルタ生命五反田ビル の募集区画 (総募集面積 52.22坪)
※月額費用、坪単価 ともに共益費込・税別の価格です
西五反田の魅力:落ち着いた雰囲気と利便性を兼ね備えた、多様なビジネスが集まる創造的な街
西五反田の全容:品川区の北西に位置し、JR五反田駅に隣接する、落ち着いた雰囲気と利便性を兼ね備えたビジネスエリア
西五反田は、品川区の北西に位置し、JR五反田駅に隣接しています。近年、再開発が進み、オフィスビルや商業施設、マンションなどが立ち並ぶ、洗練された都市景観が広がっています。一方で、目黒川沿いの緑豊かな自然も残っており、都心でありながら落ち着いた雰囲気が漂います。
西五反田の沿革:西五反田は、かつては中小の工場や住宅が混在する地域でしたが、近年では、五反田駅周辺の再開発に伴い、オフィスビルや商業施設が増加しました。
西五反田の環境:西五反田には、TOCビルなどの著名なオフィスビルが立地しています。これらのオフィスビルは、最新の設備を備え、快適なオフィス環境を提供するだけでなく、コワーキングスペースやシェアオフィスなども充実しており、多様な働き方に対応しています。また、五反田駅周辺には、ホテルや商業施設も多く、ビジネスに必要なあらゆるサービスが揃っています。
詳細なアクセス情報:西五反田は、JR山手線、都営浅草線、東急池上線の五反田駅が最寄り駅です。都内主要ビジネスエリアへのアクセスも容易で、交通利便性に優れた立地です。
特徴:西五反田の魅力は、落ち着いた雰囲気と利便性を兼ね備えた、多様なビジネスが集まる創造的な街であることです。五反田駅周辺には、IT企業やクリエイティブ関連企業が多く集まり、新たなビジネスの可能性を秘めています。また、目黒川沿いの遊歩道は、ビジネスの合間にリフレッシュできる空間を提供します。
周辺環境:西五反田周辺には、各種金融機関や医療機関、ホテルなどが集積しており、ビジネスに必要なサービスが揃っています。また、五反田駅周辺には、アトレ五反田などの商業施設や、個性的な飲食店も多く、ランチやアフターファイブも楽しめます。
こんな企業におすすめ:IT、クリエイティブ、スタートアップ、ベンチャー企業、多様な働き方を実践したい企業、落ち着いた環境で働きたい企業
西五反田にオフィスを構える主な上場企業:株式会社ベクター
グルメ、ランチ、カフェ、イベント散策:西五反田には、おしゃれなカフェやレストランが多く、ランチタイムには、オフィスワーカーで賑わうレストランやカフェが人気です。また、目黒川沿いの遊歩道は、春には桜の名所として知られ、多くの人々で賑わいます。
地域性:西五反田は、落ち着いた雰囲気と利便性を兼ね備えた、多様なビジネスが集まる創造的な街です。新たなビジネスと文化の発信地として、創造性を高めることができます。
まとめ:西五反田は、多様なビジネスが集まる、ポテンシャルの高い街です。賃貸事務所をお探しなら、西五反田を検討してみてはいかがでしょうか。

































































































































































































































































































































































































































































































































































