東日暮里の賃貸オフィス・貸事務所情報
検索結果 9 件
並び替え
日暮里駅前中央ビル(荒川区、東日暮里、日暮里、西日暮里)
- 所在地
- 東京都荒川区東日暮里6-60-10
- 最寄り駅
- 日暮里駅徒歩2分、西日暮里駅徒歩9分、千駄木駅徒歩12分
- 竣工
- 1992年
- 規模
- 地上10階・地下1階
- 耐震基準
- 新耐震基準適合
- セキュリティ
- 機械警備(24時間監視)
- 駐車場設備
- 有(機械式23台)
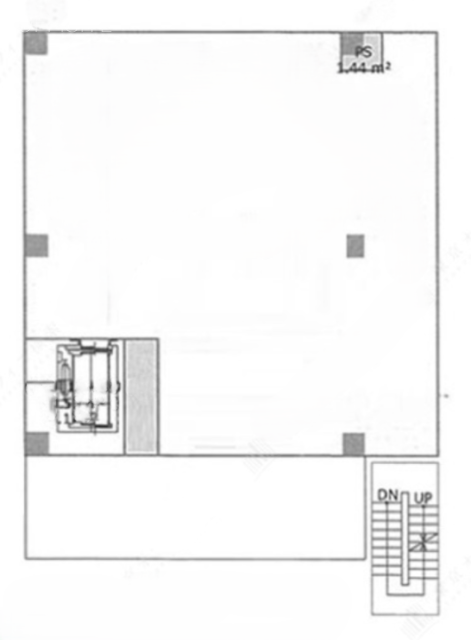
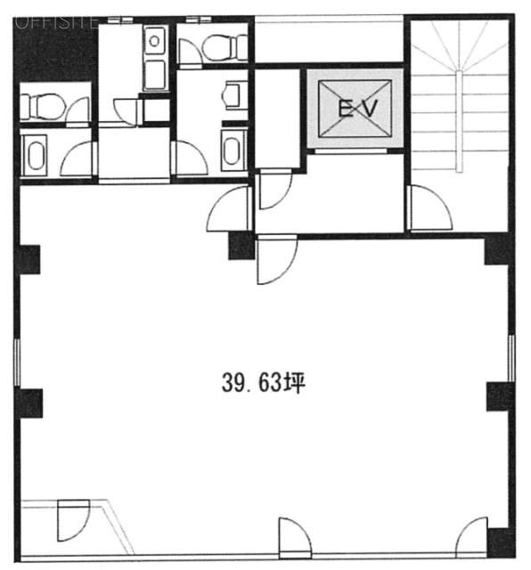
日暮里駅前中央ビル の募集区画 (総募集面積 82.59坪)
※月額費用、坪単価 ともに共益費込・税別の価格です
第2眞下ビル(荒川区、東日暮里、日暮里、鶯谷)
- 所在地
- 東京都荒川区東日暮里5-35-4
- 最寄り駅
- 日暮里駅徒歩5分、鶯谷駅徒歩9分、西日暮里駅徒歩13分
- 竣工
- 1965年
- 規模
- 地上4階
- 駐車場設備
- 要確認
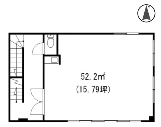
第2眞下ビル の募集区画 (総募集面積 24.49坪)
※月額費用、坪単価 ともに共益費込・税別の価格です
東日暮里計画(荒川区、東日暮里、三ノ輪)
編集中
- 所在地
- 東京都荒川区東日暮里1-16
- 最寄り駅
- 三ノ輪駅徒歩3分
- 竣工
- 2026年
- 規模
- 地上5階
- 耐震基準
- 新耐震基準適合
- セキュリティ
- 機械警備(24時間監視)
- 駐車場設備
- 要確認
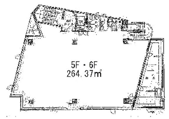
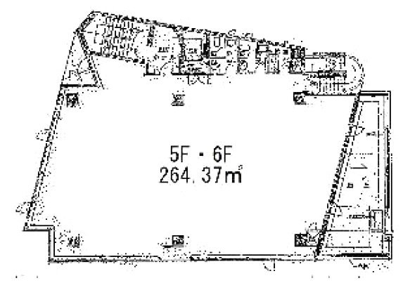
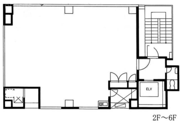
東日暮里計画 の募集区画 (総募集面積 220.15坪)
| 図面 | 階数 | 坪数 | 月額費用 | 坪単価 | 入居可能日 | |
|---|---|---|---|---|---|---|
![]() | 1階 | 19.64坪 | 750,000円 | 38,187円 | 相談 | 検討リスト お問い合わせ |
![]() | 1階 | 26.71坪 | 620,000円 | 23,212円 | 相談 | 検討リスト お問い合わせ |
![]() | 2階 | 43.45坪 | 870,000円 | 20,023円 | 相談 | 検討リスト お問い合わせ |
![]() | 3階 | 43.45坪 | 800,000円 | 18,412円 | 相談 | 検討リスト お問い合わせ |
![]() | 4階 | 43.45坪 | 800,000円 | 18,412円 | 相談 | 検討リスト お問い合わせ |
![]() | 5階 | 43.45坪 | 800,000円 | 18,412円 | 相談 | 検討リスト お問い合わせ |
※月額費用、坪単価 ともに共益費込・税別の価格です
竹山ビル六番館(荒川区、東日暮里、鶯谷、日暮里)
編集中
- 所在地
- 東京都荒川区東日暮里4-29-6
- 最寄り駅
- 鶯谷駅徒歩9分、日暮里駅徒歩10分
- 竣工
- 2007年
- 規模
- 地上6階
- 耐震基準
- 新耐震基準適合
- 駐車場設備
- 要確認
竹山ビル六番館 の募集区画 (総募集面積 15.65坪)
※月額費用、坪単価 ともに共益費込・税別の価格です
日暮里コミュニティビル(荒川区、東日暮里、日暮里、西日暮里)
- 所在地
- 東京都荒川区東日暮里5-41-12
- 最寄り駅
- 日暮里駅徒歩5分、西日暮里駅徒歩13分
- 竣工
- 1992年
- 規模
- 地上10階・地下1階
- 耐震基準
- 新耐震基準適合
- セキュリティ
- 機械警備(24時間監視)
- 駐車場設備
- 要確認
日暮里コミュニティビル の募集区画 (総募集面積 0.00坪)
BHビル(荒川区、東日暮里、三河島、日暮里)
- 所在地
- 東京都荒川区東日暮里3-27-5
- 最寄り駅
- 三河島駅徒歩9分、日暮里駅徒歩12分、三ノ輪駅徒歩14分
- 竣工
- 1994年
- 規模
- 地上7階
- 耐震基準
- 新耐震基準適合
- 駐車場設備
- 要確認
BHビル の募集区画 (総募集面積 0.00坪)
桂ビル(荒川区、東日暮里、三河島、日暮里)
- 所在地
- 東京都荒川区東日暮里6-16-8
- 最寄り駅
- 三河島駅徒歩7分、日暮里駅徒歩9分、西日暮里駅徒歩15分
- 竣工
- 1993年
- 規模
- 地上7階
- 耐震基準
- 新耐震基準適合
- 駐車場設備
- 要確認
桂ビル の募集区画 (総募集面積 0.00坪)
三ノ輪ビル(荒川区、東日暮里、三ノ輪、三ノ輪橋)
- 所在地
- 東京都荒川区東日暮里1-5-7
- 最寄り駅
- 三ノ輪駅徒歩3分、三ノ輪橋駅徒歩3分、南千住駅徒歩13分
- 竣工
- 1988年
- 規模
- 地上9階
- 耐震基準
- 新耐震基準適合
- セキュリティ
- 機械警備(24時間監視)
- 駐車場設備
- 要確認
三ノ輪ビル の募集区画 (総募集面積 0.00坪)
NNビル(荒川区、東日暮里、日暮里、西日暮里)
- 所在地
- 東京都荒川区東日暮里5-41-2
- 最寄り駅
- 日暮里駅徒歩4分、西日暮里駅徒歩12分、三河島駅徒歩13分
- 竣工
- 1990年
- 規模
- 地上9階
- 耐震基準
- 新耐震基準適合
- セキュリティ
- 機械警備(24時間監視)
- 駐車場設備
- 要確認
NNビル の募集区画 (総募集面積 0.00坪)
富永ビル(荒川区、東日暮里、三河島、日暮里)
編集中
- 所在地
- 東京都荒川区東日暮里4-33-10
- 最寄り駅
- 三河島駅徒歩7分、日暮里駅徒歩10分、鶯谷駅徒歩10分
- 竣工
- 1991年
- 規模
- 地上6階
- 耐震基準
- 新耐震基準適合
- 駐車場設備
- 要確認
富永ビル の募集区画 (総募集面積 0.00坪)
日暮里安永ビル(荒川区、東日暮里、日暮里、西日暮里)
- 所在地
- 東京都荒川区東日暮里5-51-12
- 最寄り駅
- 日暮里駅徒歩1分、西日暮里駅徒歩10分、鶯谷駅徒歩13分
- 竣工
- 1991年
- 規模
- 地上8階・地下1階
- 耐震基準
- 新耐震基準適合
- セキュリティ
- 共用部警備なし(簡易管理)
- 駐車場設備
- 要確認
日暮里安永ビル の募集区画 (総募集面積 0.00坪)
日暮里駅前中央ビル(荒川区、東日暮里、日暮里、西日暮里)
- 所在地
- 東京都荒川区東日暮里6-60-10
- 最寄り駅
- 日暮里駅徒歩2分、西日暮里駅徒歩9分、千駄木駅徒歩12分
- 竣工
- 1992年
- 規模
- 地上10階・地下1階
- 耐震基準
- 新耐震基準適合
- セキュリティ
- 機械警備(24時間監視)
- 駐車場設備
- 有(機械式23台)
日暮里駅前中央ビル の募集区画 (総募集面積 0.00坪)
第二松本ビル(荒川区、東日暮里、日暮里、西日暮里)
- 所在地
- 東京都荒川区東日暮里5-50-18
- 最寄り駅
- 日暮里駅徒歩3分、西日暮里駅徒歩8分、三河島駅徒歩12分
- 竣工
- 1976年
- 規模
- 地上9階
- 駐車場設備
- 要確認
第二松本ビル の募集区画 (総募集面積 0.00坪)
日暮里SKビル(荒川区、東日暮里、日暮里、西日暮里)
- 所在地
- 東京都荒川区東日暮里5-52-4
- 最寄り駅
- 日暮里駅徒歩1分、西日暮里駅徒歩10分
- 竣工
- 1984年
- 規模
- 地上7階
- 耐震基準
- 新耐震基準適合
- セキュリティ
- 共用部警備なし(簡易管理)
- 駐車場設備
- 要確認
日暮里SKビル の募集区画 (総募集面積 0.00坪)
メゾンヴェルデ(荒川区、東日暮里、三河島、日暮里)
- 所在地
- 東京都荒川区東日暮里6-39-13
- 最寄り駅
- 三河島駅徒歩5分、日暮里駅徒歩10分
- 竣工
- 1990年
- 規模
- 地上6階
- 耐震基準
- 新耐震基準適合
- 駐車場設備
- 要確認
メゾンヴェルデ の募集区画 (総募集面積 0.00坪)
長戸ビル(荒川区、東日暮里、日暮里)
編集中
- 所在地
- 東京都荒川区東日暮里6-56-6
- 最寄り駅
- 日暮里駅徒歩4分
- 竣工
- 1968年
- 規模
- 地上4階
- 駐車場設備
- 要確認
長戸ビル の募集区画 (総募集面積 0.00坪)
第一ビル(荒川区、東日暮里、日暮里、西日暮里)
- 所在地
- 東京都荒川区東日暮里5-48-2
- 最寄り駅
- 日暮里駅徒歩2分、西日暮里駅徒歩10分、三河島駅徒歩13分
- 竣工
- 1989年
- 規模
- 地上10階
- 耐震基準
- 新耐震基準適合
- セキュリティ
- 機械警備(24時間監視)
- 駐車場設備
- 要確認
第一ビル の募集区画 (総募集面積 0.00坪)
川原第2ビル(荒川区、東日暮里、日暮里、西日暮里)
- 所在地
- 東京都荒川区東日暮里5-34-1
- 最寄り駅
- 日暮里駅徒歩6分、西日暮里駅徒歩12分、新三河島駅徒歩16分
- 竣工
- 2003年
- 規模
- 地上5階
- 耐震基準
- 新耐震基準適合
- セキュリティ
- 機械警備(24時間監視)
- 駐車場設備
- 要確認
川原第2ビル の募集区画 (総募集面積 0.00坪)
シンコールビル(荒川区、東日暮里、三河島、三ノ輪)
- 所在地
- 東京都荒川区東日暮里4-12-1
- 最寄り駅
- 三河島駅徒歩11分、三ノ輪駅徒歩13分、日暮里駅徒歩16分
- 竣工
- 2019年
- 規模
- 地上5階
- 耐震基準
- 新耐震基準適合
- セキュリティ
- 機械警備(24時間監視)
- 駐車場設備
- 要確認
シンコールビル の募集区画 (総募集面積 0.00坪)
折原ビル(荒川区、東日暮里、日暮里、西日暮里)
- 所在地
- 東京都荒川区東日暮里5-52-6
- 最寄り駅
- 日暮里駅徒歩2分、西日暮里駅徒歩10分、三河島駅徒歩14分
- 竣工
- 1991年
- 規模
- 地上9階
- 耐震基準
- 新耐震基準適合
- セキュリティ
- 機械警備(24時間監視)
- 駐車場設備
- 要確認
折原ビル の募集区画 (総募集面積 0.00坪)
エスポワールOKABE(荒川区、東日暮里、日暮里、鶯谷)
- 所在地
- 東京都荒川区東日暮里5-17-10
- 最寄り駅
- 日暮里駅徒歩5分、鶯谷駅徒歩8分
- 竣工
- 1992年
- 規模
- 地上8階・地下1階
- 耐震基準
- 新耐震基準適合
- セキュリティ
- 機械警備(24時間監視)
- 駐車場設備
- 要確認
エスポワールOKABE の募集区画 (総募集面積 0.00坪)
三桜ビル(荒川区、東日暮里、三ノ輪、三ノ輪橋)
- 所在地
- 東京都荒川区東日暮里1-37-8
- 最寄り駅
- 三ノ輪駅徒歩4分、三ノ輪橋駅徒歩8分、三河島駅徒歩13分
- 竣工
- 1974年
- 規模
- 地上7階
- 駐車場設備
- 要確認
三桜ビル の募集区画 (総募集面積 0.00坪)
OAK(オーク)ビル(荒川区、東日暮里、日暮里、三河島)
- 所在地
- 東京都荒川区東日暮里5-34-1
- 最寄り駅
- 日暮里駅徒歩5分、三河島駅徒歩10分、西日暮里駅徒歩12分
- 竣工
- 1992年
- 規模
- 地上9階・地下1階
- 耐震基準
- 新耐震基準適合
- 駐車場設備
- 要確認
OAK(オーク)ビル の募集区画 (総募集面積 0.00坪)
坂入ビル(荒川区、東日暮里、三河島、日暮里)
- 所在地
- 東京都荒川区東日暮里6-28-5
- 最寄り駅
- 三河島駅徒歩2分、日暮里駅徒歩10分、西日暮里駅徒歩11分
- 竣工
- 1970年
- 規模
- 地上7階・地下1階
- セキュリティ
- 機械警備(24時間監視)
- 駐車場設備
- 要確認
坂入ビル の募集区画 (総募集面積 0.00坪)
セントラルビルあらかわ(荒川区、東日暮里、三ノ輪)
- 所在地
- 東京都荒川区東日暮里2-29-6
- 最寄り駅
- 三ノ輪駅徒歩8分
- 竣工
- 1989年
- 規模
- 地上4階
- 耐震基準
- 新耐震基準適合
- 駐車場設備
- 要確認
セントラルビルあらかわ の募集区画 (総募集面積 0.00坪)
IKビル(荒川区、東日暮里、三河島、三ノ輪)
- 所在地
- 東京都荒川区東日暮里3-1-5
- 最寄り駅
- 三河島駅徒歩9分、三ノ輪駅徒歩12分
- 竣工
- 1989年
- 規模
- 地上3階・地下1階
- 耐震基準
- 新耐震基準適合
- 駐車場設備
- 要確認
IKビル の募集区画 (総募集面積 0.00坪)
偕楽三ノ輪ビル(荒川区、東日暮里、日暮里、三ノ輪)
- 所在地
- 東京都荒川区東日暮里1-8-1
- 最寄り駅
- 日暮里駅、三ノ輪駅徒歩3分、三河島駅徒歩15分
- 竣工
- 1997年
- 規模
- 地上3階
- 耐震基準
- 新耐震基準適合
- セキュリティ
- 機械警備(24時間監視)
- 駐車場設備
- 要確認


























































































































































































































































































