新宿アイランドタワー(新宿区、西新宿、都庁前、新宿西口) の賃貸オフィス情報

- 所在地
- 東京都新宿区西新宿6-5-1
- 最寄り駅
- 西新宿駅徒歩1分、都庁前駅徒歩3分、新宿西口駅徒歩7分
- 竣工
- 1995年
- 規模
- 地上44階・地下4階
- 構造
- SRC造(鉄骨鉄筋コンクリート造)
- 耐震基準
- 新耐震基準適合
- セキュリティ
- 機械警備・有人管理(24時間体制)
- エントランス
- 毎日開放(7:00-23:00)
- エレベーター総数
- 35基
- 駐車場設備
- 要確認
新宿の空に堂々とそびえ立つ新宿アイランドタワーは、単なるオフィスビルという概念を超え、ビジネスの未来を切り拓くための舞台です。1995年1月の竣工以来、「新宿 賃貸事務所」を探す企業や「西新宿 オフィス」を求めるビジネスパーソンにとって、そして「都庁前 賃貸」を検討する組織にとって、成長と革新の象徴であり続けてきました。住宅・都市整備公団(現:UR都市機構)と日本設計という卓越した設計者、そして鹿島建設、竹中工務店、清水建設をはじめとする一流の施工者が結集し、その堅牢性と洗練された美しさを実現しました。鉄骨造、一部鉄骨鉄筋コンクリート造、そして鉄筋コンクリート造という構造は、最新の耐震基準に適合し、企業の持続的な安全と安心をしっかりと支えます。
ビジネスの効率性を極限まで追求する企業にとって、新宿アイランドタワーの立地はまさに理想的です。「西新宿駅直結」という他に類を見ないアクセスは、従業員の通勤の負担を軽減するだけでなく、ビジネスパートナーをストレスなく迎え入れることを可能にします。東京メトロ丸ノ内線「西新宿駅」からは徒歩わずか30秒、改札を出てすぐにアクセスできます。また、都営大江戸線「都庁前駅」からも徒歩3分、さらにJR線、小田急線、京王線、東京メトロ、都営地下鉄が乗り入れる「新宿駅」からも徒歩7分という距離です。この他にも、都営大江戸線「新宿西口駅」や西武新宿線「西武新宿駅」も利用可能であり、「新宿駅 オフィス」周辺だけでなく、都内広範囲からのアクセスが容易な「駅直結 オフィス」としての価値を提供します。首都高速4号新宿線「新宿出口」からも約3分と、車でのアクセスもスムーズです。主要ビジネスエリアへのアクセスも抜群で、大手町・丸の内エリアへは約15分、渋谷エリアへは約10分、品川エリアへは約20分と、都内主要ビジネス拠点を網羅するアクセス網が、「新宿副都心 オフィス」に拠点を構える貴社のビジネス展開を力強くサポートします。
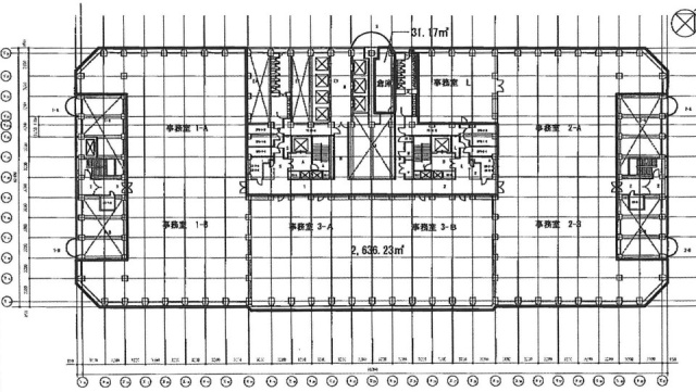
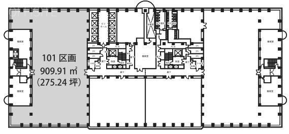
新宿アイランドタワーはその圧倒的なスケール感と先進的な設備によって、入居企業のビジネス活動を多角的に支援します。基準階面積は約784坪にも及び、多様なオフィスレイアウトに対応できる広大な空間を提供します。天井高は2,630mmと開放感に溢れ、創造的な発想を刺激するでしょう。床下にはOAフロアが完備され、煩雑になりがちな配線を床下に収納することで、自由度の高いレイアウト変更と快適なオフィス環境を実現します。空調システムはセントラル空調を採用し、一年を通して快適な室温を維持することで、従業員の生産性向上に貢献します。32基のエレベーターが設置されており、高層階への移動もスムーズです。オフィスフロアのトイレは室外に男女別で設置され、清潔で快適な利用が可能です。給湯室も完備されており、快適なオフィスライフをサポートします。共用部には、企業の顔となる広々としたエントランス、打ち合わせや休憩に利用できる高級感あふれるロビー、そして企業のニーズに合わせた様々な規模の会議室(詳細は確認中)などが設けられています。さらに、ビル内にはファミリーマートやセブン-イレブンといったコンビニエンスストアの他、カフェやレストランも併設されており、利便性に優れています。セキュリティ面では、24時間有人警備と機械警備システムが連携し、入居企業の安全をしっかりと確保します。詳細な入退室管理システムや監視カメラの設置状況は現在確認中です。「新耐震 オフィス」であることはもちろん、「大型オフィスビル」としての信頼性も備えています。
新宿アイランドタワーの周辺環境は、ビジネスに必要なあらゆる要素が凝縮されています。新宿駅周辺には百貨店(伊勢丹、高島屋など)、家電量販店、多様なファッションビルが立ち並び、仕事帰りや休憩時間のショッピングに便利です。銀行や信用金庫、ATMなども周辺に多数存在し、日々の金融取引をスムーズに行うことができます。ビル内には郵便局があり、郵便・宅配サービスを利用できます。周辺には総合病院からクリニックまで様々な医療機関があり、従業員の健康管理をサポートします。また、緑豊かな新宿中央公園が徒歩圏内にあり、オフィスワーカーにとって貴重なリフレッシュ空間となります。他にも薬局、パーソナルジム、カフェなど、多種多様なテナントが入居しており、日々の業務を強力にサポートします。この充実した環境は、あらゆる業種の企業にとって魅力的なポイントとなるでしょう。
こんな企業におすすめです。高度なITインフラと快適なオフィス環境を求める「IT・通信業」の企業様、複数路線からの優れたアクセスと充実した会議室を必要とする「コンサルティング業」の企業様、新宿という一等地へのオフィス移転によって企業ブランドの向上を目指す「金融業」の企業様、そして創造性を重視する「クリエイティブ業」の企業様など、成長を目指すすべての企業にとって、新宿アイランドタワーは最適なビジネス拠点となるはずです。「東京都 賃貸事務所」をお探しであれば、ぜひご検討ください。
新宿アイランドタワーが位置する西新宿エリアは、かつて淀橋浄水場があった場所から劇的な変貌を遂げました。1960年代後半からの副都心計画によって、超高層ビルが林立する現在の姿が形成されました。その中で新宿アイランドタワーはオフィスだけでなく住宅や商業施設も併設した複合施設として1995年に誕生し、地域社会の発展に大きく貢献してきました。「新宿アイランド」という名称は、このエリア一帯を指すものであり、新宿アイランドタワーはその象徴的な存在として、地域社会に深く根ざしています。
新宿アイランドタワーは、周辺の超高層ビル群と美しく調和した洗練されたモダンな外観が特徴です。ビルに隣接する「アイランド パティオ」は緑豊かなオープンスペースとして整備され、訪れる人々に憩いの場を提供しています。環境への配慮も重視されており、省エネルギー性能の向上やリサイクル素材の利用などが積極的に推進されていると考えられます。新宿の賃貸事務所の中でも、環境負荷の低減に取り組む姿勢は、企業の社会的責任を重視する企業にとって魅力的な要素となるでしょう。
新宿アイランドタワーは、その卓越した立地、駅直結という利便性、充実した設備、そして新宿副都心というビジネスの中心地としてのポテンシャルによって、新宿オフィスを探す企業の成長を力強く後押しします。大型オフィスビルならではの安心感と、周辺環境の利便性、新耐震オフィスとしての安全性。これらすべてを兼ね備えた新宿アイランドタワーで、貴社のビジネスを新たなステージへと導いてください。ぜひ一度、その目でこの素晴らしいオフィス空間をご確認ください。東京都の賃貸事務所をお探しなら、新宿アイランドタワーが最良の選択肢の一つとなるでしょう。
ビジネスの効率性を極限まで追求する企業にとって、新宿アイランドタワーの立地はまさに理想的です。「西新宿駅直結」という他に類を見ないアクセスは、従業員の通勤の負担を軽減するだけでなく、ビジネスパートナーをストレスなく迎え入れることを可能にします。東京メトロ丸ノ内線「西新宿駅」からは徒歩わずか30秒、改札を出てすぐにアクセスできます。また、都営大江戸線「都庁前駅」からも徒歩3分、さらにJR線、小田急線、京王線、東京メトロ、都営地下鉄が乗り入れる「新宿駅」からも徒歩7分という距離です。この他にも、都営大江戸線「新宿西口駅」や西武新宿線「西武新宿駅」も利用可能であり、「新宿駅 オフィス」周辺だけでなく、都内広範囲からのアクセスが容易な「駅直結 オフィス」としての価値を提供します。首都高速4号新宿線「新宿出口」からも約3分と、車でのアクセスもスムーズです。主要ビジネスエリアへのアクセスも抜群で、大手町・丸の内エリアへは約15分、渋谷エリアへは約10分、品川エリアへは約20分と、都内主要ビジネス拠点を網羅するアクセス網が、「新宿副都心 オフィス」に拠点を構える貴社のビジネス展開を力強くサポートします。
新宿アイランドタワーはその圧倒的なスケール感と先進的な設備によって、入居企業のビジネス活動を多角的に支援します。基準階面積は約784坪にも及び、多様なオフィスレイアウトに対応できる広大な空間を提供します。天井高は2,630mmと開放感に溢れ、創造的な発想を刺激するでしょう。床下にはOAフロアが完備され、煩雑になりがちな配線を床下に収納することで、自由度の高いレイアウト変更と快適なオフィス環境を実現します。空調システムはセントラル空調を採用し、一年を通して快適な室温を維持することで、従業員の生産性向上に貢献します。32基のエレベーターが設置されており、高層階への移動もスムーズです。オフィスフロアのトイレは室外に男女別で設置され、清潔で快適な利用が可能です。給湯室も完備されており、快適なオフィスライフをサポートします。共用部には、企業の顔となる広々としたエントランス、打ち合わせや休憩に利用できる高級感あふれるロビー、そして企業のニーズに合わせた様々な規模の会議室(詳細は確認中)などが設けられています。さらに、ビル内にはファミリーマートやセブン-イレブンといったコンビニエンスストアの他、カフェやレストランも併設されており、利便性に優れています。セキュリティ面では、24時間有人警備と機械警備システムが連携し、入居企業の安全をしっかりと確保します。詳細な入退室管理システムや監視カメラの設置状況は現在確認中です。「新耐震 オフィス」であることはもちろん、「大型オフィスビル」としての信頼性も備えています。
新宿アイランドタワーの周辺環境は、ビジネスに必要なあらゆる要素が凝縮されています。新宿駅周辺には百貨店(伊勢丹、高島屋など)、家電量販店、多様なファッションビルが立ち並び、仕事帰りや休憩時間のショッピングに便利です。銀行や信用金庫、ATMなども周辺に多数存在し、日々の金融取引をスムーズに行うことができます。ビル内には郵便局があり、郵便・宅配サービスを利用できます。周辺には総合病院からクリニックまで様々な医療機関があり、従業員の健康管理をサポートします。また、緑豊かな新宿中央公園が徒歩圏内にあり、オフィスワーカーにとって貴重なリフレッシュ空間となります。他にも薬局、パーソナルジム、カフェなど、多種多様なテナントが入居しており、日々の業務を強力にサポートします。この充実した環境は、あらゆる業種の企業にとって魅力的なポイントとなるでしょう。
こんな企業におすすめです。高度なITインフラと快適なオフィス環境を求める「IT・通信業」の企業様、複数路線からの優れたアクセスと充実した会議室を必要とする「コンサルティング業」の企業様、新宿という一等地へのオフィス移転によって企業ブランドの向上を目指す「金融業」の企業様、そして創造性を重視する「クリエイティブ業」の企業様など、成長を目指すすべての企業にとって、新宿アイランドタワーは最適なビジネス拠点となるはずです。「東京都 賃貸事務所」をお探しであれば、ぜひご検討ください。
新宿アイランドタワーが位置する西新宿エリアは、かつて淀橋浄水場があった場所から劇的な変貌を遂げました。1960年代後半からの副都心計画によって、超高層ビルが林立する現在の姿が形成されました。その中で新宿アイランドタワーはオフィスだけでなく住宅や商業施設も併設した複合施設として1995年に誕生し、地域社会の発展に大きく貢献してきました。「新宿アイランド」という名称は、このエリア一帯を指すものであり、新宿アイランドタワーはその象徴的な存在として、地域社会に深く根ざしています。
新宿アイランドタワーは、周辺の超高層ビル群と美しく調和した洗練されたモダンな外観が特徴です。ビルに隣接する「アイランド パティオ」は緑豊かなオープンスペースとして整備され、訪れる人々に憩いの場を提供しています。環境への配慮も重視されており、省エネルギー性能の向上やリサイクル素材の利用などが積極的に推進されていると考えられます。新宿の賃貸事務所の中でも、環境負荷の低減に取り組む姿勢は、企業の社会的責任を重視する企業にとって魅力的な要素となるでしょう。
新宿アイランドタワーは、その卓越した立地、駅直結という利便性、充実した設備、そして新宿副都心というビジネスの中心地としてのポテンシャルによって、新宿オフィスを探す企業の成長を力強く後押しします。大型オフィスビルならではの安心感と、周辺環境の利便性、新耐震オフィスとしての安全性。これらすべてを兼ね備えた新宿アイランドタワーで、貴社のビジネスを新たなステージへと導いてください。ぜひ一度、その目でこの素晴らしいオフィス空間をご確認ください。東京都の賃貸事務所をお探しなら、新宿アイランドタワーが最良の選択肢の一つとなるでしょう。
新宿アイランドタワー の募集区画 (総募集面積 0.00坪)
現在募集はありません。
地図
東京都新宿区西新宿6-5-1 地図をクリックして拡大できます
新宿アイランドタワー の外観イメージ
新宿アイランドタワービル(新宿区西新宿)は、1994年12月竣工の地上44階、地下4階建ての大型高級賃貸オフィス物件です。きりっとした外観で、「LOVE」のオブジェが有名で、パブリックアートを随所に散りばめております。エントランスホールとエレベーターホールは、アート性のある造りとなっており、緑に囲まれた憩いのスペース、多くのレストランやショップが集う店舗フロアなど、毎日のオフィスライフを充実させる機能がたくさんあります。エレベーターは、32基設置されており、忙しい朝でも、あまり待つことはないでしょう。セキュリティーは、有人管理プラス機械警備で、安心です。規模の大きい駐車場もあり、詳しくは、担当者までお気軽にお問合せくださいませ。
















新宿アイランドタワー の周辺イメージ
新宿アイランドタワービル(新宿区西新宿)は、東京メトロ西新宿駅直結となっており、雨の日でも濡れずにオフィスまで行くことができます。都営大江戸線の都庁駅からも地下道を通れば、雨風を凌いでビルと駅の間を行き来できます。隣接して東京医科大学病院や新宿警察署があることも、利便性や安心感のもととなるでしょう。西新宿のオフィス街に建っておりますが、近隣には公園などの緑もあるため、気分転換もできる環境です。近隣には飲食店やコンビニが豊富にあります。交通を始めとして飲食、物販、治安、医療など様々な利便性、安全性が叶う環境です。



Youtubeショート動画
新宿アイランドタワー の主な入居テナント
新宿アイランドタワー の募集終了区画
| 図面 | 階数 | 坪数 | 月額費用 | 坪単価 | 入居可能日 | |
|---|---|---|---|---|---|---|
![]() | B1階 | 33.95坪 | お問い合わせください | 募集終了 | 検討リスト | |
![]() | B1階 | 21.06坪 | お問い合わせください | 募集終了 | 検討リスト | |
![]() | B1階 | 62.47坪 | お問い合わせください | 募集終了 | 検討リスト | |
![]() | B1階 | 95.06坪 | お問い合わせください | 募集終了 | 検討リスト | |
![]() | B1階 | 96.43坪 | お問い合わせください | 募集終了 | 検討リスト | |
![]() | B1階 | 4.47坪 | お問い合わせください | 募集終了 | 検討リスト | |
![]() | B1階 | 7.17坪 | お問い合わせください | 募集終了 | 検討リスト | |
![]() | B1階 | 4.47坪 | お問い合わせください | 募集終了 | 検討リスト | |
![]() | 1階 | 183.69坪 | お問い合わせください | 募集終了 | 検討リスト | |
![]() | 1階 | 53.45坪 | お問い合わせください | 募集終了 | 検討リスト | |
![]() | 1階 | 88.31坪 | お問い合わせください | 募集終了 | 検討リスト | |
![]() | 1階 | 30.79坪 | お問い合わせください | 募集終了 | 検討リスト | |
![]() | 1階 | 19.99坪 | お問い合わせください | 募集終了 | 検討リスト | |
![]() | 1階 | 4.32坪 | お問い合わせください | 募集終了 | 検討リスト | |
![]() | 2階 | 137.32坪 | お問い合わせください | 募集終了 | 検討リスト | |
![]() | 2階 | 117.10坪 | お問い合わせください | 募集終了 | 検討リスト | |
![]() | 2階 | 36.89坪 | お問い合わせください | 募集終了 | 検討リスト | |
![]() | 2階 | 14.43坪 | お問い合わせください | 募集終了 | 検討リスト | |
![]() | 2階 | 54.34坪 | お問い合わせください | 募集終了 | 検討リスト | |
![]() | 2階 | 101.02坪 | お問い合わせください | 募集終了 | 検討リスト | |
![]() | 2階 | 36.89坪 | お問い合わせください | 募集終了 | 検討リスト | |
![]() | 3階 | 12.98坪 | お問い合わせください | 募集終了 | 検討リスト | |
![]() | 3階 | 265.31坪 | お問い合わせください | 募集終了 | 検討リスト | |
![]() | 4階 | 40.66坪 | お問い合わせください | 募集終了 | 検討リスト | |
![]() | 4階 | 81.99坪 | お問い合わせください | 募集終了 | 検討リスト | |
![]() | 4階 | 137.48坪 | お問い合わせください | 募集終了 | 検討リスト | |
![]() | 4階 | 108.33坪 | お問い合わせください | 募集終了 | 検討リスト | |
![]() | 4階 | 38.05坪 | お問い合わせください | 募集終了 | 検討リスト | |
![]() | 4階 | 34.12坪 | お問い合わせください | 募集終了 | 検討リスト | |
![]() | 4階 | 48.07坪 | お問い合わせください | 募集終了 | 検討リスト | |
![]() | 4階 | 76.23坪 | お問い合わせください | 募集終了 | 検討リスト | |
![]() | 4階 | 12.98坪 | お問い合わせください | 募集終了 | 検討リスト | |
![]() | 4階 | 53.70坪 | お問い合わせください | 募集終了 | 検討リスト | |
![]() | 4階 | 12.40坪 | お問い合わせください | 募集終了 | 検討リスト | |
![]() | 4階 | 35.30坪 | お問い合わせください | 募集終了 | 検討リスト | |
![]() | 5階 | 40.66坪 | お問い合わせください | 募集終了 | 検討リスト | |
![]() | 5階 | 40.31坪 | お問い合わせください | 募集終了 | 検討リスト | |
![]() | 5階 | 53.70坪 | お問い合わせください | 募集終了 | 検討リスト | |
![]() | 5階 | 47.87坪 | お問い合わせください | 募集終了 | 検討リスト | |
![]() | 5階 | 38.15坪 | お問い合わせください | 募集終了 | 検討リスト | |
![]() | 5階 | 212.75坪 | お問い合わせください | 募集終了 | 検討リスト | |
![]() | 5階 | 120.25坪 | お問い合わせください | 募集終了 | 検討リスト | |
![]() | 5階 | 94.13坪 | お問い合わせください | 募集終了 | 検討リスト | |
![]() | 5階 | 43.36坪 | お問い合わせください | 募集終了 | 検討リスト | |
![]() | 5階 | 43.35坪 | お問い合わせください | 募集終了 | 検討リスト | |
![]() | 5階 | 34.12坪 | お問い合わせください | 募集終了 | 検討リスト | |
![]() | 6階 | 53.70坪 | お問い合わせください | 募集終了 | 検討リスト | |
![]() | 6階 | 34.12坪 | お問い合わせください | 募集終了 | 検討リスト | |
![]() | 6階 | 53.31坪 | お問い合わせください | 募集終了 | 検討リスト | |
![]() | 6階 | 40.66坪 | お問い合わせください | 募集終了 | 検討リスト | |
![]() | 6階 | 38.25坪 | お問い合わせください | 募集終了 | 検討リスト | |
![]() | 6階 | 47.88坪 | お問い合わせください | 募集終了 | 検討リスト | |
![]() | 6階 | 159.24坪 | お問い合わせください | 募集終了 | 検討リスト | |
![]() | 6階 | 82.19坪 | お問い合わせください | 募集終了 | 検討リスト | |
![]() | 6階 | 43.36坪 | お問い合わせください | 募集終了 | 検討リスト | |
![]() | 6階 | 94.12坪 | お問い合わせください | 募集終了 | 検討リスト | |
![]() | 7階 | 133.13坪 | お問い合わせください | 募集終了 | 検討リスト | |
![]() | 7階 | 106.33坪 | お問い合わせください | 募集終了 | 検討リスト | |
![]() | 8階 | 375.25坪 | お問い合わせください | 募集終了 | 検討リスト | |
![]() | 8階 | 271.69坪 | お問い合わせください | 募集終了 | 検討リスト | |
![]() | 9階 | 753.28坪 | お問い合わせください | 募集終了 | 検討リスト | |
![]() | 9階 | 267.40坪 | お問い合わせください | 募集終了 | 検討リスト | |
![]() | 12階 | 756.07坪 | お問い合わせください | 募集終了 | 検討リスト | |
![]() | 12階 | 122.34坪 | お問い合わせください | 募集終了 | 検討リスト | |
![]() | 13階 | 268.92坪 | お問い合わせください | 募集終了 | 検討リスト | |
![]() | 13階 | 212.66坪 | お問い合わせください | 募集終了 | 検討リスト | |
![]() | 13階 | 271.70坪 | お問い合わせください | 募集終了 | 検討リスト | |
![]() | 14階 | 271.70坪 | お問い合わせください | 募集終了 | 検討リスト | |
![]() | 14階 | 268.92坪 | お問い合わせください | 募集終了 | 検討リスト | |
![]() | 14階 | 212.66坪 | お問い合わせください | 募集終了 | 検討リスト | |
![]() | 14階 | 271.69坪 | お問い合わせください | 募集終了 | 検討リスト | |
![]() | 16階 | 268.92坪 | お問い合わせください | 募集終了 | 検討リスト | |
![]() | 16階 | 212.66坪 | お問い合わせください | 募集終了 | 検討リスト | |
![]() | 16階 | 271.70坪 | お問い合わせください | 募集終了 | 検討リスト | |
![]() | 17階 | 268.92坪 | お問い合わせください | 募集終了 | 検討リスト | |
![]() | 17階 | 212.66坪 | お問い合わせください | 募集終了 | 検討リスト | |
![]() | 17階 | 271.70坪 | お問い合わせください | 募集終了 | 検討リスト | |
![]() | 18階 | 268.92坪 | お問い合わせください | 募集終了 | 検討リスト | |
![]() | 18階 | 212.66坪 | お問い合わせください | 募集終了 | 検討リスト | |
![]() | 18階 | 271.70坪 | お問い合わせください | 募集終了 | 検討リスト | |
![]() | 19階 | 269.63坪 | お問い合わせください | 募集終了 | 検討リスト | |
![]() | 19階 | 212.66坪 | お問い合わせください | 募集終了 | 検討リスト | |
![]() | 19階 | 270.98坪 | お問い合わせください | 募集終了 | 検討リスト | |
![]() | 19階 | 9.17坪 | お問い合わせください | 募集終了 | 検討リスト | |
![]() | 20階 | 270.98坪 | お問い合わせください | 募集終了 | 検討リスト | |
![]() | 22階 | 133.41坪 | お問い合わせください | 募集終了 | 検討リスト | |
![]() | 22階 | 35.64坪 | お問い合わせください | 募集終了 | 検討リスト | |
![]() | 22階 | 177.01坪 | お問い合わせください | 募集終了 | 検討リスト | |
![]() | 22階 | 70.69坪 | お問い合わせください | 募集終了 | 検討リスト | |
![]() | 22階 | 70.68坪 | お問い合わせください | 募集終了 | 検討リスト | |
![]() | 23階 | 132.55坪 | お問い合わせください | 募集終了 | 検討リスト | |
![]() | 23階 | 136.36坪 | お問い合わせください | 募集終了 | 検討リスト | |
![]() | 23階 | 156.65坪 | お問い合わせください | 募集終了 | 検討リスト | |
![]() | 23階 | 293.09坪 | お問い合わせください | 募集終了 | 検討リスト | |
![]() | 23階 | 136.43坪 | お問い合わせください | 募集終了 | 検討リスト | |
![]() | 23階 | 268.89坪 | お問い合わせください | 募集終了 | 検討リスト | |
![]() | 23階 | 774.67坪 | お問い合わせください | 募集終了 | 検討リスト | |
![]() | 23階 | 106.32坪 | お問い合わせください | 募集終了 | 検討リスト | |
![]() | 23階 | 106.33坪 | お問い合わせください | 募集終了 | 検討リスト | |
![]() | 24階 | 774.67坪 | お問い合わせください | 募集終了 | 検討リスト | |
![]() | 25階 | 106.32坪 | お問い合わせください | 募集終了 | 検討リスト | |
![]() | 25階 | 106.33坪 | お問い合わせください | 募集終了 | 検討リスト | |
![]() | 25階 | 268.91坪 | お問い合わせください | 募集終了 | 検討リスト | |
![]() | 26階 | 118.11坪 | お問い合わせください | 募集終了 | 検討リスト | |
![]() | 26階 | 481.57坪 | お問い合わせください | 募集終了 | 検討リスト | |
![]() | 26階 | 106.33坪 | お問い合わせください | 募集終了 | 検討リスト | |
![]() | 26階 | 106.33坪 | お問い合わせください | 募集終了 | 検討リスト | |
![]() | 27階 | 773.58坪 | お問い合わせください | 募集終了 | 検討リスト | |
![]() | 27階 | 12.98坪 | お問い合わせください | 募集終了 | 検討リスト | |
![]() | 28階 | 774.67坪 | お問い合わせください | 募集終了 | 検討リスト | |
![]() | 29階 | 774.67坪 | お問い合わせください | 募集終了 | 検討リスト | |
![]() | 29階 | 25.48坪 | お問い合わせください | 募集終了 | 検討リスト | |
![]() | 30階 | 784.88坪 | お問い合わせください | 募集終了 | 検討リスト | |
![]() | 31階 | 106.33坪 | お問い合わせください | 募集終了 | 検討リスト | |
![]() | 32階 | 315.88坪 | お問い合わせください | 募集終了 | 検討リスト | |
![]() | 32階 | 106.33坪 | お問い合わせください | 募集終了 | 検討リスト | |
![]() | 33階 | 797.46坪 | お問い合わせください | 募集終了 | 検討リスト | |
![]() | 33階 | 9.42坪 | お問い合わせください | 募集終了 | 検討リスト | |
![]() | 34階 | 268.92坪 | お問い合わせください | 募集終了 | 検討リスト | |
![]() | 34階 | 212.66坪 | お問い合わせください | 募集終了 | 検討リスト | |
![]() | 34階 | 9.43坪 | お問い合わせください | 募集終了 | 検討リスト | |
![]() | 34階 | 315.88坪 | お問い合わせください | 募集終了 | 検討リスト | |
![]() | 35階 | 797.46坪 | お問い合わせください | 募集終了 | 検討リスト | |
![]() | 36階 | 140.18坪 | お問い合わせください | 募集終了 | 検討リスト | |
![]() | 36階 | 135.33坪 | お問い合わせください | 募集終了 | 検討リスト | |
![]() | 36階 | 308.02坪 | お問い合わせください | 募集終了 | 検討リスト | |
![]() | 36階 | 275.51坪 | お問い合わせください | 募集終了 | 検討リスト | |
![]() | 36階 | 7.30坪 | お問い合わせください | 募集終了 | 検討リスト | |
![]() | 37階 | 796.20坪 | お問い合わせください | 募集終了 | 検討リスト | |
![]() | 37階 | 5.49坪 | お問い合わせください | 募集終了 | 検討リスト | |
![]() | 37階 | 12.98坪 | お問い合わせください | 募集終了 | 検討リスト | |
![]() | 38階 | 796.20坪 | お問い合わせください | 募集終了 | 検討リスト | |
![]() | 38階 | 7.32坪 | お問い合わせください | 募集終了 | 検討リスト | |
![]() | 39階 | 796.20坪 | お問い合わせください | 募集終了 | 検討リスト | |
![]() | 39階 | 7.32坪 | お問い合わせください | 募集終了 | 検討リスト | |
![]() | 39階 | 32.38坪 | お問い合わせください | 募集終了 | 検討リスト | |
![]() | 40階 | 792.50坪 | お問い合わせください | 募集終了 | 検討リスト | |
![]() | 40階 | 32.38坪 | お問い合わせください | 募集終了 | 検討リスト | |
![]() | 41階 | 305.22坪 | お問い合わせください | 募集終了 | 検討リスト | |
![]() | 41階 | 32.38坪 | お問い合わせください | 募集終了 | 検討リスト | |
![]() | 41階 | 122.30坪 | お問い合わせください | 募集終了 | 検討リスト | |
![]() | 42階 | 275.24坪 | お問い合わせください | 募集終了 | 検討リスト | |
![]() | 42階 | 106.32坪 | お問い合わせください | 募集終了 | 検討リスト | |
![]() | 42階 | 305.18坪 | お問い合わせください | 募集終了 | 検討リスト | |
![]() | 42階 | 32.38坪 | お問い合わせください | 募集終了 | 検討リスト | |
![]() | 42階 | 100.00坪 | お問い合わせください | 募集終了 | 検討リスト | |
![]() | 43階 | 34.12坪 | お問い合わせください | 募集終了 | 検討リスト | |
![]() | 43階 | 212.66坪 | お問い合わせください | 募集終了 | 検討リスト | |
![]() | 43階 | 7.32坪 | お問い合わせください | 募集終了 | 検討リスト | |
![]() | 43階 | 32.37坪 | お問い合わせください | 募集終了 | 検討リスト | |
![]() | 44階 | 379.07坪 | お問い合わせください | 募集終了 | 検討リスト | |
![]() | 44階 | 143.99坪 | お問い合わせください | 募集終了 | 検討リスト | |
![]() | 44階 | 143.99坪 | お問い合わせください | 募集終了 | 検討リスト | |
![]() | 44階 | 90.75坪 | お問い合わせください | 募集終了 | 検討リスト |
近くの物件紹介
新宿区のエリア
近くの駅
| 取扱態様 | 仲介 |
|---|---|
| 取扱会社 | 株式会社アドマイアー 東京都中央区日本橋3-2-3ユニバース第1ビル2F TEL. 03-5204-1031 宅地建物取引業免許 東京都知事(3)第94663号 マンション管理業免許 国土交通大臣(2)第034224号 賃貸住宅管理業免許 国土交通大臣(01)第005938号 |

























































