墨田区の賃貸オフィス・貸事務所情報
墨田区は、東京都東部に位置し、向島・押上・両国・錦糸町・業平など下町情緒あふれる町名を擁するエリアです。主要駅には押上駅・錦糸町駅・両国駅・浅草駅があり、都営浅草線・半蔵門線・JR総武線などが乗り入れる交通の要衝です。著名施設として東京スカイツリー・両国国技館・隅田公園・すみだ水族館が集結し、ビジネス需要は押上駅周辺の再開発エリアや錦糸町オフィス街で拡大中。伝統工芸の町工場と最新商業施設が共存し、観光客とビジネス需要を兼ね備えた賃貸オフィスに適した環境です。
検索結果 71 件
SHセンター(オオイケ)ビル(墨田区、吾妻橋、本所吾妻橋)
- 所在地
- 東京都墨田区吾妻橋2-2-1
- 最寄り駅
- 本所吾妻橋駅徒歩1分
- 竣工
- 1989年
- 規模
- 地上5階・地下1階
- 耐震基準
- 新耐震基準適合
- セキュリティ
- 機械警備(24時間監視)
- 駐車場設備
- 要確認
SHセンター(オオイケ)ビル の募集区画 (総募集面積 59.95坪)
※月額費用、坪単価 ともに共益費込・税別の価格です
両国鈴木ビル(墨田区、石原、両国)
- 所在地
- 東京都墨田区石原3-2-3
- 最寄り駅
- 両国駅徒歩12分
- 竣工
- 1986年
- 規模
- 地上5階・地下1階
- 耐震基準
- 新耐震基準適合
- 駐車場設備
- 要確認
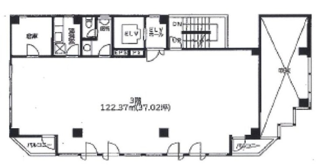
両国鈴木ビル の募集区画 (総募集面積 434.16坪)
| 図面 | 階数 | 坪数 | 月額費用 | 坪単価 | 入居可能日 | |
|---|---|---|---|---|---|---|
![]() | 1階 | 36.32坪 | 452,727円 | 12,465円 | 即時 | 検討リスト お問い合わせ |
![]() | 2階 | 39.71坪 | 452,727円 | 11,401円 | 即時 | 検討リスト お問い合わせ |
![]() | 3階 | 36.55坪 | 366,364円 | 10,024円 | 即時 | 検討リスト お問い合わせ |
![]() | 4階 | 31.34坪 | 285,455円 | 9,108円 | 即時 | 検討リスト お問い合わせ |
![]() | 5階 | 16.87坪 | 153,636円 | 9,107円 | 即時 | 検討リスト お問い合わせ |
![]() | 1階 | 112.58坪 | 1,271,818円 | 11,297円 | 即時 | 検討リスト お問い合わせ |
![]() | 1階 | 160.79坪 | 1,710,909円 | 10,641円 | 即時 | 検討リスト お問い合わせ |
※月額費用、坪単価 ともに共益費込・税別の価格です
JU WATER FRONT 錦糸町ビル(墨田区、亀沢、錦糸町、両国)
- 所在地
- 東京都墨田区亀沢4-5-4
- 最寄り駅
- 錦糸町駅徒歩8分、両国駅徒歩13分
- 竣工
- 1992年
- 規模
- 地上6階
- 耐震基準
- 新耐震基準適合
- セキュリティ
- 機械警備(24時間監視)
- 駐車場設備
- 要確認
JU WATER FRONT 錦糸町ビル の募集区画 (総募集面積 226.92坪)
| 図面 | 階数 | 坪数 | 月額費用 | 坪単価 | 入居可能日 | |
|---|---|---|---|---|---|---|
![]() | 5階 | 75.64坪 | 非公開 | 非公開 | 即時 | 検討リスト お問い合わせ |
![]() | 6階 | 75.64坪 | 非公開 | 非公開 | 即時 | 検討リスト お問い合わせ |
![]() | 3階 | 75.64坪 | 非公開 | 非公開 | 即時 | 検討リスト お問い合わせ |
※月額費用、坪単価 ともに共益費込・税別の価格です
山口ビル(墨田区、亀沢、両国、錦糸町)
- 所在地
- 東京都墨田区亀沢3-18-9
- 最寄り駅
- 両国駅徒歩9分、錦糸町駅徒歩14分、菊川駅徒歩17分
- 竣工
- 1990年
- 規模
- 地上4階
- 耐震基準
- 新耐震基準適合
- 駐車場設備
- 要確認
山口ビル の募集区画 (総募集面積 26.89坪)
※月額費用、坪単価 ともに共益費込・税別の価格です
菊川栄光ビル(墨田区、菊川、森下、住吉)
- 所在地
- 東京都墨田区菊川2-3-6
- 最寄り駅
- 菊川駅徒歩1分、森下駅徒歩11分、住吉駅徒歩12分
- 竣工
- 1993年
- 規模
- 地上10階
- 耐震基準
- 新耐震基準適合
- セキュリティ
- 機械警備(24時間監視)
- 駐車場設備
- 要確認
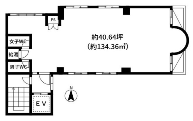
菊川栄光ビル の募集区画 (総募集面積 53.10坪)
| 図面 | 階数 | 坪数 | 月額費用 | 坪単価 | 入居可能日 | |
|---|---|---|---|---|---|---|
![]() | 5階 | 40.64坪 | 548,320円 | 13,492円 | 2026/3/下 | 検討リスト お問い合わせ |
![]() | 6階 | 12.46坪 | 181,980円 | 14,605円 | 相談 | 検討リスト お問い合わせ |
※月額費用、坪単価 ともに共益費込・税別の価格です
大こく屋第2ビル(墨田区、菊川、森下、住吉)
- 所在地
- 東京都墨田区菊川3-7-4
- 最寄り駅
- 菊川駅徒歩1分、森下駅徒歩10分、住吉駅徒歩15分
- 竣工
- 1989年
- 規模
- 地上6階
- 耐震基準
- 新耐震基準適合
- 駐車場設備
- 要確認
大こく屋第2ビル の募集区画 (総募集面積 46.25坪)
※月額費用、坪単価 ともに共益費込・税別の価格です
アドン菊川ビル(墨田区、菊川、森下、住吉)
- 所在地
- 東京都墨田区菊川3-17-2
- 最寄り駅
- 菊川駅徒歩1分、森下駅徒歩13分、住吉駅徒歩13分
- 竣工
- 1995年
- 規模
- 地上9階
- 耐震基準
- 新耐震基準適合
- セキュリティ
- 機械警備・有人管理(24時間体制)
- 駐車場設備
- 要確認
アドン菊川ビル の募集区画 (総募集面積 578.96坪)
※月額費用、坪単価 ともに共益費込・税別の価格です
菊川駅前ビル(墨田区、菊川、森下)
- 所在地
- 東京都墨田区菊川3-16-1
- 最寄り駅
- 菊川駅徒歩1分、森下駅徒歩12分
- 竣工
- 1980年
- 規模
- 地上3階
- 駐車場設備
- 要確認
菊川駅前ビル の募集区画 (総募集面積 12.10坪)
※月額費用、坪単価 ともに共益費込・税別の価格です
相互ビル(墨田区、錦糸、錦糸町、亀戸)
- 所在地
- 東京都墨田区錦糸4-16-17
- 最寄り駅
- 錦糸町駅徒歩5分、亀戸駅徒歩7分
- 竣工
- 1991年
- 規模
- 地上6階・地下1階
- 耐震基準
- 新耐震基準適合
- セキュリティ
- 機械警備(24時間監視)
- 駐車場設備
- 要確認
相互ビル の募集区画 (総募集面積 140.46坪)
※月額費用、坪単価 ともに共益費込・税別の価格です
アルカウエスト(墨田区、錦糸、錦糸町、両国)
- 所在地
- 東京都墨田区錦糸1-2-4
- 最寄り駅
- 錦糸町駅徒歩5分、両国駅徒歩14分、住吉駅徒歩20分
- 竣工
- 1997年
- 規模
- 地上22階・地下3階
- 耐震基準
- 新耐震基準適合
- セキュリティ
- 機械警備(24時間監視)
- 駐車場設備
- 要確認
アルカウエスト の募集区画 (総募集面積 185.87坪)
※月額費用、坪単価 ともに共益費込・税別の価格です
アルカセントラル(墨田区、錦糸、錦糸町、住吉)
- 所在地
- 東京都墨田区錦糸1-2-1
- 最寄り駅
- 錦糸町駅徒歩3分、住吉駅徒歩15分
- 竣工
- 1997年
- 規模
- 地上22階・地下3階
- 耐震基準
- 新耐震基準適合
- セキュリティ
- 機械警備(24時間監視)
- 駐車場設備
- 要確認
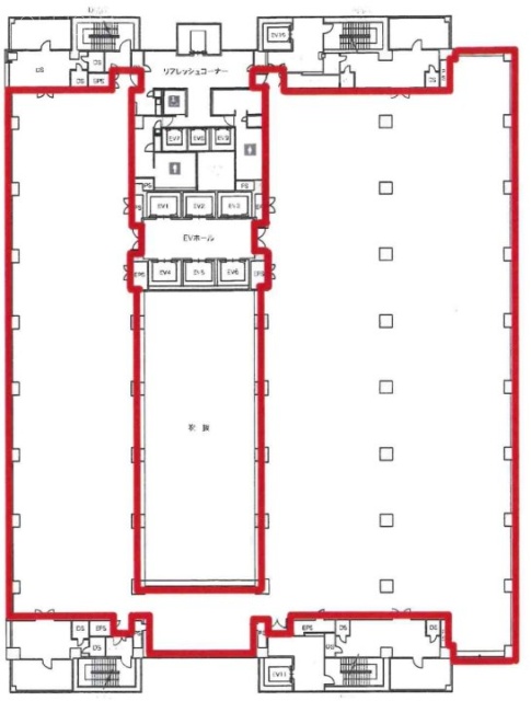
アルカセントラル の募集区画 (総募集面積 305.51坪)
| 図面 | 階数 | 坪数 | 月額費用 | 坪単価 | 入居可能日 | |
|---|---|---|---|---|---|---|
![]() | 18階 | 84.39坪 | 非公開 | 非公開 | 2026/3/1 | 検討リスト お問い合わせ |
![]() | 19階 | 84.39坪 | 非公開 | 非公開 | 即時 | 検討リスト お問い合わせ |
![]() | 15階 | 136.73坪 | 非公開 | 非公開 | 即時 | 検討リスト お問い合わせ |
※月額費用、坪単価 ともに共益費込・税別の価格です
ポプリプラザ(墨田区、錦糸、錦糸町)
- 所在地
- 東京都墨田区錦糸2-5-5
- 最寄り駅
- 錦糸町駅徒歩3分
- 竣工
- 2018年
- 規模
- 地上7階
- 耐震基準
- 新耐震基準適合
- 駐車場設備
- 要確認
ポプリプラザ の募集区画 (総募集面積 33.28坪)
※月額費用、坪単価 ともに共益費込・税別の価格です
金友堂ビル(墨田区、錦糸)
- 所在地
- 東京都墨田区錦糸1-4-13
- 竣工
- 1991年
- 規模
- 地上9階・地下1階
- 耐震基準
- 新耐震基準適合
- 駐車場設備
- 要確認
金友堂ビル の募集区画 (総募集面積 16.04坪)
※月額費用、坪単価 ともに共益費込・税別の価格です
ヤマキドノールビル(墨田区、錦糸、錦糸町)
- 所在地
- 東京都墨田区錦糸1-10-11
- 最寄り駅
- 錦糸町駅徒歩5分
- 竣工
- 1988年
- 規模
- 地上4階
- 耐震基準
- 新耐震基準適合
- 駐車場設備
- 要確認
ヤマキドノールビル の募集区画 (総募集面積 26.08坪)
※月額費用、坪単価 ともに共益費込・税別の価格です
ONEST錦糸町スクエア(墨田区、江東橋、錦糸町、住吉)
- 所在地
- 東京都墨田区江東橋2-3-7
- 最寄り駅
- 錦糸町駅徒歩6分、住吉駅徒歩10分、菊川駅徒歩16分
- 竣工
- 1992年
- 規模
- 地上9階・地下1階
- 耐震基準
- 新耐震基準適合
- セキュリティ
- 機械警備(24時間監視)
- 駐車場設備
- 有(平置き0台、機械式5台)
ONEST錦糸町スクエア の募集区画 (総募集面積 159.05坪)
※月額費用、坪単価 ともに共益費込・税別の価格です
協新ビル(墨田区、江東橋、錦糸町、亀戸)
- 所在地
- 東京都墨田区江東橋4-24-5
- 最寄り駅
- 錦糸町駅徒歩5分、亀戸駅徒歩12分、住吉駅徒歩13分
- 竣工
- 1991年
- 規模
- 地上9階
- 耐震基準
- 新耐震基準適合
- セキュリティ
- 機械警備(24時間監視)
- 駐車場設備
- 要確認
協新ビル の募集区画 (総募集面積 23.95坪)
※月額費用、坪単価 ともに共益費込・税別の価格です
あいおいニッセイ同和損保錦糸町ビル(墨田区、江東橋、錦糸町、亀戸)
- 所在地
- 東京都墨田区江東橋4-29-12
- 最寄り駅
- 錦糸町駅徒歩4分、亀戸駅徒歩12分、住吉駅徒歩20分
- 竣工
- 1995年
- 規模
- 地上10階
- 耐震基準
- 新耐震基準適合
- セキュリティ
- 機械警備(24時間監視)
- 駐車場設備
- 要確認
あいおいニッセイ同和損保錦糸町ビル の募集区画 (総募集面積 53.85坪)
※月額費用、坪単価 ともに共益費込・税別の価格です
三和ビル(墨田区、江東橋、錦糸町)
- 所在地
- 東京都墨田区江東橋2-2-3
- 最寄り駅
- 錦糸町駅徒歩6分
- 竣工
- 1989年
- 規模
- 地上9階
- 耐震基準
- 新耐震基準適合
- セキュリティ
- 機械警備(24時間監視)
- 駐車場設備
- 要確認
三和ビル の募集区画 (総募集面積 12.78坪)
※月額費用、坪単価 ともに共益費込・税別の価格です
グリーンプラザ錦糸町(墨田区、江東橋、錦糸町、住吉)
- 所在地
- 東京都墨田区江東橋2-5-1
- 最寄り駅
- 錦糸町駅徒歩6分、住吉駅徒歩11分、菊川駅徒歩16分
- 竣工
- 1997年
- 規模
- 地上12階
- 耐震基準
- 新耐震基準適合
- 駐車場設備
- 要確認
グリーンプラザ錦糸町 の募集区画 (総募集面積 14.18坪)
※月額費用、坪単価 ともに共益費込・税別の価格です
SAISEI錦糸町ビル(墨田区、太平、錦糸町、押上〈スカイツリー前〉)
- 所在地
- 東京都墨田区太平2-8-11
- 最寄り駅
- 錦糸町駅徒歩5分、押上〈スカイツリー前〉駅徒歩14分
- 竣工
- 1987年
- 規模
- 地上8階・地下1階
- 耐震基準
- 新耐震基準適合
- セキュリティ
- 機械警備・有人管理(24時間体制)
- 駐車場設備
- 要確認
SAISEI錦糸町ビル の募集区画 (総募集面積 239.80坪)
| 図面 | 階数 | 坪数 | 月額費用 | 坪単価 | 入居可能日 | |
|---|---|---|---|---|---|---|
![]() | 5階 | 86.85坪 | 非公開 | 非公開 | 即時 | 検討リスト お問い合わせ |
![]() | 7階 | 66.10坪 | 非公開 | 非公開 | 即時 | 検討リスト お問い合わせ |
![]() | 4階 | 86.85坪 | 非公開 | 非公開 | 即時 | 検討リスト お問い合わせ |
※月額費用、坪単価 ともに共益費込・税別の価格です
オリナスタワー(墨田区、太平、錦糸町、押上(スカイツリー前))
- 所在地
- 東京都墨田区太平4-1-3
- 最寄り駅
- 錦糸町駅徒歩3分、押上(スカイツリー前)駅徒歩15分、亀戸駅徒歩18分
- 竣工
- 2006年
- 規模
- 地上31階・地下2階
- 耐震基準
- 新耐震基準適合
- セキュリティ
- 機械警備(24時間監視)
- 駐車場設備
- 要確認
オリナスタワー の募集区画 (総募集面積 7.25坪)
※月額費用、坪単価 ともに共益費込・税別の価格です
マツミハイツ(墨田区、立川、菊川、住吉)
- 所在地
- 東京都墨田区立川4-13-1
- 最寄り駅
- 菊川駅徒歩5分、住吉駅徒歩12分、錦糸町駅徒歩18分
- 竣工
- 1991年
- 規模
- 地上6階
- 耐震基準
- 新耐震基準適合
- 駐車場設備
- 要確認
マツミハイツ の募集区画 (総募集面積 37.02坪)
※月額費用、坪単価 ともに共益費込・税別の価格です
TANAKAビル(墨田区、千歳、両国、森下)
- 所在地
- 東京都墨田区千歳1-6-1
- 最寄り駅
- 両国駅徒歩8分、森下駅徒歩12分
- 竣工
- 1971年
- 規模
- 地上6階
- 耐震基準
- 新耐震基準適合
- 駐車場設備
- 要確認
TANAKAビル の募集区画 (総募集面積 18.53坪)
※月額費用、坪単価 ともに共益費込・税別の価格です
リバーサイド隅田(墨田区、堤通、東向島、曳舟)
- 所在地
- 東京都墨田区堤通1-19-9
- 最寄り駅
- 東向島駅徒歩10分、曳舟駅徒歩21分、南千住駅徒歩22分
- 竣工
- 1994年
- 規模
- 地上33階・地下2階
- 耐震基準
- 新耐震基準適合
- セキュリティ
- 機械警備・有人管理(24時間体制)
- 駐車場設備
- 要確認
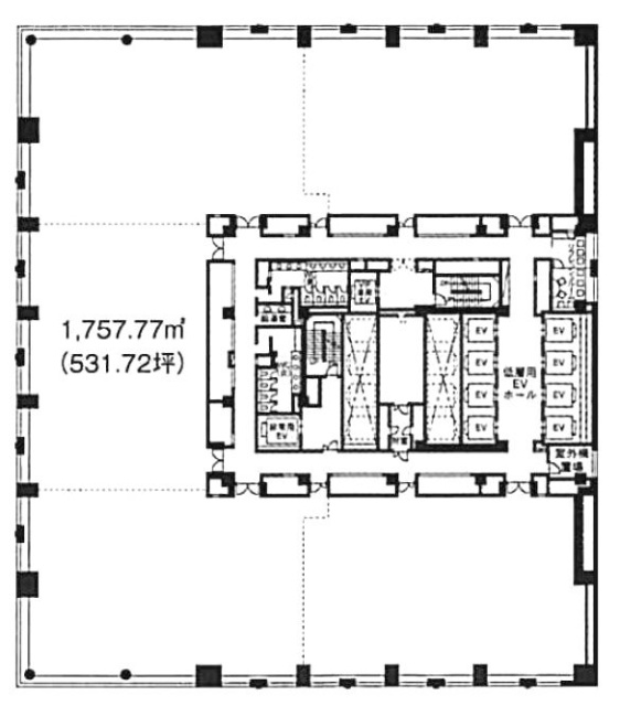
リバーサイド隅田 の募集区画 (総募集面積 3,125.01坪)
| 図面 | 階数 | 坪数 | 月額費用 | 坪単価 | 入居可能日 | |
|---|---|---|---|---|---|---|
![]() | 6階 | 393.94坪 | 非公開 | 非公開 | 即時 | 検討リスト お問い合わせ |
![]() | 7階 | 617.62坪 | 非公開 | 非公開 | 即時 | 検討リスト お問い合わせ |
![]() | 11階 | 592.40坪 | 非公開 | 非公開 | 2025/12/16 | 検討リスト お問い合わせ |
![]() | 12階 | 592.40坪 | 非公開 | 非公開 | 即時 | 検討リスト お問い合わせ |
![]() | 1階 | 29.85坪 | 非公開 | 非公開 | 相談 | 検討リスト お問い合わせ |
![]() | 4階 | 196.60坪 | 非公開 | 非公開 | 即時 | 検討リスト お問い合わせ |
![]() | 10階 | 281.14坪 | 非公開 | 非公開 | 即時 | 検討リスト お問い合わせ |
![]() | 4階 | 421.06坪 | 非公開 | 非公開 | 2025/12/16 | 検討リスト お問い合わせ |
※月額費用、坪単価 ともに共益費込・税別の価格です
GS押上ビル(墨田区、業平、押上〈スカイツリー前〉)
- 所在地
- 東京都墨田区業平4-14-6
- 最寄り駅
- 押上〈スカイツリー前〉駅徒歩2分
- 竣工
- 1991年
- 規模
- 地上5階
- 耐震基準
- 新耐震基準適合
- セキュリティ
- 機械警備(24時間監視)
- 駐車場設備
- 要確認
GS押上ビル の募集区画 (総募集面積 72.95坪)
※月額費用、坪単価 ともに共益費込・税別の価格です
JU SKY CRYSTAL OSHIAGE(墨田区、業平、押上〈スカイツリー前〉)
- 所在地
- 東京都墨田区業平1-21-10
- 最寄り駅
- 押上〈スカイツリー前〉駅徒歩2分
- 竣工
- 2025年
- 規模
- 地上8階
- 耐震基準
- 新耐震基準適合
- 駐車場設備
- 要確認
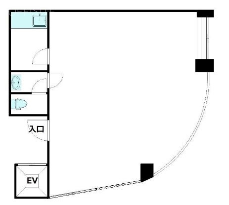
JU SKY CRYSTAL OSHIAGE の募集区画 (総募集面積 46.89坪)
| 図面 | 階数 | 坪数 | 月額費用 | 坪単価 | 入居可能日 | |
|---|---|---|---|---|---|---|
準備中 | 1階 | 15.63坪 | 742,425円 | 47,500円 | 2025/9 | 検討リスト お問い合わせ |
準備中 | 2階 | 15.63坪 | 586,125円 | 37,500円 | 2025/9 | 検討リスト お問い合わせ |
準備中 | 3階 | 15.63坪 | 507,975円 | 32,500円 | 2025/9 | 検討リスト お問い合わせ |
※月額費用、坪単価 ともに共益費込・税別の価格です
墨田区は、東京のシンボル、東京スカイツリーがそびえ立つ、今最も注目を集めるエリアの一つです。近年、オフィスエリアとしても急速に発展しており、その魅力は枚挙にいとまがありません。
東京スカイツリーを中心に、大型商業施設や個性的なショップが立ち並び、常に活気に満ち溢れています。一方で、昔ながらの下町情緒も色濃く残り、新旧の文化が融合した、他に類を見ない魅力的な街並みを形成しています。この独特の雰囲気が、働く人々に新たなインスピレーションを与え、企業の創造性を刺激します。
JRや地下鉄など、複数の路線が利用でき、都内主要エリアへのアクセスも非常にスムーズです。特に、錦糸町エリアは、JR総武線、東京メトロ半蔵門線が利用でき、交通の要衝となっています。ビジネスの拠点として、これ以上ないほどの利便性を誇ります。
錦糸町エリアの代表的なオフィスビルはアルカセントラルです、駅近の大規模複合ビル。オフィフロアだけでなく、商業施設も充実しており、利便性が高い。
オリナス錦糸町はオフィス棟、商業施設、住宅棟からなる複合再開発プロジェクトであり洗練されたデザインと充実した機能が魅力です。
押上エリアの東京スカイツリーイーストタワーは東京スカイツリータウン内にあるオフィスビルで高層階からの眺望は圧巻。
墨田区は、中小企業や起業家向けの支援制度が充実しています。オフィス開設や事業運営に関する相談窓口も設けられており、安心してビジネスをスタートできる環境が整っています。また、地域コミュニティも活発で、企業間の交流も盛んです、ぜひ一度、墨田区の賃貸オフィスをご検討ください。



























































































































































































































































































































































