東京ファッションタウン(TFTビル東館)(江東区、有明、東京ビッグサイト、国際展示場) の賃貸オフィス情報

- 所在地
- 東京都江東区有明3-6-11
- 最寄り駅
- 東京ビッグサイト駅徒歩1分、国際展示場駅徒歩2分、東京テレポート駅徒歩10分
- 竣工
- 1996年
- 規模
- 地上9階・地下1階
- 構造
- SRC造(鉄骨鉄筋コンクリート造)
- 耐震基準
- 新耐震基準適合
- セキュリティ
- 機械警備(24時間監視)
- エントランス
- 平日開放
- エレベーター総数
- 22基
- 駐車場設備
- 有
東京ファッションタウンビル東館は、東京湾岸エリアを代表する大規模オフィスビルとして、ビジネスの拠点に最適な条件が揃っています。駅直結のアクセスや広大なオフィス空間、充実した共用設備、バラエティ豊かなテナント構成が、日々の業務効率と快適性を両立。会議室やホールも利用できるため、社内外のイベントや研修にも幅広く活用できます。周辺には公園や商業施設も多く、働く人のワークライフバランス向上に貢献する環境です。多様なビジネスシーンで優れたパフォーマンスを発揮したい企業におすすめです。
東京ファッションタウン(TFTビル東館) の募集区画 (総募集面積 1,744.12坪)
※月額費用、坪単価 ともに共益費込・税別の価格です
地図
東京都江東区有明3-6-11 地図をクリックして拡大できます
東京ファッションタウン(TFTビル東館) の外観イメージ
東京ファッションタウンビル東館は、ガラスとメタリックなパネルを多用した現代的な外観が印象的です。直線的なフォルムと広大なファサードが、ビジネスエリアとしての存在感を際立たせています。外壁は明るいグレーを基調とし、光を受けて上品な輝きを放ちます。アトリウムやオープンデッキ、屋内滝「シャワーツリー35」など、都市型オフィスビルにふさわしい洗練されたデザインが特徴です。













東京ファッションタウン(TFTビル東館) の周辺イメージ
2階にはレストラン街やコンビニ、銀行、郵便局、クリニックなど多彩なテナントが集まり、日常の利便性が高い点が特長です。1階・2階には物販店や飲食店が並び、ランチや急な買い物にも便利。隣接するシンボルプロムナード公園や東京ビッグサイト、ワンザ有明ベイモールなど大型施設も至近。ビジネス、イベント、ショッピングと多面的に活用できる環境が整っています。

東京ファッションタウン(TFTビル東館) の主な入居テナント
株式会社リツビメディカランド株式会社株式会社ウェッブアイ株式会社システム・エンジニアリング・クリエイト株式会社アセットライフ 東京営業所NEUSOFT Japan 株式会社株式会社プロコムインターナショナル
東京ファッションタウン(TFTビル東館) の募集終了区画
| 図面 | 階数 | 坪数 | 月額費用 | 坪単価 | 入居可能日 | |
|---|---|---|---|---|---|---|
![]() | 1階 | 22.90坪 | - | - | 募集終了 | 検討リスト |
![]() | 1階 | 22.96坪 | - | - | 募集終了 | 検討リスト |
![]() | 1階 | 22.07坪 | - | - | 募集終了 | 検討リスト |
![]() | 1階 | 42.28坪 | - | - | 募集終了 | 検討リスト |
![]() | 2階 | 12.33坪 | - | - | 募集終了 | 検討リスト |
![]() | 2階 | 13.03坪 | - | - | 募集終了 | 検討リスト |
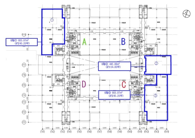
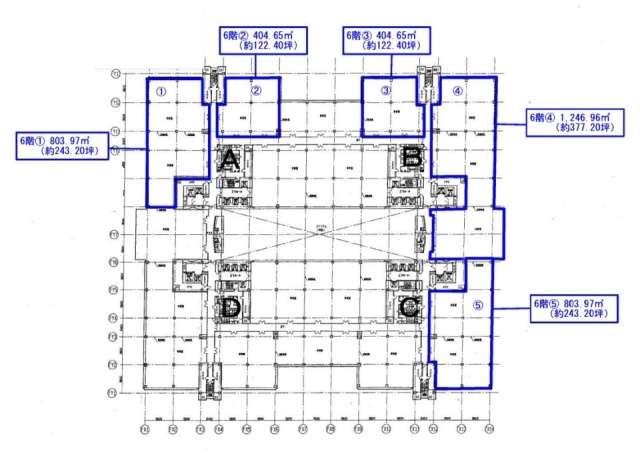
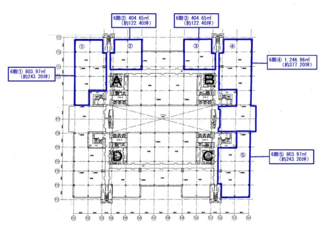
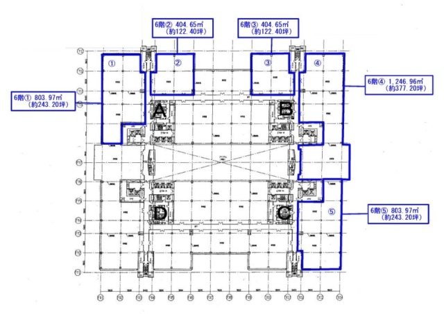
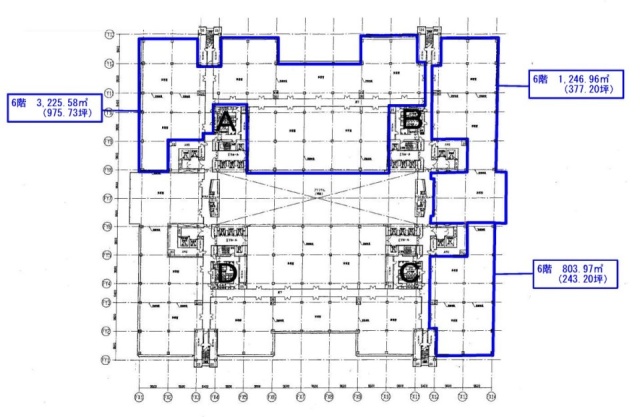
![]() | 6階 | 243.20坪 | - | - | 募集終了 | 検討リスト |
![]() | 6階 | 134.00坪 | - | - | 募集終了 | 検討リスト |
![]() | 6階 | 122.40坪 | - | - | 募集終了 | 検討リスト |
![]() | 6階 | 377.20坪 | - | - | 募集終了 | 検討リスト |
![]() | 6階 | 243.20坪 | - | - | 募集終了 | 検討リスト |
![]() | 6階 | 975.73坪 | - | - | 募集終了 | 検討リスト |
![]() | 6階 | 620.40坪 | - | - | 募集終了 | 検討リスト |
![]() | 6階 | 630.79坪 | - | - | 募集終了 | 検討リスト |
![]() | 6階 | 716.04坪 | - | - | 募集終了 | 検討リスト |
![]() | 6階 | 620.40坪 | - | - | 募集終了 | 検討リスト |
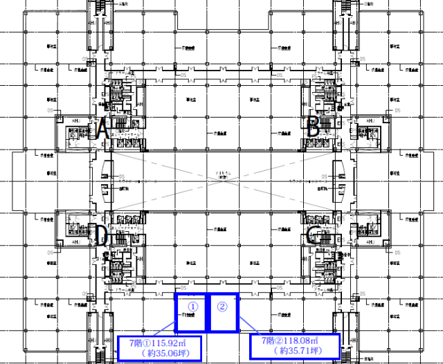
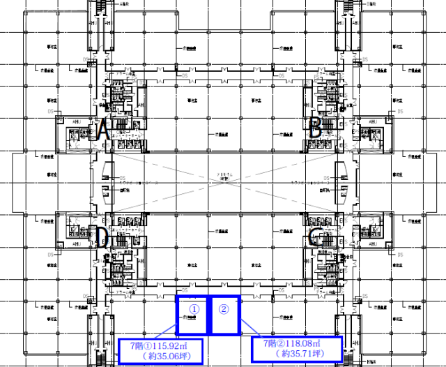
![]() | 7階 | 35.06坪 | - | - | 募集終了 | 検討リスト |
![]() | 7階 | 35.71坪 | - | - | 募集終了 | 検討リスト |
![]() | 7階 | 201.37坪 | - | - | 募集終了 | 検討リスト |
![]() | 7階 | 231.44坪 | - | - | 募集終了 | 検討リスト |
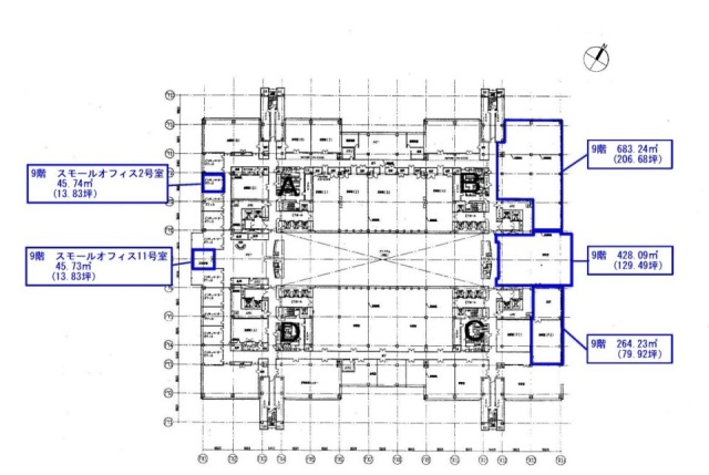
![]() | 8階 | 129.49坪 | - | - | 募集終了 | 検討リスト |
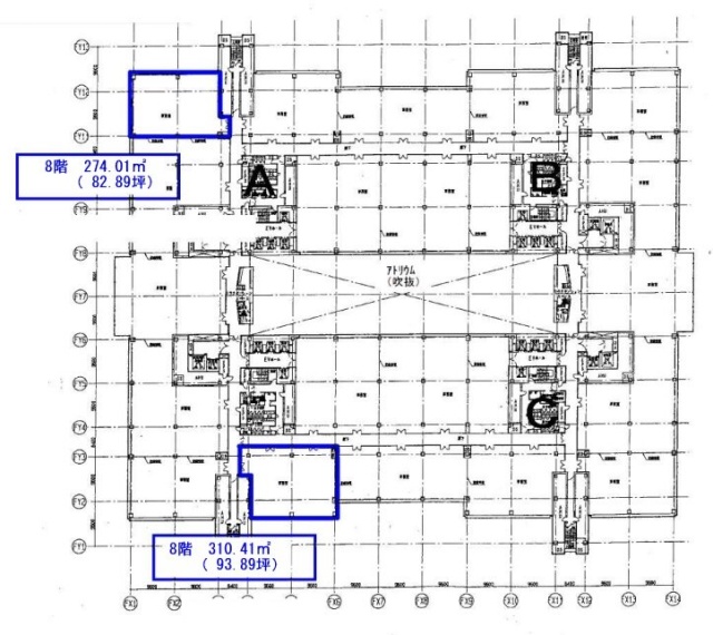
![]() | 8階 | 82.88坪 | - | - | 募集終了 | 検討リスト |
![]() | 8階 | 132.62坪 | - | - | 募集終了 | 検討リスト |
![]() | 8階 | 132.62坪 | - | - | 募集終了 | 検討リスト |
![]() | 8階 | 35.71坪 | - | - | 募集終了 | 検討リスト |
![]() | 8階 | 133.84坪 | - | - | 募集終了 | 検討リスト |
![]() | 8階 | 93.89坪 | - | - | 募集終了 | 検討リスト |
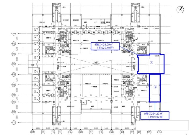
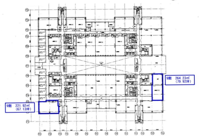
![]() | 9階 | 129.49坪 | - | - | 募集終了 | 検討リスト |
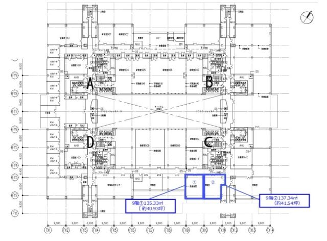
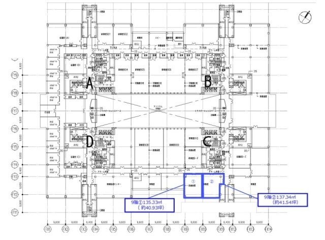
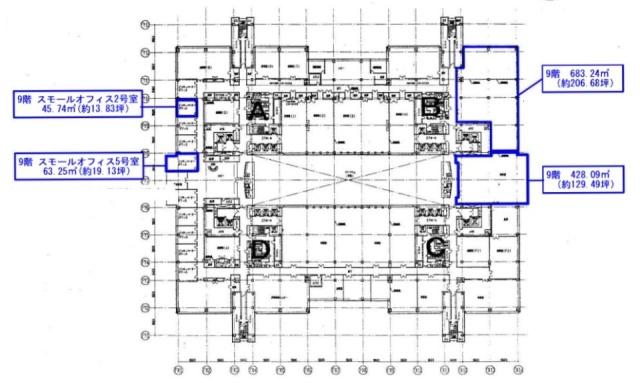
![]() | 9階 | 40.93坪 | - | - | 募集終了 | 検討リスト |
![]() | 9階 | 79.92坪 | - | - | 募集終了 | 検討リスト |
![]() | 9階 | 41.54坪 | - | - | 募集終了 | 検討リスト |
![]() | 9階 | 336.17坪 | - | - | 募集終了 | 検討リスト |
![]() | 9階 | 206.68坪 | - | - | 募集終了 | 検討リスト |
![]() | 9階 | 67.13坪 | - | - | 募集終了 | 検討リスト |
![]() | 9階 | 13.83坪 | - | - | 募集終了 | 検討リスト |
近くの物件紹介
江東区のエリア
近くの駅
| 取扱態様 | 仲介 |
|---|---|
| 取扱会社 | 株式会社アドマイアー 東京都中央区日本橋3-2-3ユニバース第1ビル2F TEL. 03-5204-1031 宅地建物取引業免許 東京都知事(3)第94663号 マンション管理業免許 国土交通大臣(2)第034224号 賃貸住宅管理業免許 国土交通大臣(01)第005938号 |
















































