神田システムビル(千代田区、神田紺屋町、神田、新日本橋) の賃貸オフィス情報

- 所在地
- 東京都千代田区神田紺屋町7-3
- 最寄り駅
- 神田駅徒歩5分
- 竣工
- 1990年1月
- 規模
- 地上9階・地下1階
- 構造
- SRC
- 耐震基準
- 新耐震基準
- セキュリティ
- 有人管理+機械警備
- エントランス
- 平日開放
- エレベーター総数
- 2基
- 駐車場設備
- あり
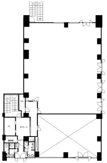
- 基準階坪数
- 139.37坪
ビジネスの未来を拓く、洗練されたオフィス空間、「神田システムビル」が、東京・神田というビジネスの最前線で、変化の激しい現代ビジネスシーンをリードする企業にとって、まさに「システム」の中枢となるべく存在しています。その名の通り、先進的な設備と機能性を備えたこのビルは、神田駅をはじめとする複数路線からのアクセスも抜群であり、都内主要ビジネスエリアへのスムーズな移動を実現し、貴社のビジネス展開を強力にサポートします。
神田システムビルディングは、東京都千代田区神田紺屋町7-2に位置し、1990年1月に竣工しました。鉄骨鉄筋コンクリート造(SRC)で堅牢に建てられており、新耐震基準に適合しているため、地震の際にも入居企業の安全をしっかりと確保します。環境性能については、詳細な認証情報は確認できませんでしたが、省エネルギー設備などが導入され、環境負荷低減にも配慮されています。
地上9階、地下1階建ての神田システムビルディングは、基準階面積が460.72㎡ (139.37坪)、総賃貸面積は4,860.74㎡ (1,470.37坪)を誇ります。オフィスフロアの天井高は2,570mm、床荷重は500kg/㎡となっており、配線やネットワークを床下に収納可能なOAフロアを完備。煩雑になりがちなオフィス環境をスマートに保ちます。また、個別空調システムを採用しているため、各テナント企業がそれぞれのニーズに合わせて温度設定を調整でき、快適なオフィス環境を実現します。スムーズなフロア移動をサポートする乗用エレベーターが2基設置されており、各フロアには男女別トイレと給湯室が完備されています。共用部には、洗練されたデザインのエントランスと広々としたロビーがあり、来訪者の受付や簡単な打ち合わせスペースとしても活用できます。さらに、機械式立体駐車場も完備しています。セキュリティ面では、機械警備システムが導入され、24時間体制で入居企業の安全を守ります。万が一の災害に備え、防災センターも設置されています。
立地に関しても、神田システムビルは非常に恵まれています。JR山手線・京浜東北線・中央線の「神田」駅からは徒歩5分、東京メトロ銀座線の「神田」駅からは徒歩5分、JR総武本線の「新日本橋」駅からは徒歩5分、都営新宿線の「岩本町」駅からは徒歩6分と、複数路線が利用可能です。神田駅周辺には、多様な飲食店やコンビニエンスストア、金融機関などが集積しており、ビジネスに必要なあらゆるものが揃います。また、郵便局や病院なども近くにあり、安心してオフィスを構えることができます。神田は古くから商業の中心地として栄え、現在も多くの企業が集まるビジネス街であり、交通アクセスも優れているため、都内各所への移動がスムーズで、ビジネス拠点として非常に魅力的なエリアです。主要ビジネスエリアへのアクセスも良好で、大手町へは約5分、東京駅へは約2分、日本橋へは徒歩圏内または電車で1駅、丸の内へは約3分、渋谷へは約20分、新宿へは約15分と、いずれも短時間でアクセス可能です。
神田システムビルに関する直接的な歴史的背景や文化的意義に関する情報は確認できませんでしたが、神田エリア自体が持つ豊かな歴史と文化は、ビジネスを行う上での魅力の一つと言えるでしょう。古くからの商業の歴史を受け継ぎつつ、新しいビジネスも次々と生まれる活気ある街、それが神田です。
こんな企業におすすめしたいのは、まず多様なアクセスを重視する企業です。JR、東京メトロ、都営地下鉄の複数路線が利用可能であるため、都内広範囲からの通勤に便利であり、営業拠点や支店など、多くの従業員が出入りするオフィスに最適です。次に、活気あるビジネス街で事業展開したい企業にもおすすめです。神田というビジネスの中心地に位置し、周辺には多くの企業が集積しているため、金融、IT、コンサルティングなど、多様な業種の企業にとってビジネスチャンスを広げる好立地と言えるでしょう。また、機能性と快適性を両立したオフィス環境を求める企業にも適しています。個別空調、OAフロア、男女別トイレなど、オフィスワーカーにとって快適な環境が整っており、創造性を高め、生産性向上を重視する企業におすすめです。スタートアップや中小企業にとっても、基準階面積が比較的広く、レイアウトの自由度が高いため、企業の成長に合わせて柔軟なオフィス設計が可能です。さらに、機械式駐車場を利用する企業にもおすすめです。28台収容可能な駐車場を完備しており、社用車を多く所有する企業や、顧客を頻繁に訪問する企業にとって利便性の高いオフィスです。
神田システムビルは、単なるオフィススペースを提供するだけでなく、ビジネスの成長を力強く後押しする基盤となることを目指しています。駅近の好立地は、従業員の通勤だけでなく、顧客やビジネスパートナーの訪問にも便利です。快適なオフィス環境を実現する個別空調やOAフロアなどの機能的な設備、そして24時間体制の機械警備による安心のセキュリティが、ビジネスを支えます。周辺には、飲食店、コンビニエンスストア、金融機関など、ビジネスに必要な施設が充実しており、利便性の高いオフィス環境と言えるでしょう。神田システムビルは、機能性、利便性、そして快適性を兼ね備えたオフィスビルとして、貴社のビジネスの発展を強力にサポートいたします。ぜひ一度、その魅力を体感してください。
神田システムビルディングは、東京都千代田区神田紺屋町7-2に位置し、1990年1月に竣工しました。鉄骨鉄筋コンクリート造(SRC)で堅牢に建てられており、新耐震基準に適合しているため、地震の際にも入居企業の安全をしっかりと確保します。環境性能については、詳細な認証情報は確認できませんでしたが、省エネルギー設備などが導入され、環境負荷低減にも配慮されています。
地上9階、地下1階建ての神田システムビルディングは、基準階面積が460.72㎡ (139.37坪)、総賃貸面積は4,860.74㎡ (1,470.37坪)を誇ります。オフィスフロアの天井高は2,570mm、床荷重は500kg/㎡となっており、配線やネットワークを床下に収納可能なOAフロアを完備。煩雑になりがちなオフィス環境をスマートに保ちます。また、個別空調システムを採用しているため、各テナント企業がそれぞれのニーズに合わせて温度設定を調整でき、快適なオフィス環境を実現します。スムーズなフロア移動をサポートする乗用エレベーターが2基設置されており、各フロアには男女別トイレと給湯室が完備されています。共用部には、洗練されたデザインのエントランスと広々としたロビーがあり、来訪者の受付や簡単な打ち合わせスペースとしても活用できます。さらに、機械式立体駐車場も完備しています。セキュリティ面では、機械警備システムが導入され、24時間体制で入居企業の安全を守ります。万が一の災害に備え、防災センターも設置されています。
立地に関しても、神田システムビルは非常に恵まれています。JR山手線・京浜東北線・中央線の「神田」駅からは徒歩5分、東京メトロ銀座線の「神田」駅からは徒歩5分、JR総武本線の「新日本橋」駅からは徒歩5分、都営新宿線の「岩本町」駅からは徒歩6分と、複数路線が利用可能です。神田駅周辺には、多様な飲食店やコンビニエンスストア、金融機関などが集積しており、ビジネスに必要なあらゆるものが揃います。また、郵便局や病院なども近くにあり、安心してオフィスを構えることができます。神田は古くから商業の中心地として栄え、現在も多くの企業が集まるビジネス街であり、交通アクセスも優れているため、都内各所への移動がスムーズで、ビジネス拠点として非常に魅力的なエリアです。主要ビジネスエリアへのアクセスも良好で、大手町へは約5分、東京駅へは約2分、日本橋へは徒歩圏内または電車で1駅、丸の内へは約3分、渋谷へは約20分、新宿へは約15分と、いずれも短時間でアクセス可能です。
神田システムビルに関する直接的な歴史的背景や文化的意義に関する情報は確認できませんでしたが、神田エリア自体が持つ豊かな歴史と文化は、ビジネスを行う上での魅力の一つと言えるでしょう。古くからの商業の歴史を受け継ぎつつ、新しいビジネスも次々と生まれる活気ある街、それが神田です。
こんな企業におすすめしたいのは、まず多様なアクセスを重視する企業です。JR、東京メトロ、都営地下鉄の複数路線が利用可能であるため、都内広範囲からの通勤に便利であり、営業拠点や支店など、多くの従業員が出入りするオフィスに最適です。次に、活気あるビジネス街で事業展開したい企業にもおすすめです。神田というビジネスの中心地に位置し、周辺には多くの企業が集積しているため、金融、IT、コンサルティングなど、多様な業種の企業にとってビジネスチャンスを広げる好立地と言えるでしょう。また、機能性と快適性を両立したオフィス環境を求める企業にも適しています。個別空調、OAフロア、男女別トイレなど、オフィスワーカーにとって快適な環境が整っており、創造性を高め、生産性向上を重視する企業におすすめです。スタートアップや中小企業にとっても、基準階面積が比較的広く、レイアウトの自由度が高いため、企業の成長に合わせて柔軟なオフィス設計が可能です。さらに、機械式駐車場を利用する企業にもおすすめです。28台収容可能な駐車場を完備しており、社用車を多く所有する企業や、顧客を頻繁に訪問する企業にとって利便性の高いオフィスです。
神田システムビルは、単なるオフィススペースを提供するだけでなく、ビジネスの成長を力強く後押しする基盤となることを目指しています。駅近の好立地は、従業員の通勤だけでなく、顧客やビジネスパートナーの訪問にも便利です。快適なオフィス環境を実現する個別空調やOAフロアなどの機能的な設備、そして24時間体制の機械警備による安心のセキュリティが、ビジネスを支えます。周辺には、飲食店、コンビニエンスストア、金融機関など、ビジネスに必要な施設が充実しており、利便性の高いオフィス環境と言えるでしょう。神田システムビルは、機能性、利便性、そして快適性を兼ね備えたオフィスビルとして、貴社のビジネスの発展を強力にサポートいたします。ぜひ一度、その魅力を体感してください。
神田システムビル の募集区画 (総募集面積 0.00坪)
現在募集はありません。
地図
東京都千代田区神田紺屋町7-3 地図をクリックして拡大できます
神田システムビル の外観イメージ
神田システムビル(千代田区神田紺屋町)の外観は、ガラスカーテンウォールとグレーのタイル張りを組み合わせたモダンで洗練されたデザインが特徴です。神田金物通りに面した立地にありながら、落ち着いた雰囲気を持つビルで、ビジネス街にふさわしい外観を備えています。ガラス素材が光を反射し、高級感と機能性を兼ね備えた印象を与えます。









神田システムビル の周辺イメージ
神田システムビル(千代田区神田紺屋町)周辺は、ビジネス街として人気の高いエリアです。徒歩圏内には多くの飲食店やカフェが点在しており、ランチタイムや会食にも便利です。また、新日本橋駅や秋葉原駅も近く、多方面へのアクセスが良好です。さらに、大型商業施設や銀行支店も近隣にあり、日常的な利便性が高い環境です。神田エリアはIT企業やスタートアップ企業も多く進出しており、活気あふれるビジネス環境が魅力です。


神田システムビル の主な入居テナント
神田システムビル の募集終了区画
近くの物件紹介
千代田区のエリア
近くの駅
取扱態様 | 仲介 |
---|---|
取扱会社 | 株式会社アドマイアー 東京都中央区日本橋3-2-3ユニバース第1ビル2F TEL. 03-5204-1031 宅地建物取引業免許 東京都知事(3)第94663号 マンション管理業免許 国土交通大臣(2)第034224号 賃貸住宅管理業免許 国土交通大臣(01)第005938号 |