丸の内郵船ビルディング(千代田区、丸の内、二重橋前、大手町) の賃貸オフィス情報

- 所在地
- 東京都千代田区丸の内2-3-2
- 最寄り駅
- 二重橋前駅徒歩1分、大手町駅徒歩1分、東京駅徒歩3分
- 竣工
- 1978年
- 規模
- 地上15階・地下3階
- 構造
- SRC造(鉄骨鉄筋コンクリート造)
- 耐震基準
- 耐震補強済み(新耐震相当)
- セキュリティ
- 有人管理(警備員常駐)
- エントランス
- 平日開放
- エレベーター総数
- 14基
- 駐車場設備
- 要確認
- 設備
- 24時間(要ICカード)、 防災センター
ビジネスの核心、千代田区丸の内。その一等地で、企業の歴史と未来を支え続ける「郵船ビルディング」は、まさにプレミアムオフィスと呼ぶにふさわしい存在です。1978年2月に竣工し、2009年の大規模リニューアルを経て、現代のビジネスニーズに応えるための機能性と快適性を向上させました。東京都千代田区丸の内二丁目3番2号に位置するこのビルは、鉄骨鉄筋コンクリート造の新耐震基準適合診断済みの堅牢な構造を誇ります。
「丸の内郵船ビルディング」へのアクセスは、まさにビジネスにおけるアドバンテージです。東京メトロ千代田線「二重橋前駅」7番出口より徒歩1分、都営地下鉄三田線「大手町駅」7番出口より徒歩1分、そしてJR「東京駅」地下通路経由で徒歩3分、東京メトロ丸ノ内線「東京駅」地下通路経由で徒歩2分という、複数の主要駅が利用可能です。JR山手線、京浜東北線、中央線、東海道線、横須賀線、京葉線、新幹線各線「東京駅」、東京メトロ丸ノ内線「東京駅」、東京メトロ千代田線「二重橋前駅」、都営地下鉄三田線「大手町駅」といった豊富な路線が利用できるため、従業員の通勤利便性はもとより、国内外へのビジネス展開を力強くサポートします。大手町エリアへは徒歩すぐ、日本橋エリアへは東京駅から電車で約5分、銀座エリアへも同様に約5分、渋谷エリアへは約20分、新宿エリアへは約15分と、主要ビジネスエリアへのアクセスもスムーズです。
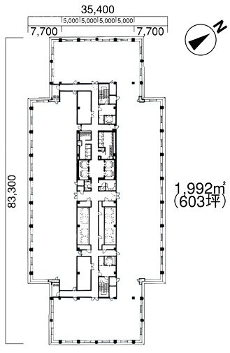
地上15階、地下3階建ての「丸の内郵船ビルディング」は、基準階面積781.96坪(約2,585㎡)の広大なオフィス空間を提供します。オフィスフロアは、6ユニット単一ダクト方式及びファンコイル、ユニット方式併用、丸の内地域冷暖房蒸気使用の空調システムを備え、快適な執務環境を実現します。一般乗用エレベーター12基、非常用エレベーター2基がスムーズな移動をサポートし、各フロアには男女別トイレと電気温水器が設置された給湯室が完備されています。
共用部も充実しており、洗練されたエントランスと広々としたロビーが来訪者を迎え、テナント専用のコンビニエンスストア(セブンイレブン)が日々の利便性を高めます。貸会議室も用意されており、社内外の会議や打ち合わせに活用できます。セキュリティ面では、24時間有人警備体制と機械警備システムが導入されており、入居企業の安全・安心を確保します。万が一の事態に備え、防災センターと備蓄倉庫が設置されており、一部屋上緑化も施されています。
「丸の内郵船ビルディング」の周辺には、丸ビル、新丸ビル、JPタワーなどの商業施設をはじめ、三菱UFJ銀行、みずほ銀行などの金融機関、東京中央郵便局、NTT東日本関東病院、そして緑豊かな皇居や日比谷公園などが徒歩圏内に存在します。日本を代表するビジネス街という地域特性が、企業の活動を力強く後押しします。
この「丸の内郵船ビルディング」は、グローバルにビジネスを展開する企業、高い企業ブランドを求める企業、多様な交通手段を利用する従業員が多い企業、大規模なオフィス空間を必要とする企業、そして最新のオフィス環境と充実した共用施設を求める企業に特におすすめです。東京駅からのアクセスは新幹線や空港へのアクセスも容易であり、丸の内というアドレス、そして「郵船」というブランドは、企業の信頼性とステータスを高めます。複数路線が利用可能で駅からのアクセスも抜群なため、従業員の通勤利便性が非常に高く、基準階面積が広く、部署間の連携や拡張にも柔軟に対応できます。リニューアルされた快適なオフィス空間に加え、テナント専用のコンビニエンスストアなど、利便性の高い共用施設が利用可能です。
「「丸の内郵船ビルディング」」は、日本の海運業を牽引してきた日本郵船の本社ビルとして、この地に歴史を刻んできました。初代ビルは1923年に竣工し、現在のビルは二代目であり、その歴史を受け継ぎながら、時代の変化に対応したオフィス環境を提供しています。周辺のオフィスビル群と調和した落ち着いた外観を持ち、丸の内の洗練された景観を形成しており、2009年の大規模改修時に、省エネルギー性能の向上やリサイクル素材の利用などが考慮されたと考えられます。一部屋上緑化も実施されています。賃貸事務所をお探しの企業様、ぜひ一度「丸の内郵船ビルディング」をご検討ください。
「丸の内郵船ビルディング」へのアクセスは、まさにビジネスにおけるアドバンテージです。東京メトロ千代田線「二重橋前駅」7番出口より徒歩1分、都営地下鉄三田線「大手町駅」7番出口より徒歩1分、そしてJR「東京駅」地下通路経由で徒歩3分、東京メトロ丸ノ内線「東京駅」地下通路経由で徒歩2分という、複数の主要駅が利用可能です。JR山手線、京浜東北線、中央線、東海道線、横須賀線、京葉線、新幹線各線「東京駅」、東京メトロ丸ノ内線「東京駅」、東京メトロ千代田線「二重橋前駅」、都営地下鉄三田線「大手町駅」といった豊富な路線が利用できるため、従業員の通勤利便性はもとより、国内外へのビジネス展開を力強くサポートします。大手町エリアへは徒歩すぐ、日本橋エリアへは東京駅から電車で約5分、銀座エリアへも同様に約5分、渋谷エリアへは約20分、新宿エリアへは約15分と、主要ビジネスエリアへのアクセスもスムーズです。
地上15階、地下3階建ての「丸の内郵船ビルディング」は、基準階面積781.96坪(約2,585㎡)の広大なオフィス空間を提供します。オフィスフロアは、6ユニット単一ダクト方式及びファンコイル、ユニット方式併用、丸の内地域冷暖房蒸気使用の空調システムを備え、快適な執務環境を実現します。一般乗用エレベーター12基、非常用エレベーター2基がスムーズな移動をサポートし、各フロアには男女別トイレと電気温水器が設置された給湯室が完備されています。
共用部も充実しており、洗練されたエントランスと広々としたロビーが来訪者を迎え、テナント専用のコンビニエンスストア(セブンイレブン)が日々の利便性を高めます。貸会議室も用意されており、社内外の会議や打ち合わせに活用できます。セキュリティ面では、24時間有人警備体制と機械警備システムが導入されており、入居企業の安全・安心を確保します。万が一の事態に備え、防災センターと備蓄倉庫が設置されており、一部屋上緑化も施されています。
「丸の内郵船ビルディング」の周辺には、丸ビル、新丸ビル、JPタワーなどの商業施設をはじめ、三菱UFJ銀行、みずほ銀行などの金融機関、東京中央郵便局、NTT東日本関東病院、そして緑豊かな皇居や日比谷公園などが徒歩圏内に存在します。日本を代表するビジネス街という地域特性が、企業の活動を力強く後押しします。
この「丸の内郵船ビルディング」は、グローバルにビジネスを展開する企業、高い企業ブランドを求める企業、多様な交通手段を利用する従業員が多い企業、大規模なオフィス空間を必要とする企業、そして最新のオフィス環境と充実した共用施設を求める企業に特におすすめです。東京駅からのアクセスは新幹線や空港へのアクセスも容易であり、丸の内というアドレス、そして「郵船」というブランドは、企業の信頼性とステータスを高めます。複数路線が利用可能で駅からのアクセスも抜群なため、従業員の通勤利便性が非常に高く、基準階面積が広く、部署間の連携や拡張にも柔軟に対応できます。リニューアルされた快適なオフィス空間に加え、テナント専用のコンビニエンスストアなど、利便性の高い共用施設が利用可能です。
「「丸の内郵船ビルディング」」は、日本の海運業を牽引してきた日本郵船の本社ビルとして、この地に歴史を刻んできました。初代ビルは1923年に竣工し、現在のビルは二代目であり、その歴史を受け継ぎながら、時代の変化に対応したオフィス環境を提供しています。周辺のオフィスビル群と調和した落ち着いた外観を持ち、丸の内の洗練された景観を形成しており、2009年の大規模改修時に、省エネルギー性能の向上やリサイクル素材の利用などが考慮されたと考えられます。一部屋上緑化も実施されています。賃貸事務所をお探しの企業様、ぜひ一度「丸の内郵船ビルディング」をご検討ください。
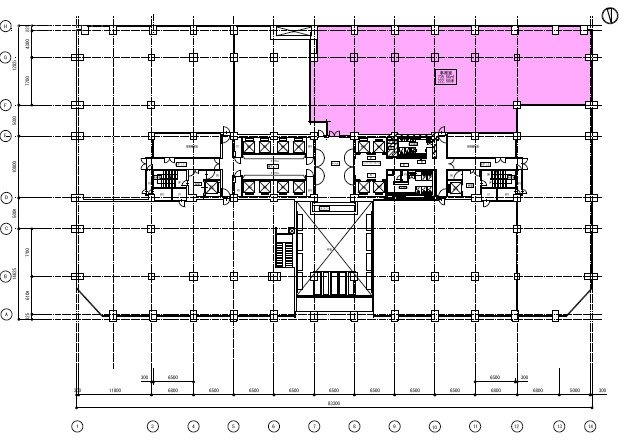
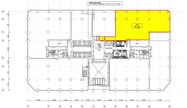
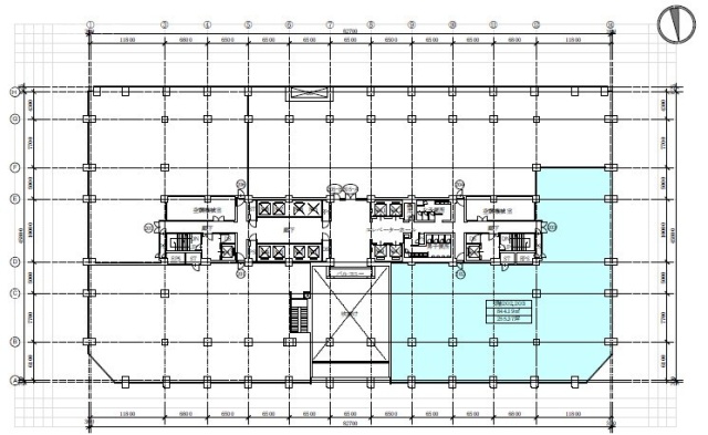
丸の内郵船ビルディング の募集区画 (総募集面積 0.00坪)
現在募集はありません。
地図
東京都千代田区丸の内2-3-2 地図をクリックして拡大できます
丸の内郵船ビルディング の外観イメージ
丸の内郵船ビルディング(千代田区丸の内)の外観は、洗練されたモダンデザインが特徴的です。ガラスとスチールを巧みに組み合わせた外壁は、周辺の歴史的建造物と調和しながらも先進的な印象を与えています。ビルの正面には大きなエントランスがあり、ビジネスパーソンの往来が絶えません。





丸の内郵船ビルディング の周辺イメージ
丸の内郵船ビルディング(千代田区丸の内)の周辺には、ビジネスと文化の中心地ならではの充実した施設が揃っています。徒歩圏内にスターバックスコーヒー、TSUTAYA BOOKSTORE、成城石井などの人気店舗があります。また、東京中央郵便局や女性のための統合ヘルスクリニックなどの便利な施設も近くにあります。さらに、北の丸公園や皇居外苑など、都心にいながら自然を感じられるスポットにも近接しており、ワークライフバランスの取れた環境が整っています。




丸の内郵船ビルディング の主な入居テナント
丸の内郵船ビルディング の募集終了区画
| 図面 | 階数 | 坪数 | 月額費用 | 坪単価 | 入居可能日 | |
|---|---|---|---|---|---|---|
![]() | 1階 | 221.63坪 | - | - | 募集終了 | 検討リスト |
![]() | 1階 | 221.63坪 | - | - | 募集終了 | 検討リスト |
![]() | 1階 | 378.35坪 | - | - | 募集終了 | 検討リスト |
![]() | 2階 | 196.66坪 | - | - | 募集終了 | 検討リスト |
![]() | 2階 | 58.73坪 | - | - | 募集終了 | 検討リスト |
![]() | 2階 | 75.89坪 | - | - | 募集終了 | 検討リスト |
![]() | 2階 | 50.05坪 | - | - | 募集終了 | 検討リスト |
![]() | 2階 | 63.20坪 | - | - | 募集終了 | 検討リスト |
![]() | 2階 | 158.56坪 | - | - | 募集終了 | 検討リスト |
![]() | 2階 | 255.37坪 | - | - | 募集終了 | 検討リスト |
![]() | 2階 | 56.41坪 | - | - | 募集終了 | 検討リスト |
![]() | 3階 | 101.55坪 | - | - | 募集終了 | 検討リスト |
![]() | 3階 | 26.39坪 | - | - | 募集終了 | 検討リスト |
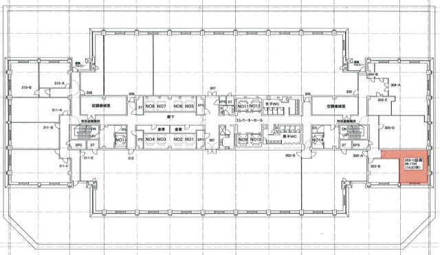
![]() | 3階 | 14.87坪 | - | - | 募集終了 | 検討リスト |
![]() | 3階 | 201.51坪 | - | - | 募集終了 | 検討リスト |
![]() | 3階 | 52.85坪 | - | - | 募集終了 | 検討リスト |
![]() | 3階 | 76.50坪 | - | - | 募集終了 | 検討リスト |
![]() | 3階 | 35.24坪 | - | - | 募集終了 | 検討リスト |
![]() | 3階 | 26.52坪 | - | - | 募集終了 | 検討リスト |
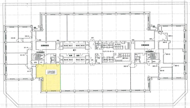
![]() | 3階 | 37.64坪 | - | - | 募集終了 | 検討リスト |
![]() | 3階 | 88.42坪 | - | - | 募集終了 | 検討リスト |
![]() | 3階 | 18.46坪 | - | - | 募集終了 | 検討リスト |
![]() | 3階 | 49.99坪 | - | - | 募集終了 | 検討リスト |
![]() | 3階 | 59.69坪 | - | - | 募集終了 | 検討リスト |
![]() | 3階 | 86.21坪 | - | - | 募集終了 | 検討リスト |
![]() | 4階 | 357.95坪 | - | - | 募集終了 | 検討リスト |
![]() | 4階 | 75.54坪 | - | - | 募集終了 | 検討リスト |
![]() | 4階 | 39.08坪 | - | - | 募集終了 | 検討リスト |
![]() | 4階 | 65.79坪 | - | - | 募集終了 | 検討リスト |
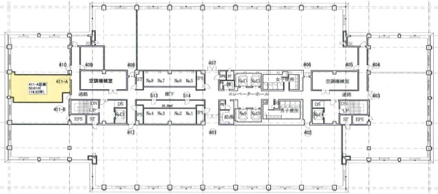
![]() | 4階 | 16.22坪 | - | - | 募集終了 | 検討リスト |
![]() | 4階 | 37.28坪 | - | - | 募集終了 | 検討リスト |
![]() | 4階 | 193.28坪 | - | - | 募集終了 | 検討リスト |
![]() | 4階 | 230.00坪 | - | - | 募集終了 | 検討リスト |
![]() | 5階 | 306.08坪 | - | - | 募集終了 | 検討リスト |
![]() | 5階 | 27.53坪 | - | - | 募集終了 | 検討リスト |
![]() | 5階 | 37.17坪 | - | - | 募集終了 | 検討リスト |
![]() | 5階 | 166.61坪 | - | - | 募集終了 | 検討リスト |
![]() | 5階 | 45.00坪 | - | - | 募集終了 | 検討リスト |
![]() | 5階 | 167.00坪 | - | - | 募集終了 | 検討リスト |
![]() | 5階 | 44.58坪 | - | - | 募集終了 | 検討リスト |
![]() | 5階 | 102.14坪 | - | - | 募集終了 | 検討リスト |
![]() | 5階 | 65.78坪 | - | - | 募集終了 | 検討リスト |
![]() | 6階 | 203.90坪 | - | - | 募集終了 | 検討リスト |
![]() | 7階 | 46.78坪 | - | - | 募集終了 | 検討リスト |
![]() | 7階 | 24.11坪 | - | - | 募集終了 | 検討リスト |
![]() | 7階 | 11.33坪 | - | - | 募集終了 | 検討リスト |
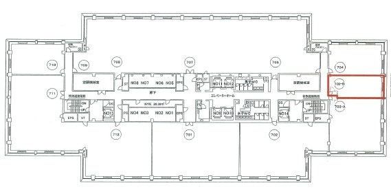
![]() | 7階 | 103.33坪 | - | - | 募集終了 | 検討リスト |
![]() | 7階 | 35.45坪 | - | - | 募集終了 | 検討リスト |
![]() | 7階 | 73.79坪 | - | - | 募集終了 | 検討リスト |
![]() | 7階 | 33.57坪 | - | - | 募集終了 | 検討リスト |
![]() | 7階 | 26.64坪 | - | - | 募集終了 | 検討リスト |
![]() | 7階 | 249.50坪 | - | - | 募集終了 | 検討リスト |
![]() | 7階 | 18.42坪 | - | - | 募集終了 | 検討リスト |
![]() | 7階 | 58.79坪 | - | - | 募集終了 | 検討リスト |
![]() | 7階 | 119.00坪 | - | - | 募集終了 | 検討リスト |
![]() | 7階 | 62.75坪 | - | - | 募集終了 | 検討リスト |
![]() | 7階 | 45.98坪 | - | - | 募集終了 | 検討リスト |
![]() | 7階 | 27.54坪 | - | - | 募集終了 | 検討リスト |
![]() | 7階 | 250.31坪 | - | - | 募集終了 | 検討リスト |
![]() | 8階 | 51.83坪 | - | - | 募集終了 | 検討リスト |
近くの物件紹介
千代田区のエリア
近くの駅
| 取扱態様 | 仲介 |
|---|---|
| 取扱会社 | 株式会社アドマイアー 東京都中央区日本橋3-2-3ユニバース第1ビル2F TEL. 03-5204-1031 宅地建物取引業免許 東京都知事(3)第94663号 マンション管理業免許 国土交通大臣(2)第034224号 賃貸住宅管理業免許 国土交通大臣(01)第005938号 |











































