鎌形ビル(千代田区、神田猿楽町、御茶ノ水、神保町) の賃貸オフィス情報

- 所在地
- 東京都千代田区神田猿楽町2-1-2
- 最寄り駅
- 御茶ノ水駅徒歩5分、神保町駅徒歩5分、水道橋駅徒歩5分
- 竣工
- 1979年
- 規模
- 地上6階・地下1階
- 構造
- RC造(鉄筋コンクリート造)
- セキュリティ
- 共用部警備なし(簡易管理)
- エントランス
- 平日開放
- エレベーター総数
- 1基
- 駐車場設備
- 要確認
鎌形ビルは神保町駅徒歩5分という好立地にあり、複数路線の利用が可能な交通利便性を備えています。1975年築の鉄筋コンクリート造ながら、堅牢で安心感ある建物が特徴。基準階約32坪の無柱空間はレイアウトの自由度が高く、多様なビジネススタイルに適応可能です。個別空調や男女別トイレ、機械警備による24時間体制のセキュリティなど、快適と安全を両立した設備が整っています。周辺には飲食店や金融機関、郵便局などの充実した生活インフラがあり、業務効率を支える環境です。安定感のある物件をお探しの企業に適した選択肢となります。
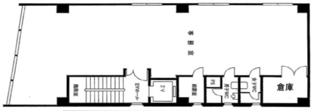
鎌形ビル の募集区画 (総募集面積 32.56坪)
※月額費用、坪単価 ともに共益費込・税別の価格です
地図
東京都千代田区神田猿楽町2-1-2 地図をクリックして拡大できます
鎌形ビル の外観イメージ
鎌形ビルは、鉄筋コンクリートの堅牢な構造を持つ地上6階建てのビルで、シンプルながら存在感ある外観が特徴です。外壁は落ち着いたトーンでまとめられており、街並みに調和しつつも視認性に優れています。全面ガラス貼りのスタイリッシュなファサードが印象的で、角地に位置するため採光性も良好です。1975年竣工からの経年はあるものの、清潔感があり来訪者にも好印象を与えます。








鎌形ビル の周辺イメージ
鎌形ビルは神保町駅から徒歩5分の立地で、新御茶ノ水駅、御茶ノ水駅、水道橋駅も徒歩圏内です。周辺は飲食店が多くランチや接待に便利な環境。コンビニやカフェ、金融機関も豊富に揃い、業務上の利便性が高いエリアです。徒歩圏には郵便局や銀行もあり日常のオフィス運営を支える生活インフラが充実。交通アクセスの良さと周辺施設の充実は多様な事業者に貢献します。

鎌形ビル の募集終了区画
近くの物件紹介
千代田区のエリア
近くの駅
| 取扱態様 | 仲介 |
|---|---|
| 取扱会社 | 株式会社アドマイアー 東京都中央区日本橋3-2-3ユニバース第1ビル2F TEL. 03-5204-1031 宅地建物取引業免許 東京都知事(3)第94663号 マンション管理業免許 国土交通大臣(2)第034224号 賃貸住宅管理業免許 国土交通大臣(01)第005938号 |

























