岩月ビル(中央区、銀座、有楽町、東銀座) の賃貸オフィス情報

- 所在地
- 東京都中央区銀座6-7-16
- 最寄り駅
- 銀座駅徒歩5分、有楽町駅徒歩7分、東銀座駅徒歩8分
- 竣工
- 1966年
- 規模
- 地上9階・地下2階
- 構造
- SRC造(鉄骨鉄筋コンクリート造)
- セキュリティ
- 機械警備・有人管理(24時間体制)
- エントランス
- 平日開放
- エレベーター総数
- 2基
- 駐車場設備
- 要確認
岩月ビル の募集区画 (総募集面積 0.00坪)
現在募集はありません。
地図
東京都中央区銀座6-7-16 地図をクリックして拡大できます
岩月ビル の外観イメージ
岩月ビル(中央区銀座)は、1966年に竣工した地上9階、地下1階建てのオフィスビルです。
ダークブラウンのタイル張りの横長で重厚感あふれる外観をしています。
エントランスの扉はビル左手にある階段の奥にあります。
ホール内にはモダンアートが飾られ、お洒落な雰囲気です。
エレベーターは2基搭載されています。
1階には高級腕時計専門店をはじめ、複数のテナントが入居中で、ビルの良い目印になっています。
機械警備と有人管理の両方が採用されており、セキュリティ面も安心感があります。







岩月ビル の周辺イメージ
岩月ビル(中央区銀座)は、銀座駅から徒歩5分の好立地に位置しており、他に有楽町駅と東銀座駅から徒歩でアクセスが可能です。
並木通りに面して立地し、周辺は比較的閑静な街並みが広がっています。
アパレル系のショップが多いですが、飲食店も点在しています。
中央通りを越えて少し歩くとコンビニも所在しているので、買い出し等に活用できます。



岩月ビル の募集終了区画
| 図面 | 階数 | 坪数 | 月額費用 | 坪単価 | 入居可能日 | |
|---|---|---|---|---|---|---|
![]() | 2階 | 47.77坪 | お問い合わせください | 募集終了 | 検討リスト | |
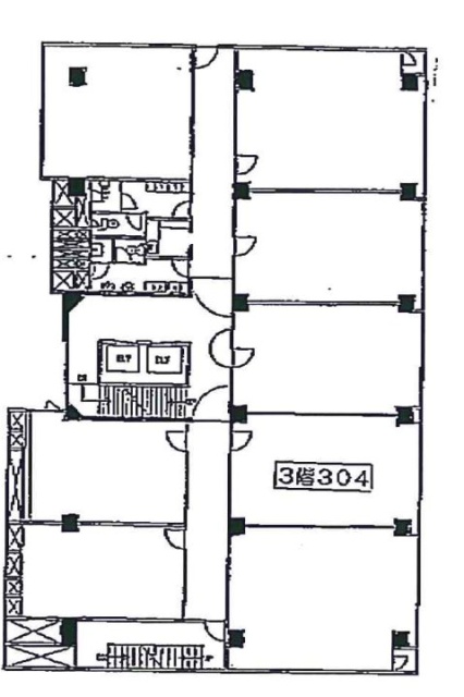
![]() | 3階 | 10.80坪 | お問い合わせください | 募集終了 | 検討リスト | |
![]() | 3階 | 13.19坪 | お問い合わせください | 募集終了 | 検討リスト | |
![]() | 3階 | 13.19坪 | お問い合わせください | 募集終了 | 検討リスト | |
![]() | 4階 | 20.50坪 | お問い合わせください | 募集終了 | 検討リスト | |
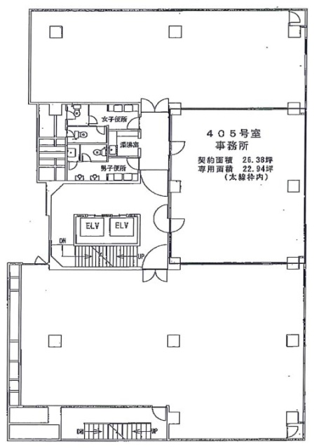
![]() | 4階 | 26.38坪 | お問い合わせください | 募集終了 | 検討リスト | |
![]() | 4階 | 12.31坪 | お問い合わせください | 募集終了 | 検討リスト | |
![]() | 4階 | 23.00坪 | お問い合わせください | 募集終了 | 検討リスト | |
![]() | 5階 | 11.60坪 | お問い合わせください | 募集終了 | 検討リスト | |
![]() | 5階 | 13.19坪 | お問い合わせください | 募集終了 | 検討リスト | |
![]() | 5階 | 26.38坪 | お問い合わせください | 募集終了 | 検討リスト | |
![]() | 5階 | 13.20坪 | お問い合わせください | 募集終了 | 検討リスト | |
![]() | 5階 | 33.60坪 | お問い合わせください | 募集終了 | 検討リスト | |
![]() | 6階 | 9.90坪 | お問い合わせください | 募集終了 | 検討リスト | |
![]() | 6階 | 33.60坪 | お問い合わせください | 募集終了 | 検討リスト | |
![]() | 7階 | 13.19坪 | お問い合わせください | 募集終了 | 検討リスト | |
![]() | 7階 | 12.74坪 | お問い合わせください | 募集終了 | 検討リスト | |
![]() | 7階 | 34.50坪 | お問い合わせください | 募集終了 | 検討リスト | |
![]() | 7階 | 34.50坪 | お問い合わせください | 募集終了 | 検討リスト | |
![]() | 8階 | 9.50坪 | お問い合わせください | 募集終了 | 検討リスト | |
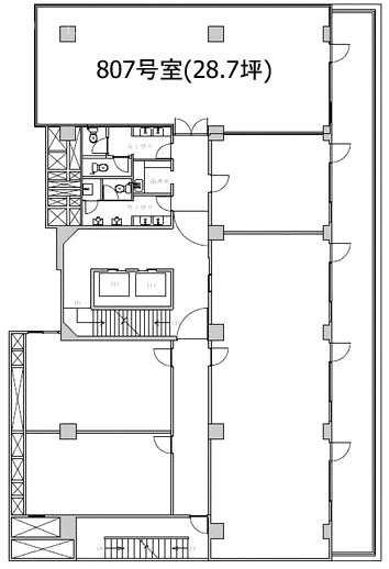
![]() | 8階 | 28.71坪 | お問い合わせください | 募集終了 | 検討リスト | |
![]() | 9階 | 46.20坪 | お問い合わせください | 募集終了 | 検討リスト | |
![]() | 9階 | 6.23坪 | お問い合わせください | 募集終了 | 検討リスト |
近くの物件紹介
中央区のエリア
近くの駅
| 取扱態様 | 仲介 |
|---|---|
| 取扱会社 | 株式会社アドマイアー 東京都中央区日本橋3-2-3ユニバース第1ビル2F TEL. 03-5204-1031 宅地建物取引業免許 東京都知事(3)第94663号 マンション管理業免許 国土交通大臣(2)第034224号 賃貸住宅管理業免許 国土交通大臣(01)第005938号 |







































