パシフィックセンチュリープレイス丸の内(千代田区、丸の内、東京、京橋) の賃貸オフィス情報

- 所在地
- 東京都千代田区丸の内1-11-1
- 最寄り駅
- 東京駅徒歩2分、京橋駅徒歩5分、二重橋前駅徒歩6分
- 竣工
- 2001年
- 規模
- 地上32階・地下4階
- 構造
- S造(鉄骨造)
- 耐震基準
- 新耐震基準適合
- セキュリティ
- 機械警備・有人管理(24時間体制)
- エントランス
- 平日開放
- エレベーター総数
- 17基
- 駐車場設備
- 要確認
東京の中心、千代田区丸の内。日本経済を牽引するこの地にそびえ立つパシフィックセンチュリープレイス丸の内は、企業のステータスを高め、従業員の創造性を刺激し、ビジネスの可能性を無限に広げるための舞台です。パシフィックセンチュリープレイス丸の内は、東京都千代田区丸の内1丁目11-1に位置し、2001年11月に竣工しました。鉄骨鉄筋コンクリート造(SRC造)のこのビルは、地震の揺れを吸収し建物の安全性を高める制震構造を採用しており、万が一の災害時にも事業継続を強力にサポートします。
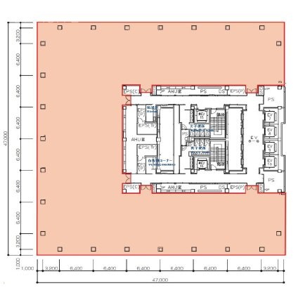
地上32階、地下4階建てのパシフィックセンチュリープレイス丸の内は、基準階面積1,721.16㎡ (520.7坪)、総賃貸面積81,692.9㎡ (24,712.08坪)を誇ります。オフィスフロアの天井高は2,800mmと開放感があり、快適なオフィス環境を提供し、従業員の創造性を刺激します。オフィス全体を効率的に管理するセントラル空調システムを導入し、快適な室温を維持することで生産性の向上に貢献します。また、高速エレベーターを17基搭載しており、スムーズな垂直移動を実現し、業務効率を高めます。洗練されたデザインのエントランスは、訪れる人に企業のブランドイメージを強く印象づけます。広々としたロビーは、来客時の受付や打ち合わせスペースとしても利用可能です。24時間体制の有人警備により、入居企業の安全・安心を確保し、最新の機械警備システムを導入して不審者の侵入を監視します。館内各所に監視カメラを設置し、セキュリティを強化しています。駐車場は204台収容可能です。低層階には商業施設が併設されており、オフィスワーカーの利便性を高めています。災害発生時における情報収集や指示を行う防災センターを設置し、災害に備えた備蓄倉庫を完備することで、入居企業の事業継続をサポートします。
パシフィックセンチュリープレイス丸の内は、JR山手線「東京駅」と東京メトロ丸ノ内線「東京駅」から徒歩2分、京葉線「東京駅」から徒歩2分、東京地下鉄銀座線「京橋駅」から徒歩5分、東京地下鉄有楽町線「銀座一丁目駅」から徒歩4分という、圧倒的な交通利便性を誇ります。JR山手線、JR京浜東北線・根岸線、JR中央線(快速)、JR東海道本線、JR横須賀線・総武快速線、東京メトロ丸ノ内線、東京メトロ銀座線、東京メトロ東西線、東京メトロ千代田線、東京メトロ半蔵門線、都営三田線、京葉線、武蔵野線、新幹線各線など、多岐にわたる路線が利用可能です。東京駅周辺には、百貨店、商業施設、金融機関、郵便局、病院、ホテルなど、あらゆる都市機能が集積しており、ビジネスに必要な施設はもちろん、従業員のプライベートな時間を充実させるための環境も整っています。日本を代表するビジネス街であり、国内外の企業が集まるエリアに位置し、高い集積度と情報発信力を持つこの地は、企業の成長戦略において重要な拠点となります。東京駅に隣接する大手町、徒歩圏内または電車で数分の日本橋、電車で数分の銀座、そしてJR線で乗り換えなしでアクセス可能な渋谷や新宿など、主要ビジネスエリアへのアクセスも非常に優れています。
2001年竣工のパシフィックセンチュリープレイス丸の内は、当時の最新技術と洗練されたデザインが融合した、丸の内エリアを代表する高層オフィスビルの一つです。「ガラスの結晶体」をイメージした外装は、時代を超えても色褪せない普遍的な美しさを放ちます。丸の内エリアの活性化に貢献しており、周辺の商業施設とともに、多くの人々が集う賑わいを創出しています。丸の内という地名自体が、江戸時代に江戸城の内側に位置していたことに由来する歴史的な場所です。パシフィックセンチュリープレイス丸の内は、その歴史を受け継ぎながら、現代のビジネスシーンを支える重要な役割を担っています。シンプルで透明感のある外装は、周辺のオフィスビル群と調和し、洗練された都市景観を形成しています。Low-E複層ガラスを採用し、高い断熱効果を発揮することで、省エネルギーに貢献していると考えられます。
こんな企業におすすめなのは、国内外に拠点を持ち、東京駅の圧倒的な交通利便性を重視するグローバル企業です。新幹線や空港へのアクセスも容易な東京駅直結の立地は、国内外への出張が多い企業にとって大きなメリットとなります。また、金融、コンサルティング、ITなど、高度な専門性と信頼性が求められる企業にも適しています。丸の内というブランドイメージは、企業の信頼性を高め、クライアントからの評価向上に繋がります。従業員の通勤の利便性を重視し、多様なライフスタイルをサポートしたい企業にもおすすめです。複数路線が利用可能な東京駅周辺は、従業員の居住地に関わらず通勤しやすく、多様な働き方を支援します。さらに、事業拡大を目指し、広々としたオフィス空間を必要とする成長企業にも最適です。基準階約520坪の広さを誇るオフィスフロアは、人員増加や組織再編にも柔軟に対応できます。そして、最新の設備とセキュリティ体制が整った、快適で安全なオフィス環境を求める企業にとって、制震構造や24時間有人警備など、安心してビジネスに集中できる環境が整っていることは大きな魅力です。パシフィックセンチュリープレイス丸の内は、単なるオフィススペースの提供に留まりません。それは、企業の成長戦略を加速させ、未来を創造するための基盤となる場所です。この比類なきオフィスビルを貴社の新たな拠点に迎え、ビジネスの可能性を最大限に引き出してみませんか。詳細な空室情報や賃料については、お気軽にお問い合わせください。
地上32階、地下4階建てのパシフィックセンチュリープレイス丸の内は、基準階面積1,721.16㎡ (520.7坪)、総賃貸面積81,692.9㎡ (24,712.08坪)を誇ります。オフィスフロアの天井高は2,800mmと開放感があり、快適なオフィス環境を提供し、従業員の創造性を刺激します。オフィス全体を効率的に管理するセントラル空調システムを導入し、快適な室温を維持することで生産性の向上に貢献します。また、高速エレベーターを17基搭載しており、スムーズな垂直移動を実現し、業務効率を高めます。洗練されたデザインのエントランスは、訪れる人に企業のブランドイメージを強く印象づけます。広々としたロビーは、来客時の受付や打ち合わせスペースとしても利用可能です。24時間体制の有人警備により、入居企業の安全・安心を確保し、最新の機械警備システムを導入して不審者の侵入を監視します。館内各所に監視カメラを設置し、セキュリティを強化しています。駐車場は204台収容可能です。低層階には商業施設が併設されており、オフィスワーカーの利便性を高めています。災害発生時における情報収集や指示を行う防災センターを設置し、災害に備えた備蓄倉庫を完備することで、入居企業の事業継続をサポートします。
パシフィックセンチュリープレイス丸の内は、JR山手線「東京駅」と東京メトロ丸ノ内線「東京駅」から徒歩2分、京葉線「東京駅」から徒歩2分、東京地下鉄銀座線「京橋駅」から徒歩5分、東京地下鉄有楽町線「銀座一丁目駅」から徒歩4分という、圧倒的な交通利便性を誇ります。JR山手線、JR京浜東北線・根岸線、JR中央線(快速)、JR東海道本線、JR横須賀線・総武快速線、東京メトロ丸ノ内線、東京メトロ銀座線、東京メトロ東西線、東京メトロ千代田線、東京メトロ半蔵門線、都営三田線、京葉線、武蔵野線、新幹線各線など、多岐にわたる路線が利用可能です。東京駅周辺には、百貨店、商業施設、金融機関、郵便局、病院、ホテルなど、あらゆる都市機能が集積しており、ビジネスに必要な施設はもちろん、従業員のプライベートな時間を充実させるための環境も整っています。日本を代表するビジネス街であり、国内外の企業が集まるエリアに位置し、高い集積度と情報発信力を持つこの地は、企業の成長戦略において重要な拠点となります。東京駅に隣接する大手町、徒歩圏内または電車で数分の日本橋、電車で数分の銀座、そしてJR線で乗り換えなしでアクセス可能な渋谷や新宿など、主要ビジネスエリアへのアクセスも非常に優れています。
2001年竣工のパシフィックセンチュリープレイス丸の内は、当時の最新技術と洗練されたデザインが融合した、丸の内エリアを代表する高層オフィスビルの一つです。「ガラスの結晶体」をイメージした外装は、時代を超えても色褪せない普遍的な美しさを放ちます。丸の内エリアの活性化に貢献しており、周辺の商業施設とともに、多くの人々が集う賑わいを創出しています。丸の内という地名自体が、江戸時代に江戸城の内側に位置していたことに由来する歴史的な場所です。パシフィックセンチュリープレイス丸の内は、その歴史を受け継ぎながら、現代のビジネスシーンを支える重要な役割を担っています。シンプルで透明感のある外装は、周辺のオフィスビル群と調和し、洗練された都市景観を形成しています。Low-E複層ガラスを採用し、高い断熱効果を発揮することで、省エネルギーに貢献していると考えられます。
こんな企業におすすめなのは、国内外に拠点を持ち、東京駅の圧倒的な交通利便性を重視するグローバル企業です。新幹線や空港へのアクセスも容易な東京駅直結の立地は、国内外への出張が多い企業にとって大きなメリットとなります。また、金融、コンサルティング、ITなど、高度な専門性と信頼性が求められる企業にも適しています。丸の内というブランドイメージは、企業の信頼性を高め、クライアントからの評価向上に繋がります。従業員の通勤の利便性を重視し、多様なライフスタイルをサポートしたい企業にもおすすめです。複数路線が利用可能な東京駅周辺は、従業員の居住地に関わらず通勤しやすく、多様な働き方を支援します。さらに、事業拡大を目指し、広々としたオフィス空間を必要とする成長企業にも最適です。基準階約520坪の広さを誇るオフィスフロアは、人員増加や組織再編にも柔軟に対応できます。そして、最新の設備とセキュリティ体制が整った、快適で安全なオフィス環境を求める企業にとって、制震構造や24時間有人警備など、安心してビジネスに集中できる環境が整っていることは大きな魅力です。パシフィックセンチュリープレイス丸の内は、単なるオフィススペースの提供に留まりません。それは、企業の成長戦略を加速させ、未来を創造するための基盤となる場所です。この比類なきオフィスビルを貴社の新たな拠点に迎え、ビジネスの可能性を最大限に引き出してみませんか。詳細な空室情報や賃料については、お気軽にお問い合わせください。
パシフィックセンチュリープレイス丸の内 の募集区画 (総募集面積 14.99坪)
※月額費用、坪単価 ともに共益費込・税別の価格です
地図
東京都千代田区丸の内1-11-1 地図をクリックして拡大できます
パシフィックセンチュリープレイス丸の内 の外観イメージ
パシフィックセンチュリープレイス丸の内(千代田区丸の内)は、建物全てをガラスで覆った外観が特徴で、その美しさからこのエリアのランドマーク的存在でもあります。このエリアでは最高水準のオフィスビルで、常駐する警備員によりセキュリティも万全の対策がとられています。エントランスの前には庭園が広がっており、自然の緑を身近に感じることができる空間となっているのも特徴的です。様々な面で最高グレードの建物と言えます。







パシフィックセンチュリープレイス丸の内 の周辺イメージ
パシフィックセンチュリープレイス丸の内(千代田区丸の内)の周辺には、地下1階から2階に多彩な飲食店やショップが入る商業施設「グランアージュ」があります。3階から7階には「フォーシーズンズホテル丸の内東京」が入居し、ビジネス利用や来客の宿泊に便利です。また、東京駅に直結しており、グラントウキョウサウスタワーや八重洲地下街とも連絡しています。周辺には三菱一号館美術館や丸ビルなどの観光スポットも充実しています。


パシフィックセンチュリープレイス丸の内 の主な入居テナント
藤商事外為オンラインISホールディングスマルハングリーン電力エンジニアリング日本シエナコミュニケーションズユニフルーティージャパンスーパートリック・ゲームズ武蔵コーポレーションガンホー・オンライン・エンターテイメント
パシフィックセンチュリープレイス丸の内 の募集終了区画
| 図面 | 階数 | 坪数 | 月額費用 | 坪単価 | 入居可能日 | |
|---|---|---|---|---|---|---|
![]() | 8階 | 474.35坪 | お問い合わせください | 募集終了 | 検討リスト | |
![]() | 9階 | 474.35坪 | お問い合わせください | 募集終了 | 検討リスト | |
![]() | 10階 | 474.35坪 | お問い合わせください | 募集終了 | 検討リスト | |
![]() | 11階 | 474.35坪 | お問い合わせください | 募集終了 | 検討リスト | |
![]() | 11階 | 116.41坪 | お問い合わせください | 募集終了 | 検討リスト | |
![]() | 12階 | 231.61坪 | お問い合わせください | 募集終了 | 検討リスト | |
![]() | 13階 | 474.62坪 | お問い合わせください | 募集終了 | 検討リスト | |
![]() | 14階 | 474.62坪 | お問い合わせください | 募集終了 | 検討リスト | |
![]() | 14階 | 116.42坪 | お問い合わせください | 募集終了 | 検討リスト | |
![]() | 15階 | 474.62坪 | お問い合わせください | 募集終了 | 検討リスト | |
![]() | 16階 | 171.52坪 | お問い合わせください | 募集終了 | 検討リスト | |
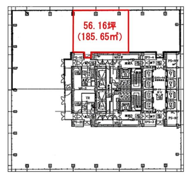
![]() | 16階 | 56.16坪 | お問い合わせください | 募集終了 | 検討リスト | |
![]() | 16階 | 116.41坪 | お問い合わせください | 募集終了 | 検討リスト | |
![]() | 16階 | 60.25坪 | お問い合わせください | 募集終了 | 検討リスト | |
![]() | 16階 | 232.83坪 | お問い合わせください | 募集終了 | 検討リスト | |
![]() | 17階 | 115.36坪 | お問い合わせください | 募集終了 | 検討リスト | |
![]() | 18階 | 116.42坪 | お問い合わせください | 募集終了 | 検討リスト | |
![]() | 18階 | 474.62坪 | お問い合わせください | 募集終了 | 検討リスト | |
![]() | 19階 | 241.79坪 | お問い合わせください | 募集終了 | 検討リスト | |
![]() | 19階 | 60.25坪 | お問い合わせください | 募集終了 | 検討リスト | |
![]() | 19階 | 60.25坪 | お問い合わせください | 募集終了 | 検討リスト | |
![]() | 19階 | 474.62坪 | お問い合わせください | 募集終了 | 検討リスト | |
![]() | 19階 | 116.41坪 | お問い合わせください | 募集終了 | 検討リスト | |
![]() | 19階 | 199.00坪 | お問い合わせください | 募集終了 | 検討リスト | |
![]() | 19階 | 56.16坪 | お問い合わせください | 募集終了 | 検討リスト | |
![]() | 19階 | 56.16坪 | お問い合わせください | 募集終了 | 検討リスト | |
![]() | 20階 | 476.90坪 | お問い合わせください | 募集終了 | 検討リスト | |
![]() | 20階 | 233.17坪 | お問い合わせください | 募集終了 | 検討リスト | |
![]() | 20階 | 233.17坪 | お問い合わせください | 募集終了 | 検討リスト | |
![]() | 21階 | 503.43坪 | お問い合わせください | 募集終了 | 検討リスト | |
![]() | 22階 | 246.43坪 | お問い合わせください | 募集終了 | 検討リスト | |
![]() | 22階 | 246.43坪 | お問い合わせください | 募集終了 | 検討リスト | |
![]() | 23階 | 504.89坪 | お問い合わせください | 募集終了 | 検討リスト | |
![]() | 24階 | 128.36坪 | お問い合わせください | 募集終了 | 検討リスト | |
![]() | 24階 | 247.13坪 | お問い合わせください | 募集終了 | 検討リスト | |
![]() | 25階 | 505.63坪 | お問い合わせください | 募集終了 | 検討リスト | |
![]() | 26階 | 520.64坪 | お問い合わせください | 募集終了 | 検討リスト | |
![]() | 26階 | 118.48坪 | お問い合わせください | 募集終了 | 検討リスト | |
![]() | 26階 | 258.89坪 | お問い合わせください | 募集終了 | 検討リスト | |
![]() | 27階 | 37.75坪 | お問い合わせください | 募集終了 | 検討リスト | |
![]() | 27階 | 128.36坪 | お問い合わせください | 募集終了 | 検討リスト | |
![]() | 27階 | 226.19坪 | お問い合わせください | 募集終了 | 検討リスト | |
![]() | 27階 | 118.48坪 | お問い合わせください | 募集終了 | 検討リスト | |
![]() | 28階 | 520.64坪 | お問い合わせください | 募集終了 | 検討リスト | |
![]() | 29階 | 263.95坪 | お問い合わせください | 募集終了 | 検討リスト | |
![]() | 29階 | 522.71坪 | お問い合わせください | 募集終了 | 検討リスト | |
![]() | 30階 | 520.64坪 | お問い合わせください | 募集終了 | 検討リスト | |
![]() | 31階 | 248.00坪 | お問い合わせください | 募集終了 | 検討リスト | |
![]() | 31階 | 55.85坪 | お問い合わせください | 募集終了 | 検討リスト |
近くの物件紹介
千代田区のエリア
近くの駅
| 取扱態様 | 仲介 |
|---|---|
| 取扱会社 | 株式会社アドマイアー 東京都中央区日本橋3-2-3ユニバース第1ビル2F TEL. 03-5204-1031 宅地建物取引業免許 東京都知事(3)第94663号 マンション管理業免許 国土交通大臣(2)第034224号 賃貸住宅管理業免許 国土交通大臣(01)第005938号 |












































