テレコムセンタービル東棟(江東区、青海、テレコムセンター、東京国際クルーズターミナル) の賃貸オフィス情報

- 所在地
- 東京都江東区青海2-5-10
- 最寄り駅
- テレコムセンター駅徒歩1分、東京国際クルーズターミナル駅徒歩15分、青海駅徒歩17分
- 竣工
- 1996年
- 規模
- 地上21階・地下3階
- 構造
- S造(鉄骨造)
- 耐震基準
- 新耐震基準適合
- セキュリティ
- 機械警備(24時間監視)
- エントランス
- 平日開放
- エレベーター総数
- 16基
- 駐車場設備
- 有(444台(自走式))
■テレコムセンター駅直結、東京テレポート駅から無料バス3分の抜群のアクセス
■1996年竣工の地上21階建地下3階、新耐震基準適合の大規模オフィスビル
■基準階492坪、天井高2,650mm、OAフロア100mmの充実空間
■床荷重600kg/㎡、エレベーター24基、駐車場444台の大規模設備
■お台場青海エリアMICE拠点、商業施設・研究機関集積の先進的ビジネス環境
■1996年竣工の地上21階建地下3階、新耐震基準適合の大規模オフィスビル
■基準階492坪、天井高2,650mm、OAフロア100mmの充実空間
■床荷重600kg/㎡、エレベーター24基、駐車場444台の大規模設備
■お台場青海エリアMICE拠点、商業施設・研究機関集積の先進的ビジネス環境
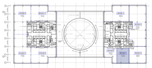
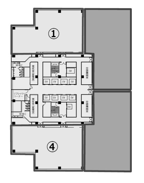
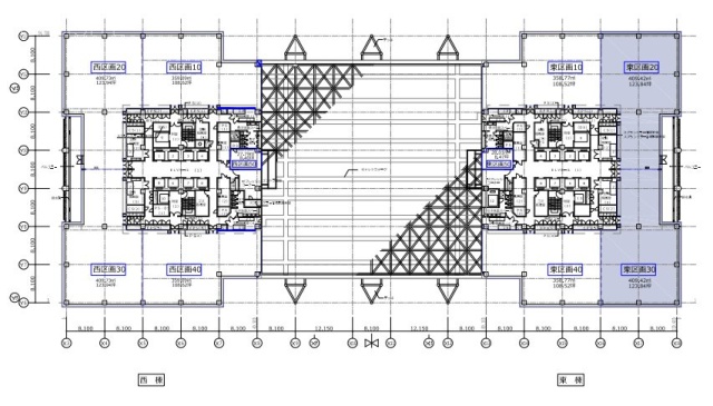
テレコムセンタービル東棟 の募集区画 (総募集面積 1,098.89坪)
| 図面 | 階数 | 坪数 | 月額費用 | 坪単価 | 入居可能日 | |
|---|---|---|---|---|---|---|
![]() | 1階 | 57.55坪 | お問い合わせください | 相談 | 検討リスト お問い合わせ | |
![]() | 1階 | 38.11坪 | お問い合わせください | 2026/1 | 検討リスト お問い合わせ | |
![]() | 16階 | 501.61坪 | お問い合わせください | 即時 | 検討リスト お問い合わせ | |
![]() | 18階 | 501.62坪 | お問い合わせください | 相談 | 検討リスト お問い合わせ |
※月額費用、坪単価 ともに共益費込・税別の価格です
建物に関するよくある質問と回答
Q1: このビルの耐震性能について教えてください
A: テレコムセンタービルは1996年1月竣工の鉄骨造で、新耐震基準に適合した建物です。大規模地震を想定した耐震設計がなされており、安心してご利用いただけます。
Q2: 空調設備の仕様を教えてください
A: セントラル空調方式(一部個別空調併用)を採用しており、安定した空調運転により快適なオフィス環境を実現しています。フロア空調により、効率的な温度管理が可能です。
Q3: 通信環境について教えてください
A: OAフロア100mmを完備しており、高度なIT環境に対応可能です。光ケーブル対応で、配線の自由度が高く、レイアウト変更にも柔軟に対応できます。
Q4: エレベーターは何基ありますか?
A: 地上21階建地下3階の大規模ビルとして、24基のエレベーターを設置しています。乗用エレベーターは16基で、スムーズな移動が可能です。
Q5: セキュリティ体制について教えてください
A: 有人管理と機械警備を組み合わせた、安心感の高いセキュリティ体制を構築しています。24時間使用可能で、大規模施設として適切な管理運営を行っています。
Q6: 共用施設について教えてください
A: 男女別トイレ(ウォシュレット完備)を設置し、快適なオフィス環境を提供しています。テレコムセンタービルは通信施設を併設しており、先進的な通信インフラを活用できます。
Q7: 駐車場の収容台数を教えてください
A: 自走式駐車場で444台という大規模な駐車スペースを確保しています。来客対応や社用車の利用に非常に充実した収容能力を備えており、大型企業のニーズにも十分対応可能です。
A: テレコムセンタービルは1996年1月竣工の鉄骨造で、新耐震基準に適合した建物です。大規模地震を想定した耐震設計がなされており、安心してご利用いただけます。
Q2: 空調設備の仕様を教えてください
A: セントラル空調方式(一部個別空調併用)を採用しており、安定した空調運転により快適なオフィス環境を実現しています。フロア空調により、効率的な温度管理が可能です。
Q3: 通信環境について教えてください
A: OAフロア100mmを完備しており、高度なIT環境に対応可能です。光ケーブル対応で、配線の自由度が高く、レイアウト変更にも柔軟に対応できます。
Q4: エレベーターは何基ありますか?
A: 地上21階建地下3階の大規模ビルとして、24基のエレベーターを設置しています。乗用エレベーターは16基で、スムーズな移動が可能です。
Q5: セキュリティ体制について教えてください
A: 有人管理と機械警備を組み合わせた、安心感の高いセキュリティ体制を構築しています。24時間使用可能で、大規模施設として適切な管理運営を行っています。
Q6: 共用施設について教えてください
A: 男女別トイレ(ウォシュレット完備)を設置し、快適なオフィス環境を提供しています。テレコムセンタービルは通信施設を併設しており、先進的な通信インフラを活用できます。
Q7: 駐車場の収容台数を教えてください
A: 自走式駐車場で444台という大規模な駐車スペースを確保しています。来客対応や社用車の利用に非常に充実した収容能力を備えており、大型企業のニーズにも十分対応可能です。
地図
東京都江東区青海2-5-10 地図をクリックして拡大できます
テレコムセンタービル東棟 の外観イメージ
地上21階建地下3階の鉄骨造大規模オフィスビルで、1996年1月竣工、最高高さ99mのお台場エリアを代表するランドマークタワーです。ガラスカーテンウォールの洗練された外観が特徴で、テレコムセンター駅に直結。東京湾を望む抜群のロケーションに建ち、青海地区のシンボル的存在として、お台場の新しい都市景観を形成しています。























テレコムセンタービル東棟 の周辺イメージ
テレコムセンタービル東棟(江東区青海)の周辺には、「TOKYO GLOBAL GATEWAY(英語村)」や「ダイバーシティ東京プラザ」が徒歩圏内に位置しています。無料循環バスを利用すれば東京テレポート駅まで3分でアクセス可能です。また、産業技術総合研究所をはじめとする研究機関が集積するビジネス拠点としての利便性も高いエリアです。



テレコムセンタービル東棟 の主な入居テナント
テレコムセンタービル東棟 の募集終了区画
| 図面 | 階数 | 坪数 | 月額費用 | 坪単価 | 入居可能日 | |
|---|---|---|---|---|---|---|
![]() | 1階 | 280.00坪 | お問い合わせください | 募集終了 | 検討リスト | |
![]() | 1階 | 24.24坪 | お問い合わせください | 募集終了 | 検討リスト | |
![]() | 2階 | 74.13坪 | お問い合わせください | 募集終了 | 検討リスト | |
![]() | 2階 | 217.87坪 | お問い合わせください | 募集終了 | 検討リスト | |
![]() | 3階 | 190.82坪 | お問い合わせください | 募集終了 | 検討リスト | |
![]() | 4階 | 577.50坪 | お問い合わせください | 募集終了 | 検討リスト | |
![]() | 4階 | 87.72坪 | お問い合わせください | 募集終了 | 検討リスト | |
![]() | 4階 | 198.32坪 | お問い合わせください | 募集終了 | 検討リスト | |
![]() | 5階 | 324.28坪 | お問い合わせください | 募集終了 | 検討リスト | |
![]() | 5階 | 167.13坪 | お問い合わせください | 募集終了 | 検討リスト | |
![]() | 6階 | 478.60坪 | お問い合わせください | 募集終了 | 検討リスト | |
![]() | 7階 | 109.87坪 | お問い合わせください | 募集終了 | 検討リスト | |
![]() | 7階 | 142.12坪 | お問い合わせください | 募集終了 | 検討リスト | |
![]() | 7階 | 456.03坪 | お問い合わせください | 募集終了 | 検討リスト | |
![]() | 7階 | 56.07坪 | お問い合わせください | 募集終了 | 検討リスト | |
![]() | 7階 | 206.65坪 | お問い合わせください | 募集終了 | 検討リスト | |
![]() | 8階 | 492.50坪 | お問い合わせください | 募集終了 | 検討リスト | |
![]() | 9階 | 493.52坪 | お問い合わせください | 募集終了 | 検討リスト | |
![]() | 10階 | 501.24坪 | お問い合わせください | 募集終了 | 検討リスト | |
![]() | 11階 | 246.23坪 | お問い合わせください | 募集終了 | 検討リスト | |
![]() | 11階 | 501.24坪 | お問い合わせください | 募集終了 | 検討リスト | |
![]() | 12階 | 501.62坪 | お問い合わせください | 募集終了 | 検討リスト | |
![]() | 12階 | 159.42坪 | お問い合わせください | 募集終了 | 検討リスト | |
![]() | 13階 | 492.47坪 | お問い合わせください | 募集終了 | 検討リスト | |
![]() | 13階 | 246.23坪 | お問い合わせください | 募集終了 | 検討リスト | |
![]() | 13階 | 108.90坪 | お問い合わせください | 募集終了 | 検討リスト | |
![]() | 14階 | 246.23坪 | お問い合わせください | 募集終了 | 検討リスト | |
![]() | 14階 | 108.90坪 | お問い合わせください | 募集終了 | 検討リスト | |
![]() | 14階 | 137.33坪 | お問い合わせください | 募集終了 | 検討リスト | |
![]() | 14階 | 492.47坪 | お問い合わせください | 募集終了 | 検討リスト | |
![]() | 15階 | 108.91坪 | お問い合わせください | 募集終了 | 検討リスト | |
![]() | 15階 | 217.80坪 | お問い合わせください | 募集終了 | 検討リスト | |
![]() | 15階 | 246.23坪 | お問い合わせください | 募集終了 | 検討リスト | |
![]() | 15階 | 137.66坪 | お問い合わせください | 募集終了 | 検討リスト | |
![]() | 15階 | 246.56坪 | お問い合わせください | 募集終了 | 検討リスト | |
![]() | 15階 | 137.03坪 | お問い合わせください | 募集終了 | 検討リスト | |
![]() | 15階 | 384.52坪 | お問い合わせください | 募集終了 | 検討リスト | |
![]() | 15階 | 108.90坪 | お問い合わせください | 募集終了 | 検討リスト | |
![]() | 17階 | 246.56坪 | お問い合わせください | 募集終了 | 検討リスト | |
![]() | 17階 | 108.59坪 | お問い合わせください | 募集終了 | 検討リスト | |
![]() | 17階 | 501.24坪 | お問い合わせください | 募集終了 | 検討リスト | |
![]() | 17階 | 137.66坪 | お問い合わせください | 募集終了 | 検討リスト | |
![]() | 17階 | 108.90坪 | お問い合わせください | 募集終了 | 検討リスト | |
![]() | 18階 | 117.42坪 | お問い合わせください | 募集終了 | 検討リスト | |
![]() | 19階 | 108.52坪 | お問い合わせください | 募集終了 | 検討リスト | |
![]() | 19階 | 232.37坪 | お問い合わせください | 募集終了 | 検討リスト | |
![]() | 19階 | 108.52坪 | お問い合わせください | 募集終了 | 検討リスト | |
![]() | 20階 | 150.00坪 | お問い合わせください | 募集終了 | 検討リスト | |
![]() | 20階 | 280.05坪 | お問い合わせください | 募集終了 | 検討リスト | |
![]() | 20階 | 606.45坪 | お問い合わせください | 募集終了 | 検討リスト |
近くの物件紹介
江東区のエリア
近くの駅
| 取扱態様 | 仲介 |
|---|---|
| 取扱会社 | 株式会社アドマイアー 東京都中央区日本橋3-2-3ユニバース第1ビル2F TEL. 03-5204-1031 宅地建物取引業免許 東京都知事(3)第94663号 マンション管理業免許 国土交通大臣(2)第034224号 賃貸住宅管理業免許 国土交通大臣(01)第005938号 |
















