JMFビル東陽町02(江東区、新砂、東陽町、南砂町) の賃貸オフィス情報

- 所在地
- 東京都江東区新砂1-6-35
- 最寄り駅
- 東陽町駅徒歩9分、南砂町駅徒歩12分、潮見駅徒歩26分
- 竣工
- 1989年
- 規模
- 地上7階
- 構造
- SRC造(鉄骨鉄筋コンクリート造)
- 耐震基準
- 新耐震基準適合
- エントランス
- 平日・土曜日開放(平日8:00-20:00、土8:00-17:00)
- エレベーター総数
- 4基(人荷用エレベーター1台)
- 駐車場設備
- 有(平置式91台)
- 設備
- セキュリティゲート(フラッパーゲート)、 トイレ男女別、 喫煙室、 駐輪場、 貨物EVあり
JMFビル東陽町02 の物件特徴・おすすめポイント
■ フラッパーゲート導入で高いセキュリティを実現
■ 貨物用EV完備で機材搬入が多い企業にも好適
■ 駐車場・駐輪場があり多彩な通勤・営業スタイルに対応
■ 喫煙室や男女別トイレなど共用部設備が充実
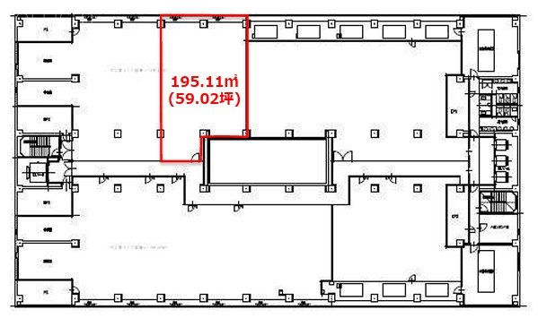
JMFビル東陽町02 の募集区画 (総募集面積 359.02坪)
※月額費用、坪単価 ともに共益費込・税別の価格です
建物に関するよくある質問と回答
A1. メインの最寄駅は東京メトロ東西線「東陽町駅」です。出口から永代通りを南砂町方面へ進み、新砂一丁目の交差点を曲がって徒歩9分ほどで到着します。平坦な道のりのため、日々の通勤や来客時の案内もスムーズに行えるルートです。
Q2. JMFビル東陽町02の耐震性能・構造はどうなっていますか?
A2. 本物件は1989年竣工であり、現在の新耐震基準に完全に適合しています。構造はSRC造(鉄骨鉄筋コンクリート造)を採用しており、耐震性と耐久性に優れた非常に堅牢な造りとなっています。
Q3. JMFビル東陽町02の室内スペック(天井高・床仕様・空調など)について教えてください。
A3. 当ビルには個別空調が導入されており、各区画で快適な温度設定が可能です。天井高は2,550mmを確保しており、OAフロアも完備されているため、配線を考慮した自由度の高いレイアウトが実現できます。
Q4. JMFビル東陽町02のセキュリティ体制はどうなっていますか?
A4. 本物件のエントランスにはフラッパーゲート(セキュリティゲート)が設置されています。許可された利用者以外の侵入を厳格に制限しており、機密情報を扱う企業でも安心して稼働いただけます。
Q5. JMFビル東陽町02には貨物用の搬入設備はありますか?
A5. 敷地内には合計4基のエレベーターが設置されており、そのうち1基は貨物用(人荷用)として利用可能です。大型の機材や什器の搬入出が必要な企業にとっても非常に利便性の高い仕様となっています。
Q6. JMFビル東陽町02の喫煙環境や駐輪場について教えてください。
A6. 本物件内には専用の喫煙室が完備されており、分煙環境が整っています。また、駐輪場も設置されているため、近隣からの自転車通勤にも柔軟に対応可能です。
Q7. JMFビル東陽町02の周辺環境はどうなっていますか?
A7. 本物件の周辺はビジネス街としての顔を持ち、近隣にはローソンやファミリーマートなどのコンビニエンスストアが点在しています。ランチ事情も良好で、郵便局などの公共サービスも充実しているため、業務効率を高める環境が揃っています。
地図
東京都江東区新砂1-6-35 地図をクリックして拡大できます
JMFビル東陽町02 の外観イメージ
地上7階建て、SRC造の重厚感あふれる大型オフィスビルです。グレーを基調とした落ち着きのある外観は、ビジネス拠点としての信頼感と安定感を周囲に印象付けます。横幅のある堂々とした佇まいは視認性が極めて高く、来客の際も容易に所在を確認することが可能です。築年数を感じさせない整った管理体制により、清潔感のあるモダンな雰囲気を維持しており、企業ブランドの向上に寄与する意匠性を備えています。




























JMFビル東陽町02 の周辺イメージ
物件付近には「ローソン 江東運転免許試験場前店」などのコンビニが複数営業しており、日用品の買い出しに便利です。また、少し足を伸ばせば「南砂町ショッピングセンターSUNAMO」があり、飲食店やショップが充実しているためランチや仕事帰りにも好適です。江東新砂郵便局も徒歩圏内にあり、金融・事務手続きもスムーズに行える、ビジネスを支えるインフラが整った利便性の高い立地です。



JMFビル東陽町02 のアクセス・ロケーション
■ 駅徒歩分数
・東京メトロ東西線 「東陽町駅」 出口より徒歩9分
・東京メトロ東西線 「南砂町駅」 出口より徒歩12分
・JR京葉線 「潮見駅」 出口より徒歩26分
■ 主要エリアへのアクセス
日本橋駅まで東西線で直通約9分、大手町駅へも約10分と、都心主要ビジネスエリアへダイレクトにアクセス可能です。主要駅への所要時間が短いため、外出の多い営業拠点としても非常に高い利便性を誇ります。
■ エリア特性
新砂エリアは永代通り沿いの利便性と、落ち着いた業務環境を両立しています。周辺には大手企業のオフィスや配送拠点も多く、ビジネスインフラが高度に集積しているのが特徴です。
JMFビル東陽町02 の募集終了区画
| 図面 | 階数 | 坪数 | 月額費用 | 坪単価 | 入居可能日 | |
|---|---|---|---|---|---|---|
![]() | 1階 | 96.29坪 | お問い合わせください | 募集終了 | 検討リスト | |
![]() | 1階 | 55.82坪 | お問い合わせください | 募集終了 | 検討リスト | |
![]() | 1階 | 55.82坪 | お問い合わせください | 募集終了 | 検討リスト | |
![]() | 2階 | 124.88坪 | お問い合わせください | 募集終了 | 検討リスト | |
![]() | 2階 | 144.97坪 | お問い合わせください | 募集終了 | 検討リスト | |
![]() | 2階 | 115.60坪 | お問い合わせください | 募集終了 | 検討リスト | |
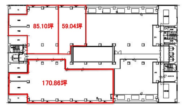
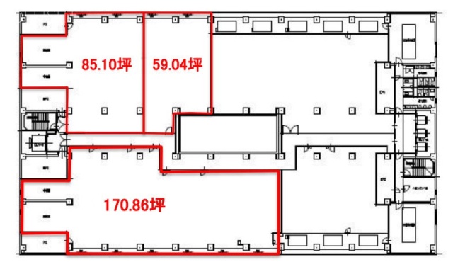
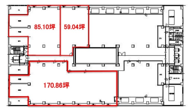
![]() | 3階 | 170.86坪 | お問い合わせください | 募集終了 | 検討リスト | |
![]() | 3階 | 146.79坪 | お問い合わせください | 募集終了 | 検討リスト | |
![]() | 3階 | 85.10坪 | お問い合わせください | 募集終了 | 検討リスト | |
![]() | 3階 | 59.04坪 | お問い合わせください | 募集終了 | 検討リスト | |
![]() | 3階 | 112.31坪 | お問い合わせください | 募集終了 | 検討リスト | |
![]() | 4階 | 589.91坪 | お問い合わせください | 募集終了 | 検討リスト | |
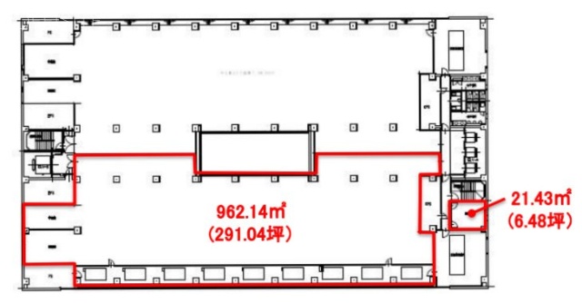
![]() | 4階 | 291.04坪 | お問い合わせください | 募集終了 | 検討リスト | |
![]() | 4階 | 194.61坪 | お問い合わせください | 募集終了 | 検討リスト | |
![]() | 4階 | 97.16坪 | お問い合わせください | 募集終了 | 検討リスト | |
![]() | 5階 | 290.82坪 | お問い合わせください | 募集終了 | 検討リスト | |
![]() | 5階 | 291.68坪 | お問い合わせください | 募集終了 | 検討リスト | |
![]() | 6階 | 600.00坪 | お問い合わせください | 募集終了 | 検討リスト | |
![]() | 6階 | 296.39坪 | お問い合わせください | 募集終了 | 検討リスト | |
![]() | 6階 | 6.44坪 | お問い合わせください | 募集終了 | 検討リスト | |
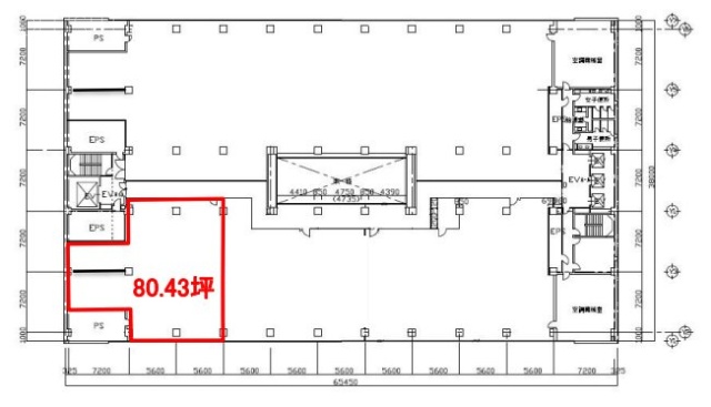
![]() | 7階 | 80.06坪 | お問い合わせください | 募集終了 | 検討リスト | |
![]() | 7階 | 297.17坪 | お問い合わせください | 募集終了 | 検討リスト | |
![]() | 7階 | 118.24坪 | お問い合わせください | 募集終了 | 検討リスト | |
![]() | 7階 | 119.19坪 | お問い合わせください | 募集終了 | 検討リスト | |
![]() | 7階 | 203.95坪 | お問い合わせください | 募集終了 | 検討リスト | |
![]() | 7階 | 86.57坪 | お問い合わせください | 募集終了 | 検討リスト | |
![]() | 7階 | 66.01坪 | お問い合わせください | 募集終了 | 検討リスト | |
![]() | 7階 | 98.83坪 | お問い合わせください | 募集終了 | 検討リスト | |
![]() | 7階 | 80.06坪 | お問い合わせください | 募集終了 | 検討リスト |
JMFビル東陽町02 が選ばれる理由
■ フラッパーゲート導入によるハイレベルなセキュリティ管理体制
エントランスに先進的なセキュリティゲートを完備しており、部外者の立ち入りを厳格に制限します。機密情報の取り扱いが多いIT企業や、士業、コンサルティング会社などの拠点として高い信頼性を担保します。
■ 貨物用EVと大型駐車場・駐輪場完備による機動力の確保
合計4基のエレベーターのうち1基を貨物用(人荷用)として確保し、さらに駐車場・駐輪場も備えています。機材の搬入出や、車・自転車を用いた営業活動・通勤が不可欠な企業にとって、業務を停滞させない優れたインフラを提供します。
■ 天井高2,550mmの開放空間と充実したアメニティによる生産性向上
ゆとりある天井高とOAフロアが自由度の高いオフィスレイアウトを可能にします。また、ビル内喫煙室や男女別トイレ、近隣の商業施設などのアメニティが充実しており、従業員のストレス軽減と業務への集中力維持を強力に支援します。
近くの物件紹介
江東区のエリア
近くの駅
| 取扱態様 | 仲介 |
|---|---|
| 取扱会社 | 株式会社アドマイアー 東京都中央区日本橋3-2-3ユニバース第1ビル2F TEL. 03-5204-1031 宅地建物取引業免許 東京都知事(3)第94663号 マンション管理業免許 国土交通大臣(2)第034224号 賃貸住宅管理業免許 国土交通大臣(01)第005938号 |














































