京王東日本橋ビル(中央区、東日本橋、馬喰横山、馬喰町) の賃貸オフィス情報

- 所在地
- 東京都中央区東日本橋1-1-7
- 最寄り駅
- 東日本橋駅徒歩2分、馬喰横山駅徒歩3分、馬喰町駅徒歩6分
- 竣工
- 1990年
- 規模
- 地上9階・地下1階
- 構造
- S造(鉄骨造)
- 耐震基準
- 新耐震基準適合
- セキュリティ
- 機械警備(24時間監視)
- エントランス
- 平日開放
- エレベーター総数
- 1基
- 駐車場設備
- 要確認
京王東日本橋ビル の募集区画 (総募集面積 0.00坪)
現在募集はありません。
地図
東京都中央区東日本橋1-1-7 地図をクリックして拡大できます
京王東日本橋ビル の外観イメージ
京王東日本橋ビル(中央区東日本橋)は、1990年に竣工した地上9階、地下1階建ての賃貸オフィスビルです。 シルバーのタイル張りのスタイリッシュで近代的な外観をしており、丸みを帯びたフォルムが特徴的です。 石造りのエントランスは、清潔な印象で、開放感にあふれ、重厚感漂う共有部、エレベーターホールへと続いています。 エレベーターは2基搭載。1階に信用金庫が入居中の為、入金処理等もスムーズにできそうです。

















京王東日本橋ビル の周辺イメージ
京王東日本橋ビル(中央区東日本橋)は、馬喰横山駅より徒歩3分、東日本橋駅より徒歩4分の交通利便性の高い場所に位置しています。 清洲橋通り付近に立地しており、東日本橋交差点からも程近い立地です。 隣のビルの1階にはコンビニが入居しているので、買い出し等に便利に活用できるでしょう。 交通量は多いものの、それ程騒がしさはない環境です。飲食店も周辺に点在している為、お昼休みのランチの場所に困ることはないでしょう。


京王東日本橋ビル の募集終了区画
| 図面 | 階数 | 坪数 | 月額費用 | 坪単価 | 入居可能日 | |
|---|---|---|---|---|---|---|
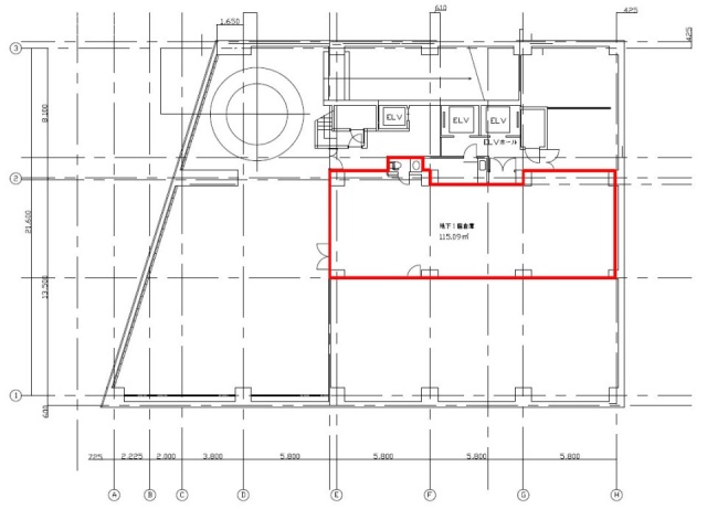
![]() | B1階 | 34.81坪 | お問い合わせください | 募集終了 | 検討リスト | |
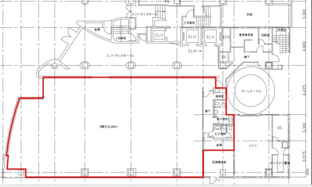
![]() | 1階 | 96.58坪 | お問い合わせください | 募集終了 | 検討リスト | |
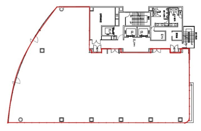
![]() | 2階 | 119.37坪 | お問い合わせください | 募集終了 | 検討リスト | |
![]() | 2階 | 49.62坪 | お問い合わせください | 募集終了 | 検討リスト | |
![]() | 3階 | 168.99坪 | お問い合わせください | 募集終了 | 検討リスト | |
![]() | 4階 | 168.99坪 | お問い合わせください | 募集終了 | 検討リスト | |
![]() | 5階 | 112.94坪 | お問い合わせください | 募集終了 | 検討リスト | |
![]() | 5階 | 87.20坪 | お問い合わせください | 募集終了 | 検討リスト | |
![]() | 5階 | 56.52坪 | お問い合わせください | 募集終了 | 検討リスト | |
![]() | 6階 | 168.99坪 | お問い合わせください | 募集終了 | 検討リスト | |
![]() | 7階 | 169.00坪 | お問い合わせください | 募集終了 | 検討リスト | |
![]() | 8階 | 169.00坪 | お問い合わせください | 募集終了 | 検討リスト | |
![]() | 9階 | 98.31坪 | お問い合わせください | 募集終了 | 検討リスト |
近くの物件紹介
中央区のエリア
近くの駅
| 取扱態様 | 仲介 |
|---|---|
| 取扱会社 | 株式会社アドマイアー 東京都中央区日本橋3-2-3ユニバース第1ビル2F TEL. 03-5204-1031 宅地建物取引業免許 東京都知事(3)第94663号 マンション管理業免許 国土交通大臣(2)第034224号 賃貸住宅管理業免許 国土交通大臣(01)第005938号 |






























