新小川町ビル(新宿区、新小川町、飯田橋、神楽坂) の賃貸オフィス情報

- 所在地
- 東京都新宿区新小川町9-20
- 最寄り駅
- 飯田橋駅徒歩7分、神楽坂駅徒歩10分、後楽園駅徒歩16分
- 竣工
- 1989年
- 規模
- 地上6階
- 構造
- RC造(鉄筋コンクリート造)
- 耐震基準
- 新耐震基準適合
- エントランス
- 平日開放
- エレベーター総数
- 1基
- 駐車場設備
- 要確認
新小川町ビルは、飯田橋駅徒歩8分に位置し、5路線利用可能なアクセス環境が魅力のSRC造6階建て賃貸オフィスです。約30坪弱のコンパクトな整形フロアは使いやすく、OAフロアは未対応ながら配線の工夫でICT環境にも柔軟に対応可能。個別空調と男女別トイレ、24時間対応の機械警備が快適かつ安全な業務環境を実現します。メタリックタイルの外観と清潔感あるエントランスが企業の信頼感を高め、飯田橋エリアの落ち着いた環境が業務の効率化に寄与する物件です。
新小川町ビル の募集区画 (総募集面積 28.83坪)
※月額費用、坪単価 ともに共益費込・税別の価格です
地図
東京都新宿区新小川町9-20 地図をクリックして拡大できます
新小川町ビル の外観イメージ
新小川町ビルはメタリック調のタイル貼り外壁と清涼感あるエントランスホールが特徴で、落ち着いた都市環境に調和するスタイリッシュな外観です。地上6階建ての均整のとれたフォルムが角地の立地を活かし視認性が良好。定期的な管理と清掃により良好な状態が保たれ、建物の信頼感と安心感を高めています。飯田橋エリアの落ち着いたオフィス街に自然になじむデザインです。








新小川町ビル の周辺イメージ
新小川町交差点の角地に位置し、飯田橋駅から各方面へアクセス良好です。周辺は落ち着いた住宅街とビジネスエリアが混在し、飲食店やコンビニ、郵便局、銀行などの利便施設が充実。徒歩圏には神楽坂の商業エリアもあり、商談やランチの場に適しています。交通の利便性と業務サポート環境が両立したエリアで、多様な業種のニーズに応えます。


新小川町ビル の募集終了区画
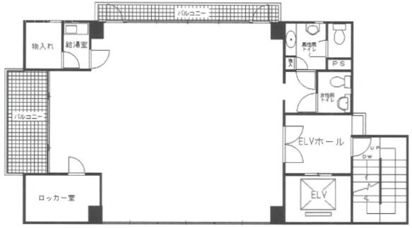
| 図面 | 階数 | 坪数 | 月額費用 | 坪単価 | 入居可能日 | |
|---|---|---|---|---|---|---|
![]() | 3階 | 28.83坪 | お問い合わせください | 募集終了 | 検討リスト |
近くの物件紹介
新宿区のエリア
近くの駅
| 取扱態様 | 仲介 |
|---|---|
| 取扱会社 | 株式会社アドマイアー 東京都中央区日本橋3-2-3ユニバース第1ビル2F TEL. 03-5204-1031 宅地建物取引業免許 東京都知事(3)第94663号 マンション管理業免許 国土交通大臣(2)第034224号 賃貸住宅管理業免許 国土交通大臣(01)第005938号 |


























