茅場町タワー(中央区、新川、茅場町、水天宮前) の賃貸オフィス情報

- 所在地
- 東京都中央区新川1-21-2
- 最寄り駅
- 茅場町駅徒歩9分、水天宮前駅徒歩10分、八丁堀駅徒歩11分
- 竣工
- 1996年
- 規模
- 地上21階・地下2階
- 構造
- SRC造(鉄骨鉄筋コンクリート造)
- 耐震基準
- 新耐震基準適合
- セキュリティ
- 機械警備(24時間監視)
- エントランス
- 平日開放
- エレベーター総数
- 12基
- 駐車場設備
- 要確認
賃料相場
191件のデータ
茅場町タワー の物件特徴・おすすめポイント
永代通りと日本橋川の交差地点に位置し、その堂々たる姿でビジネスシーンを象徴する「茅場町タワー」は、東京都中央区新川一丁目にそびえ立つ地上21階建ての高層ビルです。1996年10月に竣工して以来、この建物は多くの企業にとって成長の舞台となってきました。かつて山一證券の本社が置かれていたという歴史的背景を持ちながら、常に時代のニーズに応えるべく進化を続け、現在では都内有数のオフィスビルとしてその名を馳せています。茅場町というビジネスの中心地にほど近い新川に位置しながらも、その静かで落ち着いた環境は、ビジネスに集中したい企業にとって理想的なロケーションと言えるでしょう。
この「茅場町タワー」は、鉄骨造を基盤とした堅牢な構造を持ち、地上21階、地下2階、そして塔屋2階という壮大なスケールを誇ります。高さは約99.9mに達し、都心の景色を一望できる開放感は、働く人々に活力を与えます。基準階面積は約506坪という広さを持ち、これは多様なオフィスレイアウトに対応できる十分なスペースです。総賃貸面積は約46,081㎡に及び、大規模な企業の本社機能はもちろんのこと、成長を目指す中小企業やスタートアップ企業にとっても魅力的な賃貸事務所の選択肢となります。
オフィスフロアは、天井高が2,700mmと高く設計されており、開放感あふれる空間で快適なオフィスワークを実現できます。OAフロアが完備されているため、煩雑になりがちな配線を床下に収納でき、すっきりとしたオフィス環境を維持することが可能です。また、レイアウト変更にも柔軟に対応できるため、企業の成長や変化に合わせてオフィスを最適化できます。空調システムは個別空調を採用しており、各テナントがそれぞれのニーズに合わせて温度管理を行うことができます。エレベーターは4基設置されており、高層階への移動もスムーズです。各フロアには男女別のトイレと給湯室が完備されており、日々のオフィスライフを快適にサポートします。
共用部も充実しており、洗練されたエントランスと広々としたロビーは、来訪者に好印象を与えます。地下には駐車場が完備されており、自走式と機械式合わせて約110台の駐車スペースが確保されていますので、車でのアクセスも安心です。セキュリティ面も配慮されており、機械警備システムやオートロックなどが導入され、24時間体制で入居企業の安全を守ります。
「茅場町タワー」は、ビジネスにおけるアクセス利便性においても非常に優れています。最寄りの駅は、東京メトロ日比谷線と東西線が乗り入れる「茅場町駅」で、徒歩わずか9分という近さです。さらに、東京メトロ半蔵門線の「水天宮前駅」からも徒歩10分、東京メトロ日比谷線とJR京葉線の「八丁堀駅」からも徒歩11分と、複数の路線が利用可能です。これにより、大手町、東京駅、銀座、日本橋といった主要ビジネスエリアへのアクセスは非常にスムーズです。
周辺環境もビジネスを行う上で非常に便利です。駅周辺にはコンビニエンスストアやドラッグストア、飲食店などが多数あり、日々の買い物や食事に困ることはありません。また、金融機関や郵便局も近くにあり、ビジネスに必要な手続きもスムーズに行えます。中央区という都心に位置しながらも、日本橋川が近くを流れ、落ち着いた雰囲気も持ち合わせており、ビジネスとリフレッシュのバランスを取りやすい環境です。
「茅場町タワー」は、新耐震基準に適合しており、2024年にはリニューアルも実施され、共用部などがアップデートされています。これにより、入居企業はより快適なオフィス環境を利用することができます。約500坪の基準階は、様々な業種や規模の企業に対応できるフレキシブルな空間です。個別空調やOAフロアといった基本的な設備に加え、信頼性の高い管理体制が、入居企業のビジネスをしっかりとサポートします。
このような特徴から、「茅場町タワー」は、都心へのアクセスを重視し、事業拡大を視野に入れている企業、快適で機能的なオフィス環境を求める企業、そして信頼性とブランドイメージを大切にする企業にとって、最適な賃貸事務所となるでしょう。長期的な視点でオフィスを探している企業にも、新耐震基準適合やリニューアルといった点で安心して選んでいただけるオフィスビルです。
この「茅場町タワー」は、鉄骨造を基盤とした堅牢な構造を持ち、地上21階、地下2階、そして塔屋2階という壮大なスケールを誇ります。高さは約99.9mに達し、都心の景色を一望できる開放感は、働く人々に活力を与えます。基準階面積は約506坪という広さを持ち、これは多様なオフィスレイアウトに対応できる十分なスペースです。総賃貸面積は約46,081㎡に及び、大規模な企業の本社機能はもちろんのこと、成長を目指す中小企業やスタートアップ企業にとっても魅力的な賃貸事務所の選択肢となります。
オフィスフロアは、天井高が2,700mmと高く設計されており、開放感あふれる空間で快適なオフィスワークを実現できます。OAフロアが完備されているため、煩雑になりがちな配線を床下に収納でき、すっきりとしたオフィス環境を維持することが可能です。また、レイアウト変更にも柔軟に対応できるため、企業の成長や変化に合わせてオフィスを最適化できます。空調システムは個別空調を採用しており、各テナントがそれぞれのニーズに合わせて温度管理を行うことができます。エレベーターは4基設置されており、高層階への移動もスムーズです。各フロアには男女別のトイレと給湯室が完備されており、日々のオフィスライフを快適にサポートします。
共用部も充実しており、洗練されたエントランスと広々としたロビーは、来訪者に好印象を与えます。地下には駐車場が完備されており、自走式と機械式合わせて約110台の駐車スペースが確保されていますので、車でのアクセスも安心です。セキュリティ面も配慮されており、機械警備システムやオートロックなどが導入され、24時間体制で入居企業の安全を守ります。
「茅場町タワー」は、ビジネスにおけるアクセス利便性においても非常に優れています。最寄りの駅は、東京メトロ日比谷線と東西線が乗り入れる「茅場町駅」で、徒歩わずか9分という近さです。さらに、東京メトロ半蔵門線の「水天宮前駅」からも徒歩10分、東京メトロ日比谷線とJR京葉線の「八丁堀駅」からも徒歩11分と、複数の路線が利用可能です。これにより、大手町、東京駅、銀座、日本橋といった主要ビジネスエリアへのアクセスは非常にスムーズです。
周辺環境もビジネスを行う上で非常に便利です。駅周辺にはコンビニエンスストアやドラッグストア、飲食店などが多数あり、日々の買い物や食事に困ることはありません。また、金融機関や郵便局も近くにあり、ビジネスに必要な手続きもスムーズに行えます。中央区という都心に位置しながらも、日本橋川が近くを流れ、落ち着いた雰囲気も持ち合わせており、ビジネスとリフレッシュのバランスを取りやすい環境です。
「茅場町タワー」は、新耐震基準に適合しており、2024年にはリニューアルも実施され、共用部などがアップデートされています。これにより、入居企業はより快適なオフィス環境を利用することができます。約500坪の基準階は、様々な業種や規模の企業に対応できるフレキシブルな空間です。個別空調やOAフロアといった基本的な設備に加え、信頼性の高い管理体制が、入居企業のビジネスをしっかりとサポートします。
このような特徴から、「茅場町タワー」は、都心へのアクセスを重視し、事業拡大を視野に入れている企業、快適で機能的なオフィス環境を求める企業、そして信頼性とブランドイメージを大切にする企業にとって、最適な賃貸事務所となるでしょう。長期的な視点でオフィスを探している企業にも、新耐震基準適合やリニューアルといった点で安心して選んでいただけるオフィスビルです。
茅場町タワー の募集区画 (総募集面積 0.00坪)
現在募集はありません。
地図
東京都中央区新川1-21-2 地図をクリックして拡大できます
茅場町タワー の外観イメージ
茅場町タワー(中央区新川)は、基準階坪数が500坪以上の大型物件で、視認性の高い外観をしています。
茅場町のランドマークにもなっています。
広々としたエントランスには、エレベーターが12基設置されています。
1Fにコンビニエンスストアが入居中です。
セキュリティには機械警備システムを導入しています。
平面式駐車場があります。















茅場町タワー の周辺イメージ
茅場町タワー(中央区新川)は茅場町駅から徒歩9分です。
永代通りの角地に立地しており、視認性は良好です。
徒歩圏内に大手銀行や郵便局が立地しています。

茅場町タワー の主な入居テナント
茅場町タワー の募集終了区画
| 図面 | 階数 | 坪数 | 月額費用 | 坪単価 | 入居可能日 | |
|---|---|---|---|---|---|---|
![]() | 1階 | 206.13坪 | お問い合わせください | 募集終了 | 検討リスト | |
![]() | 1階 | 18.00坪 | お問い合わせください | 募集終了 | 検討リスト | |
![]() | 1階 | 68.50坪 | お問い合わせください | 募集終了 | 検討リスト | |
![]() | 1階 | 199.82坪 | お問い合わせください | 募集終了 | 検討リスト | |
![]() | 2階 | 249.50坪 | お問い合わせください | 募集終了 | 検討リスト | |
![]() | 2階 | 248.33坪 | お問い合わせください | 募集終了 | 検討リスト | |
![]() | 3階 | 256.60坪 | お問い合わせください | 募集終了 | 検討リスト | |
![]() | 3階 | 256.60坪 | お問い合わせください | 募集終了 | 検討リスト | |
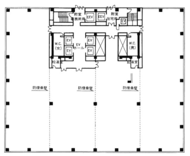
![]() | 4階 | 506.10坪 | お問い合わせください | 募集終了 | 検討リスト | |
![]() | 5階 | 506.10坪 | お問い合わせください | 募集終了 | 検討リスト | |
![]() | 5階 | 257.77坪 | お問い合わせください | 募集終了 | 検討リスト | |
![]() | 5階 | 248.33坪 | お問い合わせください | 募集終了 | 検討リスト | |
![]() | 6階 | 506.10坪 | お問い合わせください | 募集終了 | 検討リスト | |
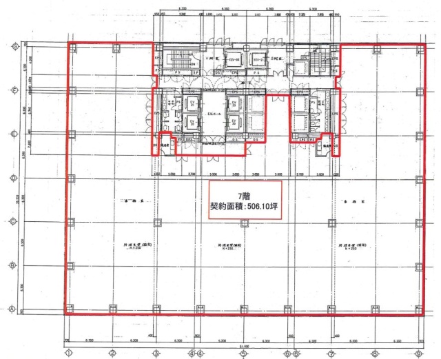
![]() | 7階 | 506.10坪 | お問い合わせください | 募集終了 | 検討リスト | |
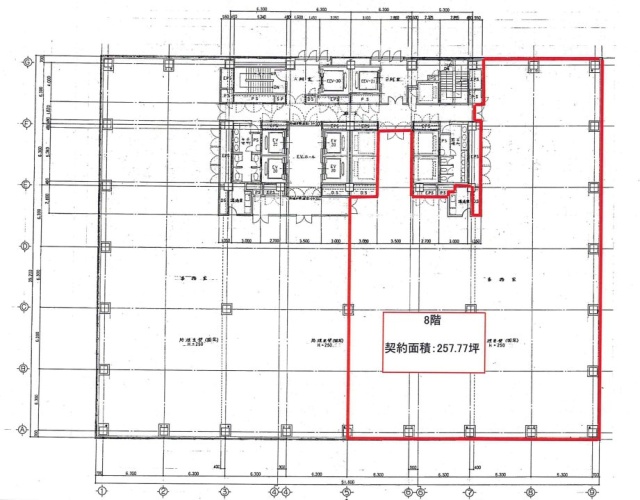
![]() | 8階 | 506.10坪 | お問い合わせください | 募集終了 | 検討リスト | |
![]() | 8階 | 257.77坪 | お問い合わせください | 募集終了 | 検討リスト | |
![]() | 9階 | 499.00坪 | お問い合わせください | 募集終了 | 検討リスト | |
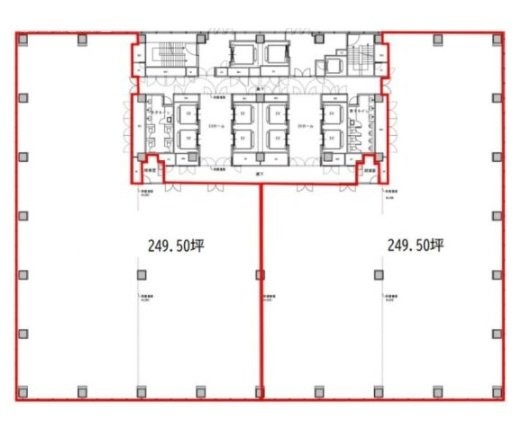
![]() | 9階 | 249.50坪 | お問い合わせください | 募集終了 | 検討リスト | |
![]() | 9階 | 249.50坪 | お問い合わせください | 募集終了 | 検討リスト | |
![]() | 10階 | 506.10坪 | お問い合わせください | 募集終了 | 検討リスト | |
![]() | 11階 | 506.10坪 | お問い合わせください | 募集終了 | 検討リスト | |
![]() | 12階 | 257.77坪 | お問い合わせください | 募集終了 | 検討リスト | |
![]() | 12階 | 248.33坪 | お問い合わせください | 募集終了 | 検討リスト | |
![]() | 13階 | 219.53坪 | お問い合わせください | 募集終了 | 検討リスト | |
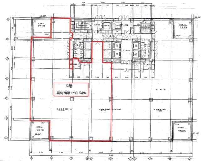
![]() | 13階 | 238.54坪 | お問い合わせください | 募集終了 | 検討リスト | |
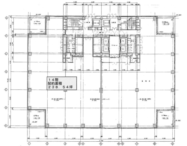
![]() | 14階 | 238.54坪 | お問い合わせください | 募集終了 | 検討リスト | |
![]() | 14階 | 219.53坪 | お問い合わせください | 募集終了 | 検討リスト | |
![]() | 15階 | 500.23坪 | お問い合わせください | 募集終了 | 検討リスト | |
![]() | 15階 | 458.07坪 | お問い合わせください | 募集終了 | 検討リスト | |
![]() | 16階 | 458.07坪 | お問い合わせください | 募集終了 | 検討リスト |
近くの物件紹介
中央区のエリア
近くの駅
| 取扱態様 | 仲介 |
|---|---|
| 取扱会社 | 株式会社アドマイアー 東京都中央区日本橋3-2-3ユニバース第1ビル2F TEL. 03-5204-1031 宅地建物取引業免許 東京都知事(3)第94663号 マンション管理業免許 国土交通大臣(2)第034224号 賃貸住宅管理業免許 国土交通大臣(01)第005938号 |




































