内幸町ダイビル(千代田区、内幸町、虎ノ門、新橋) の賃貸オフィス情報

- 所在地
- 東京都千代田区内幸町1-3-3
- 最寄り駅
- 内幸町駅徒歩1分、虎ノ門駅徒歩4分、新橋駅徒歩5分
- 竣工
- 1983年
- 規模
- 地上9階・地下2階
- 構造
- SRC造(鉄骨鉄筋コンクリート造)
- 耐震基準
- 新耐震基準適合
- セキュリティ
- 有人管理(警備員常駐)
- エントランス
- 平日開放
- エレベーター総数
- 4基
- 駐車場設備
- 要確認
千代田区内幸町にそびえ立つ「内幸町ダイビル」は、1983年1月の竣工以来、その卓越した立地と機能性で多くの企業から選ばれてきた大型オフィスビルです。2011年と2019年の二度にわたる大規模リニューアルを経て、現代のビジネスシーンに求められる最新鋭のオフィス空間へと進化を遂げました。鉄骨鉄筋コンクリート造の堅牢な構造に加え、新耐震基準をクリアしており、万が一の災害時にも事業継続を可能にする安全性を確保しています。基準階面積は約235坪(約776㎡)を誇り、企業の規模やニーズに合わせて柔軟なフロア分割が可能なため、多様なオフィスレイアウトに対応できます。
オフィス環境においては、天井高2,500mm、OAフロア完備により、開放的で機能的な空間を実現。セントラル空調システムがオフィス全体を快適な温度に保ち、乗用エレベーター3基と人荷用エレベーター1基がスムーズな垂直移動をサポートします。各フロアには清潔なトイレと給湯室が設置され、地下2階には喫煙室も用意。近年実施されたリニューアルでは、非接触式トイレなど最新設備も導入されています。また、光ファイバーによる高速かつ安定したインターネット環境も完備しています。
共用部においても、洗練されたエントランスが来訪者を迎え入れ、有人管理と機械警備を組み合わせた24時間体制のセキュリティシステムが入居企業の安全を確保します。駐車場が完備しており、都心でのビジネスを足元から支えます。さらに、環境負荷低減に貢献するCO2フリー電力を導入し、72時間対応の非常用電源は災害時の事業継続を支援します。1階にはコンビニエンスストアが入居しており、日々のビジネスに必要なものを手軽に調達できる利便性も魅力です。
内幸町ダイビルの最大の強みは、その比類なき交通利便性です。都営三田線「内幸町駅」まで徒歩1分、JR・東京メトロ銀座線「新橋駅」まで徒歩5分、東京メトロ銀座線「新橋駅」まで徒歩3分、東京メトロ丸ノ内線・千代田線・日比谷線「霞ヶ関駅」まで徒歩6分、東京メトロ日比谷線「日比谷駅」まで徒歩9分と、複数路線・駅が徒歩圏内にあり、都内主要ビジネスエリアへのアクセスは極めて容易です。銀座、丸の内、大手町、渋谷、新宿といった主要拠点へ短時間で移動できるため、日々の通勤や顧客訪問、会議への参加もスムーズに行えます。
大規模リニューアルによって現代的なオフィス環境へと生まれ変わった内幸町ダイビルは、フレキシブルなオフィス空間、充実した基本性能、信頼性の高いブランドイメージ、そして万全の安全・安心体制を提供します。大手企業が集積するこのエリアに位置し、村野・森建築事務所が手掛けた洗練されたデザインは、企業のブランド価値を高めます。
周辺環境もまた、ビジネスをサポートする上で重要な要素です。新橋駅周辺には商業施設や飲食店が充実しており、ランチやアフターワークの選択肢も豊富。金融機関や郵便局なども近隣にあり、日々の業務を円滑に進めることができます。霞ヶ関エリアに隣接しているため、官公庁関連の企業にとってもビジネス上のメリットは大きいでしょう。また、徒歩圏内には日比谷公園もあり、緑豊かな環境で気分転換を図ることも可能です。
このような特徴を持つ内幸町ダイビルは、都心の一等地で高いブランドイメージを求める企業、複数の主要ビジネスエリアへのアクセスを重視する企業、従業員の通勤利便性を重視する企業、最新の設備と快適なオフィス環境を求める企業、事業継続計画(BCP)対策を重視する企業、そして環境への意識が高い企業にとって、最適なオフィス空間となるでしょう。まさに内幸町ダイビルは、企業の成長と発展を力強く後押しする、進化し続けるハイグレードオフィスビルと言えるでしょう。
オフィス環境においては、天井高2,500mm、OAフロア完備により、開放的で機能的な空間を実現。セントラル空調システムがオフィス全体を快適な温度に保ち、乗用エレベーター3基と人荷用エレベーター1基がスムーズな垂直移動をサポートします。各フロアには清潔なトイレと給湯室が設置され、地下2階には喫煙室も用意。近年実施されたリニューアルでは、非接触式トイレなど最新設備も導入されています。また、光ファイバーによる高速かつ安定したインターネット環境も完備しています。
共用部においても、洗練されたエントランスが来訪者を迎え入れ、有人管理と機械警備を組み合わせた24時間体制のセキュリティシステムが入居企業の安全を確保します。駐車場が完備しており、都心でのビジネスを足元から支えます。さらに、環境負荷低減に貢献するCO2フリー電力を導入し、72時間対応の非常用電源は災害時の事業継続を支援します。1階にはコンビニエンスストアが入居しており、日々のビジネスに必要なものを手軽に調達できる利便性も魅力です。
内幸町ダイビルの最大の強みは、その比類なき交通利便性です。都営三田線「内幸町駅」まで徒歩1分、JR・東京メトロ銀座線「新橋駅」まで徒歩5分、東京メトロ銀座線「新橋駅」まで徒歩3分、東京メトロ丸ノ内線・千代田線・日比谷線「霞ヶ関駅」まで徒歩6分、東京メトロ日比谷線「日比谷駅」まで徒歩9分と、複数路線・駅が徒歩圏内にあり、都内主要ビジネスエリアへのアクセスは極めて容易です。銀座、丸の内、大手町、渋谷、新宿といった主要拠点へ短時間で移動できるため、日々の通勤や顧客訪問、会議への参加もスムーズに行えます。
大規模リニューアルによって現代的なオフィス環境へと生まれ変わった内幸町ダイビルは、フレキシブルなオフィス空間、充実した基本性能、信頼性の高いブランドイメージ、そして万全の安全・安心体制を提供します。大手企業が集積するこのエリアに位置し、村野・森建築事務所が手掛けた洗練されたデザインは、企業のブランド価値を高めます。
周辺環境もまた、ビジネスをサポートする上で重要な要素です。新橋駅周辺には商業施設や飲食店が充実しており、ランチやアフターワークの選択肢も豊富。金融機関や郵便局なども近隣にあり、日々の業務を円滑に進めることができます。霞ヶ関エリアに隣接しているため、官公庁関連の企業にとってもビジネス上のメリットは大きいでしょう。また、徒歩圏内には日比谷公園もあり、緑豊かな環境で気分転換を図ることも可能です。
このような特徴を持つ内幸町ダイビルは、都心の一等地で高いブランドイメージを求める企業、複数の主要ビジネスエリアへのアクセスを重視する企業、従業員の通勤利便性を重視する企業、最新の設備と快適なオフィス環境を求める企業、事業継続計画(BCP)対策を重視する企業、そして環境への意識が高い企業にとって、最適なオフィス空間となるでしょう。まさに内幸町ダイビルは、企業の成長と発展を力強く後押しする、進化し続けるハイグレードオフィスビルと言えるでしょう。
内幸町ダイビル の募集区画 (総募集面積 0.00坪)
現在募集はありません。
地図
東京都千代田区内幸町1-3-3 地図をクリックして拡大できます
内幸町ダイビル の外観イメージ
内幸町ダイビル(千代田区内幸町)の外観は、アルミ板カーテンウォールのシルバー系外壁が印象的で、自然発色の美しい光沢と現代的なデザインが特徴。洗練された外観が外堀通りに映え、重厚感と先進性を兼ね備えています。









内幸町ダイビル の周辺イメージ
内幸町ダイビル(千代田区内幸町)の周辺情報は、周辺には日比谷公園、帝国ホテル、第一ホテル東京などの有名施設、銀行支店やコンビニも多数。ビジネス・飲食・宿泊など利便性抜群の環境です。



内幸町ダイビル の募集終了区画
| 図面 | 階数 | 坪数 | 月額費用 | 坪単価 | 入居可能日 | |
|---|---|---|---|---|---|---|
![]() | 1階 | 40.23坪 | - | - | 募集終了 | 検討リスト |
![]() | 1階 | 28.34坪 | - | - | 募集終了 | 検討リスト |
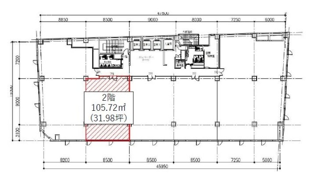
![]() | 2階 | 31.98坪 | - | - | 募集終了 | 検討リスト |
![]() | 2階 | 152.48坪 | - | - | 募集終了 | 検討リスト |
![]() | 3階 | 33.01坪 | - | - | 募集終了 | 検討リスト |
![]() | 3階 | 33.01坪 | - | - | 募集終了 | 検討リスト |
![]() | 3階 | 57.41坪 | - | - | 募集終了 | 検討リスト |
![]() | 3階 | 103.68坪 | - | - | 募集終了 | 検討リスト |
![]() | 4階 | 235.01坪 | - | - | 募集終了 | 検討リスト |
![]() | 4階 | 112.23坪 | - | - | 募集終了 | 検討リスト |
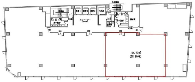
![]() | 5階 | 58.90坪 | - | - | 募集終了 | 検討リスト |
![]() | 5階 | 32.37坪 | - | - | 募集終了 | 検討リスト |
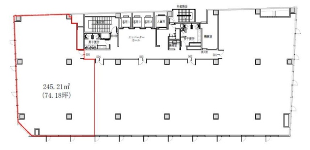
![]() | 5階 | 74.18坪 | - | - | 募集終了 | 検討リスト |
![]() | 5階 | 235.01坪 | - | - | 募集終了 | 検討リスト |
![]() | 5階 | 80.50坪 | - | - | 募集終了 | 検討リスト |
![]() | 6階 | 235.01坪 | - | - | 募集終了 | 検討リスト |
![]() | 6階 | 145.24坪 | - | - | 募集終了 | 検討リスト |
![]() | 7階 | 80.24坪 | - | - | 募集終了 | 検討リスト |
![]() | 7階 | 32.36坪 | - | - | 募集終了 | 検討リスト |
![]() | 8階 | 52.50坪 | - | - | 募集終了 | 検討リスト |
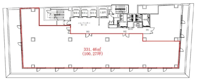
![]() | 9階 | 100.27坪 | - | - | 募集終了 | 検討リスト |
近くの物件紹介
千代田区のエリア
近くの駅
| 取扱態様 | 仲介 |
|---|---|
| 取扱会社 | 株式会社アドマイアー 東京都中央区日本橋3-2-3ユニバース第1ビル2F TEL. 03-5204-1031 宅地建物取引業免許 東京都知事(3)第94663号 マンション管理業免許 国土交通大臣(2)第034224号 賃貸住宅管理業免許 国土交通大臣(01)第005938号 |




































