正栄ビル(渋谷区、渋谷、表参道、明治神宮前〈原宿〉) の賃貸オフィス情報

- 所在地
- 東京都渋谷区渋谷1-11-3
- 最寄り駅
- 渋谷駅徒歩7分、表参道駅徒歩11分、明治神宮前〈原宿〉駅徒歩14分
- 竣工
- 1976年
- 規模
- 地上9階
- 構造
- SRC造(鉄骨鉄筋コンクリート造)
- セキュリティ
- 機械警備(24時間監視)
- エントランス
- 平日開放
- エレベーター総数
- 1基
- 駐車場設備
- 要確認
賃料相場
218件のデータ
正栄ビル の物件特徴・おすすめポイント
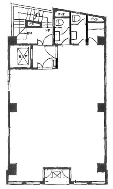
正栄ビルは、渋谷駅徒歩7分という交通利便性に優れた1976年竣工のSRC造オフィスビルです。美竹通り沿いの好立地で、宮益坂や明治通りへのアクセスも容易。基準階約28坪の整形貸室はOAフロア仕様、男女別トイレと給湯設備が室内にあり使いやすさに配慮。個別空調や機械警備、光ファイバー対応により快適かつ安全な業務環境を実現します。エントランスや共用部分のリニューアルで清潔感が保たれており、多様なビジネスニーズに応える物件です。周辺環境も充実しており、中小規模企業やスタートアップに適した都市型オフィスとしておすすめします。
正栄ビル の募集区画 (総募集面積 0.00坪)
現在募集はありません。
地図
東京都渋谷区渋谷1-11-3 地図をクリックして拡大できます
正栄ビル の外観イメージ
正栄ビルは光沢のある石張りとガラス面を多用した外観が特徴で、1970年代築ながら経年を感じさせない洗練されたデザインです。SRC造9階建ての均整のとれたフォルムが美竹通り沿いに映え、周囲の街並みに自然に溶け込みながら視認性も良好。エントランスは清潔感があり、テナント入替時にリニューアルを重ねた水回りや空調設備が快適なビジネス環境をサポート。宮益坂や明治通りへのアクセスも便利なため多様な業種に適しています。












正栄ビル の周辺イメージ
宮益坂や明治通りをつなぐ通り沿いにあり、周辺には多彩な飲食店、銀行、郵便局、コンビニが充実。渋谷駅をはじめ複数駅が徒歩圏内で、表参道エリアへもアクセス良好。宮益坂の店舗やカフェ文化が近く、ビジネスの合間のリフレッシュスポットも豊富です。交通利便性と生活利便性が高水準で両立し、来訪者の案内も円滑。都市型オフィスとして非常に魅力的なポジションです。

正栄ビル の募集終了区画
近くの物件紹介
渋谷区のエリア
近くの駅
| 取扱態様 | 仲介 |
|---|---|
| 取扱会社 | 株式会社アドマイアー 東京都中央区日本橋3-2-3ユニバース第1ビル2F TEL. 03-5204-1031 宅地建物取引業免許 東京都知事(3)第94663号 マンション管理業免許 国土交通大臣(2)第034224号 賃貸住宅管理業免許 国土交通大臣(01)第005938号 |


























