飯野ビル(江東区、亀戸、錦糸町) の賃貸オフィス情報

- 所在地
- 東京都江東区亀戸1-8-7
- 最寄り駅
- 亀戸駅徒歩5分、錦糸町駅徒歩11分
- 竣工
- 1993年
- 規模
- 地上9階・地下1階
- 構造
- S造(鉄骨造)
- 耐震基準
- 新耐震基準適合
- セキュリティ
- 機械警備(24時間監視)
- エントランス
- 平日開放
- エレベーター総数
- 2基
- 駐車場設備
- 要確認
飯野ビルは、視認性の良い京葉道路沿いという立地、そして新耐震基準を満たした堅牢な構造が特長です。外観やエントランスは清潔感と高級感があり、来訪者にも好印象を与えます。貸室はレイアウトの自由度が高く、ITインフラやセキュリティ面も優れた仕様。共用部やトイレの清掃も徹底されており、快適なオフィス環境を維持できます。また、周辺には飲食店や店舗、銀行、郵便局などが揃い、日常業務から来客対応まで幅広くサポート。交通利便性と快適な執務環境を求める企業に適しています。
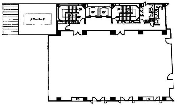
飯野ビル の募集区画 (総募集面積 68.14坪)
※月額費用、坪単価 ともに共益費込・税別の価格です
地図
東京都江東区亀戸1-8-7 地図をクリックして拡大できます
飯野ビル の外観イメージ
グレーのタイルとミラーガラスが調和した外観は、落ち着いた色合いと洗練された質感が印象的です。重厚感を持ちながらも清潔感があり、ビジネスの拠点として信頼感を演出します。エントランスは明るく、石張りの床が高級感を醸し出し、訪れる人に良好な印象を与えます。ビル全体のメンテナンスも行き届いており、長期間にわたり美観が保たれています。











飯野ビル の周辺イメージ
京葉道路沿いの利便性に加え、周辺にはコンビニや飲食店、ショッピングモール、郵便局、銀行など多彩な施設が充実。ビル裏手には公園があり、落ち着いた環境も享受できます。ビジネスの拠点として、多様なニーズに応える周辺環境が整っています。


飯野ビル の募集終了区画
| 図面 | 階数 | 坪数 | 月額費用 | 坪単価 | 入居可能日 | |
|---|---|---|---|---|---|---|
![]() | 2階 | 25.65坪 | - | - | 募集終了 | 検討リスト |
![]() | 3階 | 87.19坪 | - | - | 募集終了 | 検討リスト |
![]() | 4階 | 45.38坪 | - | - | 募集終了 | 検討リスト |
![]() | 4階 | 41.80坪 | - | - | 募集終了 | 検討リスト |
![]() | 5階 | 45.38坪 | - | - | 募集終了 | 検討リスト |
![]() | 5階 | 41.80坪 | - | - | 募集終了 | 検討リスト |
![]() | 6階 | 87.19坪 | - | - | 募集終了 | 検討リスト |
![]() | 6階 | 45.38坪 | - | - | 募集終了 | 検討リスト |
![]() | 7階 | 41.80坪 | - | - | 募集終了 | 検討リスト |
![]() | 7階 | 45.38坪 | - | - | 募集終了 | 検討リスト |
![]() | 7階 | 87.19坪 | - | - | 募集終了 | 検討リスト |
![]() | 8階 | 87.19坪 | - | - | 募集終了 | 検討リスト |
![]() | 8階 | 41.80坪 | - | - | 募集終了 | 検討リスト |
![]() | 8階 | 45.38坪 | - | - | 募集終了 | 検討リスト |
![]() | 9階 | 87.19坪 | - | - | 募集終了 | 検討リスト |
近くの物件紹介
江東区のエリア
近くの駅
| 取扱態様 | 仲介 |
|---|---|
| 取扱会社 | 株式会社アドマイアー 東京都中央区日本橋3-2-3ユニバース第1ビル2F TEL. 03-5204-1031 宅地建物取引業免許 東京都知事(3)第94663号 マンション管理業免許 国土交通大臣(2)第034224号 賃貸住宅管理業免許 国土交通大臣(01)第005938号 |

































