マイスクエア(MY SQUARE)ビル(港区、麻布十番、赤羽橋、六本木) の賃貸オフィス情報

- 所在地
- 東京都港区麻布十番2-10-3
- 最寄り駅
- 麻布十番駅徒歩3分、赤羽橋駅徒歩12分、六本木駅徒歩15分
- 竣工
- 1987年
- 規模
- 地上8階・地下1階
- 構造
- SRC造(鉄骨鉄筋コンクリート造)
- 耐震基準
- 新耐震基準適合
- セキュリティ
- 機械警備(24時間監視)
- エントランス
- 平日開放
- エレベーター総数
- 1基
- 駐車場設備
- 要確認
マイスクエア(MY SQUARE)ビル の募集区画 (総募集面積 0.00坪)
現在募集はありません。
地図
東京都港区麻布十番2-10-3 地図をクリックして拡大できます
マイスクエア(MY SQUARE)ビル の外観イメージ










マイスクエア(MY SQUARE)ビル の周辺イメージ


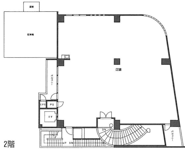
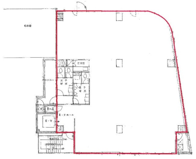
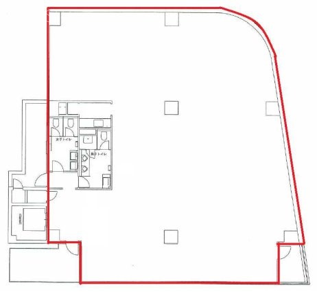
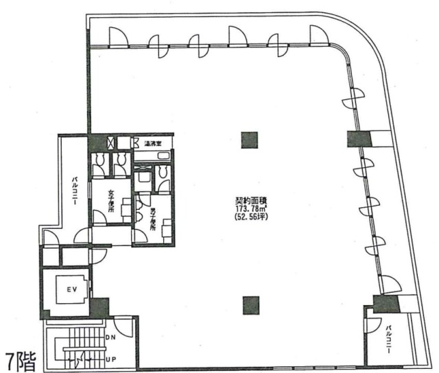
マイスクエア(MY SQUARE)ビル の募集終了区画
近くの物件紹介
港区のエリア
近くの駅
| 取扱態様 | 仲介 |
|---|---|
| 取扱会社 | 株式会社アドマイアー 東京都中央区日本橋3-2-3ユニバース第1ビル2F TEL. 03-5204-1031 宅地建物取引業免許 東京都知事(3)第94663号 マンション管理業免許 国土交通大臣(2)第034224号 賃貸住宅管理業免許 国土交通大臣(01)第005938号 |






























