ルート西池袋ビル(豊島区、西池袋、要町、池袋) の賃貸オフィス情報

- 所在地
- 東京都豊島区西池袋5-17-11
- 最寄り駅
- 要町駅徒歩4分、池袋駅徒歩6分
- 竣工
- 1992年
- 規模
- 地上9階
- 構造
- SRC造(鉄骨鉄筋コンクリート造)
- 耐震基準
- 新耐震基準適合
- セキュリティ
- 機械警備(24時間監視)
- エントランス
- 平日開放
- エレベーター総数
- 1基
- 駐車場設備
- 要確認
- 設備
- 24時間(要ICカード)
ルート西池袋ビルは、重要な町エリアの中でも交通利便性と快適なオフィス空間を確保しました。駅前という立地の良さに加え、充実した設備・セキュリティ体制で安心感もございます。現代的でスタイリッシュな外観は企業イメージの向上にも貢献し、周辺の生活快適施設や豊かな環境がビジネスライフをサポート。多様な企業やプロジェクトスタイルに適しており、効率的で良好な場所をお探しの方に特におすすめできる一棟です。
ルート西池袋ビル の募集区画 (総募集面積 0.00坪)
現在募集はありません。
地図
東京都豊島区西池袋5-17-11 地図をクリックして拡大できます
ルート西池袋ビル の外観イメージ
ルート西池袋ビルは、グレー系の重厚感ある外壁と、シャープな直線で構成された端正なファサードが印象的です。ガラスと金属パネルを良く配置し、都市的で精緻に設計されたデザインが特徴。周囲の建物と調和しながらも、目を向けながら現代的な表情が漂い、ビジネスの拠点として存在感を放ちます。トランス前の開放感あるアプローチとともに、住民にも安心感を与える外観となっております。










ルート西池袋ビル の周辺イメージ
ビル1階には目的に合わせて利用できる店舗施設が入っており、敷地周辺にはコンビニや飲食店など便利な生活関連が点在しています。徒歩3分以内に郵便局もあり、一般業務から急な用事にも対応可能です。椎名町駅も徒歩圏内で、多様なアクセスルートが確保されています。住宅街とオフィス街の良好な立地は、従業員や来客の利便性向上に向けて提案します。

ルート西池袋ビル の募集終了区画
| 図面 | 階数 | 坪数 | 月額費用 | 坪単価 | 入居可能日 | |
|---|---|---|---|---|---|---|
準備中 | 1階 | 51.98坪 | お問い合わせください | 募集終了 | 検討リスト | |
![]() | 1階 | 43.31坪 | お問い合わせください | 募集終了 | 検討リスト | |
準備中 | 2階 | 36.98坪 | お問い合わせください | 募集終了 | 検討リスト | |
準備中 | 2階 | 24.97坪 | お問い合わせください | 募集終了 | 検討リスト | |
準備中 | 2階 | 30.82坪 | お問い合わせください | 募集終了 | 検討リスト | |
準備中 | 2階 | 20.81坪 | お問い合わせください | 募集終了 | 検討リスト | |
![]() | 3階 | 20.80坪 | お問い合わせください | 募集終了 | 検討リスト | |
準備中 | 3階 | 38.07坪 | お問い合わせください | 募集終了 | 検討リスト | |
準備中 | 3階 | 24.97坪 | お問い合わせください | 募集終了 | 検討リスト | |
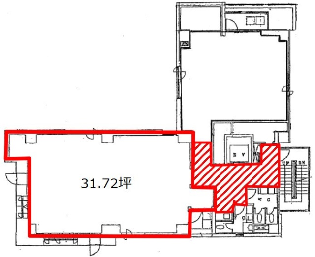
準備中 | 3階 | 31.72坪 | お問い合わせください | 募集終了 | 検討リスト | |
準備中 | 4階 | 38.07坪 | お問い合わせください | 募集終了 | 検討リスト | |
準備中 | 4階 | 24.97坪 | お問い合わせください | 募集終了 | 検討リスト | |
準備中 | 4階 | 31.73坪 | お問い合わせください | 募集終了 | 検討リスト | |
準備中 | 4階 | 20.81坪 | お問い合わせください | 募集終了 | 検討リスト | |
準備中 | 5階 | 38.07坪 | お問い合わせください | 募集終了 | 検討リスト | |
準備中 | 5階 | 24.97坪 | お問い合わせください | 募集終了 | 検討リスト | |
準備中 | 5階 | 31.72坪 | お問い合わせください | 募集終了 | 検討リスト | |
準備中 | 5階 | 20.81坪 | お問い合わせください | 募集終了 | 検討リスト | |
準備中 | 6階 | 20.81坪 | お問い合わせください | 募集終了 | 検討リスト | |
準備中 | 6階 | 38.07坪 | お問い合わせください | 募集終了 | 検討リスト | |
準備中 | 6階 | 24.97坪 | お問い合わせください | 募集終了 | 検討リスト | |
準備中 | 6階 | 31.72坪 | お問い合わせください | 募集終了 | 検討リスト | |
![]() | 7階 | 31.72坪 | お問い合わせください | 募集終了 | 検討リスト | |
準備中 | 7階 | 20.81坪 | お問い合わせください | 募集終了 | 検討リスト | |
準備中 | 7階 | 38.07坪 | お問い合わせください | 募集終了 | 検討リスト | |
準備中 | 7階 | 24.97坪 | お問い合わせください | 募集終了 | 検討リスト | |
![]() | 8階 | 31.72坪 | お問い合わせください | 募集終了 | 検討リスト | |
準備中 | 8階 | 38.07坪 | お問い合わせください | 募集終了 | 検討リスト | |
準備中 | 8階 | 24.97坪 | お問い合わせください | 募集終了 | 検討リスト | |
準備中 | 8階 | 20.81坪 | お問い合わせください | 募集終了 | 検討リスト | |
準備中 | 9階 | 26.54坪 | お問い合わせください | 募集終了 | 検討リスト | |
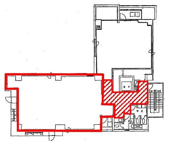
![]() | 9階 | 20.81坪 | お問い合わせください | 募集終了 | 検討リスト | |
準備中 | 9階 | 38.07坪 | お問い合わせください | 募集終了 | 検討リスト | |
準備中 | 9階 | 24.97坪 | お問い合わせください | 募集終了 | 検討リスト |
近くの物件紹介
豊島区のエリア
近くの駅
| 取扱態様 | 仲介 |
|---|---|
| 取扱会社 | 株式会社アドマイアー 東京都中央区日本橋3-2-3ユニバース第1ビル2F TEL. 03-5204-1031 宅地建物取引業免許 東京都知事(3)第94663号 マンション管理業免許 国土交通大臣(2)第034224号 賃貸住宅管理業免許 国土交通大臣(01)第005938号 |





























