日本生命立川ビル(立川市、曙町、立川、立川北) の賃貸オフィス情報

- 所在地
- 東京都立川市曙町2-20-5
- 最寄り駅
- 立川駅徒歩3分、立川北駅徒歩6分、西国立駅徒歩15分
- 竣工
- 1993年
- 規模
- 地上9階
- 構造
- SRC造(鉄骨鉄筋コンクリート造)
- 耐震基準
- 新耐震基準適合
- セキュリティ
- 機械警備(24時間監視)
- エントランス
- 平日開放(8:00-20:00)
- エレベーター総数
- 3基
- 駐車場設備
- 有(平置き3台、機械式58台)
- 設備
- 喫煙室
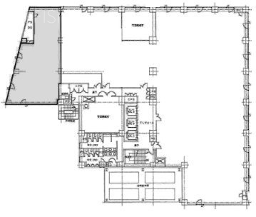
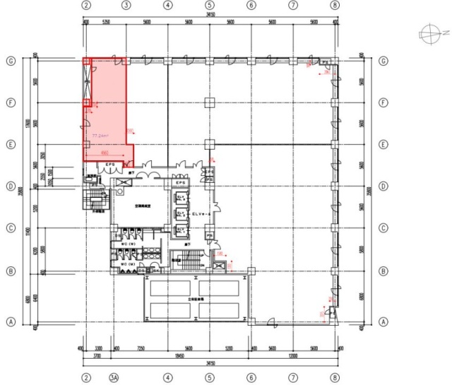
日本生命立川ビル の募集区画 (総募集面積 0.00坪)
現在募集はありません。
地図
東京都立川市曙町2-20-5 地図をクリックして拡大できます
日本生命立川ビル の外観イメージ


















日本生命立川ビル の周辺イメージ



日本生命立川ビル の募集終了区画
近くの物件紹介
立川市のエリア
近くの駅
| 取扱態様 | 仲介 |
|---|---|
| 取扱会社 | 株式会社アドマイアー 東京都中央区日本橋3-2-3ユニバース第1ビル2F TEL. 03-5204-1031 宅地建物取引業免許 東京都知事(3)第94663号 マンション管理業免許 国土交通大臣(2)第034224号 賃貸住宅管理業免許 国土交通大臣(01)第005938号 |





























