浜松町262ビル(港区、浜松町、大門) の賃貸オフィス情報

- 所在地
- 東京都港区浜松町2-6-2
- 最寄り駅
- 浜松町駅徒歩1分、大門駅徒歩1分
- 竣工
- 1993年
- 規模
- 地上8階・地下2階
- 構造
- SRC造(鉄骨鉄筋コンクリート造)
- 耐震基準
- 新耐震基準適合
- セキュリティ
- 機械警備(24時間監視)
- エントランス
- 毎日開放(平日・土・祝日8:00-21:00 日8:00-18:00)
- エレベーター総数
- 2基
- 駐車場設備
- 要確認
駅近立地と整った外観が第一印象から信頼感を与えるビルです。基準階170坪の広さは多様なレイアウトに柔軟に対応でき、成長企業や本社移転にも適しています。共用部の清潔感は来訪者に好印象を与え、採用活動や社員満足度の向上にも直結します。港区浜松町という都心立地に加え、空港や新幹線へのアクセス性も優れており、国内外で活動する企業に強くおすすめできる賃貸オフィスです。
Q1: 浜松町262ビルとはどのような賃貸オフィスですか?
A1: 浜松町262ビルは港区浜松町2丁目にあるハイグレードオフィスビルで、1993年2月竣工のSRC造、地上8階・地下2階建てです。浜松町駅から徒歩2分という駅近立地にあり、交通利便性と堅牢な構造を兼ね備えています。
Q2: 浜松町262ビルの基準階面積や設備の特徴は?
A2: 基準階面積は約170坪で、OAフロアを完備し自由度の高いレイアウトが可能です。空調は個別方式を採用し、快適な執務環境を提供します。機械警備によるセキュリティも整っており、安全性と機能性を兼ね備えています。
Q3: 浜松町262ビルのアクセス方法は?
A3: JR浜松町駅から徒歩2分、都営大門駅から徒歩4分に位置します。東京モノレールにより羽田空港へのアクセスが良好で、品川駅や東京駅へも短時間で移動できるため、出張の多い企業にも適した立地です。
Q4: 浜松町262ビル周辺にはどのような施設がありますか?
A4: 周辺には銀行、郵便局、ビジネスホテル、商業施設、飲食店が揃っています。さらに芝公園が徒歩圏内にあり、オフィスワーカーにとって便利な生活環境とリフレッシュ環境を同時に提供します。
Q5: 浜松町262ビルの耐震性能は安心ですか?
A5: 浜松町262ビルは1993年竣工のため新耐震基準に適合しており、SRC造の構造によって高い耐震性能を備えています。安心して長期利用できる堅牢なオフィスビルです。
Q6: 浜松町262ビルには駐車場やエレベーターはありますか?
A6: 機械式駐車場を完備しており、来客や社用車の利用にも対応可能です。エレベーターは2基設置され、入居フロアへの移動をスムーズに行うことができます。
Q7: 浜松町262ビルはどのような企業におすすめですか?
A7: 国内外出張が多い企業や外資系企業に特に適しています。羽田空港や新幹線駅への利便性が高く、基準階170坪という広さは中規模から大規模企業の本社や主要拠点として最適です。
Q1: 浜松町262ビルとはどのような賃貸オフィスですか?
A1: 浜松町262ビルは港区浜松町2丁目にあるハイグレードオフィスビルで、1993年2月竣工のSRC造、地上8階・地下2階建てです。浜松町駅から徒歩2分という駅近立地にあり、交通利便性と堅牢な構造を兼ね備えています。
Q2: 浜松町262ビルの基準階面積や設備の特徴は?
A2: 基準階面積は約170坪で、OAフロアを完備し自由度の高いレイアウトが可能です。空調は個別方式を採用し、快適な執務環境を提供します。機械警備によるセキュリティも整っており、安全性と機能性を兼ね備えています。
Q3: 浜松町262ビルのアクセス方法は?
A3: JR浜松町駅から徒歩2分、都営大門駅から徒歩4分に位置します。東京モノレールにより羽田空港へのアクセスが良好で、品川駅や東京駅へも短時間で移動できるため、出張の多い企業にも適した立地です。
Q4: 浜松町262ビル周辺にはどのような施設がありますか?
A4: 周辺には銀行、郵便局、ビジネスホテル、商業施設、飲食店が揃っています。さらに芝公園が徒歩圏内にあり、オフィスワーカーにとって便利な生活環境とリフレッシュ環境を同時に提供します。
Q5: 浜松町262ビルの耐震性能は安心ですか?
A5: 浜松町262ビルは1993年竣工のため新耐震基準に適合しており、SRC造の構造によって高い耐震性能を備えています。安心して長期利用できる堅牢なオフィスビルです。
Q6: 浜松町262ビルには駐車場やエレベーターはありますか?
A6: 機械式駐車場を完備しており、来客や社用車の利用にも対応可能です。エレベーターは2基設置され、入居フロアへの移動をスムーズに行うことができます。
Q7: 浜松町262ビルはどのような企業におすすめですか?
A7: 国内外出張が多い企業や外資系企業に特に適しています。羽田空港や新幹線駅への利便性が高く、基準階170坪という広さは中規模から大規模企業の本社や主要拠点として最適です。
浜松町262ビル の募集区画 (総募集面積 53.02坪)
※月額費用、坪単価 ともに共益費込・税別の価格です
地図
東京都港区浜松町2-6-2 地図をクリックして拡大できます
浜松町262ビル の外観イメージ
浜松町262ビルは1993年2月竣工、地上8階・地下2階建てのオフィスビルです。鉄骨鉄筋コンクリート造の堅牢な構造を備え、長期利用にふさわしい信頼性を誇ります。タイルを基調としたシンプルで整った外観は、浜松町駅徒歩2分の立地と相まって高い視認性を確保。落ち着きと清潔感を兼ね備えたファサードは来訪者に安心感を与え、港区浜松町エリアのランドマーク的な役割を果たしています。企業のブランドイメージを向上させる外観デザインです。
















浜松町262ビル の周辺イメージ
JR浜松町駅から徒歩2分、都営地下鉄大門駅から徒歩4分と、アクセスの良さが大きな特徴です。東京モノレールにより羽田空港まで直通で、新幹線利用時は品川駅や東京駅への接続もスムーズです。周辺には銀行・郵便局などの金融機関や、ビジネスホテル、商業施設、飲食店が揃い、業務に必要な機能が徒歩圏で完結します。さらに芝公園も至近にあり、ワーカーにリフレッシュ環境を提供。港区浜松町エリアで利便性と快適性を兼ね備えた優れた立地条件を誇ります。
浜松町262ビル の募集終了区画
| 図面 | 階数 | 坪数 | 月額費用 | 坪単価 | 入居可能日 | |
|---|---|---|---|---|---|---|
|  | B2階 | 104.69坪 | - | - | 募集終了 | 検討リスト | 
|  | B2階 | 120.00坪 | - | - | 募集終了 | 検討リスト | 
|  | B2階 | 114.45坪 | - | - | 募集終了 | 検討リスト | 
|  | B1階 | 8.74坪 | - | - | 募集終了 | 検討リスト | 
|  | B1階 | 40.66坪 | - | - | 募集終了 | 検討リスト | 
|  | B1階 | 130.76坪 | - | - | 募集終了 | 検討リスト | 
|  | 1階 | 35.24坪 | - | - | 募集終了 | 検討リスト | 
|  | 1階 | 17.53坪 | - | - | 募集終了 | 検討リスト | 
|  | 1階 | 35.24坪 | - | - | 募集終了 | 検討リスト | 
|  | 1階 | 46.00坪 | - | - | 募集終了 | 検討リスト | 
|  | 1階 | 17.53坪 | - | - | 募集終了 | 検討リスト | 
|  | 2階 | 42.36坪 | - | - | 募集終了 | 検討リスト | 
|  | 2階 | 126.02坪 | - | - | 募集終了 | 検討リスト | 
|  | 2階 | 89.25坪 | - | - | 募集終了 | 検討リスト | 
|  | 3階 | 89.25坪 | - | - | 募集終了 | 検討リスト | 
|  | 3階 | 171.67坪 | - | - | 募集終了 | 検討リスト | 
|  | 4階 | 171.67坪 | - | - | 募集終了 | 検討リスト | 
|  | 5階 | 106.67坪 | - | - | 募集終了 | 検討リスト | 
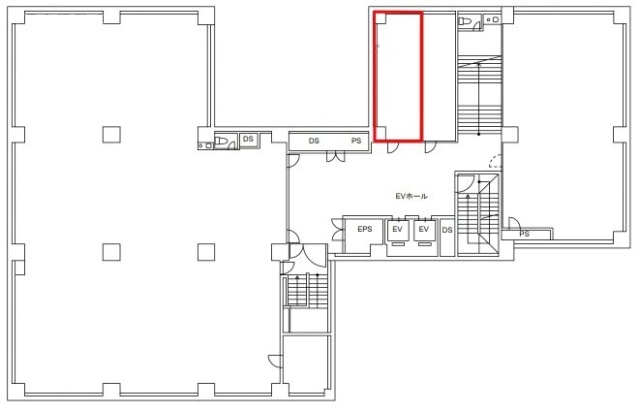
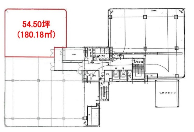
|  | 5階 | 54.50坪 | - | - | 募集終了 | 検討リスト | 
|  | 5階 | 54.50坪 | - | - | 募集終了 | 検討リスト | 
|  | 6階 | 140.45坪 | - | - | 募集終了 | 検討リスト | 
|  | 6階 | 80.99坪 | - | - | 募集終了 | 検討リスト | 
|  | 7階 | 100.30坪 | - | - | 募集終了 | 検討リスト | 
|  | 7階 | 66.84坪 | - | - | 募集終了 | 検討リスト | 
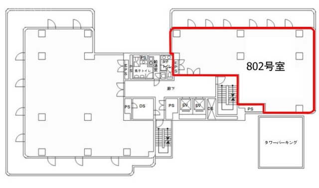
|  | 8階 | 71.76坪 | - | - | 募集終了 | 検討リスト | 
|  | 8階 | 52.68坪 | - | - | 募集終了 | 検討リスト | 
近くの物件紹介
港区のエリア
近くの駅
| 取扱態様 | 仲介 | 
|---|---|
| 取扱会社 | 株式会社アドマイアー 東京都中央区日本橋3-2-3ユニバース第1ビル2F TEL. 03-5204-1031 宅地建物取引業免許 東京都知事(3)第94663号 マンション管理業免許 国土交通大臣(2)第034224号 賃貸住宅管理業免許 国土交通大臣(01)第005938号 | 

























