西日暮里エーシービル(荒川区、西日暮里、日暮里、千駄木) の賃貸オフィス情報

- 所在地
- 東京都荒川区西日暮里4-1-20
- 最寄り駅
- 西日暮里駅徒歩1分、日暮里駅徒歩8分、千駄木駅徒歩12分
- 竣工
- 1973年
- 規模
- 地上5階
- 構造
- RC造(鉄筋コンクリート造)
- エントランス
- 平日開放
- エレベーター総数
- 1基
- 駐車場設備
- 要確認
賃料相場
15件のデータ
西日暮里エーシービル の募集区画 (総募集面積 0.00坪)
現在募集はありません。
地図
東京都荒川区西日暮里4-1-20 地図をクリックして拡大できます
西日暮里エーシービル の外観イメージ









西日暮里エーシービル の周辺イメージ

西日暮里エーシービル の募集終了区画
| 図面 | 階数 | 坪数 | 月額費用 | 坪単価 | 入居可能日 | |
|---|---|---|---|---|---|---|
![]() | 1階 | 28.19坪 | お問い合わせください | 募集終了 | 検討リスト | |
![]() | 1階 | 28.19坪 | お問い合わせください | 募集終了 | 検討リスト | |
![]() | 1階 | 2.72坪 | お問い合わせください | 募集終了 | 検討リスト | |
準備中 | 1階 | 31.61坪 | お問い合わせください | 募集終了 | 検討リスト | |
準備中 | 2階 | 15.50坪 | お問い合わせください | 募集終了 | 検討リスト | |
![]() | 3階 | 14.58坪 | お問い合わせください | 募集終了 | 検討リスト | |
![]() | 4階 | 18.90坪 | お問い合わせください | 募集終了 | 検討リスト | |
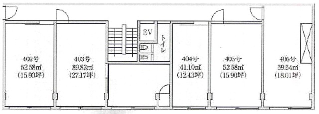
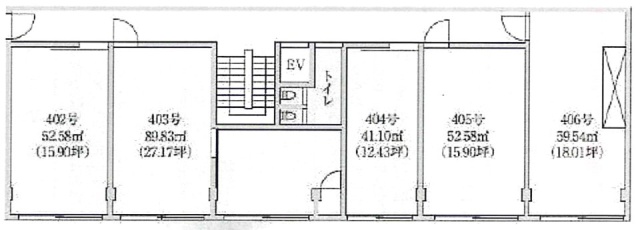
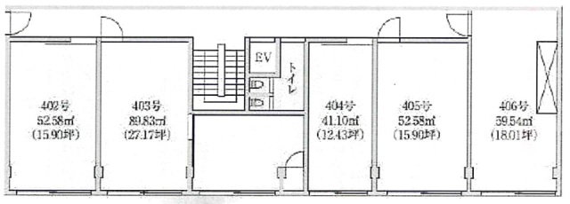
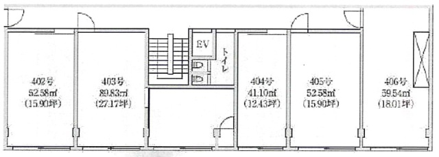
![]() | 4階 | 15.90坪 | お問い合わせください | 募集終了 | 検討リスト | |
![]() | 4階 | 27.17坪 | お問い合わせください | 募集終了 | 検討リスト | |
![]() | 4階 | 12.43坪 | お問い合わせください | 募集終了 | 検討リスト | |
![]() | 4階 | 15.90坪 | お問い合わせください | 募集終了 | 検討リスト | |
![]() | 4階 | 18.01坪 | お問い合わせください | 募集終了 | 検討リスト | |
![]() | 4階 | 89.43坪 | お問い合わせください | 募集終了 | 検討リスト | |
![]() | 5階 | 19.29坪 | お問い合わせください | 募集終了 | 検討リスト | |
![]() | 5階 | 15.47坪 | お問い合わせください | 募集終了 | 検討リスト | |
![]() | 5階 | 27.23坪 | お問い合わせください | 募集終了 | 検討リスト | |
![]() | 5階 | 12.10坪 | お問い合わせください | 募集終了 | 検討リスト |
近くの物件紹介
荒川区のエリア
近くの駅
| 取扱態様 | 仲介 |
|---|---|
| 取扱会社 | 株式会社アドマイアー 東京都中央区日本橋3-2-3ユニバース第1ビル2F TEL. 03-5204-1031 宅地建物取引業免許 東京都知事(3)第94663号 マンション管理業免許 国土交通大臣(2)第034224号 賃貸住宅管理業免許 国土交通大臣(01)第005938号 |







































