相鉄KSビル(横浜市西区、北幸、横浜) の賃貸オフィス情報

- 所在地
- 神奈川県横浜市西区北幸1-11-5
- 最寄り駅
- 横浜駅徒歩5分
- 竣工
- 1984年
- 規模
- 地上9階・地下1階
- 構造
- SRC造(鉄骨鉄筋コンクリート造)
- 耐震基準
- 新耐震基準適合
- セキュリティ
- 機械警備・有人管理(24時間体制)
- エントランス
- 平日開放
- エレベーター総数
- 3基
- 駐車場設備
- 要確認
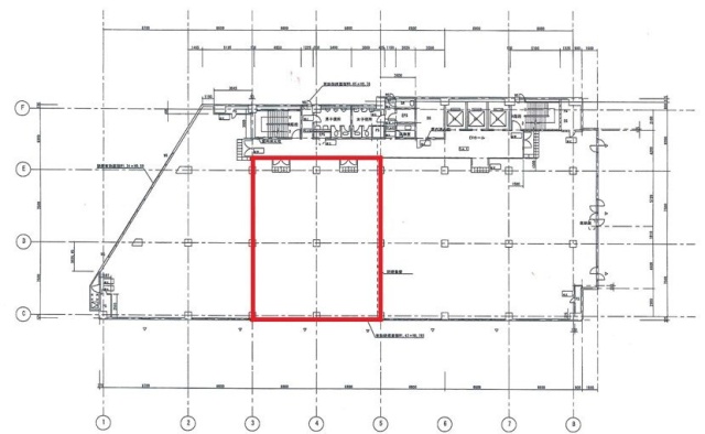
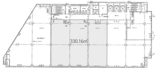
相鉄KSビル の募集区画 (総募集面積 33.29坪)
※月額費用、坪単価 ともに共益費込・税別の価格です
地図
神奈川県横浜市西区北幸1-11-5 地図をクリックして拡大できます
相鉄KSビル の外観イメージ







相鉄KSビル の周辺イメージ



相鉄KSビル の募集終了区画
| 図面 | 階数 | 坪数 | 月額費用 | 坪単価 | 入居可能日 | |
|---|---|---|---|---|---|---|
![]() | 6階 | 30.99坪 | お問い合わせください | 募集終了 | 検討リスト | |
準備中 | 6階 | 229.58坪 | お問い合わせください | 募集終了 | 検討リスト | |
準備中 | 6階 | 110.64坪 | お問い合わせください | 募集終了 | 検討リスト | |
![]() | 7階 | 116.80坪 | お問い合わせください | 募集終了 | 検討リスト | |
![]() | 7階 | 66.58坪 | お問い合わせください | 募集終了 | 検討リスト | |
準備中 | 7階 | 110.65坪 | お問い合わせください | 募集終了 | 検討リスト | |
準備中 | 8階 | 25.29坪 | お問い合わせください | 募集終了 | 検討リスト | |
![]() | 8階 | 58.26坪 | お問い合わせください | 募集終了 | 検討リスト | |
![]() | 8階 | 99.87坪 | お問い合わせください | 募集終了 | 検討リスト | |
準備中 | 8階 | 75.20坪 | お問い合わせください | 募集終了 | 検討リスト | |
準備中 | 9階 | 128.78坪 | お問い合わせください | 募集終了 | 検討リスト |
近くの物件紹介
横浜市のエリア
近くの駅
| 取扱態様 | 仲介 |
|---|---|
| 取扱会社 | 株式会社アドマイアー 東京都中央区日本橋3-2-3ユニバース第1ビル2F TEL. 03-5204-1031 宅地建物取引業免許 東京都知事(3)第94663号 マンション管理業免許 国土交通大臣(2)第034224号 賃貸住宅管理業免許 国土交通大臣(01)第005938号 |






























