メットライフ新横浜ビル(横浜市港北区、新横浜) の賃貸オフィス情報

- 所在地
- 神奈川県横浜市港北区新横浜3-8-11
- 最寄り駅
- 新横浜駅徒歩3分
- 竣工
- 1988年
- リニューアル済み
- 共用部全面リニューアル
- 規模
- 地上10階・地下1階
- 構造
- SRC造(鉄骨鉄筋コンクリート造)
- 耐震基準
- 新耐震基準適合
- セキュリティ
- 機械警備(24時間監視)
- エントランス
- 毎日開放(7:00-24:00)
- エレベーター総数
- 2基(15人乗り)
- 駐車場設備
- 有(機械式立体駐車場)
- 設備
- 24時間(要ICカード)
■新横浜駅徒歩3分の駅近立地
■共用部全面リニューアル済みの快適空間
■個別空調とOAフロアで柔軟なレイアウト
■機械警備カード方式の安心セキュリティ
■東急線・相鉄線直通で渋谷・目黒方面も好アクセス
■共用部全面リニューアル済みの快適空間
■個別空調とOAフロアで柔軟なレイアウト
■機械警備カード方式の安心セキュリティ
■東急線・相鉄線直通で渋谷・目黒方面も好アクセス
メットライフ新横浜ビル の募集区画 (総募集面積 151.99坪)
| 図面 | 階数 | 坪数 | 月額費用 | 坪単価 | 入居可能日 | |
|---|---|---|---|---|---|---|
![]() | 4階 | 26.29坪 | お問い合わせください | 即時 | 検討リスト お問い合わせ | |
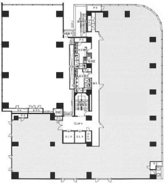
![]() | 4階 | 85.72坪 | お問い合わせください | 即時 | 検討リスト お問い合わせ | |
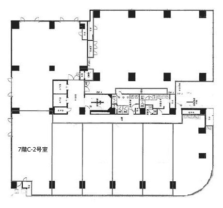
![]() | 7階 | 39.98坪 | お問い合わせください | 2026/4/1 | 検討リスト お問い合わせ |
※月額費用、坪単価 ともに共益費込・税別の価格です
建物に関するよくある質問と回答
Q1. メットライフ新横浜ビルの耐震性能について教えてください。
A. メットライフ新横浜ビルは1988年3月竣工の鉄骨鉄筋コンクリート造のビルです。大規模地震を想定した耐震設計がなされており、安心してご利用いただけます。
Q2. エレベーターの台数と待ち時間について教えてください。
A. 乗用エレベーター2基(15人乗り)を設置しています。地上10階建ての規模に対応した適切な台数を確保しており、日常的な利用において快適にご利用いただけます。
Q3. 空調設備の特徴を教えてください。
A. 個別空調方式を採用しており、各テナント様が独自に温度調整を行えます。執務時間やエリアごとに最適な空調管理が可能で、快適性とコスト効率の両立を実現します。
Q4. 床仕様と通信インフラについて教えてください。
A. OAフロアを標準装備しており、配線の自由度が高く、レイアウト変更にも柔軟に対応できます。天井高は最大2,570mm(4階)で、OA床高は40mm(4階)、50mm(5階)となっています。光ケーブルの引込も可能で、快適な通信環境を整備できます。電気容量は50VA/㎡を確保しています。
Q5. セキュリティ体制について教えてください。
A. 機械警備カード方式を採用し、安心感の高いセキュリティ体制を整えています。正面エントランスは月~日7:00~24:00、裏口エントランスは月~日7:00~20:00が開館時間で、時間外は通用口から機械警備カード操作で入館いただけます。
Q6. どのような共用施設がありますか?
A. 共用部は全面リニューアル済みで、快適性を大幅に向上させました。エントランスホールやサブエントランスなど、利便性の高い共用スペースを整備しています。詳細につきましては、物件担当者までお問い合わせください。
Q7. 駐車場の利用は可能ですか?
A. 機械式立体駐車場を完備しています。サイズ制限は全長4,900mm、全幅1,750mm、全高1,550mm、重量1,600kgまでとなっております。利用可能台数や月額料金につきましては、空き状況により変動する場合がございますので、詳細は物件担当者までお問い合わせください。
A. メットライフ新横浜ビルは1988年3月竣工の鉄骨鉄筋コンクリート造のビルです。大規模地震を想定した耐震設計がなされており、安心してご利用いただけます。
Q2. エレベーターの台数と待ち時間について教えてください。
A. 乗用エレベーター2基(15人乗り)を設置しています。地上10階建ての規模に対応した適切な台数を確保しており、日常的な利用において快適にご利用いただけます。
Q3. 空調設備の特徴を教えてください。
A. 個別空調方式を採用しており、各テナント様が独自に温度調整を行えます。執務時間やエリアごとに最適な空調管理が可能で、快適性とコスト効率の両立を実現します。
Q4. 床仕様と通信インフラについて教えてください。
A. OAフロアを標準装備しており、配線の自由度が高く、レイアウト変更にも柔軟に対応できます。天井高は最大2,570mm(4階)で、OA床高は40mm(4階)、50mm(5階)となっています。光ケーブルの引込も可能で、快適な通信環境を整備できます。電気容量は50VA/㎡を確保しています。
Q5. セキュリティ体制について教えてください。
A. 機械警備カード方式を採用し、安心感の高いセキュリティ体制を整えています。正面エントランスは月~日7:00~24:00、裏口エントランスは月~日7:00~20:00が開館時間で、時間外は通用口から機械警備カード操作で入館いただけます。
Q6. どのような共用施設がありますか?
A. 共用部は全面リニューアル済みで、快適性を大幅に向上させました。エントランスホールやサブエントランスなど、利便性の高い共用スペースを整備しています。詳細につきましては、物件担当者までお問い合わせください。
Q7. 駐車場の利用は可能ですか?
A. 機械式立体駐車場を完備しています。サイズ制限は全長4,900mm、全幅1,750mm、全高1,550mm、重量1,600kgまでとなっております。利用可能台数や月額料金につきましては、空き状況により変動する場合がございますので、詳細は物件担当者までお問い合わせください。
地図
神奈川県横浜市港北区新横浜3-8-11 地図をクリックして拡大できます
メットライフ新横浜ビル の外観イメージ
メットライフ新横浜ビルは、地上10階・地下1階建ての鉄骨鉄筋コンクリート造のオフィスビルです。1988年竣工の安定感のある構造で、2009年には増築(E区画2~9階)を実施し、機能性を向上させました。整然とした外観デザインは業務施設としての信頼性を表現し、新横浜エリアの駅近立地に立つハイクオリティオフィスとして存在感を放ちます。













メットライフ新横浜ビル の周辺イメージ
市営地下鉄ブルーライン「新横浜」駅徒歩3分、JR横浜線・東海道新幹線「新横浜」駅徒歩6分の複数路線利用可能な立地です。東急線・相鉄線の直通乗り入れにより、目黒・渋谷方面へのアクセスも良好です。新横浜エリアは商業施設が充実し、新幹線利用で全国への出張にも便利な環境です。

メットライフ新横浜ビル の募集終了区画
| 図面 | 階数 | 坪数 | 月額費用 | 坪単価 | 入居可能日 | |
|---|---|---|---|---|---|---|
![]() | 2階 | 65.31坪 | お問い合わせください | 募集終了 | 検討リスト | |
![]() | 2階 | 50.35坪 | お問い合わせください | 募集終了 | 検討リスト | |
![]() | 2階 | 19.99坪 | お問い合わせください | 募集終了 | 検討リスト | |
![]() | 2階 | 19.99坪 | お問い合わせください | 募集終了 | 検討リスト | |
![]() | 2階 | 19.99坪 | お問い合わせください | 募集終了 | 検討リスト | |
![]() | 2階 | 49.83坪 | お問い合わせください | 募集終了 | 検討リスト | |
![]() | 2階 | 19.99坪 | お問い合わせください | 募集終了 | 検討リスト | |
![]() | 3階 | 19.99坪 | お問い合わせください | 募集終了 | 検討リスト | |
![]() | 3階 | 19.99坪 | お問い合わせください | 募集終了 | 検討リスト | |
![]() | 3階 | 44.20坪 | お問い合わせください | 募集終了 | 検討リスト | |
![]() | 3階 | 20.07坪 | お問い合わせください | 募集終了 | 検討リスト | |
![]() | 3階 | 34.50坪 | お問い合わせください | 募集終了 | 検討リスト | |
![]() | 4階 | 59.97坪 | お問い合わせください | 募集終了 | 検討リスト | |
![]() | 4階 | 19.99坪 | お問い合わせください | 募集終了 | 検討リスト | |
![]() | 4階 | 88.54坪 | お問い合わせください | 募集終了 | 検討リスト | |
![]() | 5階 | 19.99坪 | お問い合わせください | 募集終了 | 検討リスト | |
![]() | 5階 | 26.29坪 | お問い合わせください | 募集終了 | 検討リスト | |
![]() | 5階 | 19.99坪 | お問い合わせください | 募集終了 | 検討リスト | |
![]() | 5階 | 28.26坪 | お問い合わせください | 募集終了 | 検討リスト | |
![]() | 5階 | 19.99坪 | お問い合わせください | 募集終了 | 検討リスト | |
![]() | 5階 | 85.72坪 | お問い合わせください | 募集終了 | 検討リスト | |
![]() | 6階 | 185.30坪 | お問い合わせください | 募集終了 | 検討リスト | |
![]() | 6階 | 85.47坪 | お問い合わせください | 募集終了 | 検討リスト | |
![]() | 6階 | 48.55坪 | お問い合わせください | 募集終了 | 検討リスト | |
![]() | 6階 | 50.35坪 | お問い合わせください | 募集終了 | 検討リスト | |
![]() | 6階 | 85.72坪 | お問い合わせください | 募集終了 | 検討リスト | |
![]() | 7階 | 26.29坪 | お問い合わせください | 募集終了 | 検討リスト | |
![]() | 7階 | 45.32坪 | お問い合わせください | 募集終了 | 検討リスト | |
![]() | 7階 | 65.31坪 | お問い合わせください | 募集終了 | 検討リスト | |
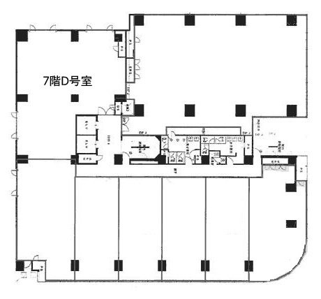
![]() | 7階 | 39.98坪 | お問い合わせください | 募集終了 | 検討リスト | |
![]() | 7階 | 19.99坪 | お問い合わせください | 募集終了 | 検討リスト | |
![]() | 7階 | 19.99坪 | お問い合わせください | 募集終了 | 検討リスト | |
![]() | 7階 | 28.26坪 | お問い合わせください | 募集終了 | 検討リスト | |
![]() | 7階 | 50.35坪 | お問い合わせください | 募集終了 | 検討リスト | |
![]() | 7階 | 85.72坪 | お問い合わせください | 募集終了 | 検討リスト | |
![]() | 8階 | 19.99坪 | お問い合わせください | 募集終了 | 検討リスト | |
![]() | 8階 | 19.99坪 | お問い合わせください | 募集終了 | 検討リスト | |
![]() | 8階 | 28.26坪 | お問い合わせください | 募集終了 | 検討リスト | |
![]() | 8階 | 44.11坪 | お問い合わせください | 募集終了 | 検討リスト | |
![]() | 8階 | 50.35坪 | お問い合わせください | 募集終了 | 検討リスト | |
![]() | 9階 | 50.35坪 | お問い合わせください | 募集終了 | 検討リスト | |
![]() | 9階 | 44.11坪 | お問い合わせください | 募集終了 | 検討リスト | |
![]() | 9階 | 28.26坪 | お問い合わせください | 募集終了 | 検討リスト | |
![]() | 9階 | 85.72坪 | お問い合わせください | 募集終了 | 検討リスト | |
![]() | 10階 | 109.36坪 | お問い合わせください | 募集終了 | 検討リスト | |
![]() | 10階 | 109.36坪 | お問い合わせください | 募集終了 | 検討リスト |
近くの物件紹介
横浜市のエリア
近くの駅
| 取扱態様 | 仲介 |
|---|---|
| 取扱会社 | 株式会社アドマイアー 東京都中央区日本橋3-2-3ユニバース第1ビル2F TEL. 03-5204-1031 宅地建物取引業免許 東京都知事(3)第94663号 マンション管理業免許 国土交通大臣(2)第034224号 賃貸住宅管理業免許 国土交通大臣(01)第005938号 |
















































