KDX横浜みなとみらいタワー(横浜市西区、みなとみらい、桜木町、高島町) の賃貸オフィス情報

- 所在地
- 神奈川県横浜市西区みなとみらい3-3-1
- 最寄り駅
- みなとみらい駅徒歩4分、桜木町駅徒歩8分、高島町駅徒歩12分
- 竣工
- 1994年
- 規模
- 地上33階・地下2階
- 構造
- SRC造(鉄骨鉄筋コンクリート造)
- 耐震基準
- 新耐震基準適合・制震構造
- セキュリティ
- 機械警備・有人管理(24時間体制)
- エントランス
- 平日開放(7:30-19:00(オフィス))
- エレベーター総数
- 18基(人荷用エレベーター2台)
- 駐車場設備
- 有(平置き52台、機械式411台)
- 設備
- BCP(非常用発電・備蓄)、 貸会議室
■みなとみらい線みなとみらい駅徒歩4分、JR桜木町駅徒歩8分、複数路線利用可能な360度パノラマ眺望の立地
■1994年竣工の地上34階・地下2階建て超高層オフィスビル、横浜市西区みなとみらいのハイグレード物件
■基準階541.15坪の大型フロア、天井高2,700mm、OAフロア100mmの充実したスペック
■エレベーター18基、駐車場463台、制振構造とループ受電方式で高い防災性能
■連層約6,000坪確保可能、最小約20坪から分割相談可能な柔軟性
■1994年竣工の地上34階・地下2階建て超高層オフィスビル、横浜市西区みなとみらいのハイグレード物件
■基準階541.15坪の大型フロア、天井高2,700mm、OAフロア100mmの充実したスペック
■エレベーター18基、駐車場463台、制振構造とループ受電方式で高い防災性能
■連層約6,000坪確保可能、最小約20坪から分割相談可能な柔軟性
KDX横浜みなとみらいタワー の募集区画 (総募集面積 9,927.22坪)
| 図面 | 階数 | 坪数 | 月額費用 | 坪単価 | 入居可能日 | |
|---|---|---|---|---|---|---|
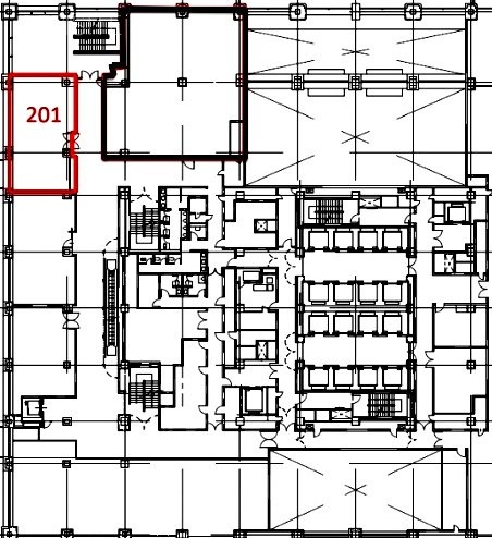
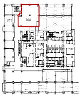
![]() | 3階 | 22.06坪 | 非公開 | 非公開 | 2025/12 | 検討リスト お問い合わせ |
![]() | 3階 | 55.29坪 | 非公開 | 非公開 | 即時 | 検討リスト お問い合わせ |
![]() | 6階 | 135.46坪 | 非公開 | 非公開 | 即時 | 検討リスト お問い合わせ |
![]() | 7階 | 22.53坪 | 非公開 | 非公開 | 相談 | 検討リスト お問い合わせ |
![]() | 7階 | 45.06坪 | 非公開 | 非公開 | 即時 | 検討リスト お問い合わせ |
![]() | 7階 | 70.94坪 | 非公開 | 非公開 | 即時 | 検討リスト お問い合わせ |
![]() | 8階 | 22.53坪 | 非公開 | 非公開 | 即時 | 検討リスト お問い合わせ |
![]() | 8階 | 22.53坪 | 非公開 | 非公開 | 即時 | 検討リスト お問い合わせ |
![]() | 8階 | 60.72坪 | 非公開 | 非公開 | 即時 | 検討リスト お問い合わせ |
![]() | 8階 | 21.81坪 | 非公開 | 非公開 | 即時 | 検討リスト お問い合わせ |
![]() | 8階 | 23.48坪 | 非公開 | 非公開 | 即時 | 検討リスト お問い合わせ |
![]() | 10階 | 541.15坪 | 非公開 | 非公開 | 相談 | 検討リスト お問い合わせ |
![]() | 10階 | 21.47坪 | 非公開 | 非公開 | 相談 | 検討リスト お問い合わせ |
![]() | 10階 | 78.17坪 | 非公開 | 非公開 | 相談 | 検討リスト お問い合わせ |
![]() | 10階 | 43.43坪 | 非公開 | 非公開 | 相談 | 検討リスト お問い合わせ |
![]() | 10階 | 93.07坪 | 非公開 | 非公開 | 相談 | 検討リスト お問い合わせ |
![]() | 10階 | 109.91坪 | 非公開 | 非公開 | 相談 | 検討リスト お問い合わせ |
![]() | 11階 | 507.04坪 | 非公開 | 非公開 | 相談 | 検討リスト お問い合わせ |
![]() | 12階 | 507.04坪 | 非公開 | 非公開 | 相談 | 検討リスト お問い合わせ |
![]() | 16階 | 541.15坪 | 非公開 | 非公開 | 相談 | 検討リスト お問い合わせ |
![]() | 16階 | 184.15坪 | 非公開 | 非公開 | 相談 | 検討リスト お問い合わせ |
![]() | 16階 | 201.15坪 | 非公開 | 非公開 | 相談 | 検討リスト お問い合わせ |
![]() | 16階 | 254.08坪 | 非公開 | 非公開 | 相談 | 検討リスト お問い合わせ |
![]() | 18階 | 541.15坪 | 非公開 | 非公開 | 即時 | 検討リスト お問い合わせ |
![]() | 19階 | 445.13坪 | 非公開 | 非公開 | 相談 | 検討リスト お問い合わせ |
![]() | 20階 | 462.80坪 | 非公開 | 非公開 | 相談 | 検討リスト お問い合わせ |
![]() | 21階 | 252.98坪 | 非公開 | 非公開 | 相談 | 検討リスト お問い合わせ |
![]() | 21階 | 42.29坪 | 非公開 | 非公開 | 相談 | 検討リスト お問い合わせ |
![]() | 22階 | 541.15坪 | 非公開 | 非公開 | 即時 | 検討リスト お問い合わせ |
![]() | 26階 | 577.95坪 | 非公開 | 非公開 | 相談 | 検討リスト お問い合わせ |
![]() | 27階 | 577.95坪 | 非公開 | 非公開 | 相談 | 検討リスト お問い合わせ |
![]() | 28階 | 577.95坪 | 非公開 | 非公開 | 相談 | 検討リスト お問い合わせ |
![]() | 29階 | 577.95坪 | 非公開 | 非公開 | 相談 | 検討リスト お問い合わせ |
![]() | 30階 | 581.90坪 | 非公開 | 非公開 | 相談 | 検討リスト お問い合わせ |
![]() | 31階 | 581.90坪 | 非公開 | 非公開 | 相談 | 検討リスト お問い合わせ |
![]() | 32階 | 581.90坪 | 非公開 | 非公開 | 相談 | 検討リスト お問い合わせ |
※月額費用、坪単価 ともに共益費込・税別の価格です
建物に関するよくある質問と回答
Q1: このビルの耐震性能について教えてください
A: KDX横浜みなとみらいタワーは1994年竣工のS造、SRC造で、新耐震基準に適合した制振構造を採用しています。風力による建物の揺れを軽減する制振装置を備え、大規模地震を想定した耐震設計がなされており、安心してご利用いただけます。
Q2: 空調設備の仕様を教えてください
A: 地域冷暖房方式を採用しており、快適なオフィス環境を実現しています。稼働時間は平日8:00~18:00が賃料に含まれ、時間外利用は670円/15分・ゾーン(1フロア4ゾーン)で対応可能です。インテリアゾーンはAHU方式、ペリメーターゾーンはFCU方式で、23~32階は床下吹出し、4~22階は天井吹出しの空調方式を採用しています。
Q3: 通信環境について教えてください
A: 高速インターネット接続が可能な通信環境に対応しており、OAフロア100mm(5階は450mm、23~32階は250mm)を完備し、レイアウト変更にも柔軟に対応できます。
Q4: エレベーターは何基ありますか?
A: 高層用エレベーター8基(1~3・19~33階着床、1,600kg、24名乗り)、低層用エレベーター8基(1~20階着床、1,600kg、24名乗り)、人貨非常用エレベーター2基(B2~33階、2,000kg・1,150kg)の計18基を設置しています。バンク構成により、スムーズな移動が可能です。
Q5: セキュリティ体制について教えてください
A: 機械警備(非接触型ICカード・電気錠)と警備員常駐(24時間)を導入しており、安心感の高いセキュリティ体制を構築しています。1階通用口(24時間通行可)からセキュリティーカードにて24時間入館可能です。
Q6: 共用施設について教えてください
A: 33階に貸会議室・貸ホール(高層ビル最上階、地上約135mの眺望)を設置し、小会議室から大会議室までバリエーション豊富に対応可能です。利用可能時間は7:00~23:00(土日含む)、パーティー・宴会可能、専門スタッフ常駐でサポート充実しています。各フロアに倉庫あり(別途契約可能)、19・20階は特殊用途(テストキッチン・ラボ)のご相談が可能です。
Q7: 駐車場の収容台数を教えてください
A: 機械式駐車場(大型72台、中型313台、ミッドルーフ26台)と平面駐車場52台の計463台分を確保しています。来客対応や社用車の利用に十分な収容能力を備えています。EV充電器5台(200V、時間貸区画)も完備しています。
Q8: BCP対応設備について教えてください
A: 制振構造、ループ受電方式(常時2回線で受電、片側1回線が故障した場合にももう片方の回線からの受電継続が可能)、共用部非常用発電機(共用部72時間可)を備えており、非常時にも事業継続をサポートする体制を整えています。3階屋上に非常用発電機置場を設置し、屋上には防災用ヘリポートを完備しています。
A: KDX横浜みなとみらいタワーは1994年竣工のS造、SRC造で、新耐震基準に適合した制振構造を採用しています。風力による建物の揺れを軽減する制振装置を備え、大規模地震を想定した耐震設計がなされており、安心してご利用いただけます。
Q2: 空調設備の仕様を教えてください
A: 地域冷暖房方式を採用しており、快適なオフィス環境を実現しています。稼働時間は平日8:00~18:00が賃料に含まれ、時間外利用は670円/15分・ゾーン(1フロア4ゾーン)で対応可能です。インテリアゾーンはAHU方式、ペリメーターゾーンはFCU方式で、23~32階は床下吹出し、4~22階は天井吹出しの空調方式を採用しています。
Q3: 通信環境について教えてください
A: 高速インターネット接続が可能な通信環境に対応しており、OAフロア100mm(5階は450mm、23~32階は250mm)を完備し、レイアウト変更にも柔軟に対応できます。
Q4: エレベーターは何基ありますか?
A: 高層用エレベーター8基(1~3・19~33階着床、1,600kg、24名乗り)、低層用エレベーター8基(1~20階着床、1,600kg、24名乗り)、人貨非常用エレベーター2基(B2~33階、2,000kg・1,150kg)の計18基を設置しています。バンク構成により、スムーズな移動が可能です。
Q5: セキュリティ体制について教えてください
A: 機械警備(非接触型ICカード・電気錠)と警備員常駐(24時間)を導入しており、安心感の高いセキュリティ体制を構築しています。1階通用口(24時間通行可)からセキュリティーカードにて24時間入館可能です。
Q6: 共用施設について教えてください
A: 33階に貸会議室・貸ホール(高層ビル最上階、地上約135mの眺望)を設置し、小会議室から大会議室までバリエーション豊富に対応可能です。利用可能時間は7:00~23:00(土日含む)、パーティー・宴会可能、専門スタッフ常駐でサポート充実しています。各フロアに倉庫あり(別途契約可能)、19・20階は特殊用途(テストキッチン・ラボ)のご相談が可能です。
Q7: 駐車場の収容台数を教えてください
A: 機械式駐車場(大型72台、中型313台、ミッドルーフ26台)と平面駐車場52台の計463台分を確保しています。来客対応や社用車の利用に十分な収容能力を備えています。EV充電器5台(200V、時間貸区画)も完備しています。
Q8: BCP対応設備について教えてください
A: 制振構造、ループ受電方式(常時2回線で受電、片側1回線が故障した場合にももう片方の回線からの受電継続が可能)、共用部非常用発電機(共用部72時間可)を備えており、非常時にも事業継続をサポートする体制を整えています。3階屋上に非常用発電機置場を設置し、屋上には防災用ヘリポートを完備しています。
地図
神奈川県横浜市西区みなとみらい3-3-1 地図をクリックして拡大できます
KDX横浜みなとみらいタワー の外観イメージ
地上34階・地下2階建ての超高層オフィスビルで、みなとみらいエリアに建つランドマーク的存在です。1994年竣工、S造、SRC造の堅牢な構造を採用。三菱重工業株式会社が設計、大成建設株式会社が施工を担当した洗練されたデザインが特徴的です。360度パノラマ眺望を誇り、横浜の海と街並みを一望できる視認性良好な立地。みなとみらいエリアのハイグレード物件として存在感を誇ります。










KDX横浜みなとみらいタワー の周辺イメージ
みなとみらい線みなとみらい駅徒歩4分、JR桜木町駅徒歩8分、市営地下鉄ブルーライン桜木町駅徒歩8分の立地。高速神奈川1号横羽線「みなとみらい」出入口近接で、都心・空港へのアクセス良好。みなとみらいエリアに位置し、三菱みなとみらい技術館、ぴあアリーナMM、横浜美術館に近接。食べログ百名店を含む飲食店多数あり、利便性の高いビジネス環境です。
KDX横浜みなとみらいタワー の主な入居テナント
KDX横浜みなとみらいタワー の募集終了区画
| 図面 | 階数 | 坪数 | 月額費用 | 坪単価 | 入居可能日 | |
|---|---|---|---|---|---|---|
![]() | 1階 | 17.30坪 | - | - | 募集終了 | 検討リスト |
![]() | 2階 | 28.04坪 | - | - | 募集終了 | 検討リスト |
![]() | 2階 | 70.41坪 | - | - | 募集終了 | 検討リスト |
![]() | 2階 | 80.00坪 | - | - | 募集終了 | 検討リスト |
![]() | 4階 | 111.18坪 | - | - | 募集終了 | 検討リスト |
![]() | 4階 | 40.16坪 | - | - | 募集終了 | 検討リスト |
![]() | 5階 | 192.98坪 | - | - | 募集終了 | 検討リスト |
![]() | 5階 | 34.40坪 | - | - | 募集終了 | 検討リスト |
![]() | 6階 | 541.15坪 | - | - | 募集終了 | 検討リスト |
![]() | 7階 | 127.70坪 | - | - | 募集終了 | 検討リスト |
![]() | 7階 | 171.32坪 | - | - | 募集終了 | 検討リスト |
![]() | 7階 | 469.50坪 | - | - | 募集終了 | 検討リスト |
![]() | 7階 | 93.45坪 | - | - | 募集終了 | 検討リスト |
![]() | 7階 | 101.10坪 | - | - | 募集終了 | 検討リスト |
![]() | 7階 | 172.02坪 | - | - | 募集終了 | 検討リスト |
![]() | 7階 | 87.24坪 | - | - | 募集終了 | 検討リスト |
![]() | 8階 | 270.58坪 | - | - | 募集終了 | 検討リスト |
![]() | 8階 | 182.92坪 | - | - | 募集終了 | 検討リスト |
![]() | 8階 | 84.74坪 | - | - | 募集終了 | 検討リスト |
![]() | 8階 | 49.08坪 | - | - | 募集終了 | 検討リスト |
![]() | 8階 | 23.48坪 | - | - | 募集終了 | 検討リスト |
![]() | 8階 | 21.81坪 | - | - | 募集終了 | 検討リスト |
![]() | 8階 | 60.72坪 | - | - | 募集終了 | 検討リスト |
![]() | 8階 | 22.53坪 | - | - | 募集終了 | 検討リスト |
![]() | 8階 | 29.00坪 | - | - | 募集終了 | 検討リスト |
![]() | 8階 | 29.00坪 | - | - | 募集終了 | 検討リスト |
![]() | 8階 | 28.02坪 | - | - | 募集終了 | 検討リスト |
![]() | 8階 | 45.29坪 | - | - | 募集終了 | 検討リスト |
![]() | 8階 | 60.72坪 | - | - | 募集終了 | 検討リスト |
![]() | 9階 | 541.15坪 | - | - | 募集終了 | 検討リスト |
![]() | 15階 | 140.75坪 | - | - | 募集終了 | 検討リスト |
![]() | 15階 | 24.35坪 | - | - | 募集終了 | 検討リスト |
![]() | 17階 | 153.23坪 | - | - | 募集終了 | 検討リスト |
![]() | 17階 | 56.38坪 | - | - | 募集終了 | 検討リスト |
![]() | 23階 | 541.15坪 | - | - | 募集終了 | 検討リスト |
![]() | 23階 | 541.15坪 | - | - | 募集終了 | 検討リスト |
![]() | 24階 | 577.95坪 | - | - | 募集終了 | 検討リスト |
![]() | 25階 | 577.95坪 | - | - | 募集終了 | 検討リスト |
近くの物件紹介
横浜市のエリア
近くの駅
| 取扱態様 | 仲介 |
|---|---|
| 取扱会社 | 株式会社アドマイアー 東京都中央区日本橋3-2-3ユニバース第1ビル2F TEL. 03-5204-1031 宅地建物取引業免許 東京都知事(3)第94663号 マンション管理業免許 国土交通大臣(2)第034224号 賃貸住宅管理業免許 国土交通大臣(01)第005938号 |
































