東方学会本館ビル(千代田区、西神田、神保町、九段下) の賃貸オフィス情報

- 所在地
- 東京都千代田区西神田2-4-1
- 最寄り駅
- 神保町駅徒歩3分、九段下駅徒歩6分
- 竣工
- 1926年
- 規模
- 地上4階
- 構造
- RC造(鉄筋コンクリート造)
- セキュリティ
- 機械警備(24時間監視)
- エントランス
- 平日開放
- エレベーター総数
- 0基
- 駐車場設備
- 要確認
東京の心臓部、千代田区西神田。
そこに静かに、しかし確かな存在感を放つ建物があります。
それが、時を超えて歴史を刻む東方学会本館です。
昭和初期の1926年に建てられ、1962年のリニューアルを経て、その風格は今もなお色褪せることなく、訪れる人々を魅了し続けています。
都心の喧騒を忘れさせるこの場所は、複数の駅からのアクセスが可能でありながら、一歩足を踏み入れるとその静けさに心が安らぎます。
東京メトロ半蔵門線、都営新宿線、三田線が交わる神保町駅、JR中央・総武線の水道橋駅、そして東京メトロ東西線の九段下駅。
これらの駅からわずか数分という利便性の高い立地にありながら、東方学会本館は都会の喧騒とは一線を画す、落ち着いた佇まいを見せています。
鉄筋コンクリート造り、地上4階建ての建物は、その外観からも歴史の重みを感じさせます。
千代田区の「景観まちづくり重要物件」に指定されていることからも、その歴史的、文化的価値の高さが伺えます。
通りから少し奥まった場所に位置するため、静かで落ち着いた環境が保たれているのも、この建物の大きな魅力の一つです。
内部は、東方学会の事務室や研究施設として利用されており、学術的な雰囲気が漂っています。
しかし、東方学会本館はそれだけではありません。
近年では、この歴史ある建物を賃貸事務所として利用する企業も増えています。
都心に位置しながらも、落ち着いた環境で業務に集中できるため、多くの企業から注目を集めているのです。
レトロな雰囲気でありながら、現代のオフィスとしての機能も兼ね備えており、訪れる人々に新たなインスピレーションを与えています。
周辺には、世界的に有名な神保町の古書店街が広がり、一歩足を踏み入れると、まるでタイムスリップしたかのような感覚に陥ります。
また、東京ドームや靖国神社などの文化施設も点在し、歴史と文化の息吹を感じることができます。
飲食店も豊富で、ランチタイムや仕事帰りには、様々なグルメを楽しむことができます
そこに静かに、しかし確かな存在感を放つ建物があります。
それが、時を超えて歴史を刻む東方学会本館です。
昭和初期の1926年に建てられ、1962年のリニューアルを経て、その風格は今もなお色褪せることなく、訪れる人々を魅了し続けています。
都心の喧騒を忘れさせるこの場所は、複数の駅からのアクセスが可能でありながら、一歩足を踏み入れるとその静けさに心が安らぎます。
東京メトロ半蔵門線、都営新宿線、三田線が交わる神保町駅、JR中央・総武線の水道橋駅、そして東京メトロ東西線の九段下駅。
これらの駅からわずか数分という利便性の高い立地にありながら、東方学会本館は都会の喧騒とは一線を画す、落ち着いた佇まいを見せています。
鉄筋コンクリート造り、地上4階建ての建物は、その外観からも歴史の重みを感じさせます。
千代田区の「景観まちづくり重要物件」に指定されていることからも、その歴史的、文化的価値の高さが伺えます。
通りから少し奥まった場所に位置するため、静かで落ち着いた環境が保たれているのも、この建物の大きな魅力の一つです。
内部は、東方学会の事務室や研究施設として利用されており、学術的な雰囲気が漂っています。
しかし、東方学会本館はそれだけではありません。
近年では、この歴史ある建物を賃貸事務所として利用する企業も増えています。
都心に位置しながらも、落ち着いた環境で業務に集中できるため、多くの企業から注目を集めているのです。
レトロな雰囲気でありながら、現代のオフィスとしての機能も兼ね備えており、訪れる人々に新たなインスピレーションを与えています。
周辺には、世界的に有名な神保町の古書店街が広がり、一歩足を踏み入れると、まるでタイムスリップしたかのような感覚に陥ります。
また、東京ドームや靖国神社などの文化施設も点在し、歴史と文化の息吹を感じることができます。
飲食店も豊富で、ランチタイムや仕事帰りには、様々なグルメを楽しむことができます
東方学会本館ビル の募集区画 (総募集面積 0.00坪)
現在募集はありません。
地図
東京都千代田区西神田2-4-1 地図をクリックして拡大できます
東方学会本館ビル の外観イメージ
東方学会本館ビル(千代田区西神田)の外観は、大正時代の建築様式を反映した歴史的価値の高いデザインが特徴です。鉄筋コンクリート造モルタル塗仕上げの簡素ながらも重厚感のある佇まいは、周辺のビジネス街に独特の存在感を放っています。中央に配置された階段室を中心にシンメトリーな構造となっており、竣工当時の雰囲気を色濃く残す外観は、企業イメージの向上に貢献します。








東方学会本館ビル の周辺イメージ
東方学会本館ビル(千代田区)の周辺環境は、ビジネスパーソンにとって非常に便利です。神保町エリアには多数の書店やカフェが点在し、知的な雰囲気が漂っています。また、九段下や水道橋周辺には商業施設や飲食店も充実しており、ランチやビジネスミーティングの場所として活用できます。近隣には東京大神宮や靖国神社などの文化施設、日本大学や共立女子大学などの教育機関も点在し、多様な環境が整っています。


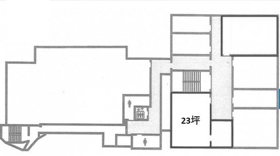
東方学会本館ビル の募集終了区画
近くの物件紹介
千代田区のエリア
近くの駅
| 取扱態様 | 仲介 |
|---|---|
| 取扱会社 | 株式会社アドマイアー 東京都中央区日本橋3-2-3ユニバース第1ビル2F TEL. 03-5204-1031 宅地建物取引業免許 東京都知事(3)第94663号 マンション管理業免許 国土交通大臣(2)第034224号 賃貸住宅管理業免許 国土交通大臣(01)第005938号 |



























