内神田ビル(千代田区、内神田、神田、淡路町) の賃貸オフィス情報

- 所在地
- 東京都千代田区内神田2-14-4
- 最寄り駅
- 神田駅徒歩3分、淡路町駅徒歩6分、小川町駅徒歩7分
- 竣工
- 1982年
- 規模
- 地上6階
- 構造
- RC造(鉄筋コンクリート造)
- セキュリティ
- 機械警備(24時間監視)
- エントランス
- 平日開放
- エレベーター総数
- 1基
- 駐車場設備
- 要確認
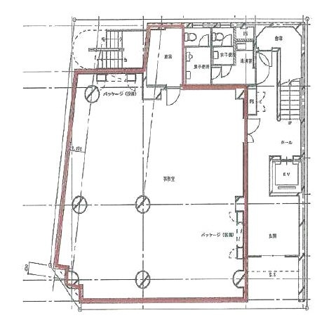
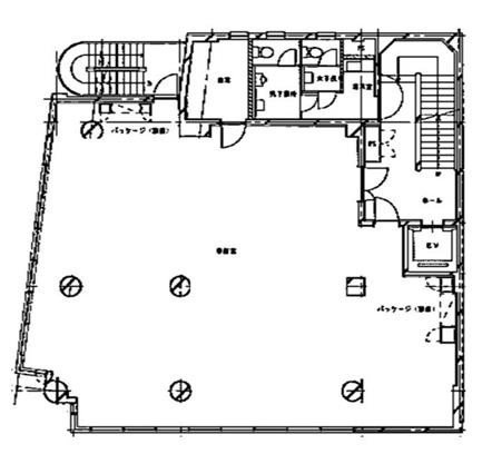
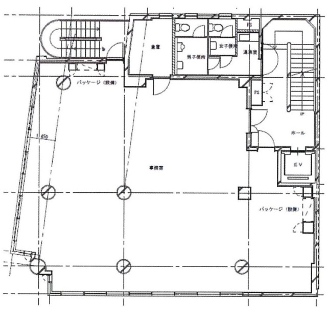
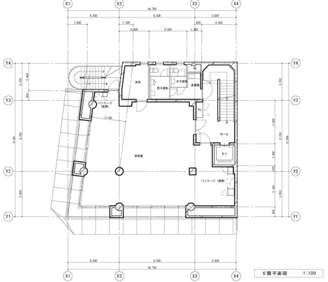
神田駅から歩いて3分の内神田ビルディングは、複数路線が利用できてアクセスがとても便利です。白を基調にしたシンプルで清潔感のある外観は、2018年に外壁を整備して築年数を感じさせません。ワンフロア貸しで56坪の広さがあり、自由なオフィスレイアウトが可能なのもポイント。個別空調や男女別トイレなど快適な設備が整い、機械警備も完備でセキュリティも安心。近隣には飲食店やコンビニ、銀行も揃っていて、働くうえでの利便性は申し分なし。ビジネスの拠点として落ち着いた環境を求める企業にぴったりの物件です。
内神田ビル の募集区画 (総募集面積 0.00坪)
現在募集はありません。
地図
東京都千代田区内神田2-14-4 地図をクリックして拡大できます
内神田ビル の外観イメージ
外観は白を基調とした落ち着いたデザインで、上層階はバルコニー付きのセットバック構造。角の隅切り部分がアクセントとなって目を引きます。2018年に外壁がリフレッシュされており、築年数を感じさせない清潔感があります。鉄筋コンクリート特有のしっかりとした重みと品格を備え、ビジネス街の街並みに自然に溶け込んでいます。








内神田ビル の周辺イメージ
神田駅の西口からすぐで東京メトロ銀座線や丸ノ内線、都営新宿線も徒歩圏内。飲食店がひしめき合うエリアで、ランチやアフターファイブも充実。コンビニや銀行、郵便局も近く、日常的なビジネスニーズをしっかりサポート。ビジネス街として発展した利便性の高さが際立ち、快適に仕事ができる環境が整っています。

内神田ビル の募集終了区画
近くの物件紹介
千代田区のエリア
近くの駅
| 取扱態様 | 仲介 |
|---|---|
| 取扱会社 | 株式会社アドマイアー 東京都中央区日本橋3-2-3ユニバース第1ビル2F TEL. 03-5204-1031 宅地建物取引業免許 東京都知事(3)第94663号 マンション管理業免許 国土交通大臣(2)第034224号 賃貸住宅管理業免許 国土交通大臣(01)第005938号 |





























