川崎砂子ビル(川崎市川崎区、砂子、京急川崎、川崎) の賃貸オフィス情報

- 所在地
- 神奈川県川崎市川崎区砂子1-2-4
- 最寄り駅
- 京急川崎駅徒歩2分、川崎駅徒歩3分
- 竣工
- 1990年
- 規模
- 地上12階・地下1階
- 構造
- S造(鉄骨造)
- 耐震基準
- 新耐震基準適合
- セキュリティ
- 機械警備(24時間監視)
- エントランス
- 毎日開放(7:30-21:00)
- エレベーター総数
- 3基
- 駐車場設備
- 有(立体駐車場)
- 設備
- トイレ男女別、 土日祝エントランス開放
川崎砂子ビル の物件特徴・おすすめポイント
■12階建ての規模に対しエレベーター3基完備で待ち時間を大幅に短縮
■1990年竣工の新耐震基準適合物件であり企業の安全基盤を確保
■24時間監視の機械警備に加え立体駐車場もあり実用的な設備が充実
■エントランスは土日祝も含む毎日開放で来客の多い業態にも好適
川崎砂子ビル の募集区画 (総募集面積 0.00坪)
現在募集はありません。
建物に関するよくある質問と回答
A1. 京急本線・大師線の京急川崎駅から徒歩2分、JR各線の川崎駅から徒歩3分という非常に利便性の高い立地です。市役所通りや京急線高架からもほど近く、初めて訪れる方でも迷うことのない分かりやすいルートで到着可能です。
Q2. 川崎砂子ビルの耐震性能・構造はどうなっていますか?
A2. 本物件は1990年竣工であり、新耐震基準に適合しています。構造にはS造(鉄骨造)を採用しており、地上12階建ての中高層オフィスビルとして、優れた耐震性と安全性を備えた設計がなされています。
Q3. エレベーターの設置台数と利便性について教えてください。
A3. 館内には合計3基のエレベーターが設置されています。地上12階建ての規模に対して十分な台数が確保されているため、朝の通勤ラッシュ時や外出が重なる時間帯でも、円滑なフロア移動が可能です。
Q4. セキュリティや入退館の制限はありますか?
A4. 24時間監視の機械警備システムを導入しており、深夜や休日を問わず高度な防犯体制が維持されています。ビル自体は24時間利用可能なため、早朝や夜間の勤務が発生する企業様でも安心してご入居いただけます。
Q5. 川崎砂子ビルに駐車場はありますか?
A5. 敷地内に立体駐車場設備を完備しています。川崎駅至近という一等地でありながら、ビル内に車両を収容できる環境は、営業車両を多用する企業や来客対応を重視する法人にとって大きなメリットとなります。
Q6. 周辺の利便施設(銀行やランチなど)はどうですか?
A6. 川崎駅前の繁華街・ビジネス街に位置するため、周辺には主要銀行の支店、郵便局、コンビニエンスストアが多数集積しています。飲食店やカフェも無数に点在しており、ランチタイムや打ち合わせ場所の選択肢が非常に豊富です。
地図
神奈川県川崎市川崎区砂子1-2-4 地図をクリックして拡大できます
川崎砂子ビル の外観イメージ
地上12階、地下1階建てのS造の建物は、川崎駅前の活気ある街並みにおいて存在感を放つ、清潔感と機能美を兼ね備えた外観が特徴的です。1990年竣工ながら適切にメンテナンスされた外壁は、企業としての誠実さと安心感を来客に対して明確に示します。視認性の高いロケーションに位置しており、毎日開放される整えられたエントランスが、ビジネス拠点としての品位をしっかりと維持しています。派手さを抑えつつも、中高層ビルらしい風格を備えた佇まいは、入居企業の信頼性を高める象徴となります。






川崎砂子ビル の周辺イメージ
川崎市川崎区砂子1丁目に位置する本物件の周辺は、神奈川県下でも有数の利便性を誇るエリアです。徒歩圏内には「アゼリア」や「ラゾーナ川崎プラザ」などの大型商業施設が充実しており、銀行、郵便局、役所関係の施設も至近に揃っています。事務手続きや備品調達を迅速に行えるほか、飲食店やカフェの密度が極めて高く、ランチタイムからアフターファイブまで非常に充実した環境です。ビジネスの活気と都市機能が高度に凝縮された、理想的な周辺アメニティ環境を誇ります。



川崎砂子ビル のアクセス・ロケーション
■ 駅徒歩分数
京急本線・大師線 「京急川崎駅」 中央口より徒歩2分
JR各線 「川崎駅」 東口より徒歩3分
■ 主要エリアへのアクセス 川崎駅からJR東海道線・京浜東北線等を利用して横浜駅まで約8分、品川駅まで約9分、東京駅まで約18分と、都心と横浜の主要ビジネス拠点へ数分でダイレクトにアクセス可能です。また、京急線を利用すれば羽田空港へのアクセスも極めてスムーズであり、広域なビジネス展開をサポートする優れた機動力を備えています。
■ エリア特性 川崎砂子エリアは、古くからの商業の活気と、近年加速する再開発によるビジネス拠点としての高度化が融合した、極めてエネルギーに満ちた地域です。都心と横浜を繋ぐハブとしての機能が強く、機動性と利便性を求める企業にとって、独自のステータスと高いポテンシャルを持つエリア特性を持っています。
川崎砂子ビル の募集終了区画
| 図面 | 階数 | 坪数 | 月額費用 | 坪単価 | 入居可能日 | |
|---|---|---|---|---|---|---|
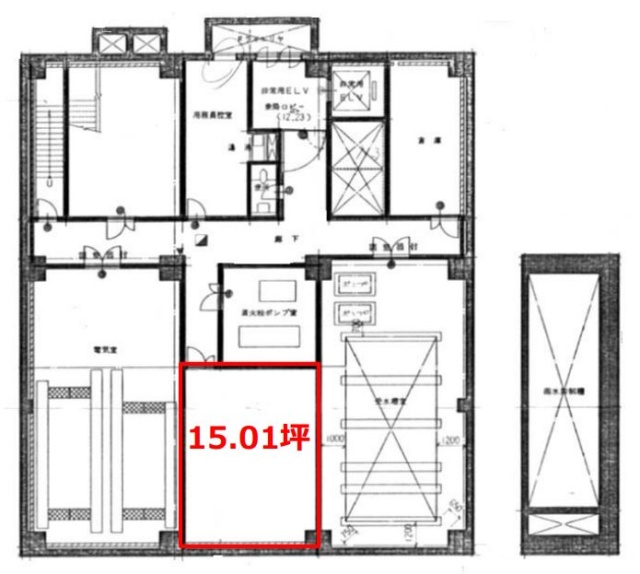
![]() | B1階 | 15.01坪 | お問い合わせください | 募集終了 | 検討リスト | |
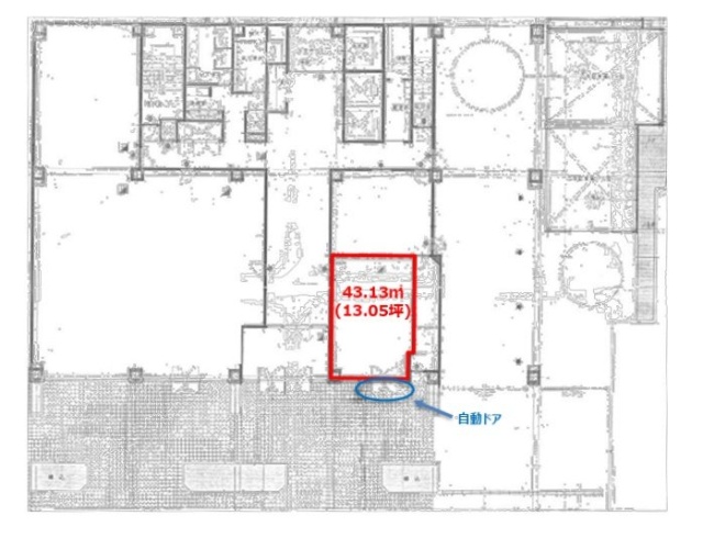
![]() | 1階 | 13.05坪 | お問い合わせください | 募集終了 | 検討リスト | |
![]() | 2階 | 20.17坪 | お問い合わせください | 募集終了 | 検討リスト | |
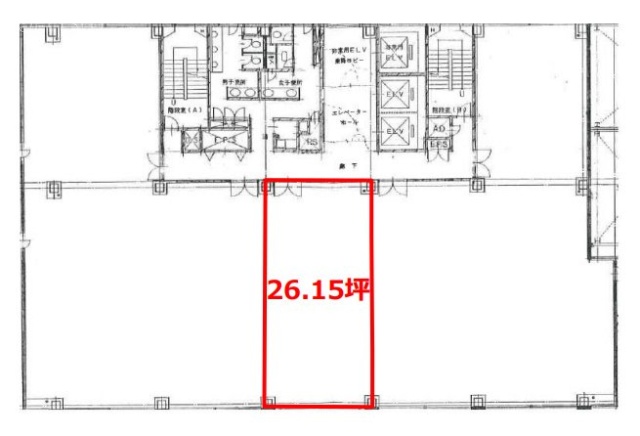
![]() | 2階 | 26.15坪 | お問い合わせください | 募集終了 | 検討リスト | |
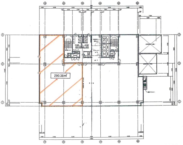
![]() | 2階 | 82.98坪 | お問い合わせください | 募集終了 | 検討リスト | |
![]() | 3階 | 89.21坪 | お問い合わせください | 募集終了 | 検討リスト | |
![]() | 3階 | 153.25坪 | お問い合わせください | 募集終了 | 検討リスト | |
![]() | 3階 | 23.80坪 | お問い合わせください | 募集終了 | 検討リスト | |
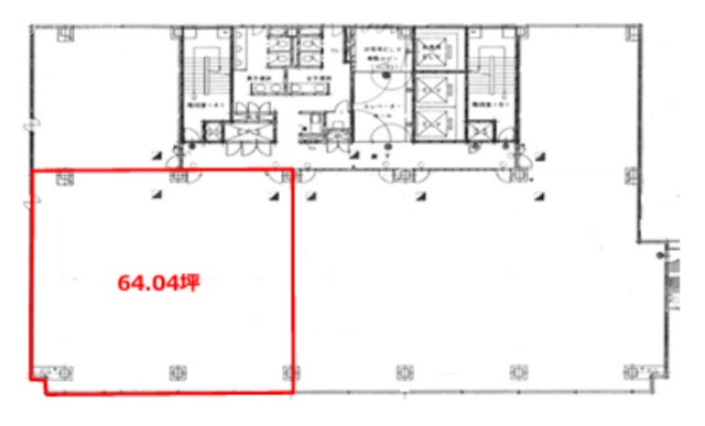
![]() | 4階 | 64.04坪 | お問い合わせください | 募集終了 | 検討リスト | |
![]() | 4階 | 55.49坪 | お問い合わせください | 募集終了 | 検討リスト | |
![]() | 4階 | 87.84坪 | お問い合わせください | 募集終了 | 検討リスト | |
![]() | 4階 | 197.22坪 | お問い合わせください | 募集終了 | 検討リスト | |
![]() | 4階 | 143.33坪 | お問い合わせください | 募集終了 | 検討リスト | |
![]() | 5階 | 87.84坪 | お問い合わせください | 募集終了 | 検討リスト | |
![]() | 5階 | 64.04坪 | お問い合わせください | 募集終了 | 検討リスト | |
![]() | 5階 | 23.80坪 | お問い合わせください | 募集終了 | 検討リスト | |
![]() | 6階 | 64.04坪 | お問い合わせください | 募集終了 | 検討リスト | |
![]() | 6階 | 23.80坪 | お問い合わせください | 募集終了 | 検討リスト | |
![]() | 6階 | 87.84坪 | お問い合わせください | 募集終了 | 検討リスト | |
![]() | 7階 | 197.22坪 | お問い合わせください | 募集終了 | 検討リスト | |
![]() | 7階 | 64.05坪 | お問い合わせください | 募集終了 | 検討リスト | |
![]() | 7階 | 87.85坪 | お問い合わせください | 募集終了 | 検討リスト | |
![]() | 8階 | 197.22坪 | お問い合わせください | 募集終了 | 検討リスト | |
![]() | 11階 | 27.37坪 | お問い合わせください | 募集終了 | 検討リスト | |
![]() | 11階 | 60.47坪 | お問い合わせください | 募集終了 | 検討リスト | |
![]() | 11階 | 115.95坪 | お問い合わせください | 募集終了 | 検討リスト | |
![]() | 11階 | 67.67坪 | お問い合わせください | 募集終了 | 検討リスト |
川崎砂子ビル が選ばれる理由
■ 2駅徒歩3分以内の良好なアクセスと時間効率
京急川崎駅・JR川崎駅の両駅から極めて近い立地は、従業員の通勤負担を大幅に軽減し、多忙なビジネスパーソンの移動時間を最小化します。
抜群のアクセスの良さは、来客へのホスピタリティ向上だけでなく、広域からの人材採用においても強力な武器となります。
■ 3基のエレベーターと駐車場完備による実用的なインフラ
12階建ての規模に見合った3基のエレベーター運用により、上下移動の待ち時間を削減し、日々の業務スピードを落としません。
敷地内に立体駐車場を確保しているため、公共交通機関と社用車を使い分けるハイブリッドな営業展開を可能にし、企業の機動力を支えます。
■ 新耐震基準と機械警備による強固な安全基盤
1990年竣工の新耐震基準適合物件であり、堅牢なS造が万が一の災害時にも企業の資産と従業員の安全を強固に守ります。
24時間監視の機械警備体制が整っているため、深夜・休日を問わず常に高い安心感を持って事業を継続できる環境が整っています。
近くの物件紹介
川崎市のエリア
近くの駅
| 取扱態様 | 仲介 |
|---|---|
| 取扱会社 | 株式会社アドマイアー 東京都中央区日本橋3-2-3ユニバース第1ビル2F TEL. 03-5204-1031 宅地建物取引業免許 東京都知事(3)第94663号 マンション管理業免許 国土交通大臣(2)第034224号 賃貸住宅管理業免許 国土交通大臣(01)第005938号 |







































