関内中央ビル(横浜市中区、真砂町、関内、日ノ出町) の賃貸オフィス情報

- 所在地
- 神奈川県横浜市中区真砂町2-22
- 最寄り駅
- 関内駅徒歩2分、日ノ出町駅徒歩16分
- 竣工
- 1972年
- 規模
- 地上10階・地下1階
- 構造
- RC造(鉄筋コンクリート造)
- セキュリティ
- 有人管理(警備員常駐)
- エントランス
- 平日開放
- エレベーター総数
- 2基
- 駐車場設備
- 要確認
賃料相場
75件のデータ
関内中央ビル の物件特徴・おすすめポイント
関内中央ビルは、駅前の好立地と広い貸室スペース、充実した管理体制が大きな特長です。耐震補強済みで、安心して長期利用できる大規模オフィスビルをお探しの企業様にも提案しやすい仕様。周辺は金融・行政機関、飲食店や郵便局が揃い、横浜都心エリア随一の利便性を実感できます。歴史ある街並みや再開発の進むエリア性を活かし、本社移転や支店・営業拠点、サテライトオフィスにも適しています。駅近なので従業員や来客にも使いやすく、多様なビジネス展開の基盤構築に貢献する一棟です。
関内中央ビル の募集区画 (総募集面積 0.00坪)
現在募集はありません。
地図
神奈川県横浜市中区真砂町2-22 地図をクリックして拡大できます
関内中央ビル の外観イメージ
関内中央ビルは、重厚感のある鉄骨鉄筋コンクリート造で、グレー系タイルと直線的なフォルムが特徴。ガラス面を効果的に配置し、開放的な外観を実現しています。1階エントランスは広く開かれ、清潔感のある共用部が来訪者に安心感を与えます。駅前のランドマークとして存在感を放ちつつ、歴史的な関内地区の都市景観にも調和。夜間は周辺建物のライトアップとともに、鮮やかに浮かび上がるビルのシルエットが街並みに印象を添えています。






関内中央ビル の周辺イメージ
関内中央ビルは1階に各種事務所区画を設け、近隣には金融機関・郵便局・飲食店・カフェなど多様な施設が徒歩圏に集積。関内駅北口駅前の中心部に位置し、横浜スタジアム、日本大通りや伊勢佐木町も至近。再開発エリア内で、今後もさらなる利便性・価値向上が見込めるエリアです。明治・大正期からの歴史的建造物や横浜の防火帯建築が混在し、ビジネスと文化が共存する都市環境。来客や社員の徒歩導線も非常によく、営業活動や拠点運営の利便を高めます。
関内中央ビル の募集終了区画
| 図面 | 階数 | 坪数 | 月額費用 | 坪単価 | 入居可能日 | |
|---|---|---|---|---|---|---|
準備中 | 1階 | 35.36坪 | お問い合わせください | 募集終了 | 検討リスト | |
準備中 | 1階 | 22.89坪 | お問い合わせください | 募集終了 | 検討リスト | |
準備中 | 2階 | 30.85坪 | お問い合わせください | 募集終了 | 検討リスト | |
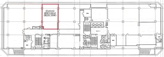
![]() | 2階 | 28.39坪 | お問い合わせください | 募集終了 | 検討リスト | |
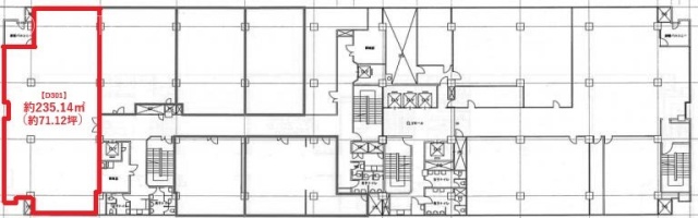
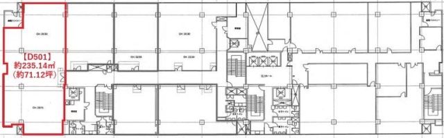
![]() | 3階 | 71.12坪 | お問い合わせください | 募集終了 | 検討リスト | |
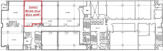
![]() | 3階 | 31.85坪 | お問い合わせください | 募集終了 | 検討リスト | |
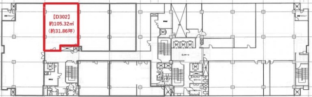
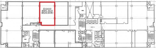
![]() | 3階 | 28.84坪 | お問い合わせください | 募集終了 | 検討リスト | |
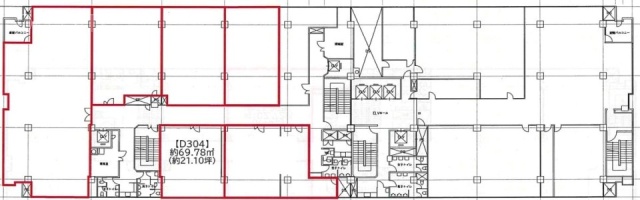
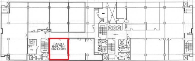
![]() | 3階 | 21.10坪 | お問い合わせください | 募集終了 | 検討リスト | |
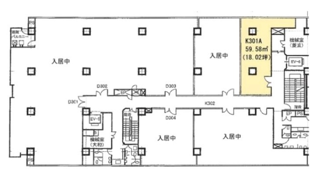
![]() | 3階 | 18.02坪 | お問い合わせください | 募集終了 | 検討リスト | |
準備中 | 3階 | 25.89坪 | お問い合わせください | 募集終了 | 検討リスト | |
![]() | 3階 | 25.90坪 | お問い合わせください | 募集終了 | 検討リスト | |
準備中 | 3階 | 31.07坪 | お問い合わせください | 募集終了 | 検討リスト | |
準備中 | 4階 | 31.86坪 | お問い合わせください | 募集終了 | 検討リスト | |
準備中 | 4階 | 21.11坪 | お問い合わせください | 募集終了 | 検討リスト | |
![]() | 4階 | 43.91坪 | お問い合わせください | 募集終了 | 検討リスト | |
![]() | 4階 | 31.07坪 | お問い合わせください | 募集終了 | 検討リスト | |
![]() | 5階 | 71.12坪 | お問い合わせください | 募集終了 | 検討リスト | |
![]() | 5階 | 31.85坪 | お問い合わせください | 募集終了 | 検討リスト | |
![]() | 5階 | 28.84坪 | お問い合わせください | 募集終了 | 検討リスト | |
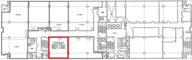
![]() | 5階 | 21.10坪 | お問い合わせください | 募集終了 | 検討リスト | |
![]() | 5階 | 43.92坪 | お問い合わせください | 募集終了 | 検討リスト | |
![]() | 5階 | 31.07坪 | お問い合わせください | 募集終了 | 検討リスト |
近くの物件紹介
横浜市のエリア
近くの駅
| 取扱態様 | 仲介 |
|---|---|
| 取扱会社 | 株式会社アドマイアー 東京都中央区日本橋3-2-3ユニバース第1ビル2F TEL. 03-5204-1031 宅地建物取引業免許 東京都知事(3)第94663号 マンション管理業免許 国土交通大臣(2)第034224号 賃貸住宅管理業免許 国土交通大臣(01)第005938号 |







































