新溝ノ口ビル(川崎市高津区、久本、武蔵溝ノ口、溝の口) の賃貸オフィス情報

- 所在地
- 神奈川県川崎市高津区久本3-5-7
- 最寄り駅
- 武蔵溝ノ口駅徒歩8分、溝の口駅徒歩10分、高津駅徒歩14分
- 竣工
- 1988年
- 規模
- 地上5階・地下1階
- 構造
- SRC造(鉄骨鉄筋コンクリート造)
- 耐震基準
- 新耐震基準適合
- セキュリティ
- 機械警備・有人管理(24時間体制)
- エントランス
- 平日・土曜日開放(【平日土】7:30~19:00/開 【日祝日】閉 ※時間外は通用口よりカードキーにて入館可)
- エレベーター総数
- 4基(【乗用】4基15人乗1,000kg(三菱)【人荷用】1基24人乗1,600kg(三菱))
- 駐車場設備
- 有(【平日土】7:30~19:00/開 【日祝日】閉 ※時間外は通用口よりカードキーにて入館可)
- 設備
- リフレッシュコーナー、 喫煙室
JR武蔵溝ノ口駅徒歩8分、東急溝の口駅徒歩10分、渋谷駅まで急行15分の好アクセス
基準階面積721.17坪、天井高2,750mm、OAフロア140mmの広々とした執務環境
吹抜けのパティオ、リフレッシュスペース・喫煙ルーム完備の開放的な空間
基準階面積721.17坪、天井高2,750mm、OAフロア140mmの広々とした執務環境
吹抜けのパティオ、リフレッシュスペース・喫煙ルーム完備の開放的な空間
新溝ノ口ビル の募集区画 (総募集面積 41.18坪)
※月額費用、坪単価 ともに共益費込・税別の価格です
建物に関するよくある質問と回答
Q1: 最寄り駅とアクセスを教えてください。
JR南武線「武蔵溝ノ口」駅北口から徒歩8分、東急田園都市線・大井町線「溝の口」駅東口から徒歩10分です。東急線で渋谷駅まで急行利用で15分と都心へのアクセスが良好です。2路線利用可能で通勤に便利な立地です。
Q2: 竣工年と築年数を教えてください。
1988年8月竣工で、築年数は約37年です。
Q3: 建物の構造・階数・延床面積を教えてください。
鉄骨鉄筋コンクリート造、地下1階・地上5階建で、延床面積は16,783.53㎡(5,077.01坪)です。住友建設株式会社(現、三井住友建設株式会社)による堅牢な施工となっています。
Q4: 基準階面積とレイアウトの特徴を教えてください。
基準階面積は2,384.03㎡(721.17坪)です。天井高は2,750mm、OAフロアは140mmで配線の自由度が高い設計です。セントラル空調(1フロア4ゾーン)で快適な執務環境を実現し、吹抜けのパティオがある開放的な空間となっています。
Q5: 設備の特徴を教えてください。
セントラル空調(1フロア4ゾーン)、光ケーブルMDFまで引込済、機械警備(東急セキュリティ)、有人管理(平日土)完備です。エレベーターは乗用4基・人荷用1基、OAフロア140mmで配線の自由度が高い設計です。
Q6: 周辺環境と利便性を教えてください。
JR武蔵溝ノ口駅徒歩8分、東急溝の口駅徒歩10分の立地です。東急線で渋谷駅まで急行15分と都心へのアクセスが良好です。敷地内に自走式駐車場108台完備で、車通勤にも便利な環境です。
Q7: 駐車場やバイク置場について教えてください。
駐車場は自走式108台(うち身障者用1台)を完備しており、4台の空きがあります。月額40,000円/台(税別)、敷金2ヶ月で利用可能です。バイク置場についてはリーフレットに記載がありません。
Q8: 設計・施工会社を教えてください。
設計は株式会社日本設計、施工は住友建設株式会社(現、三井住友建設株式会社)です。1988年竣工の鉄骨鉄筋コンクリート造で、吹抜けのパティオがある開放的な空間設計が特徴となっています。
JR南武線「武蔵溝ノ口」駅北口から徒歩8分、東急田園都市線・大井町線「溝の口」駅東口から徒歩10分です。東急線で渋谷駅まで急行利用で15分と都心へのアクセスが良好です。2路線利用可能で通勤に便利な立地です。
Q2: 竣工年と築年数を教えてください。
1988年8月竣工で、築年数は約37年です。
Q3: 建物の構造・階数・延床面積を教えてください。
鉄骨鉄筋コンクリート造、地下1階・地上5階建で、延床面積は16,783.53㎡(5,077.01坪)です。住友建設株式会社(現、三井住友建設株式会社)による堅牢な施工となっています。
Q4: 基準階面積とレイアウトの特徴を教えてください。
基準階面積は2,384.03㎡(721.17坪)です。天井高は2,750mm、OAフロアは140mmで配線の自由度が高い設計です。セントラル空調(1フロア4ゾーン)で快適な執務環境を実現し、吹抜けのパティオがある開放的な空間となっています。
Q5: 設備の特徴を教えてください。
セントラル空調(1フロア4ゾーン)、光ケーブルMDFまで引込済、機械警備(東急セキュリティ)、有人管理(平日土)完備です。エレベーターは乗用4基・人荷用1基、OAフロア140mmで配線の自由度が高い設計です。
Q6: 周辺環境と利便性を教えてください。
JR武蔵溝ノ口駅徒歩8分、東急溝の口駅徒歩10分の立地です。東急線で渋谷駅まで急行15分と都心へのアクセスが良好です。敷地内に自走式駐車場108台完備で、車通勤にも便利な環境です。
Q7: 駐車場やバイク置場について教えてください。
駐車場は自走式108台(うち身障者用1台)を完備しており、4台の空きがあります。月額40,000円/台(税別)、敷金2ヶ月で利用可能です。バイク置場についてはリーフレットに記載がありません。
Q8: 設計・施工会社を教えてください。
設計は株式会社日本設計、施工は住友建設株式会社(現、三井住友建設株式会社)です。1988年竣工の鉄骨鉄筋コンクリート造で、吹抜けのパティオがある開放的な空間設計が特徴となっています。
地図
神奈川県川崎市高津区久本3-5-7 地図をクリックして拡大できます
新溝ノ口ビル の外観イメージ
新溝ノ口ビルは地上5階建の鉄骨鉄筋コンクリート造で、開放感のある広々としたエントランスホールが特徴です。ビル前面には入口集合看板があり、視認性が高い外観となっています。敷地内には自走式駐車場が配置され、周辺には樹木が植えられた緑豊かな環境です。







新溝ノ口ビル の周辺イメージ
JR武蔵溝ノ口駅北口徒歩8分、東急溝の口駅東口徒歩10分の立地です。東急線で渋谷駅まで急行15分と都心へのアクセスが良好で、通勤に便利な環境です。

新溝ノ口ビル の募集終了区画
| 図面 | 階数 | 坪数 | 月額費用 | 坪単価 | 入居可能日 | |
|---|---|---|---|---|---|---|
![]() | B1階 | 6.30坪 | お問い合わせください | 募集終了 | 検討リスト | |
![]() | 1階 | 58.08坪 | お問い合わせください | 募集終了 | 検討リスト | |
![]() | 1階 | 41.19坪 | お問い合わせください | 募集終了 | 検討リスト | |
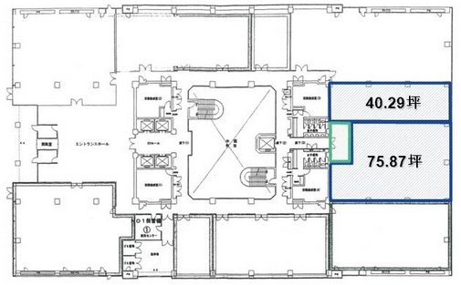
![]() | 1階 | 75.87坪 | お問い合わせください | 募集終了 | 検討リスト | |
![]() | 1階 | 116.16坪 | お問い合わせください | 募集終了 | 検討リスト | |
![]() | 1階 | 58.08坪 | お問い合わせください | 募集終了 | 検討リスト | |
準備中 | 2階 | 116.16坪 | お問い合わせください | 募集終了 | 検討リスト | |
![]() | 3階 | 41.19坪 | お問い合わせください | 募集終了 | 検討リスト | |
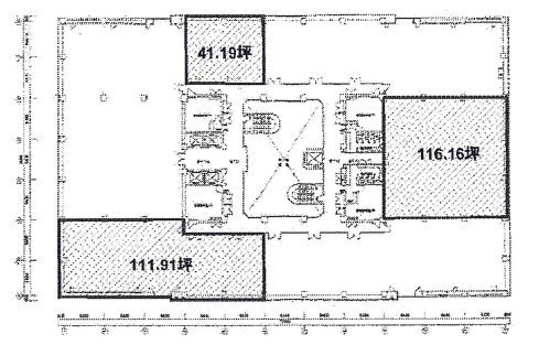
![]() | 3階 | 111.91坪 | お問い合わせください | 募集終了 | 検討リスト | |
![]() | 3階 | 20.59坪 | お問い合わせください | 募集終了 | 検討リスト | |
準備中 | 4階 | 186.88坪 | お問い合わせください | 募集終了 | 検討リスト | |
準備中 | 4階 | 41.19坪 | お問い合わせください | 募集終了 | 検討リスト | |
準備中 | 4階 | 278.20坪 | お問い合わせください | 募集終了 | 検討リスト | |
準備中 | 4階 | 91.32坪 | お問い合わせください | 募集終了 | 検討リスト | |
準備中 | 4階 | 132.51坪 | お問い合わせください | 募集終了 | 検討リスト | |
準備中 | 5階 | 29.97坪 | お問い合わせください | 募集終了 | 検討リスト | |
準備中 | 5階 | 50.56坪 | お問い合わせください | 募集終了 | 検討リスト | |
準備中 | 5階 | 71.15坪 | お問い合わせください | 募集終了 | 検討リスト | |
準備中 | 5階 | 136.75坪 | お問い合わせください | 募集終了 | 検討リスト | |
準備中 | 5階 | 207.46坪 | お問い合わせください | 募集終了 | 検討リスト | |
準備中 | 5階 | 228.05坪 | お問い合わせください | 募集終了 | 検討リスト | |
準備中 | 5階 | 177.49坪 | お問い合わせください | 募集終了 | 検討リスト | |
準備中 | 5階 | 61.33坪 | お問い合わせください | 募集終了 | 検討リスト | |
準備中 | 5階 | 248.64坪 | お問い合わせください | 募集終了 | 検討リスト | |
準備中 | 5階 | 293.65坪 | お問い合わせください | 募集終了 | 検討リスト | |
準備中 | 5階 | 385.39坪 | お問い合わせください | 募集終了 | 検討リスト | |
準備中 | 5階 | 344.21坪 | お問い合わせください | 募集終了 | 検討リスト |
近くの物件紹介
川崎市のエリア
近くの駅
| 取扱態様 | 仲介 |
|---|---|
| 取扱会社 | 株式会社アドマイアー 東京都中央区日本橋3-2-3ユニバース第1ビル2F TEL. 03-5204-1031 宅地建物取引業免許 東京都知事(3)第94663号 マンション管理業免許 国土交通大臣(2)第034224号 賃貸住宅管理業免許 国土交通大臣(01)第005938号 |




































