横浜ビジネスパーク(YBP)ウエストタワー(横浜市保土ケ谷区、神戸町、天王町、星川) の賃貸オフィス情報

- 所在地
- 神奈川県横浜市保土ケ谷区神戸町134
- 最寄り駅
- 天王町駅徒歩4分、星川駅徒歩7分、保土ケ谷駅徒歩11分
- 竣工
- 1990年
- 規模
- 地上12階・地下2階
- 構造
- S造(鉄骨造)
- 耐震基準
- 新耐震基準適合
- セキュリティ
- 機械警備・有人管理(24時間体制)
- エントランス
- 平日開放
- エレベーター総数
- 6基
- 駐車場設備
- 有(356台)
■ 1990年竣工・地上12階建の新耐震基準オフィスビル
■ 相鉄線「天王町」駅徒歩4分・JR「保土ヶ谷」駅徒歩圏
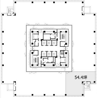
■ 基準階約576坪・天井高2,600mm・OA80mm仕様
■ ウエストタワー7階に大小12室の貸会議室を設置
■ 相鉄線「天王町」駅徒歩4分・JR「保土ヶ谷」駅徒歩圏
■ 基準階約576坪・天井高2,600mm・OA80mm仕様
■ ウエストタワー7階に大小12室の貸会議室を設置
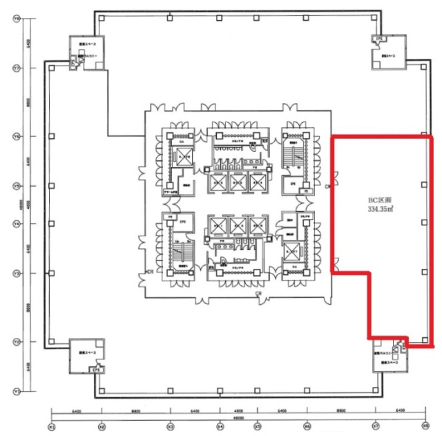
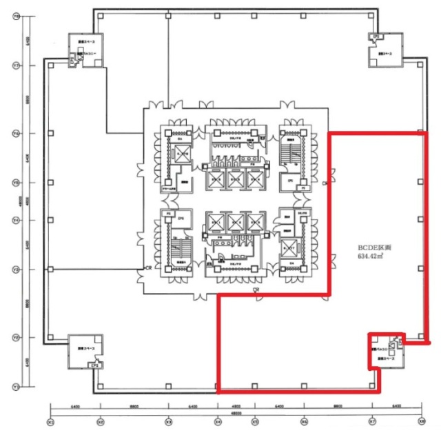
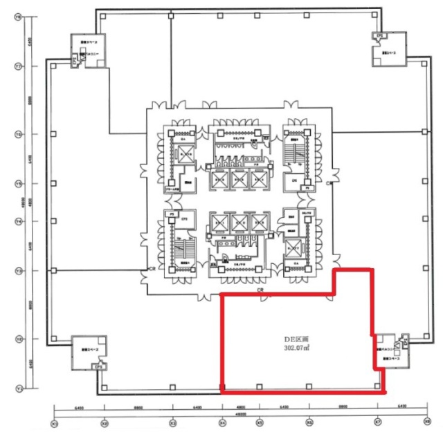
横浜ビジネスパーク(YBP)ウエストタワー の募集区画 (総募集面積 102.81坪)
※月額費用、坪単価 ともに共益費込・税別の価格です
建物に関するよくある質問と回答
Q1. 最寄駅はどこですか?
A1. 相鉄線「天王町」駅(YBP口)徒歩4分が最寄です。
Q2. JR線からのアクセスは?
A2. JR「保土ヶ谷」駅西口から徒歩11分で、平日は無料シャトルバスも運行されています。
Q3. 建物規模は?
A3. 地上12階・地下2階建の中高層オフィスビルです。
Q4. 基準階面積はどのくらいですか?
A4. 約1,903㎡(約575.90坪)です。
Q5. 天井高は?
A5. 基準階天井高は2,600mmです。
Q6. 空調方式は?
A6. 全館セントラル空調を採用しています。
Q7. 貸会議室はありますか?
A7. 7階に大会議室(180席)から小会議室・討議室まで全12室を設置し、プレゼンや研修に利用できます。
Q8. 駐車場はありますか?
A8. 敷地内に356台分の駐車スペースを完備しています。
A1. 相鉄線「天王町」駅(YBP口)徒歩4分が最寄です。
Q2. JR線からのアクセスは?
A2. JR「保土ヶ谷」駅西口から徒歩11分で、平日は無料シャトルバスも運行されています。
Q3. 建物規模は?
A3. 地上12階・地下2階建の中高層オフィスビルです。
Q4. 基準階面積はどのくらいですか?
A4. 約1,903㎡(約575.90坪)です。
Q5. 天井高は?
A5. 基準階天井高は2,600mmです。
Q6. 空調方式は?
A6. 全館セントラル空調を採用しています。
Q7. 貸会議室はありますか?
A7. 7階に大会議室(180席)から小会議室・討議室まで全12室を設置し、プレゼンや研修に利用できます。
Q8. 駐車場はありますか?
A8. 敷地内に356台分の駐車スペースを完備しています。
地図
神奈川県横浜市保土ケ谷区神戸町134 地図をクリックして拡大できます
横浜ビジネスパーク(YBP)ウエストタワー の外観イメージ
YBP(横浜ビジネスパーク)内に位置する地上12階建の中高層オフィス棟。ガラスカーテンウォールの外観が特徴で、緑地や広場と連続した開放的なデザイン。周囲の歩道と一体化した整備環境が印象的です。
横浜ビジネスパーク(YBP)ウエストタワー の周辺イメージ
相鉄線「天王町」駅徒歩4分、JR「保土ヶ谷」駅徒歩11分の好立地。YBP(横浜ビジネスパーク)内にはPREZZO(プレッツォ)、スポーツクラブ「メガロス」、郵便局、銀行ATM、コンビニ、貸会議室などが揃い、緑地や歩道も整備された快適なオフィス環境です。
横浜ビジネスパーク(YBP)ウエストタワー の募集終了区画
| 図面 | 階数 | 坪数 | 月額費用 | 坪単価 | 入居可能日 | |
|---|---|---|---|---|---|---|
![]() | 1階 | 18.86坪 | - | - | 募集終了 | 検討リスト |
![]() | 4階 | 143.70坪 | - | - | 募集終了 | 検討リスト |
![]() | 7階 | 16.26坪 | - | - | 募集終了 | 検討リスト |
![]() | 7階 | 16.26坪 | - | - | 募集終了 | 検討リスト |
![]() | 7階 | 16.26坪 | - | - | 募集終了 | 検討リスト |
![]() | 7階 | 23.48坪 | - | - | 募集終了 | 検討リスト |
![]() | 7階 | 15.48坪 | - | - | 募集終了 | 検討リスト |
![]() | 7階 | 12.39坪 | - | - | 募集終了 | 検討リスト |
![]() | 7階 | 9.29坪 | - | - | 募集終了 | 検討リスト |
![]() | 7階 | 12.39坪 | - | - | 募集終了 | 検討リスト |
![]() | 7階 | 20.12坪 | - | - | 募集終了 | 検討リスト |
![]() | 8階 | 48.80坪 | - | - | 募集終了 | 検討リスト |
![]() | 8階 | 101.14坪 | - | - | 募集終了 | 検討リスト |
![]() | 8階 | 192.51坪 | - | - | 募集終了 | 検討リスト |
![]() | 8階 | 143.70坪 | - | - | 募集終了 | 検討リスト |
![]() | 8階 | 238.59坪 | - | - | 募集終了 | 検討リスト |
![]() | 8階 | 91.37坪 | - | - | 募集終了 | 検討リスト |
![]() | 8階 | 94.89坪 | - | - | 募集終了 | 検討リスト |
![]() | 8階 | 48.80坪 | - | - | 募集終了 | 検討リスト |
![]() | 8階 | 101.14坪 | - | - | 募集終了 | 検討リスト |
![]() | 8階 | 52.33坪 | - | - | 募集終了 | 検討リスト |
![]() | 10階 | 50.50坪 | - | - | 募集終了 | 検討リスト |
![]() | 10階 | 53.04坪 | - | - | 募集終了 | 検討リスト |
![]() | 11階 | 27.82坪 | - | - | 募集終了 | 検討リスト |
![]() | 11階 | 96.14坪 | - | - | 募集終了 | 検討リスト |
![]() | 11階 | 20.86坪 | - | - | 募集終了 | 検討リスト |
![]() | 11階 | 52.06坪 | - | - | 募集終了 | 検討リスト |
![]() | 11階 | 20.86坪 | - | - | 募集終了 | 検討リスト |
![]() | 11階 | 52.06坪 | - | - | 募集終了 | 検討リスト |
![]() | 11階 | 52.07坪 | - | - | 募集終了 | 検討リスト |
![]() | 11階 | 54.41坪 | - | - | 募集終了 | 検討リスト |
![]() | 11階 | 27.82坪 | - | - | 募集終了 | 検討リスト |
![]() | 11階 | 48.68坪 | - | - | 募集終了 | 検討リスト |
![]() | 11階 | 16.81坪 | - | - | 募集終了 | 検討リスト |
![]() | 11階 | 13.27坪 | - | - | 募集終了 | 検討リスト |
![]() | 11階 | 15.10坪 | - | - | 募集終了 | 検討リスト |
![]() | 11階 | 11.98坪 | - | - | 募集終了 | 検討リスト |
![]() | 12階 | 242.96坪 | - | - | 募集終了 | 検討リスト |
近くの物件紹介
横浜市のエリア
近くの駅
| 取扱態様 | 仲介 |
|---|---|
| 取扱会社 | 株式会社アドマイアー 東京都中央区日本橋3-2-3ユニバース第1ビル2F TEL. 03-5204-1031 宅地建物取引業免許 東京都知事(3)第94663号 マンション管理業免許 国土交通大臣(2)第034224号 賃貸住宅管理業免許 国土交通大臣(01)第005938号 |



































