銀座レンガ通り福神ビル(中央区、銀座、銀座一丁目、京橋) の賃貸オフィス情報

- 所在地
- 東京都中央区銀座1-5-6
- 最寄り駅
- 銀座一丁目駅徒歩1分、銀座駅徒歩5分、京橋駅徒歩5分
- 竣工
- 2015年
- 規模
- 地上8階・地下1階
- 構造
- RC造(鉄筋コンクリート造)
- 耐震基準
- 新耐震基準適合
- セキュリティ
- 機械警備(24時間監視)
- エントランス
- 平日開放
- エレベーター総数
- 2基
- 駐車場設備
- 要確認
銀座レンガ通り。その名は、時代を超えて輝き続ける日本のビジネスと文化の中心地を象徴し、まさに東京 一等地 オフィスを探す企業にとって特別な場所です。この歴史と革新が交差する場所に、ひときわ洗練された存在感を放つのが「銀座レンガ通り福神ビル」です。2015年1月に竣工したこの築浅ハイグレードビルは、単なるオフィスや店舗スペースを超え、企業の成長とブランドイメージ向上を力強く後押しする、まさに「福」を呼び込むような場所となるでしょう。銀座 オフィス 賃貸をお探しなら、このビルは間違いなく注目すべき選択肢の一つです。
銀座レンガ通り福神ビルは、東京都中央区銀座一丁目5-6という、まさに銀座の中心に位置します。2015年1月に誕生したこのビルは、地上8階、地下1階建ての鉄筋コンクリート構造。新耐震基準を満たしており、ビジネスの継続性をしっかりと支えます。銀座という一等地でありながら、築年数が浅く、まるで新築 オフィス 銀座のような清潔感と最新の設備を備えている点が大きな魅力です。銀座一丁目 オフィスを検討している企業にとって、この物件は理想的な環境を提供します。また、銀座 店舗 賃貸をお探しの場合にも、銀座レンガ通り沿いの角地という立地は、高い視認性と集客力を誇ります。
ビジネスにおけるアクセスは、企業の生命線です。銀座レンガ通り福神ビルは、この点において申し分のないロケーションを誇ります。東京メトロ有楽町線銀座一丁目駅から徒歩わずか1分という駅近 オフィス 銀座の利便性は、日々の通勤や顧客訪問を格段に向上させます。さらに、東京メトロ銀座線京橋駅も徒歩5分、JR山手線・京浜東北線有楽町駅へも徒歩6分、そして東京メトロ丸ノ内線・銀座線・日比谷線銀座駅へも徒歩5分と、複数の路線が利用可能であり、都内主要ビジネスエリアへのアクセスは抜群です。例えば、大手町や東京駅へも短時間でアクセス可能であり、広範囲なビジネス展開をサポートします。まさに、銀座 ビジネス 住所として、これ以上の場所はないと言えるでしょう。
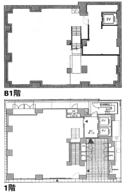
銀座レンガ通り福神ビルは、その名にふさわしい充実した設備と、利用者の快適性を追求したオフィス環境を提供します。石造りの外観は重厚感と風格を漂わせ、訪れる人に好印象を与えます。エントランスも洗練されたデザインで、企業の顔となるにふさわしい空間です。各テナントが自由に温度管理できる個別空調システムを採用。また、24時間利用可能なため、多様なワークスタイルに対応できます。貸室内はレイアウトしやすい正方形に近い形状で、オフィス効率を高めます。最新のセキュリティシステムである機械警備とオートロックを導入し、入居企業の安全・安心を確保します。各フロアに男女別のトイレを完備し、快適なオフィス環境を提供します。スムーズな移動をサポートするエレベーターを2基設置しています。そして、銀座 レンガ通り オフィスの中でも、角地に位置するという点は、視認性が高く、企業イメージ向上に貢献します。この高級 オフィス 銀座は、企業の品格を高めるでしょう。
銀座は、国内外から注目を集める商業とビジネスの中心地です。銀座レンガ通り福神ビルの周辺には、百貨店、高級ブランドショップ、レストラン、カフェなどが徒歩圏内に多数存在し、ビジネスシーンにおける接待や会食、従業員のランチなどに便利です。各種銀行や証券会社などが集積しており、金融取引もスムーズに行えます。銀座郵便局が近くにあり、郵便・物流サービスも容易に利用できます。銀座というブランド力は、企業の信頼性とイメージを向上させる大きな要素となります。この地にオフィスを構えることは、クライアントやビジネスパートナーからの評価を高めることにつながります。
銀座レンガ通り福神ビルは、ブランドイメージを重視する企業、アクセスを重視する企業、快適なオフィス環境を求める企業、セキュリティを重視する企業、そして銀座エリアで店舗展開を検討している企業に特におすすめです。銀座という立地と、ビルの洗練されたデザインは、企業のブランドイメージ向上に大きく貢献します。複数路線が利用可能であり、都内主要ビジネスエリアへのアクセスが非常に便利です。個別空調、男女別トイレ、使いやすい室内など、快適なオフィス環境が整っています。機械警備やオートロックシステムにより、安心してビジネスに集中できます。一等地である銀座レンガ通り沿いに位置し、高い集客力が期待できるため、銀座一丁目 店舗をお探しの方にも最適です。
銀座レンガ通り福神ビルは、単なる賃貸事務所や店舗スペースではありません。それは、企業の成長を加速させ、未来を切り拓くための戦略的な拠点となるでしょう。この比類なきロケーションで、あなたのビジネスを新たな高みへと導きませんか。
銀座レンガ通り福神ビルは、東京都中央区銀座一丁目5-6という、まさに銀座の中心に位置します。2015年1月に誕生したこのビルは、地上8階、地下1階建ての鉄筋コンクリート構造。新耐震基準を満たしており、ビジネスの継続性をしっかりと支えます。銀座という一等地でありながら、築年数が浅く、まるで新築 オフィス 銀座のような清潔感と最新の設備を備えている点が大きな魅力です。銀座一丁目 オフィスを検討している企業にとって、この物件は理想的な環境を提供します。また、銀座 店舗 賃貸をお探しの場合にも、銀座レンガ通り沿いの角地という立地は、高い視認性と集客力を誇ります。
ビジネスにおけるアクセスは、企業の生命線です。銀座レンガ通り福神ビルは、この点において申し分のないロケーションを誇ります。東京メトロ有楽町線銀座一丁目駅から徒歩わずか1分という駅近 オフィス 銀座の利便性は、日々の通勤や顧客訪問を格段に向上させます。さらに、東京メトロ銀座線京橋駅も徒歩5分、JR山手線・京浜東北線有楽町駅へも徒歩6分、そして東京メトロ丸ノ内線・銀座線・日比谷線銀座駅へも徒歩5分と、複数の路線が利用可能であり、都内主要ビジネスエリアへのアクセスは抜群です。例えば、大手町や東京駅へも短時間でアクセス可能であり、広範囲なビジネス展開をサポートします。まさに、銀座 ビジネス 住所として、これ以上の場所はないと言えるでしょう。
銀座レンガ通り福神ビルは、その名にふさわしい充実した設備と、利用者の快適性を追求したオフィス環境を提供します。石造りの外観は重厚感と風格を漂わせ、訪れる人に好印象を与えます。エントランスも洗練されたデザインで、企業の顔となるにふさわしい空間です。各テナントが自由に温度管理できる個別空調システムを採用。また、24時間利用可能なため、多様なワークスタイルに対応できます。貸室内はレイアウトしやすい正方形に近い形状で、オフィス効率を高めます。最新のセキュリティシステムである機械警備とオートロックを導入し、入居企業の安全・安心を確保します。各フロアに男女別のトイレを完備し、快適なオフィス環境を提供します。スムーズな移動をサポートするエレベーターを2基設置しています。そして、銀座 レンガ通り オフィスの中でも、角地に位置するという点は、視認性が高く、企業イメージ向上に貢献します。この高級 オフィス 銀座は、企業の品格を高めるでしょう。
銀座は、国内外から注目を集める商業とビジネスの中心地です。銀座レンガ通り福神ビルの周辺には、百貨店、高級ブランドショップ、レストラン、カフェなどが徒歩圏内に多数存在し、ビジネスシーンにおける接待や会食、従業員のランチなどに便利です。各種銀行や証券会社などが集積しており、金融取引もスムーズに行えます。銀座郵便局が近くにあり、郵便・物流サービスも容易に利用できます。銀座というブランド力は、企業の信頼性とイメージを向上させる大きな要素となります。この地にオフィスを構えることは、クライアントやビジネスパートナーからの評価を高めることにつながります。
銀座レンガ通り福神ビルは、ブランドイメージを重視する企業、アクセスを重視する企業、快適なオフィス環境を求める企業、セキュリティを重視する企業、そして銀座エリアで店舗展開を検討している企業に特におすすめです。銀座という立地と、ビルの洗練されたデザインは、企業のブランドイメージ向上に大きく貢献します。複数路線が利用可能であり、都内主要ビジネスエリアへのアクセスが非常に便利です。個別空調、男女別トイレ、使いやすい室内など、快適なオフィス環境が整っています。機械警備やオートロックシステムにより、安心してビジネスに集中できます。一等地である銀座レンガ通り沿いに位置し、高い集客力が期待できるため、銀座一丁目 店舗をお探しの方にも最適です。
銀座レンガ通り福神ビルは、単なる賃貸事務所や店舗スペースではありません。それは、企業の成長を加速させ、未来を切り拓くための戦略的な拠点となるでしょう。この比類なきロケーションで、あなたのビジネスを新たな高みへと導きませんか。
銀座レンガ通り福神ビル の募集区画 (総募集面積 101.64坪)
※月額費用、坪単価 ともに共益費込・税別の価格です
地図
東京都中央区銀座1-5-6 地図をクリックして拡大できます
銀座レンガ通り福神ビル の外観イメージ
銀座レンガ通り福神ビル(中央区銀座)は、2015年に竣工した地上8階、地下1階建ての賃貸オフィスビルです。ホワイトとグレーの石造りのキレイで重厚感のある外観をしています。エントランスは広々としており、レンガ色の扉が印象的。やはり石造りのエレベーターホールには、エレベーターが2基搭載されています。機械警備が導入されているので、セキュリティ対策も万全。美しさと高級感を兼ね備えた築浅オフィスビルです。











銀座レンガ通り福神ビル の周辺イメージ
銀座レンガ通り福神ビル(中央区銀座)は、銀座一丁目駅より徒歩1分の大変好立地に位置しており、他には銀座駅から徒歩でアクセスが可能です。銀座レンガ通りの角地に立地し、周辺はオフィス街が広がっています。落ち着いて仕事に取り組むことができるでしょう。飲食店も充実しているエリアのため、休憩時間の食事も日替わりで楽しめそうです。徒歩圏内に大手金融機関も立地しているので、入金手続き等もスムーズに進められるのではないでしょうか。

銀座レンガ通り福神ビル の募集終了区画
近くの物件紹介
中央区のエリア
近くの駅
| 取扱態様 | 仲介 |
|---|---|
| 取扱会社 | 株式会社アドマイアー 東京都中央区日本橋3-2-3ユニバース第1ビル2F TEL. 03-5204-1031 宅地建物取引業免許 東京都知事(3)第94663号 マンション管理業免許 国土交通大臣(2)第034224号 賃貸住宅管理業免許 国土交通大臣(01)第005938号 |


























