東京堂千代田ビル(千代田区、九段南、九段下、竹橋) の賃貸オフィス情報

- 所在地
- 東京都千代田区九段南1-3-1
- 最寄り駅
- 九段下駅徒歩2分、竹橋駅徒歩7分、神保町駅徒歩7分
- 竣工
- 1977年
- 規模
- 地上20階・地下4階
- 構造
- SRC造(鉄骨鉄筋コンクリート造)
- セキュリティ
- 機械警備(24時間監視)
- エントランス
- 平日開放
- エレベーター総数
- 8基
- 駐車場設備
- 要確認
東京堂千代田ビル の募集区画 (総募集面積 0.00坪)
現在募集はありません。
地図
東京都千代田区九段南1-3-1 地図をクリックして拡大できます
東京堂千代田ビル の外観イメージ






















東京堂千代田ビル の周辺イメージ



東京堂千代田ビル の募集終了区画
| 図面 | 階数 | 坪数 | 月額費用 | 坪単価 | 入居可能日 | |
|---|---|---|---|---|---|---|
![]() | B3階 | 52.51坪 | お問い合わせください | 募集終了 | 検討リスト | |
![]() | B2階 | 227.96坪 | お問い合わせください | 募集終了 | 検討リスト | |
![]() | B1階 | 206.20坪 | お問い合わせください | 募集終了 | 検討リスト | |
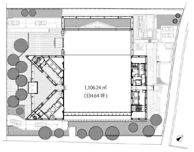
![]() | 1階 | 334.64坪 | お問い合わせください | 募集終了 | 検討リスト | |
![]() | 1階 | 4,708.46坪 | お問い合わせください | 募集終了 | 検討リスト | |
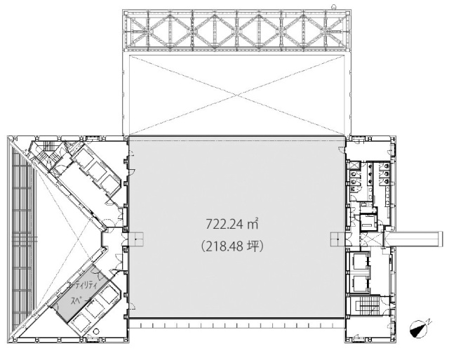
![]() | 2階 | 218.48坪 | お問い合わせください | 募集終了 | 検討リスト | |
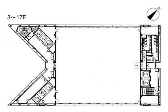
![]() | 3階 | 237.92坪 | お問い合わせください | 募集終了 | 検討リスト | |
![]() | 4階 | 237.92坪 | お問い合わせください | 募集終了 | 検討リスト | |
![]() | 5階 | 237.92坪 | お問い合わせください | 募集終了 | 検討リスト | |
![]() | 6階 | 237.92坪 | お問い合わせください | 募集終了 | 検討リスト | |
![]() | 7階 | 237.92坪 | お問い合わせください | 募集終了 | 検討リスト | |
![]() | 8階 | 237.92坪 | お問い合わせください | 募集終了 | 検討リスト | |
![]() | 9階 | 237.92坪 | お問い合わせください | 募集終了 | 検討リスト | |
![]() | 10階 | 237.92坪 | お問い合わせください | 募集終了 | 検討リスト | |
![]() | 11階 | 237.92坪 | お問い合わせください | 募集終了 | 検討リスト | |
![]() | 12階 | 237.92坪 | お問い合わせください | 募集終了 | 検討リスト | |
![]() | 13階 | 237.92坪 | お問い合わせください | 募集終了 | 検討リスト | |
![]() | 14階 | 237.92坪 | お問い合わせください | 募集終了 | 検討リスト | |
![]() | 15階 | 250.58坪 | お問い合わせください | 募集終了 | 検討リスト | |
![]() | 16階 | 237.92坪 | お問い合わせください | 募集終了 | 検討リスト | |
![]() | 17階 | 237.92坪 | お問い合わせください | 募集終了 | 検討リスト | |
![]() | 18階 | 303.88坪 | お問い合わせください | 募集終了 | 検討リスト | |
![]() | 19階 | 53.35坪 | お問い合わせください | 募集終了 | 検討リスト | |
![]() | 19階 | 237.92坪 | お問い合わせください | 募集終了 | 検討リスト |
近くの物件紹介
千代田区のエリア
近くの駅
| 取扱態様 | 仲介 |
|---|---|
| 取扱会社 | 株式会社アドマイアー 東京都中央区日本橋3-2-3ユニバース第1ビル2F TEL. 03-5204-1031 宅地建物取引業免許 東京都知事(3)第94663号 マンション管理業免許 国土交通大臣(2)第034224号 賃貸住宅管理業免許 国土交通大臣(01)第005938号 |




























