宮益坂ビルディング(渋谷区、渋谷、表参道、原宿) の賃貸オフィス情報

- 所在地
- 東京都渋谷区渋谷2-19-15
- 最寄り駅
- 渋谷駅徒歩2分、表参道駅徒歩11分、原宿駅徒歩19分
- 竣工
- 2020年
- 規模
- 地上15階・地下1階
- 構造
- RC造(鉄筋コンクリート造)
- 耐震基準
- 新耐震基準適合
- セキュリティ
- 機械警備(24時間監視)
- エントランス
- 平日開放
- エレベーター総数
- 2基
- 駐車場設備
- 要確認
宮益坂ビルディング の募集区画 (総募集面積 0.00坪)
現在募集はありません。
地図
東京都渋谷区渋谷2-19-15 地図をクリックして拡大できます
宮益坂ビルディング の外観イメージ








宮益坂ビルディング の周辺イメージ



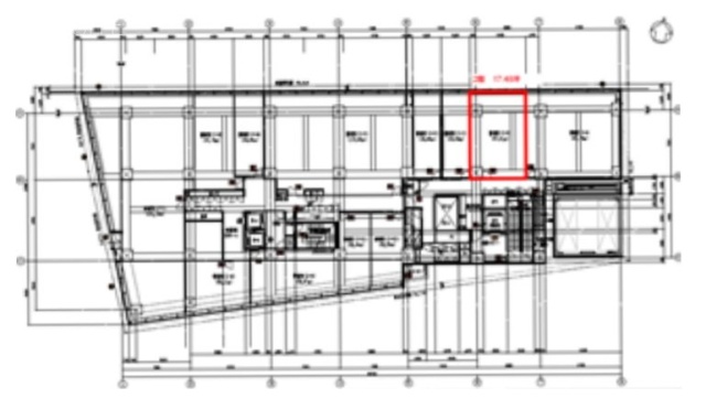
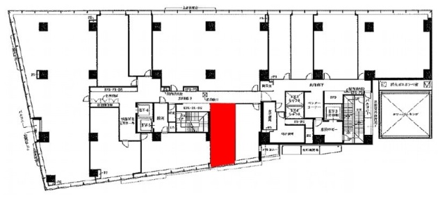
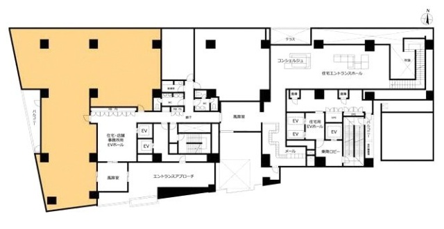
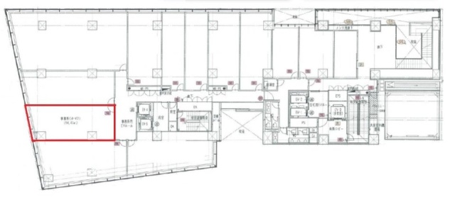
宮益坂ビルディング の募集終了区画
| 図面 | 階数 | 坪数 | 月額費用 | 坪単価 | 入居可能日 | |
|---|---|---|---|---|---|---|
![]() | 1階 | 19.01坪 | お問い合わせください | 募集終了 | 検討リスト | |
![]() | 1階 | 23.34坪 | お問い合わせください | 募集終了 | 検討リスト | |
![]() | 2階 | 17.48坪 | お問い合わせください | 募集終了 | 検討リスト | |
![]() | 2階 | 14.45坪 | お問い合わせください | 募集終了 | 検討リスト | |
![]() | 2階 | 66.90坪 | お問い合わせください | 募集終了 | 検討リスト | |
![]() | 2階 | 16.97坪 | お問い合わせください | 募集終了 | 検討リスト | |
![]() | 2階 | 16.30坪 | お問い合わせください | 募集終了 | 検討リスト | |
![]() | 2階 | 8.90坪 | お問い合わせください | 募集終了 | 検討リスト | |
準備中 | 2階 | 29.58坪 | お問い合わせください | 募集終了 | 検討リスト | |
準備中 | 2階 | 52.30坪 | お問い合わせください | 募集終了 | 検討リスト | |
準備中 | 2階 | 66.90坪 | お問い合わせください | 募集終了 | 検討リスト | |
![]() | 3階 | 94.39坪 | お問い合わせください | 募集終了 | 検討リスト | |
![]() | 4階 | 9.98坪 | お問い合わせください | 募集終了 | 検討リスト | |
![]() | 4階 | 14.87坪 | お問い合わせください | 募集終了 | 検討リスト | |
![]() | 4階 | 16.47坪 | お問い合わせください | 募集終了 | 検討リスト | |
![]() | 4階 | 22.43坪 | お問い合わせください | 募集終了 | 検討リスト |
近くの物件紹介
渋谷区のエリア
近くの駅
| 取扱態様 | 仲介 |
|---|---|
| 取扱会社 | 株式会社アドマイアー 東京都中央区日本橋3-2-3ユニバース第1ビル2F TEL. 03-5204-1031 宅地建物取引業免許 東京都知事(3)第94663号 マンション管理業免許 国土交通大臣(2)第034224号 賃貸住宅管理業免許 国土交通大臣(01)第005938号 |





































