ハーモニータワー(中野区、本町、中野坂上、西新宿五丁目) の賃貸オフィス情報

- 所在地
- 東京都中野区本町1-32-2
- 最寄り駅
- 中野坂上駅徒歩1分、西新宿五丁目駅徒歩11分、西新宿駅徒歩12分
- 竣工
- 1997年
- 規模
- 地上29階・地下2階
- 構造
- S造(鉄骨造)
- 耐震基準
- 新耐震基準適合
- セキュリティ
- 機械警備(24時間監視)
- エントランス
- 平日開放
- エレベーター総数
- 12基
- 駐車場設備
- 要確認
中野坂上のシンボル、「ハーモニータワー」でビジネスを新たな高みへ
東京都中野区本町にそびえ立つ「ハーモニータワー」は、中野坂上エリアのランドマークとして、ひときわ存在感を放つ高層賃貸事務所です。東京メトロ丸ノ内線および都営大江戸線「中野坂上」駅と地下通路で直結という、まさに駅直結の利便性に加え、約400坪を超える広大な基準階面積、現代的なオフィススペック、そして複合施設「ハーモニースクエア」が提供する多彩なアメニティ。三菱地所プロパティマネジメントによる質の高い管理運営も魅力のこのビルは、都内でも屈指のビジネス拠点として、企業の成長を力強くサポートします。
徹底的な物件概要:中野坂上の顔として、都市機能と快適性を両立
「ハーモニータワー」は、青梅街道と山手通りが交差する中野坂上の主要な交差点に位置し、大規模複合施設「ハーモニースクエア」の中核を成すオフィスビルです。地上29階、地下2階、塔屋1階建ての壮大なスケールを誇り、鉄骨造(S造)および一部鉄骨鉄筋コンクリート造(SRC造)の堅牢な構造は、企業の信頼性を高めます。1997年3月に竣工以来、その高い建物スペックと充実したアメニティで、多くの企業に選ばれてきました。
詳細なアクセス情報:地下鉄駅直結、都心主要部へダイレクトアクセス
「ハーモニータワー」の最大の魅力の一つは、その圧倒的な交通利便性です。最寄りの駅は東京メトロ丸ノ内線および都営大江戸線が乗り入れる「中野坂上」駅で、地下通路でビルと直結しており、駅出口からは徒歩1分という驚異的な近さです。丸ノ内線を利用すれば東京駅、大手町、銀座、新宿といった主要ビジネスセンターへ乗り換えなしでアクセスでき、大江戸線を利用すれば六本木、汐留、両国など、都内広範囲への移動もスムーズです。この2路線直結という利便性は、従業員の通勤ストレスを大幅に軽減し、顧客や取引先へのアクセスも容易にするため、ビジネスの効率性を飛躍的に向上させます。天候に左右されない快適なアクセスは、企業にとって大きなアドバンテージとなります。
特徴:広大なオフィス空間、充実したアメニティ、そして安心のBCP対策
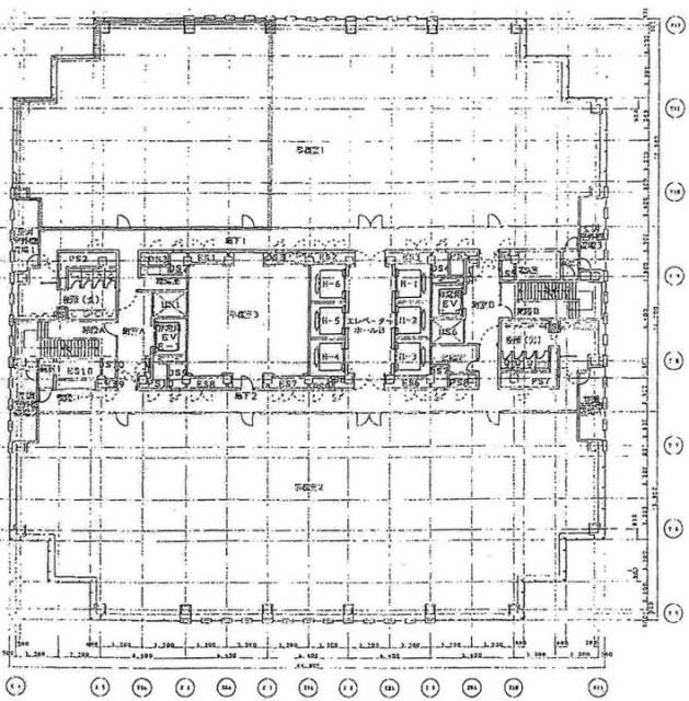
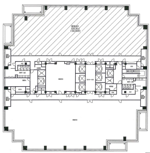
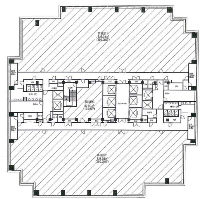
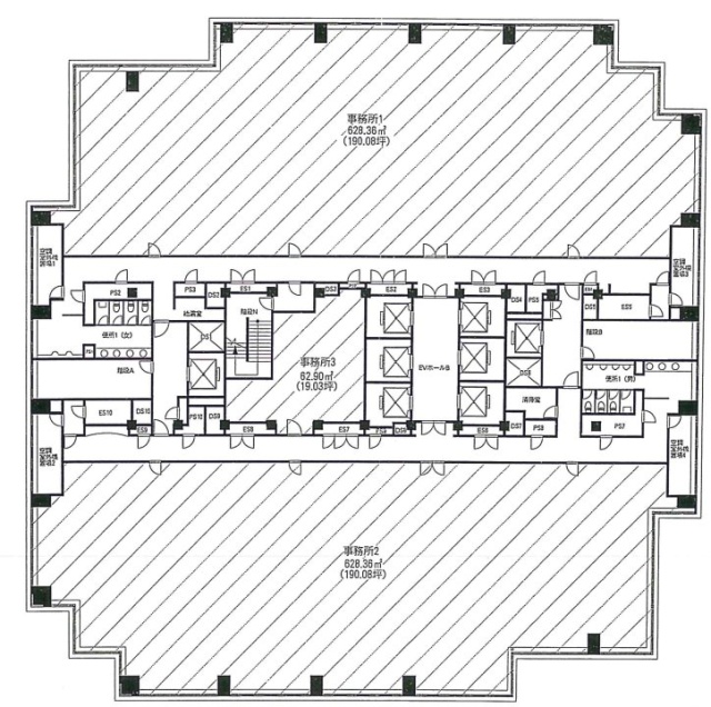
「ハーモニータワー」は、現代的なオフィスに必要なスペックに加え、働く人々をサポートする多彩な施設とサービスを提供します。基準階面積は約400坪超を誇り、柱のない広々とした空間は、自由度の高いオフィスレイアウトを可能にします。天井高は2,700mm、OAフロア高は75mmで、快適なオフィス環境と配線の自由度を両立しています。床荷重は標準事務室エリアで500 kg/m²、コア周辺部では800 kg/m²と、重量のある機器の設置にも対応できます。空調は個別空調方式を採用し、1フロアあたり14ゾーンでの個別制御が可能です。3面採光が可能なため、明るい執務環境が期待できます。ビル内には、地下1階および地上1階にコンビニエンスストア(ファミリーマート)、郵便局、銀行ATM、歯科医院、飲食店など、オフィスワーカーの日々のニーズに応える店舗が充実しています。館内には貸会議室に加え、最大160名収容可能な多目的ホール「ハーモニーホール」も完備。従業員向けの食堂も設置されています。セキュリティ面では、カードキーシステムを利用した機械警備と、有人警備を組み合わせた24時間体制のシステムを導入。また、災害発生時における事業継続を支援するため、非常食約1万食分、医薬品、備品などがビル内に常備されています。信頼性の高い電力供給システムも導入されています。
周辺環境:ビジネス、商業、文化が調和した中野坂上エリア
「ハーモニータワー」が位置する中野坂上駅周辺は、オフィスビルが集積するビジネスエリアとしての性格が強く、落ち着いた環境でビジネスに集中できます。一方で、駅周辺には生活に必要な商業施設も揃っており、利便性も高いエリアです。丸ノ内線や大江戸線を利用すれば、新宿へも短時間でアクセス可能です。
こんな企業におすすめ
「ハーモニータワー」は、以下のような企業に特におすすめの賃貸事務所です。駅直結の利便性を重視する企業にとって、地下鉄駅直結というアクセスは、従業員や顧客にとって大きなメリットとなります。大規模なオフィス空間を必要とする企業にとって、400坪を超える広大な基準階面積は、多くの従業員を抱える企業や、部門を集約したい企業に最適です。現代的なオフィス環境と充実したアメニティを求める企業にとって、高いスペックのオフィス空間に加え、ビル内の多様な店舗や施設は、従業員の満足度向上に貢献します。事業継続計画(BCP)対策を重視する企業にとって、非常食の備蓄など、具体的なBCP対策が講じられている点は、安心して事業を継続できる環境を求める企業にとって重要です。信頼できる管理体制を求める企業にとって、三菱地所プロパティマネジメントによる高水準の管理は、快適で安全なオフィス環境を保証します。
東京都中野区本町にそびえ立つ「ハーモニータワー」は、中野坂上エリアのランドマークとして、ひときわ存在感を放つ高層賃貸事務所です。東京メトロ丸ノ内線および都営大江戸線「中野坂上」駅と地下通路で直結という、まさに駅直結の利便性に加え、約400坪を超える広大な基準階面積、現代的なオフィススペック、そして複合施設「ハーモニースクエア」が提供する多彩なアメニティ。三菱地所プロパティマネジメントによる質の高い管理運営も魅力のこのビルは、都内でも屈指のビジネス拠点として、企業の成長を力強くサポートします。
徹底的な物件概要:中野坂上の顔として、都市機能と快適性を両立
「ハーモニータワー」は、青梅街道と山手通りが交差する中野坂上の主要な交差点に位置し、大規模複合施設「ハーモニースクエア」の中核を成すオフィスビルです。地上29階、地下2階、塔屋1階建ての壮大なスケールを誇り、鉄骨造(S造)および一部鉄骨鉄筋コンクリート造(SRC造)の堅牢な構造は、企業の信頼性を高めます。1997年3月に竣工以来、その高い建物スペックと充実したアメニティで、多くの企業に選ばれてきました。
詳細なアクセス情報:地下鉄駅直結、都心主要部へダイレクトアクセス
「ハーモニータワー」の最大の魅力の一つは、その圧倒的な交通利便性です。最寄りの駅は東京メトロ丸ノ内線および都営大江戸線が乗り入れる「中野坂上」駅で、地下通路でビルと直結しており、駅出口からは徒歩1分という驚異的な近さです。丸ノ内線を利用すれば東京駅、大手町、銀座、新宿といった主要ビジネスセンターへ乗り換えなしでアクセスでき、大江戸線を利用すれば六本木、汐留、両国など、都内広範囲への移動もスムーズです。この2路線直結という利便性は、従業員の通勤ストレスを大幅に軽減し、顧客や取引先へのアクセスも容易にするため、ビジネスの効率性を飛躍的に向上させます。天候に左右されない快適なアクセスは、企業にとって大きなアドバンテージとなります。
特徴:広大なオフィス空間、充実したアメニティ、そして安心のBCP対策
「ハーモニータワー」は、現代的なオフィスに必要なスペックに加え、働く人々をサポートする多彩な施設とサービスを提供します。基準階面積は約400坪超を誇り、柱のない広々とした空間は、自由度の高いオフィスレイアウトを可能にします。天井高は2,700mm、OAフロア高は75mmで、快適なオフィス環境と配線の自由度を両立しています。床荷重は標準事務室エリアで500 kg/m²、コア周辺部では800 kg/m²と、重量のある機器の設置にも対応できます。空調は個別空調方式を採用し、1フロアあたり14ゾーンでの個別制御が可能です。3面採光が可能なため、明るい執務環境が期待できます。ビル内には、地下1階および地上1階にコンビニエンスストア(ファミリーマート)、郵便局、銀行ATM、歯科医院、飲食店など、オフィスワーカーの日々のニーズに応える店舗が充実しています。館内には貸会議室に加え、最大160名収容可能な多目的ホール「ハーモニーホール」も完備。従業員向けの食堂も設置されています。セキュリティ面では、カードキーシステムを利用した機械警備と、有人警備を組み合わせた24時間体制のシステムを導入。また、災害発生時における事業継続を支援するため、非常食約1万食分、医薬品、備品などがビル内に常備されています。信頼性の高い電力供給システムも導入されています。
周辺環境:ビジネス、商業、文化が調和した中野坂上エリア
「ハーモニータワー」が位置する中野坂上駅周辺は、オフィスビルが集積するビジネスエリアとしての性格が強く、落ち着いた環境でビジネスに集中できます。一方で、駅周辺には生活に必要な商業施設も揃っており、利便性も高いエリアです。丸ノ内線や大江戸線を利用すれば、新宿へも短時間でアクセス可能です。
こんな企業におすすめ
「ハーモニータワー」は、以下のような企業に特におすすめの賃貸事務所です。駅直結の利便性を重視する企業にとって、地下鉄駅直結というアクセスは、従業員や顧客にとって大きなメリットとなります。大規模なオフィス空間を必要とする企業にとって、400坪を超える広大な基準階面積は、多くの従業員を抱える企業や、部門を集約したい企業に最適です。現代的なオフィス環境と充実したアメニティを求める企業にとって、高いスペックのオフィス空間に加え、ビル内の多様な店舗や施設は、従業員の満足度向上に貢献します。事業継続計画(BCP)対策を重視する企業にとって、非常食の備蓄など、具体的なBCP対策が講じられている点は、安心して事業を継続できる環境を求める企業にとって重要です。信頼できる管理体制を求める企業にとって、三菱地所プロパティマネジメントによる高水準の管理は、快適で安全なオフィス環境を保証します。
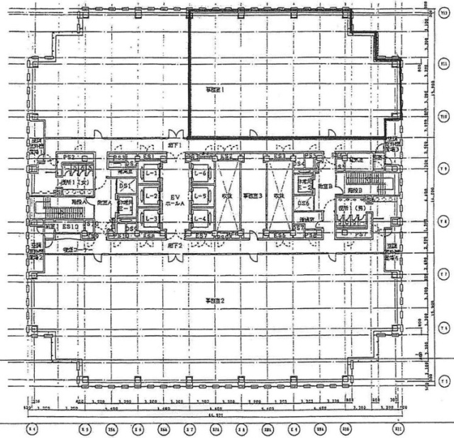
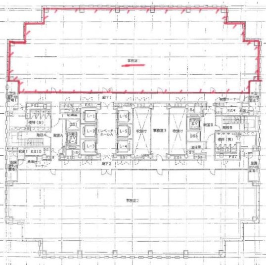
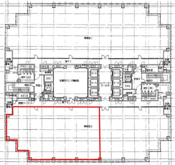
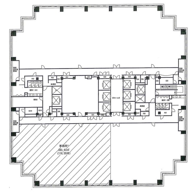
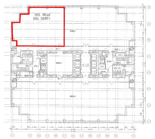
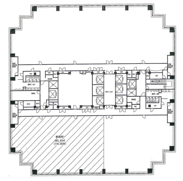
ハーモニータワー の募集区画 (総募集面積 317.36坪)
※月額費用、坪単価 ともに共益費込・税別の価格です
地図
東京都中野区本町1-32-2 地図をクリックして拡大できます
ハーモニータワー の外観イメージ
ハーモニータワー(中野区本町)は、グレーを基調とした外壁、ガラス張りの外観です。エントランス周りには案内板、植物、照明などが設置されています。カードキーシステムが導入されています。低層階は複数のテナントが入居中です。エレベーターは12基搭載されています。機械式駐車場と平面式駐車場があります。











ハーモニータワー の周辺イメージ
ハーモニータワー(中野区本町)は、山手通り沿いの角地にあります。最寄り駅の丸ノ内線 中野坂上駅からは徒歩1分です。近隣はオフィスビル、マンションなどが多いエリアです。


ハーモニータワー の主な入居テナント
ハーモニータワー の募集終了区画
| 図面 | 階数 | 坪数 | 月額費用 | 坪単価 | 入居可能日 | |
|---|---|---|---|---|---|---|
![]() | B1階 | 22.36坪 | - | - | 募集終了 | 検討リスト |
![]() | B1階 | 7.30坪 | - | - | 募集終了 | 検討リスト |
![]() | 1階 | 106.48坪 | - | - | 募集終了 | 検討リスト |
![]() | 1階 | 14.51坪 | - | - | 募集終了 | 検討リスト |
![]() | 1階 | 5.37坪 | - | - | 募集終了 | 検討リスト |
![]() | 1階 | 62.07坪 | - | - | 募集終了 | 検討リスト |
![]() | 2階 | 156.77坪 | - | - | 募集終了 | 検討リスト |
![]() | 2階 | 32.18坪 | - | - | 募集終了 | 検討リスト |
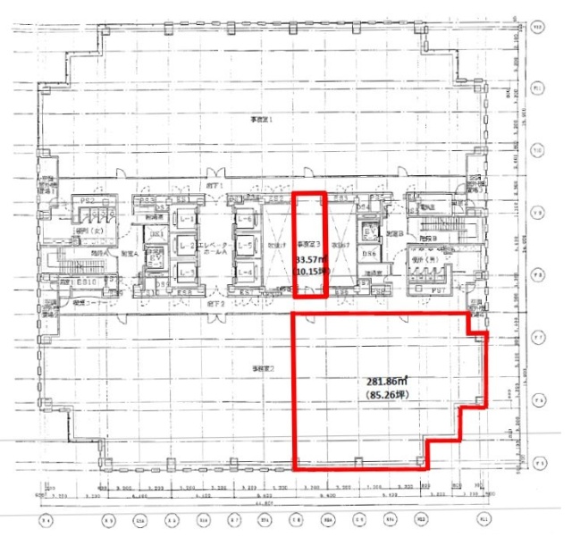
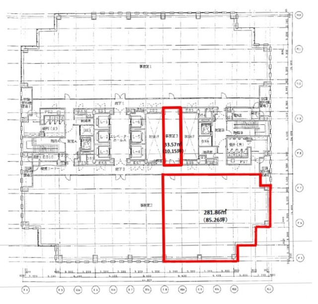
![]() | 3階 | 85.26坪 | - | - | 募集終了 | 検討リスト |
![]() | 3階 | 201.31坪 | - | - | 募集終了 | 検討リスト |
![]() | 3階 | 10.15坪 | - | - | 募集終了 | 検討リスト |
![]() | 4階 | 85.26坪 | - | - | 募集終了 | 検討リスト |
![]() | 4階 | 116.05坪 | - | - | 募集終了 | 検討リスト |
![]() | 4階 | 10.15坪 | - | - | 募集終了 | 検討リスト |
![]() | 5階 | 116.05坪 | - | - | 募集終了 | 検討リスト |
![]() | 5階 | 211.46坪 | - | - | 募集終了 | 検討リスト |
![]() | 5階 | 201.31坪 | - | - | 募集終了 | 検討リスト |
![]() | 5階 | 116.05坪 | - | - | 募集終了 | 検討リスト |
![]() | 5階 | 85.26坪 | - | - | 募集終了 | 検討リスト |
![]() | 6階 | 201.31坪 | - | - | 募集終了 | 検討リスト |
![]() | 6階 | 116.05坪 | - | - | 募集終了 | 検討リスト |
![]() | 6階 | 402.77坪 | - | - | 募集終了 | 検討リスト |
![]() | 7階 | 420.62坪 | - | - | 募集終了 | 検討リスト |
![]() | 8階 | 402.62坪 | - | - | 募集終了 | 検討リスト |
![]() | 8階 | 201.31坪 | - | - | 募集終了 | 検討リスト |
![]() | 8階 | 201.31坪 | - | - | 募集終了 | 検討リスト |
![]() | 9階 | 402.62坪 | - | - | 募集終了 | 検討リスト |
![]() | 9階 | 201.31坪 | - | - | 募集終了 | 検討リスト |
![]() | 9階 | 201.31坪 | - | - | 募集終了 | 検討リスト |
![]() | 10階 | 412.77坪 | - | - | 募集終了 | 検討リスト |
![]() | 10階 | 116.05坪 | - | - | 募集終了 | 検討リスト |
![]() | 10階 | 10.15坪 | - | - | 募集終了 | 検討リスト |
![]() | 10階 | 85.26坪 | - | - | 募集終了 | 検討リスト |
![]() | 10階 | 201.31坪 | - | - | 募集終了 | 検討リスト |
![]() | 11階 | 85.26坪 | - | - | 募集終了 | 検討リスト |
![]() | 11階 | 201.31坪 | - | - | 募集終了 | 検討リスト |
![]() | 11階 | 10.15坪 | - | - | 募集終了 | 検討リスト |
![]() | 12階 | 116.05坪 | - | - | 募集終了 | 検討リスト |
![]() | 12階 | 201.31坪 | - | - | 募集終了 | 検討リスト |
![]() | 12階 | 10.15坪 | - | - | 募集終了 | 検討リスト |
![]() | 12階 | 85.26坪 | - | - | 募集終了 | 検討リスト |
![]() | 13階 | 412.77坪 | - | - | 募集終了 | 検討リスト |
![]() | 13階 | 10.15坪 | - | - | 募集終了 | 検討リスト |
![]() | 13階 | 116.05坪 | - | - | 募集終了 | 検討リスト |
![]() | 13階 | 201.31坪 | - | - | 募集終了 | 検討リスト |
![]() | 13階 | 85.26坪 | - | - | 募集終了 | 検討リスト |
![]() | 14階 | 116.05坪 | - | - | 募集終了 | 検討リスト |
![]() | 14階 | 201.31坪 | - | - | 募集終了 | 検討リスト |
![]() | 15階 | 412.77坪 | - | - | 募集終了 | 検討リスト |
![]() | 15階 | 201.31坪 | - | - | 募集終了 | 検討リスト |
![]() | 15階 | 10.15坪 | - | - | 募集終了 | 検討リスト |
![]() | 15階 | 201.31坪 | - | - | 募集終了 | 検討リスト |
![]() | 16階 | 201.31坪 | - | - | 募集終了 | 検討リスト |
![]() | 16階 | 402.62坪 | - | - | 募集終了 | 検討リスト |
![]() | 16階 | 201.31坪 | - | - | 募集終了 | 検討リスト |
![]() | 16階 | 201.31坪 | - | - | 募集終了 | 検討リスト |
![]() | 17階 | 10.15坪 | - | - | 募集終了 | 検討リスト |
![]() | 17階 | 201.31坪 | - | - | 募集終了 | 検討リスト |
![]() | 18階 | 201.31坪 | - | - | 募集終了 | 検討リスト |
![]() | 18階 | 85.26坪 | - | - | 募集終了 | 検討リスト |
![]() | 18階 | 116.05坪 | - | - | 募集終了 | 検討リスト |
![]() | 19階 | 201.31坪 | - | - | 募集終了 | 検討リスト |
![]() | 20階 | 201.31坪 | - | - | 募集終了 | 検討リスト |
![]() | 20階 | 201.31坪 | - | - | 募集終了 | 検討リスト |
![]() | 20階 | 26.96坪 | - | - | 募集終了 | 検討リスト |
![]() | 21階 | 26.96坪 | - | - | 募集終了 | 検討リスト |
![]() | 21階 | 429.57坪 | - | - | 募集終了 | 検討リスト |
![]() | 21階 | 201.31坪 | - | - | 募集終了 | 検討リスト |
![]() | 21階 | 201.31坪 | - | - | 募集終了 | 検討リスト |
![]() | 21階 | 116.05坪 | - | - | 募集終了 | 検討リスト |
![]() | 21階 | 201.31坪 | - | - | 募集終了 | 検討リスト |
![]() | 22階 | 201.31坪 | - | - | 募集終了 | 検討リスト |
![]() | 22階 | 429.57坪 | - | - | 募集終了 | 検討リスト |
![]() | 22階 | 201.31坪 | - | - | 募集終了 | 検討リスト |
![]() | 22階 | 26.96坪 | - | - | 募集終了 | 検討リスト |
![]() | 22階 | 85.26坪 | - | - | 募集終了 | 検討リスト |
![]() | 22階 | 116.05坪 | - | - | 募集終了 | 検討リスト |
![]() | 23階 | 201.31坪 | - | - | 募集終了 | 検討リスト |
![]() | 23階 | 228.27坪 | - | - | 募集終了 | 検討リスト |
![]() | 23階 | 429.58坪 | - | - | 募集終了 | 検討リスト |
![]() | 24階 | 85.26坪 | - | - | 募集終了 | 検討リスト |
![]() | 24階 | 228.27坪 | - | - | 募集終了 | 検討リスト |
![]() | 25階 | 429.58坪 | - | - | 募集終了 | 検討リスト |
![]() | 26階 | 429.58坪 | - | - | 募集終了 | 検討リスト |
![]() | 27階 | 407.17坪 | - | - | 募集終了 | 検討リスト |
![]() | 27階 | 190.08坪 | - | - | 募集終了 | 検討リスト |
![]() | 27階 | 26.96坪 | - | - | 募集終了 | 検討リスト |
![]() | 28階 | 399.19坪 | - | - | 募集終了 | 検討リスト |
![]() | 28階 | 190.08坪 | - | - | 募集終了 | 検討リスト |
![]() | 28階 | 19.03坪 | - | - | 募集終了 | 検討リスト |
![]() | 28階 | 190.08坪 | - | - | 募集終了 | 検討リスト |
近くの物件紹介
中野区のエリア
近くの駅
| 取扱態様 | 仲介 |
|---|---|
| 取扱会社 | 株式会社アドマイアー 東京都中央区日本橋3-2-3ユニバース第1ビル2F TEL. 03-5204-1031 宅地建物取引業免許 東京都知事(3)第94663号 マンション管理業免許 国土交通大臣(2)第034224号 賃貸住宅管理業免許 国土交通大臣(01)第005938号 |












































