岡崎ビル(渋谷区、渋谷、表参道) の賃貸オフィス情報

- 所在地
- 東京都渋谷区渋谷2-14-13
- 最寄り駅
- 渋谷駅徒歩5分、表参道駅徒歩12分
- 竣工
- 1961年
- 規模
- 地上10階・地下1階
- 構造
- SRC造(鉄骨鉄筋コンクリート造)
- セキュリティ
- 共用部警備なし(簡易管理)
- エントランス
- 平日開放
- エレベーター総数
- 1基
- 駐車場設備
- 要確認
岡崎ビルは渋谷駅近くの魅力的なビジネスロケーションと、歴史ある建物ならではの落ち着きと安心感が落ち着いたオフィスビルです。共用部リニューアルにより、クラシカルな外観と清潔感のある内部空間を両立。各階の区画バリエーションや24時間利用可能な点が、短期間で働き方を支えます。周囲の飲食店や商業施設の充実も大きな魅力で、多様なビジネスシーンに適しています。
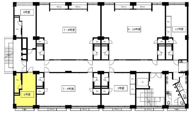
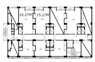
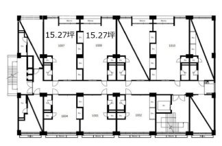
岡崎ビル の募集区画 (総募集面積 68.37坪)
| 図面 | 階数 | 坪数 | 月額費用 | 坪単価 | 入居可能日 | |
|---|---|---|---|---|---|---|
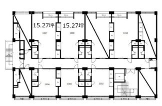
準備中 | 4階 | 15.27坪 | 320,670円 | 21,000円 | 相談 | 検討リスト お問い合わせ |
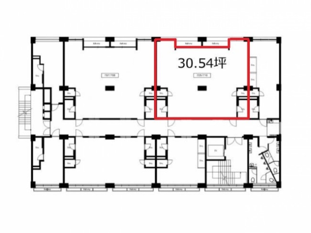
![]() | 8階 | 30.54坪 | 641,340円 | 21,000円 | 即時 | 検討リスト お問い合わせ |
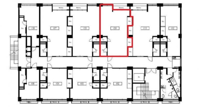
![]() | 9階 | 7.29坪 | 153,090円 | 21,000円 | 相談 | 検討リスト お問い合わせ |
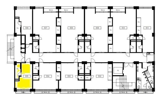
![]() | 10階 | 15.27坪 | 320,670円 | 21,000円 | 即時 | 検討リスト お問い合わせ |
※月額費用、坪単価 ともに共益費込・税別の価格です
地図
東京都渋谷区渋谷2-14-13 地図をクリックして拡大できます
岡崎ビル の外観イメージ
岡崎ビルは、鉄骨鉄筋コンクリート造のしっかりとした外観が印象的で、青山通りの中でも視認性の高いファサードを備えています。感とモダンさが共存しています。 エントランスは手入れが届いており、存在感のあるガラスのエントランスドアと明るい照明が温かみを演出。 ビジネスの場としても監視者に良い印象を考える外観となっております。













岡崎ビル の周辺イメージ
渋谷ヒカリエや渋谷クロスタワーも至近で、様々なカフェ・銀行・郵便局・コンビニが周辺に集中しています。青山通り沿いのためバスアクセスも充実、渋谷二丁目のバス停まで徒歩3分、六本木・西麻布方面への移動も便利です。駅やオフィス街の中の快適さにあり、来客対応や社員の通勤、お昼休みのランチにも困らない多彩なサポート環境が整っています。ビジネスの拠点として高い高性能を発揮します。



岡崎ビル の募集終了区画
| 図面 | 階数 | 坪数 | 月額費用 | 坪単価 | 入居可能日 | |
|---|---|---|---|---|---|---|
準備中 | B1階 | 20.00坪 | お問い合わせください | 募集終了 | 検討リスト | |
![]() | 2階 | 15.23坪 | お問い合わせください | 募集終了 | 検討リスト | |
準備中 | 2階 | 100.00坪 | お問い合わせください | 募集終了 | 検討リスト | |
準備中 | 2階 | 62.18坪 | お問い合わせください | 募集終了 | 検討リスト | |
![]() | 2階 | 24.88坪 | お問い合わせください | 募集終了 | 検討リスト | |
![]() | 3階 | 35.97坪 | お問い合わせください | 募集終了 | 検討リスト | |
準備中 | 3階 | 14.35坪 | お問い合わせください | 募集終了 | 検討リスト | |
![]() | 3階 | 28.68坪 | お問い合わせください | 募集終了 | 検討リスト | |
準備中 | 3階 | 27.93坪 | お問い合わせください | 募集終了 | 検討リスト | |
![]() | 4階 | 9.39坪 | お問い合わせください | 募集終了 | 検討リスト | |
![]() | 4階 | 9.39坪 | お問い合わせください | 募集終了 | 検討リスト | |
![]() | 4階 | 6.47坪 | お問い合わせください | 募集終了 | 検討リスト | |
![]() | 4階 | 7.29坪 | お問い合わせください | 募集終了 | 検討リスト | |
![]() | 4階 | 15.27坪 | お問い合わせください | 募集終了 | 検討リスト | |
準備中 | 4階 | 10.53坪 | お問い合わせください | 募集終了 | 検討リスト | |
![]() | 5階 | 9.39坪 | お問い合わせください | 募集終了 | 検討リスト | |
![]() | 5階 | 18.78坪 | お問い合わせください | 募集終了 | 検討リスト | |
![]() | 5階 | 18.78坪 | お問い合わせください | 募集終了 | 検討リスト | |
準備中 | 5階 | 9.39坪 | お問い合わせください | 募集終了 | 検討リスト | |
![]() | 5階 | 6.47坪 | お問い合わせください | 募集終了 | 検討リスト | |
![]() | 5階 | 7.29坪 | お問い合わせください | 募集終了 | 検討リスト | |
準備中 | 5階 | 15.27坪 | お問い合わせください | 募集終了 | 検討リスト | |
![]() | 5階 | 30.54坪 | お問い合わせください | 募集終了 | 検討リスト | |
準備中 | 5階 | 15.27坪 | お問い合わせください | 募集終了 | 検討リスト | |
![]() | 5階 | 15.27坪 | お問い合わせください | 募集終了 | 検討リスト | |
![]() | 5階 | 15.27坪 | お問い合わせください | 募集終了 | 検討リスト | |
![]() | 5階 | 10.53坪 | お問い合わせください | 募集終了 | 検討リスト | |
![]() | 6階 | 9.39坪 | お問い合わせください | 募集終了 | 検討リスト | |
![]() | 6階 | 9.39坪 | お問い合わせください | 募集終了 | 検討リスト | |
![]() | 6階 | 7.29坪 | お問い合わせください | 募集終了 | 検討リスト | |
![]() | 6階 | 15.27坪 | お問い合わせください | 募集終了 | 検討リスト | |
![]() | 6階 | 30.53坪 | お問い合わせください | 募集終了 | 検討リスト | |
![]() | 6階 | 30.53坪 | お問い合わせください | 募集終了 | 検討リスト | |
準備中 | 6階 | 15.27坪 | お問い合わせください | 募集終了 | 検討リスト | |
![]() | 6階 | 10.53坪 | お問い合わせください | 募集終了 | 検討リスト | |
準備中 | 7階 | 9.39坪 | お問い合わせください | 募集終了 | 検討リスト | |
![]() | 7階 | 18.79坪 | お問い合わせください | 募集終了 | 検討リスト | |
![]() | 7階 | 6.47坪 | お問い合わせください | 募集終了 | 検討リスト | |
![]() | 7階 | 7.29坪 | お問い合わせください | 募集終了 | 検討リスト | |
![]() | 7階 | 30.54坪 | お問い合わせください | 募集終了 | 検討リスト | |
![]() | 7階 | 30.54坪 | お問い合わせください | 募集終了 | 検討リスト | |
![]() | 7階 | 30.53坪 | お問い合わせください | 募集終了 | 検討リスト | |
![]() | 7階 | 10.54坪 | お問い合わせください | 募集終了 | 検討リスト | |
準備中 | 8階 | 9.39坪 | お問い合わせください | 募集終了 | 検討リスト | |
準備中 | 8階 | 18.78坪 | お問い合わせください | 募集終了 | 検討リスト | |
![]() | 8階 | 6.47坪 | お問い合わせください | 募集終了 | 検討リスト | |
![]() | 8階 | 7.29坪 | お問い合わせください | 募集終了 | 検討リスト | |
準備中 | 8階 | 15.27坪 | お問い合わせください | 募集終了 | 検討リスト | |
準備中 | 8階 | 30.54坪 | お問い合わせください | 募集終了 | 検討リスト | |
![]() | 8階 | 15.27坪 | お問い合わせください | 募集終了 | 検討リスト | |
![]() | 8階 | 10.53坪 | お問い合わせください | 募集終了 | 検討リスト | |
準備中 | 9階 | 9.39坪 | お問い合わせください | 募集終了 | 検討リスト | |
![]() | 9階 | 18.78坪 | お問い合わせください | 募集終了 | 検討リスト | |
![]() | 9階 | 6.48坪 | お問い合わせください | 募集終了 | 検討リスト | |
準備中 | 9階 | 30.54坪 | お問い合わせください | 募集終了 | 検討リスト | |
![]() | 9階 | 30.54坪 | お問い合わせください | 募集終了 | 検討リスト | |
![]() | 9階 | 30.53坪 | お問い合わせください | 募集終了 | 検討リスト | |
![]() | 9階 | 10.53坪 | お問い合わせください | 募集終了 | 検討リスト | |
準備中 | 9階 | 113.54坪 | お問い合わせください | 募集終了 | 検討リスト | |
![]() | 10階 | 9.39坪 | お問い合わせください | 募集終了 | 検討リスト | |
![]() | 10階 | 9.39坪 | お問い合わせください | 募集終了 | 検討リスト | |
![]() | 10階 | 9.39坪 | お問い合わせください | 募集終了 | 検討リスト | |
![]() | 10階 | 15.27坪 | お問い合わせください | 募集終了 | 検討リスト | |
![]() | 10階 | 15.27坪 | お問い合わせください | 募集終了 | 検討リスト |
近くの物件紹介
渋谷区のエリア
近くの駅
| 取扱態様 | 仲介 |
|---|---|
| 取扱会社 | 株式会社アドマイアー 東京都中央区日本橋3-2-3ユニバース第1ビル2F TEL. 03-5204-1031 宅地建物取引業免許 東京都知事(3)第94663号 マンション管理業免許 国土交通大臣(2)第034224号 賃貸住宅管理業免許 国土交通大臣(01)第005938号 |









































































