新宿マインズタワー(渋谷区、代々木、新宿、南新宿) の賃貸オフィス情報

- 所在地
- 東京都渋谷区代々木2-1-1
- 最寄り駅
- 新宿駅徒歩3分、南新宿駅徒歩6分、代々木駅徒歩5分
- 竣工
- 1995年
- 規模
- 地上34階・地下3階
- 構造
- SRC造(鉄骨鉄筋コンクリート造)
- 耐震基準
- 新耐震基準適合
- セキュリティ
- 機械警備(24時間監視)
- エントランス
- 平日開放
- エレベーター総数
- 20基
- 駐車場設備
- 要確認
新宿マインズタワー の募集区画 (総募集面積 0.00坪)
現在募集はありません。
地図
東京都渋谷区代々木2-1-1 地図をクリックして拡大できます
新宿マインズタワー の外観イメージ
新宿マインズタワー(渋谷区代々木)は、34階建ての超高層ビルで外壁は黒い石のパネルで覆われ、重厚感の高いつくりになっています。 見る角度によってビルの表情がかわるデザイン性も兼ね備えています。 メインエントランス部分は特徴的で、下から上までガラス張りの入口で、天井が高く、入口をはいると、とても開放的な空間がひろがっています。 天気がいい日などはとても明るく、すがすがしい気分を味わうことができます。














新宿マインズタワー の周辺イメージ
新宿マインズタワー(渋谷区代々木)は大江戸線の新宿駅から直結しており、利便性は言うまでもありません。 建物内も含め周辺は飲食店などが多く、ランチや休憩をとることが可能です。 また西側のエントランスを出ると、避難所として確保した場所があり、小さな公園のような空間がひろがっていますのでお弁当などを持ってきて、ここで食事をすることも可能です。 あまり建物を離れなくても用事を済ませることができる環境下ですので、お昼休みもバタバタせずに過ごせます。








新宿マインズタワー の主な入居テナント
新宿マインズタワー の募集終了区画
| 図面 | 階数 | 坪数 | 月額費用 | 坪単価 | 入居可能日 | |
|---|---|---|---|---|---|---|
![]() | B1階 | 19.38坪 | - | - | 募集終了 | 検討リスト |
![]() | B1階 | 17.49坪 | - | - | 募集終了 | 検討リスト |
![]() | B1階 | 33.60坪 | - | - | 募集終了 | 検討リスト |
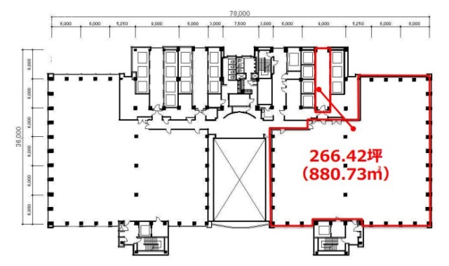
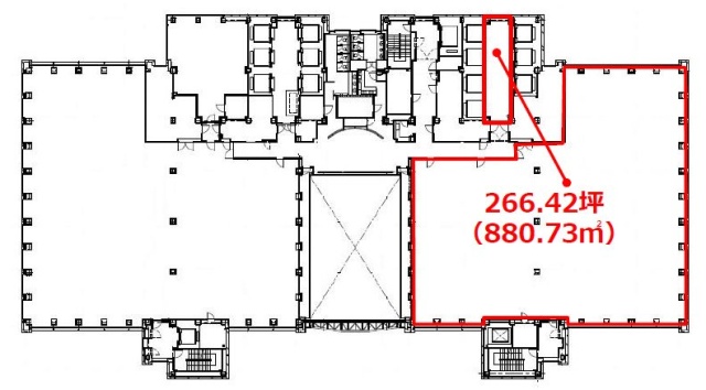
![]() | 3階 | 266.42坪 | - | - | 募集終了 | 検討リスト |
![]() | 5階 | 99.53坪 | - | - | 募集終了 | 検討リスト |
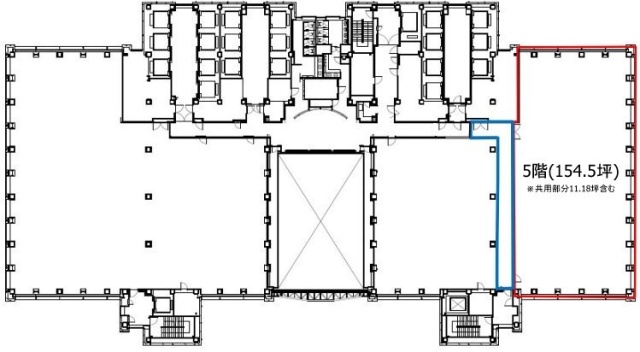
![]() | 5階 | 154.58坪 | - | - | 募集終了 | 検討リスト |
![]() | 6階 | 111.83坪 | - | - | 募集終了 | 検討リスト |
![]() | 6階 | 266.42坪 | - | - | 募集終了 | 検討リスト |
![]() | 7階 | 151.77坪 | - | - | 募集終了 | 検討リスト |
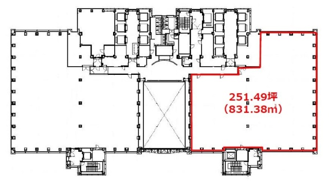
![]() | 7階 | 251.49坪 | - | - | 募集終了 | 検討リスト |
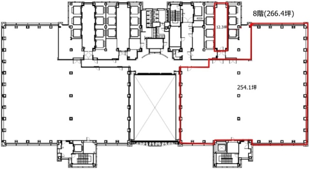
![]() | 8階 | 266.42坪 | - | - | 募集終了 | 検討リスト |
![]() | 8階 | 166.87坪 | - | - | 募集終了 | 検討リスト |
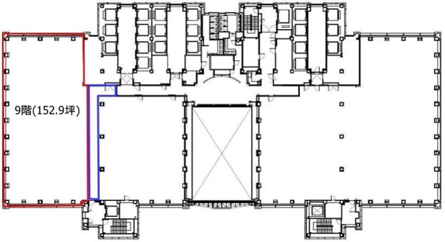
![]() | 9階 | 152.98坪 | - | - | 募集終了 | 検討リスト |
![]() | 9階 | 266.42坪 | - | - | 募集終了 | 検討リスト |
![]() | 10階 | 266.42坪 | - | - | 募集終了 | 検討リスト |
![]() | 11階 | 517.90坪 | - | - | 募集終了 | 検討リスト |
![]() | 12階 | 530.02坪 | - | - | 募集終了 | 検討リスト |
![]() | 13階 | 266.42坪 | - | - | 募集終了 | 検討リスト |
![]() | 13階 | 517.91坪 | - | - | 募集終了 | 検討リスト |
![]() | 15階 | 152.98坪 | - | - | 募集終了 | 検討リスト |
![]() | 17階 | 251.49坪 | - | - | 募集終了 | 検討リスト |
![]() | 18階 | 31.84坪 | - | - | 募集終了 | 検討リスト |
![]() | 19階 | 292.21坪 | - | - | 募集終了 | 検討リスト |
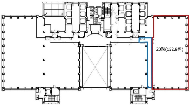
![]() | 20階 | 152.98坪 | - | - | 募集終了 | 検討リスト |
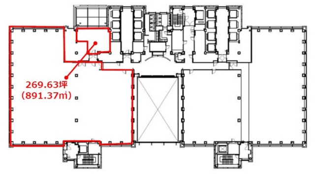
![]() | 20階 | 269.63坪 | - | - | 募集終了 | 検討リスト |
![]() | 25階 | 521.13坪 | - | - | 募集終了 | 検討リスト |
![]() | 26階 | 266.42坪 | - | - | 募集終了 | 検討リスト |
![]() | 26階 | 536.06坪 | - | - | 募集終了 | 検討リスト |
![]() | 27階 | 430.97坪 | - | - | 募集終了 | 検討リスト |
![]() | 29階 | 430.97坪 | - | - | 募集終了 | 検討リスト |
![]() | 30階 | 449.94坪 | - | - | 募集終了 | 検討リスト |
![]() | 33階 | 180.12坪 | - | - | 募集終了 | 検討リスト |
![]() | 33階 | 117.86坪 | - | - | 募集終了 | 検討リスト |
近くの物件紹介
渋谷区のエリア
近くの駅
| 取扱態様 | 仲介 |
|---|---|
| 取扱会社 | 株式会社アドマイアー 東京都中央区日本橋3-2-3ユニバース第1ビル2F TEL. 03-5204-1031 宅地建物取引業免許 東京都知事(3)第94663号 マンション管理業免許 国土交通大臣(2)第034224号 賃貸住宅管理業免許 国土交通大臣(01)第005938号 |














































