紀尾井町ビル(千代田区、紀尾井町、麹町、半蔵門) の賃貸オフィス情報

- 所在地
- 東京都千代田区紀尾井町3-12
- 最寄り駅
- 麹町駅徒歩2分、半蔵門駅徒歩6分、永田町駅徒歩6分
- 竣工
- 1989年
- 規模
- 地上26階・地下4階
- 構造
- SRC造(鉄骨鉄筋コンクリート造)
- 耐震基準
- 新耐震基準適合
- セキュリティ
- 機械警備・有人管理(24時間体制)
- エントランス
- 毎日開放(7:00~23:00)
- エレベーター総数
- 10基(エレベーター低層用・高層用各4基計10基)
- 駐車場設備
- 有(257台)
- 設備
- 非常用発電機
■麹町駅徒歩2分、永田町駅徒歩6分、半蔵門駅徒歩6分、複数路線利用可能な紀尾井町の好立地
■1989年竣工の地上26階・地下4階建て超高層複合ビル、千代田区紀尾井町のハイグレード物件
■基準階382坪の大型フロア、天井高2,700mm、OAフロア70mm、床荷重300kg/㎡の充実したスペック
■エレベーター低層用・高層用各4基計10基、月極駐車場257台、24時間警備員常駐で安心のビル運営
■1989年竣工の地上26階・地下4階建て超高層複合ビル、千代田区紀尾井町のハイグレード物件
■基準階382坪の大型フロア、天井高2,700mm、OAフロア70mm、床荷重300kg/㎡の充実したスペック
■エレベーター低層用・高層用各4基計10基、月極駐車場257台、24時間警備員常駐で安心のビル運営
紀尾井町ビル の募集区画 (総募集面積 463.19坪)
| 図面 | 階数 | 坪数 | 月額費用 | 坪単価 | 入居可能日 | |
|---|---|---|---|---|---|---|
![]() | 5階 | 81.98坪 | お問い合わせください | 即時 | 検討リスト お問い合わせ | |
![]() | 7階 | 81.98坪 | お問い合わせください | 2026/3/1 | 検討リスト お問い合わせ | |
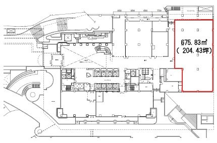
![]() | 17階 | 108.63坪 | お問い合わせください | 即時 | 検討リスト お問い合わせ | |
![]() | 18階 | 190.60坪 | お問い合わせください | 即時 | 検討リスト お問い合わせ |
※月額費用、坪単価 ともに共益費込・税別の価格です
建物に関するよくある質問と回答
Q1: このビルの耐震性能について教えてください
A: 紀尾井町ビルは1989年竣工の鉄骨造(地上部)・鉄骨鉄筋コンクリート造(地下部)で、新耐震基準に適合しており、大規模地震を想定した耐震設計がなされており、安心してご利用いただけます。
Q2: 空調設備の仕様を教えてください
A: 地域冷暖房式空調(インテリアゾーン:AHU+ペリメーター:FCU)を採用しており、快適なオフィス環境を実現しています。稼働時間は平日8:30~17:30、土曜8:30~12:30で、4ゾーンON/OFF・14ゾーン(柱スパン毎)のVAV温度調整が可能です。
Q3: 通信環境について教えてください
A: 光ケーブルが共用部まで引込済みで、高速インターネット接続が可能です。OAフロア70mm(階により変動)を完備し、レイアウト変更にも柔軟に対応できます。
Q4: エレベーターは何基ありますか?
A: 高層用(B2~2F・11F~19F、24人乗り)4基、低層用(B2~11F、24人乗り)4基、非常用(B4~26F、17・30人乗り)各1基の計10基を設置しています。うち1基は貨物兼用で、効率的な移動が可能です。
Q5: セキュリティ体制について教えてください
A: 24時間警備員が常駐し、機械警備システム(ICカード・パッシブ・マグネット)を導入しており、安心感の高いセキュリティ体制を構築しています。閉館時は1F西側通用口からカードで入館可能です。
Q6: 共用施設について教えてください
A: 1階エントランスホール、2階レストラン、ビル内貸会議室(TKPスター貸会議室、36名収容)を設置し、快適なオフィス環境を提供しています。別途コンビニエンスストア、カフェ、自動販売機も完備しています。
Q7: 駐車場の収容台数を教えてください
A: 平置式月極駐車場で257台分の駐車スペースを確保しています。月額7.0万円、敷金6ヶ月、車両制限W2.3×L5.0×H2.2m。時間貸駐車場も併設(300円/20分、24時間利用可能)しており、充実した収容能力を備えています。
Q8: BCP対応設備について教えてください
A: 共用部に非常用発電設備を備えており、非常時の対応体制を整えています。機械排煙天井チャンバー方式、スプリンクラー設備も完備し、防災面でも安心感の高い体制を構築しています。
A: 紀尾井町ビルは1989年竣工の鉄骨造(地上部)・鉄骨鉄筋コンクリート造(地下部)で、新耐震基準に適合しており、大規模地震を想定した耐震設計がなされており、安心してご利用いただけます。
Q2: 空調設備の仕様を教えてください
A: 地域冷暖房式空調(インテリアゾーン:AHU+ペリメーター:FCU)を採用しており、快適なオフィス環境を実現しています。稼働時間は平日8:30~17:30、土曜8:30~12:30で、4ゾーンON/OFF・14ゾーン(柱スパン毎)のVAV温度調整が可能です。
Q3: 通信環境について教えてください
A: 光ケーブルが共用部まで引込済みで、高速インターネット接続が可能です。OAフロア70mm(階により変動)を完備し、レイアウト変更にも柔軟に対応できます。
Q4: エレベーターは何基ありますか?
A: 高層用(B2~2F・11F~19F、24人乗り)4基、低層用(B2~11F、24人乗り)4基、非常用(B4~26F、17・30人乗り)各1基の計10基を設置しています。うち1基は貨物兼用で、効率的な移動が可能です。
Q5: セキュリティ体制について教えてください
A: 24時間警備員が常駐し、機械警備システム(ICカード・パッシブ・マグネット)を導入しており、安心感の高いセキュリティ体制を構築しています。閉館時は1F西側通用口からカードで入館可能です。
Q6: 共用施設について教えてください
A: 1階エントランスホール、2階レストラン、ビル内貸会議室(TKPスター貸会議室、36名収容)を設置し、快適なオフィス環境を提供しています。別途コンビニエンスストア、カフェ、自動販売機も完備しています。
Q7: 駐車場の収容台数を教えてください
A: 平置式月極駐車場で257台分の駐車スペースを確保しています。月額7.0万円、敷金6ヶ月、車両制限W2.3×L5.0×H2.2m。時間貸駐車場も併設(300円/20分、24時間利用可能)しており、充実した収容能力を備えています。
Q8: BCP対応設備について教えてください
A: 共用部に非常用発電設備を備えており、非常時の対応体制を整えています。機械排煙天井チャンバー方式、スプリンクラー設備も完備し、防災面でも安心感の高い体制を構築しています。
地図
東京都千代田区紀尾井町3-12 地図をクリックして拡大できます
紀尾井町ビル の外観イメージ
地上26階・地下4階建ての超高層複合ビルで、紀尾井町エリアを代表するランドマーク的存在です。1989年竣工、鉄骨造(地上部)・鉄骨鉄筋コンクリート造(地下部)の堅牢な構造で、三菱地所設計・鹿島建設施工による重厚感あるハイスペック物件。由緒ある街に佇む視認性とグレード共に抜群の建物です。















紀尾井町ビル の周辺イメージ
麹町駅徒歩2分、永田町駅徒歩6分、複数路線が利用可能な紀尾井町の好立地。渋谷・新宿・東京駅など主要ターミナル駅へ10分以内でアクセス可能。周辺にはホテルニューオータニをはじめ飲食店・カフェが充実し、ビル内にもコンビニ・レストラン・カフェを完備。自転車貸出サービスも利用でき、利便性の高いビジネス環境です。

紀尾井町ビル の主な入居テナント
紀尾井町ビル の募集終了区画
| 図面 | 階数 | 坪数 | 月額費用 | 坪単価 | 入居可能日 | |
|---|---|---|---|---|---|---|
![]() | 1階 | 99.55坪 | お問い合わせください | 募集終了 | 検討リスト | |
![]() | 1階 | 204.40坪 | お問い合わせください | 募集終了 | 検討リスト | |
![]() | 1階 | 55.05坪 | お問い合わせください | 募集終了 | 検討リスト | |
![]() | 1階 | 50.25坪 | お問い合わせください | 募集終了 | 検討リスト | |
![]() | 1階 | 99.50坪 | お問い合わせください | 募集終了 | 検討リスト | |
![]() | 1階 | 83.33坪 | お問い合わせください | 募集終了 | 検討リスト | |
![]() | 1階 | 61.15坪 | お問い合わせください | 募集終了 | 検討リスト | |
![]() | 1階 | 176.20坪 | お問い合わせください | 募集終了 | 検討リスト | |
![]() | 1階 | 13.57坪 | お問い合わせください | 募集終了 | 検討リスト | |
![]() | 1階 | 103.53坪 | お問い合わせください | 募集終了 | 検討リスト | |
![]() | 1階 | 30.20坪 | お問い合わせください | 募集終了 | 検討リスト | |
![]() | 1階 | 38.57坪 | お問い合わせください | 募集終了 | 検討リスト | |
![]() | 2階 | 32.86坪 | お問い合わせください | 募集終了 | 検討リスト | |
![]() | 2階 | 37.30坪 | お問い合わせください | 募集終了 | 検討リスト | |
![]() | 3階 | 81.98坪 | お問い合わせください | 募集終了 | 検討リスト | |
![]() | 3階 | 108.60坪 | お問い合わせください | 募集終了 | 検討リスト | |
![]() | 3階 | 82.77坪 | お問い合わせください | 募集終了 | 検討リスト | |
![]() | 3階 | 191.40坪 | お問い合わせください | 募集終了 | 検討リスト | |
![]() | 3階 | 58.56坪 | お問い合わせください | 募集終了 | 検討リスト | |
![]() | 3階 | 49.00坪 | お問い合わせください | 募集終了 | 検討リスト | |
![]() | 3階 | 50.07坪 | お問い合わせください | 募集終了 | 検討リスト | |
![]() | 4階 | 81.90坪 | お問い合わせください | 募集終了 | 検討リスト | |
![]() | 4階 | 108.60坪 | お問い合わせください | 募集終了 | 検討リスト | |
![]() | 4階 | 191.40坪 | お問い合わせください | 募集終了 | 検討リスト | |
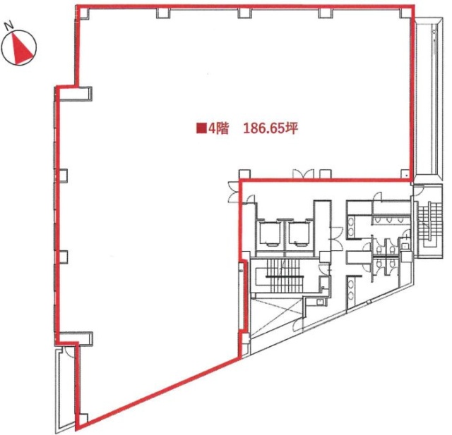
![]() | 4階 | 186.66坪 | お問い合わせください | 募集終了 | 検討リスト | |
![]() | 4階 | 382.00坪 | お問い合わせください | 募集終了 | 検討リスト | |
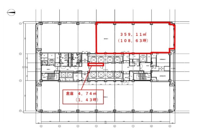
![]() | 5階 | 108.63坪 | お問い合わせください | 募集終了 | 検討リスト | |
![]() | 5階 | 190.61坪 | お問い合わせください | 募集終了 | 検討リスト | |
![]() | 6階 | 81.98坪 | お問い合わせください | 募集終了 | 検討リスト | |
![]() | 6階 | 108.63坪 | お問い合わせください | 募集終了 | 検討リスト | |
![]() | 6階 | 58.32坪 | お問い合わせください | 募集終了 | 検討リスト | |
![]() | 6階 | 50.31坪 | お問い合わせください | 募集終了 | 検討リスト | |
![]() | 6階 | 82.70坪 | お問い合わせください | 募集終了 | 検討リスト | |
![]() | 6階 | 23.92坪 | お問い合わせください | 募集終了 | 検討リスト | |
![]() | 6階 | 58.84坪 | お問い合わせください | 募集終了 | 検討リスト | |
![]() | 6階 | 23.90坪 | お問い合わせください | 募集終了 | 検討リスト | |
![]() | 6階 | 81.98坪 | お問い合わせください | 募集終了 | 検討リスト | |
![]() | 6階 | 190.61坪 | お問い合わせください | 募集終了 | 検討リスト | |
![]() | 7階 | 108.63坪 | お問い合わせください | 募集終了 | 検討リスト | |
![]() | 7階 | 82.77坪 | お問い合わせください | 募集終了 | 検討リスト | |
![]() | 7階 | 108.60坪 | お問い合わせください | 募集終了 | 検討リスト | |
![]() | 8階 | 57.87坪 | お問い合わせください | 募集終了 | 検討リスト | |
![]() | 8階 | 24.11坪 | お問い合わせください | 募集終了 | 検討リスト | |
![]() | 8階 | 28.77坪 | お問い合わせください | 募集終了 | 検討リスト | |
![]() | 8階 | 35.18坪 | お問い合わせください | 募集終了 | 検討リスト | |
![]() | 8階 | 23.53坪 | お問い合わせください | 募集終了 | 検討リスト | |
![]() | 8階 | 24.04坪 | お問い合わせください | 募集終了 | 検討リスト | |
![]() | 8階 | 35.97坪 | お問い合わせください | 募集終了 | 検討リスト | |
![]() | 8階 | 24.11坪 | お問い合わせください | 募集終了 | 検討リスト | |
![]() | 9階 | 382.00坪 | お問い合わせください | 募集終了 | 検討リスト | |
![]() | 9階 | 108.63坪 | お問い合わせください | 募集終了 | 検討リスト | |
![]() | 10階 | 382.00坪 | お問い合わせください | 募集終了 | 検討リスト | |
![]() | 10階 | 129.00坪 | お問い合わせください | 募集終了 | 検討リスト | |
![]() | 11階 | 190.60坪 | お問い合わせください | 募集終了 | 検討リスト | |
![]() | 11階 | 191.40坪 | お問い合わせください | 募集終了 | 検討リスト | |
![]() | 12階 | 190.61坪 | お問い合わせください | 募集終了 | 検討リスト | |
![]() | 12階 | 191.40坪 | お問い合わせください | 募集終了 | 検討リスト | |
![]() | 13階 | 382.00坪 | お問い合わせください | 募集終了 | 検討リスト | |
![]() | 13階 | 190.61坪 | お問い合わせください | 募集終了 | 検討リスト | |
![]() | 14階 | 190.61坪 | お問い合わせください | 募集終了 | 検討リスト | |
![]() | 14階 | 191.40坪 | お問い合わせください | 募集終了 | 検討リスト | |
![]() | 14階 | 24.09坪 | お問い合わせください | 募集終了 | 検討リスト | |
![]() | 14階 | 52.68坪 | お問い合わせください | 募集終了 | 検討リスト | |
![]() | 15階 | 81.98坪 | お問い合わせください | 募集終了 | 検討リスト | |
![]() | 15階 | 108.63坪 | お問い合わせください | 募集終了 | 検討リスト | |
![]() | 15階 | 82.77坪 | お問い合わせください | 募集終了 | 検討リスト | |
![]() | 15階 | 382.01坪 | お問い合わせください | 募集終了 | 検討リスト | |
![]() | 15階 | 190.61坪 | お問い合わせください | 募集終了 | 検討リスト | |
![]() | 16階 | 382.01坪 | お問い合わせください | 募集終了 | 検討リスト | |
![]() | 16階 | 82.77坪 | お問い合わせください | 募集終了 | 検討リスト | |
![]() | 16階 | 108.63坪 | お問い合わせください | 募集終了 | 検討リスト | |
![]() | 16階 | 108.63坪 | お問い合わせください | 募集終了 | 検討リスト | |
![]() | 18階 | 108.63坪 | お問い合わせください | 募集終了 | 検討リスト | |
![]() | 24階 | 40.70坪 | お問い合わせください | 募集終了 | 検討リスト |
近くの物件紹介
千代田区のエリア
近くの駅
| 取扱態様 | 仲介 |
|---|---|
| 取扱会社 | 株式会社アドマイアー 東京都中央区日本橋3-2-3ユニバース第1ビル2F TEL. 03-5204-1031 宅地建物取引業免許 東京都知事(3)第94663号 マンション管理業免許 国土交通大臣(2)第034224号 賃貸住宅管理業免許 国土交通大臣(01)第005938号 |

























































