東英九段ビル(千代田区、九段北、九段下、飯田橋) の賃貸オフィス情報

- 所在地
- 東京都千代田区九段北1-4-5
- 最寄り駅
- 九段下駅徒歩1分、飯田橋駅徒歩13分、水道橋駅徒歩15分
- 竣工
- 1989年
- 規模
- 地上9階・地下1階
- 構造
- SRC造(鉄骨鉄筋コンクリート造)
- 耐震基準
- 新耐震基準適合
- セキュリティ
- 機械警備(24時間監視)
- エントランス
- 平日開放
- エレベーター総数
- 1基
- 駐車場設備
- 要確認
- 設備
- オフィス専用ゾーン制御
東英九段ビルは、九段下駅から徒歩1分という抜群のアクセスが魅力です。地下鉄東西線・半蔵門線・都営新宿線の3路線が利用可能で、飯田橋駅や神保町駅も徒歩圏内。基準階面積18.6坪のコンパクトなフロアは、スタートアップや小規模オフィスに最適です。SRC造による新耐震基準対応で安心感があり、機械警備によるセキュリティも確保。エントランスは平日開放で利便性が高く、周辺には官公庁・大学・飲食店が集積する、利便性と安心感を兼ね備えた物件です。
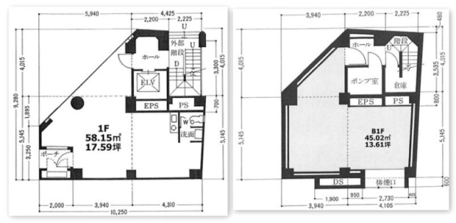
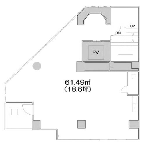
東英九段ビル の募集区画 (総募集面積 32.98坪)
| 図面 | 階数 | 坪数 | 月額費用 | 坪単価 | 入居可能日 | |
|---|---|---|---|---|---|---|
![]() | 7階 | 18.60坪 | 325,000円 | 17,473円 | 2026/1/1 | 検討リスト お問い合わせ |
![]() | 9階 | 14.38坪 | 251,650円 | 17,500円 | 即時 | 検討リスト お問い合わせ |
※月額費用、坪単価 ともに共益費込・税別の価格です
建物に関するよくある質問と回答
Q. エレベーターは何基ありますか? A. 1基設置されています。
Q. セキュリティ方式は何ですか? A. 機械警備が導入されています。
Q. 耐震基準はどうですか? A. 新耐震基準に適合しています。
Q. 特徴的な設備はありますか? A. エレベーター不停止機能が備わっています。
Q. OAフロアはありますか? A. 設置されていません。シンプルな床仕様で配線計画が容易です。
Q. 空調方式は何ですか? A. 個別空調です。
Q. トイレ仕様はどうなっていますか? A. 貸室内にトイレが1つ設置されています。
Q. セキュリティ方式は何ですか? A. 機械警備が導入されています。
Q. 耐震基準はどうですか? A. 新耐震基準に適合しています。
Q. 特徴的な設備はありますか? A. エレベーター不停止機能が備わっています。
Q. OAフロアはありますか? A. 設置されていません。シンプルな床仕様で配線計画が容易です。
Q. 空調方式は何ですか? A. 個別空調です。
Q. トイレ仕様はどうなっていますか? A. 貸室内にトイレが1つ設置されています。
地図
東京都千代田区九段北1-4-5 地図をクリックして拡大できます
東英九段ビル の外観イメージ
1989年竣工の東英九段ビルは、SRC(鉄骨鉄筋コンクリート造)による地上9階・地下1階建ての中規模オフィスビルです。九段下駅徒歩1分という好立地にあり、靖国通り沿いの視認性の高い立地条件を備えています。外観はガラスと石調パネルを組み合わせたシンプルなデザインで、周囲のオフィス街や教育機関と調和しています。新耐震基準に適合しており、安心して利用できる構造体を持つ点も特徴です。コンパクトながら堅実な設計は、多様なテナントニーズに応える信頼性を感じさせます。








東英九段ビル の周辺イメージ
東英九段ビルは、東京メトロ東西線・半蔵門線、都営新宿線が乗り入れる九段下駅から徒歩1分に位置し、飯田橋駅や神保町駅へも徒歩圏内です。周辺は靖国通り沿いの交通利便性に優れたエリアで、金融機関・郵便局・飲食店が集積しています。近隣には日本武道館や東京理科大学、専修大学があり、教育・文化・ビジネスが交錯する環境です。皇居や北の丸公園にも近接し、都心にありながら緑も感じられる立地が特徴です。業務利便性と生活利便性の双方を兼ね備えたエリアで、日常的な快適さを確保できます。



東英九段ビル の募集終了区画
近くの物件紹介
千代田区のエリア
近くの駅
| 取扱態様 | 仲介 |
|---|---|
| 取扱会社 | 株式会社アドマイアー 東京都中央区日本橋3-2-3ユニバース第1ビル2F TEL. 03-5204-1031 宅地建物取引業免許 東京都知事(3)第94663号 マンション管理業免許 国土交通大臣(2)第034224号 賃貸住宅管理業免許 国土交通大臣(01)第005938号 |
































