龍角散ビル(千代田区、東神田、岩本町、馬喰横山) の賃貸オフィス情報

- 所在地
- 東京都千代田区東神田2-5-12
- 最寄り駅
- 岩本町駅徒歩5分、馬喰横山駅徒歩6分、浅草橋駅徒歩7分
- 竣工
- 1991年
- 規模
- 地上9階・地下1階
- 構造
- SRC造(鉄骨鉄筋コンクリート造)
- 耐震基準
- 新耐震基準適合
- セキュリティ
- 機械警備・有人管理(24時間体制)
- エントランス
- 平日開放
- エレベーター総数
- 4基
- 駐車場設備
- 要確認
龍角散ビルは、岩本町・馬喰町・浅草橋など複数駅が利用できる良好なアクセスと、靖国通り・清洲橋通り角地の視認性、そしてグッドデザイン賞受賞の個性的な外観が魅力のオフィスビルです。基準階約217坪の無柱空間やOAフロア、個別空調、セキュリティ体制、駐車場など、現代オフィスに求められる機能がしっかりと備わっています。1階の店舗や周辺の生活利便施設も充実しており、ビジネスだけでなく日常の快適性にも貢献します。企業の本社や拠点として、立地・デザイン・機能のバランスに優れたオフィス環境を求める方に適しています。
龍角散ビル の募集区画 (総募集面積 0.00坪)
現在募集はありません。
地図
東京都千代田区東神田2-5-12 地図をクリックして拡大できます
龍角散ビル の外観イメージ
外観は低層階がグレー、中層階がベージュの石造りで、上層階はガラス張りという個性的なデザインが特徴です。通りに面した壁面が突出し、視認性が高く、地域のランドマークとして存在感を放っています。エントランスは金色に輝く円形扉が印象的で、高級感のあるホールへと続きます。花崗岩のベージュや黒、柔らかなグリーンのガラスが調和し、周辺のオフィス街にも自然に溶け込む色彩設計がなされています。1994年にはグッドデザイン賞も受賞しています。
















龍角散ビル の周辺イメージ
1階には店舗が入居し、エントランスホールにはAEDも設置されています。周辺にはコンビニや飲食店、郵便局、医療機関、保育園など生活利便施設が充実し、秋葉原や浅草橋エリアの大型商業施設も徒歩圏内です。靖国通り・清洲橋通り沿いの角地という立地は、視認性とアクセス性に優れ、ビジネスの拠点として高い利便性を発揮します。オフィス街の中でも目立つ存在でありながら、周囲との調和も意識された設計です。


龍角散ビル の募集終了区画
| 図面 | 階数 | 坪数 | 月額費用 | 坪単価 | 入居可能日 | |
|---|---|---|---|---|---|---|
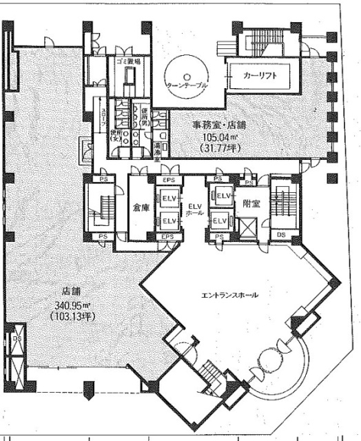
![]() | 1階 | 103.13坪 | お問い合わせください | 募集終了 | 検討リスト | |
![]() | 1階 | 31.77坪 | お問い合わせください | 募集終了 | 検討リスト | |
![]() | 1階 | 12.64坪 | お問い合わせください | 募集終了 | 検討リスト | |
![]() | 2階 | 87.80坪 | お問い合わせください | 募集終了 | 検討リスト | |
![]() | 2階 | 99.74坪 | お問い合わせください | 募集終了 | 検討リスト | |
![]() | 2階 | 50.29坪 | お問い合わせください | 募集終了 | 検討リスト | |
![]() | 2階 | 49.44坪 | お問い合わせください | 募集終了 | 検討リスト | |
![]() | 2階 | 83.16坪 | お問い合わせください | 募集終了 | 検討リスト | |
![]() | 3階 | 130.03坪 | お問い合わせください | 募集終了 | 検討リスト | |
![]() | 3階 | 85.99坪 | お問い合わせください | 募集終了 | 検討リスト | |
![]() | 4階 | 130.82坪 | お問い合わせください | 募集終了 | 検討リスト | |
![]() | 4階 | 85.99坪 | お問い合わせください | 募集終了 | 検討リスト | |
![]() | 4階 | 130.87坪 | お問い合わせください | 募集終了 | 検討リスト | |
![]() | 5階 | 130.82坪 | お問い合わせください | 募集終了 | 検討リスト | |
![]() | 5階 | 85.99坪 | お問い合わせください | 募集終了 | 検討リスト | |
![]() | 6階 | 130.82坪 | お問い合わせください | 募集終了 | 検討リスト | |
![]() | 6階 | 85.99坪 | お問い合わせください | 募集終了 | 検討リスト | |
![]() | 7階 | 85.99坪 | お問い合わせください | 募集終了 | 検討リスト | |
![]() | 7階 | 130.82坪 | お問い合わせください | 募集終了 | 検討リスト | |
![]() | 7階 | 216.81坪 | お問い合わせください | 募集終了 | 検討リスト | |
![]() | 8階 | 117.45坪 | お問い合わせください | 募集終了 | 検討リスト | |
![]() | 8階 | 85.99坪 | お問い合わせください | 募集終了 | 検討リスト | |
![]() | 8階 | 86.05坪 | お問い合わせください | 募集終了 | 検討リスト | |
![]() | 9階 | 220.90坪 | お問い合わせください | 募集終了 | 検討リスト |
近くの物件紹介
千代田区のエリア
近くの駅
| 取扱態様 | 仲介 |
|---|---|
| 取扱会社 | 株式会社アドマイアー 東京都中央区日本橋3-2-3ユニバース第1ビル2F TEL. 03-5204-1031 宅地建物取引業免許 東京都知事(3)第94663号 マンション管理業免許 国土交通大臣(2)第034224号 賃貸住宅管理業免許 国土交通大臣(01)第005938号 |


























