大成大手町ビル(千代田区、大手町、東京、竹橋) の賃貸オフィス情報

- 所在地
- 東京都千代田区大手町2-1-1
- 最寄り駅
- 大手町駅徒歩1分、東京駅徒歩5分、竹橋駅徒歩14分
- 竣工
- 1994年
- 規模
- 地上27階・地下5階
- 構造
- SRC造(鉄骨鉄筋コンクリート造)
- 耐震基準
- 新耐震基準適合
- セキュリティ
- 機械警備・有人管理(24時間体制)
- エントランス
- 毎日開放(制限有)
- エレベーター総数
- 13基(常用エレベーター11基、非常用エレベーター2基の合計13基)
- 駐車場設備
- 有(平置き43台、機械式162台)
- 設備
- 24時間(要ICカード)、 防災センター、 非常用発電機
■ 鉄骨造・鉄筋コンクリート造による堅牢な構造と新耐震基準適合の安全性
■ 大手町駅A5出口直結、東京駅徒歩5分の卓越したアクセス性
■ 天井高2,700mm・OAフロア100mm・セントラル空調による快適な執務環境
■ 大手町駅A5出口直結、東京駅徒歩5分の卓越したアクセス性
■ 天井高2,700mm・OAフロア100mm・セントラル空調による快適な執務環境
大成大手町ビル の募集区画 (総募集面積 1,079.24坪)
| 図面 | 階数 | 坪数 | 月額費用 | 坪単価 | 入居可能日 | |
|---|---|---|---|---|---|---|
![]() | 1階 | 471.01坪 | お問い合わせください | 2026/6/1 | 検討リスト お問い合わせ | |
![]() | 5階 | 131.52坪 | お問い合わせください | 2026/6/1 | 検討リスト お問い合わせ | |
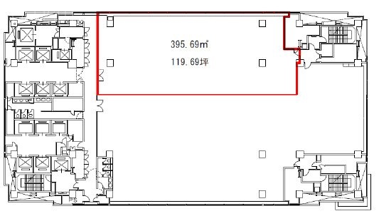
![]() | 5階 | 118.51坪 | お問い合わせください | 2026/6/1 | 検討リスト お問い合わせ | |
![]() | 17階 | 358.20坪 | お問い合わせください | 2026/6/1 | 検討リスト お問い合わせ |
※月額費用、坪単価 ともに共益費込・税別の価格です
建物に関するよくある質問と回答
Q1: 大成大手町ビルの耐震性能はどのような仕様ですか?
A: 1994年竣工の新耐震基準に適合した鉄骨造・鉄筋コンクリート造の建物です。地上27階・地下5階建の堅牢な構造により、高い耐震性能を確保しています。
Q2: 空調設備の仕様について教えてください。
A: セントラル空調方式を採用しており、ビル全体で統一された快適な室内環境を提供しています。天井高2,700mmとOAフロア100mmの組み合わせにより、効率的な空調運用が可能です。
Q3: 通信インフラの整備状況はいかがでしょうか?
A: OAフロア100mmを標準装備しており、LAN配線や電源配線を床下に収納することで、柔軟なオフィスレイアウトと通信環境の整備が可能です。
Q4: エレベーターの台数と仕様を教えてください。
A: 常用エレベーター11基、非常用エレベーター2基の合計13基を設置しています。地上27階建の高層ビルにおいて、スムーズな縦動線を確保しています。
Q5: セキュリティ体制について教えてください。
A: 有人管理と機械警備を組み合わせた24時間セキュリティ体制を構築しています。エントランスは平日・土日祝日ともに7時30分から23時まで開館しています。
Q6: 共用施設にはどのようなものがありますか?
A: 全面ガラス張りのアトリウムを備えた開放的なエントランスホールがあります。北側には公開空地も整備され、ゆとりある共用空間を提供しています。
Q7: 駐車場の収容台数と形態を教えてください。
A: 機械式駐車場162台、平面式駐車場43台の合計205台分を確保しています。来客対応や社用車の駐車需要にも十分対応可能な規模です。
Q8: BCP対策や防災設備について教えてください。
A: 非常用エレベーター2基を設置し、緊急時の避難体制を整備しています。屋上には緊急発着用ヘリポートも完備され、万が一の際の対応力を確保しています。
A: 1994年竣工の新耐震基準に適合した鉄骨造・鉄筋コンクリート造の建物です。地上27階・地下5階建の堅牢な構造により、高い耐震性能を確保しています。
Q2: 空調設備の仕様について教えてください。
A: セントラル空調方式を採用しており、ビル全体で統一された快適な室内環境を提供しています。天井高2,700mmとOAフロア100mmの組み合わせにより、効率的な空調運用が可能です。
Q3: 通信インフラの整備状況はいかがでしょうか?
A: OAフロア100mmを標準装備しており、LAN配線や電源配線を床下に収納することで、柔軟なオフィスレイアウトと通信環境の整備が可能です。
Q4: エレベーターの台数と仕様を教えてください。
A: 常用エレベーター11基、非常用エレベーター2基の合計13基を設置しています。地上27階建の高層ビルにおいて、スムーズな縦動線を確保しています。
Q5: セキュリティ体制について教えてください。
A: 有人管理と機械警備を組み合わせた24時間セキュリティ体制を構築しています。エントランスは平日・土日祝日ともに7時30分から23時まで開館しています。
Q6: 共用施設にはどのようなものがありますか?
A: 全面ガラス張りのアトリウムを備えた開放的なエントランスホールがあります。北側には公開空地も整備され、ゆとりある共用空間を提供しています。
Q7: 駐車場の収容台数と形態を教えてください。
A: 機械式駐車場162台、平面式駐車場43台の合計205台分を確保しています。来客対応や社用車の駐車需要にも十分対応可能な規模です。
Q8: BCP対策や防災設備について教えてください。
A: 非常用エレベーター2基を設置し、緊急時の避難体制を整備しています。屋上には緊急発着用ヘリポートも完備され、万が一の際の対応力を確保しています。
地図
東京都千代田区大手町2-1-1 地図をクリックして拡大できます
大成大手町ビル の外観イメージ
大成大手町ビルは、鉄骨造と鉄筋コンクリート造を組み合わせた地上27階建の超高層オフィスビルです。低層部には1932年竣工の旧日清生命館のファサードを保存し、印象的な時計塔と列柱が歴史的連続性を表現しています。北側には全面ガラス張りのアトリウムを配し、現代的な建築技術と歴史的意匠が融合した外観デザインとなっています。千代田区景観まちづくり重要物件に指定され、大手町エリアのランドマーク的存在です。



















大成大手町ビル の周辺イメージ
大手町駅A5出口・B2a出口に直結し、東京メトロ丸ノ内線・東西線・半蔵門線・千代田線、都営三田線の5路線が利用可能です。JR東京駅へも地下道で直結し徒歩5分の距離にあります。大手町駅前交差点の角地に位置し、周辺には金融機関や大手企業の本社が集積するビジネス街が広がっています。



大成大手町ビル の主な入居テナント
株式会社毎日コムネット株式会社ゴールドクレスト全国保証株式会社相互物産株式会社株式会社メモリードエヌエスイーホールディングス株式会社相鉄不動産株式会社 相鉄グループ東京事務所日本電子株式会社 東京事務所
大成大手町ビル の募集終了区画
| 図面 | 階数 | 坪数 | 月額費用 | 坪単価 | 入居可能日 | |
|---|---|---|---|---|---|---|
![]() | B2階 | 334.61坪 | お問い合わせください | 募集終了 | 検討リスト | |
![]() | B2階 | 16.54坪 | お問い合わせください | 募集終了 | 検討リスト | |
![]() | B1階 | 48.29坪 | お問い合わせください | 募集終了 | 検討リスト | |
![]() | B1階 | 4.58坪 | お問い合わせください | 募集終了 | 検討リスト | |
![]() | B1階 | 45.33坪 | お問い合わせください | 募集終了 | 検討リスト | |
![]() | 1階 | 243.31坪 | お問い合わせください | 募集終了 | 検討リスト | |
![]() | 2階 | 272.33坪 | お問い合わせください | 募集終了 | 検討リスト | |
![]() | 3階 | 330.22坪 | お問い合わせください | 募集終了 | 検討リスト | |
![]() | 4階 | 356.51坪 | お問い合わせください | 募集終了 | 検討リスト | |
![]() | 5階 | 356.46坪 | お問い合わせください | 募集終了 | 検討リスト | |
![]() | 5階 | 54.84坪 | お問い合わせください | 募集終了 | 検討リスト | |
![]() | 6階 | 323.04坪 | お問い合わせください | 募集終了 | 検討リスト | |
![]() | 7階 | 348.09坪 | お問い合わせください | 募集終了 | 検討リスト | |
![]() | 7階 | 128.80坪 | お問い合わせください | 募集終了 | 検討リスト | |
![]() | 7階 | 47.02坪 | お問い合わせください | 募集終了 | 検討リスト | |
![]() | 8階 | 347.76坪 | お問い合わせください | 募集終了 | 検討リスト | |
![]() | 8階 | 64.39坪 | お問い合わせください | 募集終了 | 検討リスト | |
![]() | 8階 | 46.86坪 | お問い合わせください | 募集終了 | 検討リスト | |
![]() | 8階 | 122.82坪 | お問い合わせください | 募集終了 | 検討リスト | |
![]() | 8階 | 6.86坪 | お問い合わせください | 募集終了 | 検討リスト | |
![]() | 9階 | 347.96坪 | お問い合わせください | 募集終了 | 検討リスト | |
![]() | 9階 | 46.77坪 | お問い合わせください | 募集終了 | 検討リスト | |
![]() | 9階 | 124.46坪 | お問い合わせください | 募集終了 | 検討リスト | |
![]() | 9階 | 122.82坪 | お問い合わせください | 募集終了 | 検討リスト | |
![]() | 10階 | 345.34坪 | お問い合わせください | 募集終了 | 検討リスト | |
![]() | 10階 | 119.69坪 | お問い合わせください | 募集終了 | 検討リスト | |
![]() | 11階 | 349.72坪 | お問い合わせください | 募集終了 | 検討リスト | |
![]() | 12階 | 335.33坪 | お問い合わせください | 募集終了 | 検討リスト | |
![]() | 13階 | 347.57坪 | お問い合わせください | 募集終了 | 検討リスト | |
![]() | 13階 | 13.32坪 | お問い合わせください | 募集終了 | 検討リスト | |
![]() | 14階 | 347.56坪 | お問い合わせください | 募集終了 | 検討リスト | |
![]() | 14階 | 46.25坪 | お問い合わせください | 募集終了 | 検討リスト | |
![]() | 14階 | 54.54坪 | お問い合わせください | 募集終了 | 検討リスト | |
![]() | 14階 | 49.51坪 | お問い合わせください | 募集終了 | 検討リスト | |
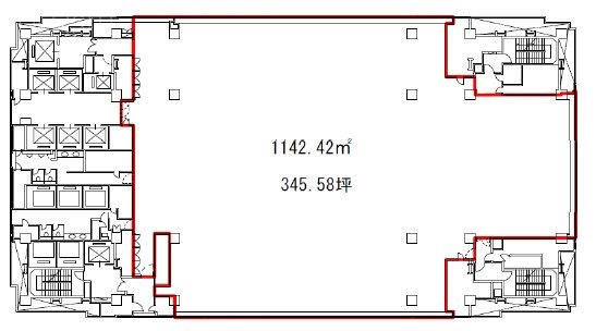
![]() | 15階 | 345.58坪 | お問い合わせください | 募集終了 | 検討リスト | |
![]() | 16階 | 350.00坪 | お問い合わせください | 募集終了 | 検討リスト | |
![]() | 16階 | 107.95坪 | お問い合わせください | 募集終了 | 検討リスト | |
![]() | 16階 | 54.92坪 | お問い合わせください | 募集終了 | 検討リスト | |
![]() | 16階 | 46.83坪 | お問い合わせください | 募集終了 | 検討リスト | |
![]() | 16階 | 54.92坪 | お問い合わせください | 募集終了 | 検討リスト | |
![]() | 18階 | 158.07坪 | お問い合わせください | 募集終了 | 検討リスト | |
![]() | 18階 | 85.16坪 | お問い合わせください | 募集終了 | 検討リスト | |
![]() | 18階 | 87.60坪 | お問い合わせください | 募集終了 | 検討リスト | |
![]() | 18階 | 44.39坪 | お問い合わせください | 募集終了 | 検討リスト | |
![]() | 19階 | 30.24坪 | お問い合わせください | 募集終了 | 検討リスト | |
![]() | 19階 | 74.24坪 | お問い合わせください | 募集終了 | 検討リスト | |
![]() | 19階 | 29.35坪 | お問い合わせください | 募集終了 | 検討リスト | |
![]() | 19階 | 158.07坪 | お問い合わせください | 募集終了 | 検討リスト | |
![]() | 19階 | 132.96坪 | お問い合わせください | 募集終了 | 検討リスト | |
![]() | 19階 | 57.70坪 | お問い合わせください | 募集終了 | 検討リスト | |
![]() | 19階 | 65.82坪 | お問い合わせください | 募集終了 | 検討リスト | |
![]() | 19階 | 56.57坪 | お問い合わせください | 募集終了 | 検討リスト | |
![]() | 20階 | 91.91坪 | お問い合わせください | 募集終了 | 検討リスト | |
![]() | 20階 | 93.38坪 | お問い合わせください | 募集終了 | 検討リスト | |
![]() | 20階 | 29.81坪 | お問い合わせください | 募集終了 | 検討リスト | |
![]() | 20階 | 29.35坪 | お問い合わせください | 募集終了 | 検討リスト | |
![]() | 20階 | 52.48坪 | お問い合わせください | 募集終了 | 検討リスト | |
![]() | 20階 | 14.24坪 | お問い合わせください | 募集終了 | 検討リスト | |
![]() | 21階 | 146.37坪 | お問い合わせください | 募集終了 | 検討リスト | |
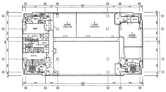
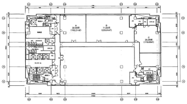
![]() | 21階 | 39.99坪 | お問い合わせください | 募集終了 | 検討リスト | |
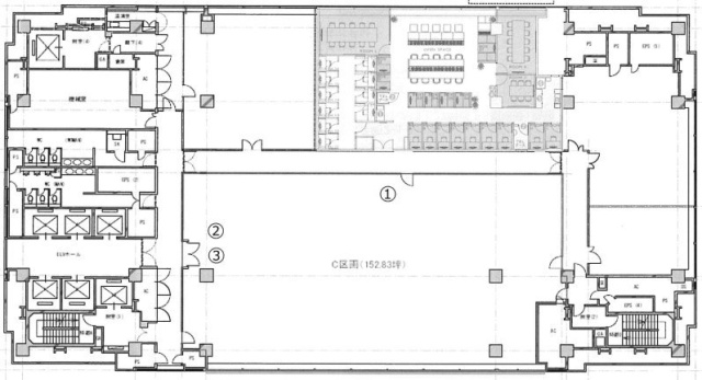
![]() | 21階 | 152.83坪 | お問い合わせください | 募集終了 | 検討リスト | |
![]() | 21階 | 71.09坪 | お問い合わせください | 募集終了 | 検討リスト | |
![]() | 21階 | 35.29坪 | お問い合わせください | 募集終了 | 検討リスト | |
![]() | 22階 | 127.60坪 | お問い合わせください | 募集終了 | 検討リスト | |
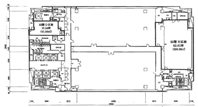
![]() | 22階 | 62.61坪 | お問い合わせください | 募集終了 | 検討リスト | |
![]() | 22階 | 15.54坪 | お問い合わせください | 募集終了 | 検討リスト | |
![]() | 23階 | 121.82坪 | お問い合わせください | 募集終了 | 検討リスト | |
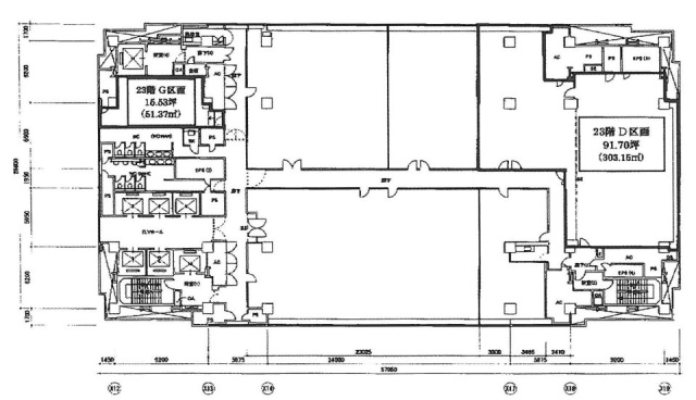
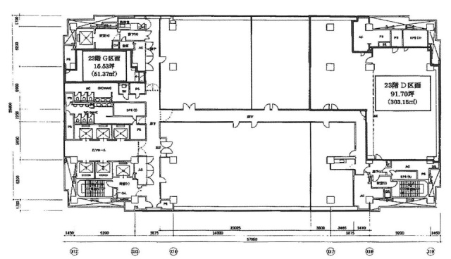
![]() | 23階 | 61.82坪 | お問い合わせください | 募集終了 | 検討リスト | |
![]() | 23階 | 39.47坪 | お問い合わせください | 募集終了 | 検討リスト | |
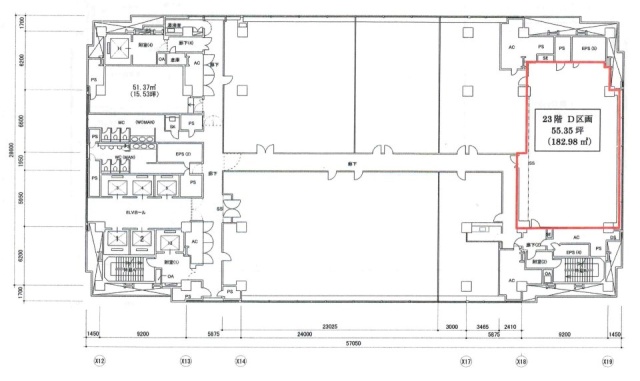
![]() | 23階 | 55.35坪 | お問い合わせください | 募集終了 | 検討リスト | |
![]() | 23階 | 91.70坪 | お問い合わせください | 募集終了 | 検討リスト | |
![]() | 23階 | 36.35坪 | お問い合わせください | 募集終了 | 検討リスト | |
![]() | 23階 | 15.53坪 | お問い合わせください | 募集終了 | 検討リスト | |
![]() | 24階 | 361.22坪 | お問い合わせください | 募集終了 | 検討リスト | |
![]() | 24階 | 15.49坪 | お問い合わせください | 募集終了 | 検討リスト | |
![]() | 24階 | 358.49坪 | お問い合わせください | 募集終了 | 検討リスト |
近くの物件紹介
千代田区のエリア
近くの駅
| 取扱態様 | 仲介 |
|---|---|
| 取扱会社 | 株式会社アドマイアー 東京都中央区日本橋3-2-3ユニバース第1ビル2F TEL. 03-5204-1031 宅地建物取引業免許 東京都知事(3)第94663号 マンション管理業免許 国土交通大臣(2)第034224号 賃貸住宅管理業免許 国土交通大臣(01)第005938号 |





























































