新東京ビル(千代田区、丸の内、東京、有楽町) の賃貸オフィス情報

- 所在地
- 東京都千代田区丸の内3-3-1
- 最寄り駅
- 東京駅徒歩1分、有楽町駅徒歩3分、二重橋前駅徒歩3分
- 竣工
- 1963年
- リニューアル済み
- 2020年4月
- 規模
- 地上9階・地下4階
- 構造
- SRC造(鉄骨鉄筋コンクリート造)
- セキュリティ
- 有人管理(警備員常駐)
- エントランス
- 毎日開放
- エレベーター総数
- 18基(乗用 16台 貨物用 2台)
- 駐車場設備
- 有(198台 (高さ 2,100mm))
- 設備
- 貸会議室、 共用ラウンジ(テナント専用ラウンジ)
新東京ビルは、東京駅直結という抜群の立地に1963年竣工、2020年リニューアルを経た丸の内アドレスの賃貸オフィスです。鉄骨鉄筋コンクリート造による堅牢な構造に加え、DBJ Green Building認証★★★★を取得し、再エネ導入による環境性能の高さが際立ちます。セントラル空調、OAフロア50mm、天井高2,650mmの機能的な執務空間に、4階テナント専用ラウンジや丸の内仲通りを中心とした館内外の充実した飲食・物販店舗が快適な就業環境を支えます。24時間有人管理体制と光ファイバ敷設済みの通信環境が、安心かつ快適なビジネス拠点を支えます。
新東京ビル の募集区画 (総募集面積 20.64坪)
※月額費用、坪単価 ともに共益費込・税別の価格です
建物に関するよくある質問と回答
Q1:新東京ビルの耐震性能はどうなっていますか?
A:1963年竣工、1965年増築の鉄骨鉄筋コンクリート造で、2020年4月にリニューアル工事を実施し、共用部各所で継続的な改修が行われています。竣工から60年超を経た建物ですが、適切な維持管理と改修により安全性を維持しています。
Q2:空調設備について教えてください。
A:セントラル空調方式を採用しており、ビル全体で一元管理された空調システムにより快適な室内環境を提供しています。再エネ導入により環境負荷低減にも配慮した運用が行われています。
Q3:通信インフラの整備状況はどうですか?
A:光ファイバが敷設済みで、高速インターネットサービスの利用が可能です。現代のビジネスに必要な通信環境が整っており、DX推進にも対応できる基盤が提供されています。
Q4:エレベーターの台数と仕様を教えてください。
A:乗用エレベーター16台、貨物用エレベーター2台の計18台を備えており、地上9階建てのビル規模に対して充実した縦動線を確保しています。朝夕のピーク時にも円滑な移動が可能です。
Q5:セキュリティ体制について教えてください。
A:24時間有人管理体制を採用しており、夜間・休日の入退館はインターフォンによる呼出方式で厳格に管理されています。常駐管理により安全性と利便性を両立した運用が行われています。
Q6:共用施設にはどのようなものがありますか?
A:4階にテナント専用ラウンジを完備しており、就業者の休憩やリフレッシュに活用できます。貸会議室も設置されており、社内外のミーティングやセミナーに利用可能です。丸の内仲通りを中心に館内外に多数の飲食・物販店舗があり、ビジネスと生活の両面で利便性が高い環境です。
Q7:駐車場の収容台数と利用条件は?
A:198台収容可能で、車高制限は2,100mmです。全日24時間営業で、定期契約車は24時間入出庫が可能なため、時間外業務や緊急時にも柔軟に対応できます。
Q8:BCP対策や環境認証について教えてください。
A:DBJ Green Building認証★★★★を取得し、環境性能の高さが第三者機関により評価されています。再エネ導入により持続可能性にも配慮しています。24時間有人管理体制と東京駅直結の複数駅アクセスにより、災害時の事業継続性にも優れた立地条件を備えています。
A:1963年竣工、1965年増築の鉄骨鉄筋コンクリート造で、2020年4月にリニューアル工事を実施し、共用部各所で継続的な改修が行われています。竣工から60年超を経た建物ですが、適切な維持管理と改修により安全性を維持しています。
Q2:空調設備について教えてください。
A:セントラル空調方式を採用しており、ビル全体で一元管理された空調システムにより快適な室内環境を提供しています。再エネ導入により環境負荷低減にも配慮した運用が行われています。
Q3:通信インフラの整備状況はどうですか?
A:光ファイバが敷設済みで、高速インターネットサービスの利用が可能です。現代のビジネスに必要な通信環境が整っており、DX推進にも対応できる基盤が提供されています。
Q4:エレベーターの台数と仕様を教えてください。
A:乗用エレベーター16台、貨物用エレベーター2台の計18台を備えており、地上9階建てのビル規模に対して充実した縦動線を確保しています。朝夕のピーク時にも円滑な移動が可能です。
Q5:セキュリティ体制について教えてください。
A:24時間有人管理体制を採用しており、夜間・休日の入退館はインターフォンによる呼出方式で厳格に管理されています。常駐管理により安全性と利便性を両立した運用が行われています。
Q6:共用施設にはどのようなものがありますか?
A:4階にテナント専用ラウンジを完備しており、就業者の休憩やリフレッシュに活用できます。貸会議室も設置されており、社内外のミーティングやセミナーに利用可能です。丸の内仲通りを中心に館内外に多数の飲食・物販店舗があり、ビジネスと生活の両面で利便性が高い環境です。
Q7:駐車場の収容台数と利用条件は?
A:198台収容可能で、車高制限は2,100mmです。全日24時間営業で、定期契約車は24時間入出庫が可能なため、時間外業務や緊急時にも柔軟に対応できます。
Q8:BCP対策や環境認証について教えてください。
A:DBJ Green Building認証★★★★を取得し、環境性能の高さが第三者機関により評価されています。再エネ導入により持続可能性にも配慮しています。24時間有人管理体制と東京駅直結の複数駅アクセスにより、災害時の事業継続性にも優れた立地条件を備えています。
地図
東京都千代田区丸の内3-3-1 地図をクリックして拡大できます
新東京ビル の外観イメージ
新東京ビルは、丸の内三丁目に位置する地上9階・地下4階・塔屋3階建ての鉄骨鉄筋コンクリート造の賃貸オフィスビルです。1963年竣工の歴史ある建物で、最高部31.0mの堂々としたファサードが丸の内仲通りに面して佇んでいます。2020年のリニューアルを経て、共用部各所で継続的な改修が進められており、クラシカルな外観と現代的な機能性を両立させた姿が特徴です。東京駅直結という立地により、複数路線からのアクセスが可能な都心の好立地を象徴する建物です。











新東京ビル の周辺イメージ
JR各線・丸ノ内線「東京駅」に直結し、有楽町駅、二重橋前駅、日比谷駅の主要4駅へのアクセスが可能な丸の内エリアの中心部に位置します。丸の内仲通りを中心に、丸ビル、新丸ビル、丸の内オアゾ、東京ビルTOKIA、二重橋スクエアなどの大型複合施設が集積し、600店舗以上の飲食・物販店舗が徒歩圏内に展開しています。皇居外苑や和田倉噴水公園も近く、都心でありながら緑豊かな環境が広がっています。


新東京ビル の募集終了区画
| 図面 | 階数 | 坪数 | 月額費用 | 坪単価 | 入居可能日 | |
|---|---|---|---|---|---|---|
![]() | B1階 | 80.04坪 | お問い合わせください | 募集終了 | 検討リスト | |
![]() | B1階 | 105.08坪 | お問い合わせください | 募集終了 | 検討リスト | |
![]() | B1階 | 53.02坪 | お問い合わせください | 募集終了 | 検討リスト | |
![]() | 1階 | 16.93坪 | お問い合わせください | 募集終了 | 検討リスト | |
![]() | 1階 | 53.17坪 | お問い合わせください | 募集終了 | 検討リスト | |
![]() | 1階 | 108.39坪 | お問い合わせください | 募集終了 | 検討リスト | |
![]() | 2階 | 6.65坪 | お問い合わせください | 募集終了 | 検討リスト | |
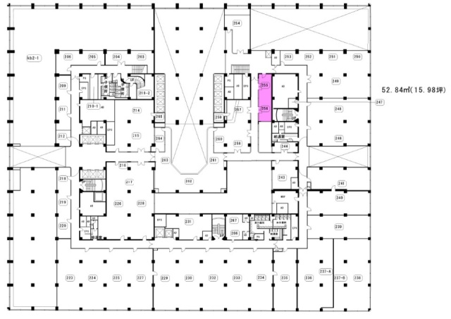
![]() | 2階 | 15.98坪 | お問い合わせください | 募集終了 | 検討リスト | |
![]() | 2階 | 16.14坪 | お問い合わせください | 募集終了 | 検討リスト | |
![]() | 2階 | 20.31坪 | お問い合わせください | 募集終了 | 検討リスト | |
![]() | 2階 | 33.49坪 | お問い合わせください | 募集終了 | 検討リスト | |
![]() | 2階 | 18.73坪 | お問い合わせください | 募集終了 | 検討リスト | |
![]() | 2階 | 7.91坪 | お問い合わせください | 募集終了 | 検討リスト | |
![]() | 2階 | 73.15坪 | お問い合わせください | 募集終了 | 検討リスト | |
![]() | 3階 | 105.82坪 | お問い合わせください | 募集終了 | 検討リスト | |
![]() | 3階 | 71.47坪 | お問い合わせください | 募集終了 | 検討リスト | |
![]() | 3階 | 38.89坪 | お問い合わせください | 募集終了 | 検討リスト | |
![]() | 3階 | 121.56坪 | お問い合わせください | 募集終了 | 検討リスト | |
![]() | 4階 | 177.90坪 | お問い合わせください | 募集終了 | 検討リスト | |
![]() | 4階 | 72.17坪 | お問い合わせください | 募集終了 | 検討リスト | |
![]() | 5階 | 34.62坪 | お問い合わせください | 募集終了 | 検討リスト | |
![]() | 5階 | 71.32坪 | お問い合わせください | 募集終了 | 検討リスト | |
![]() | 6階 | 22.82坪 | お問い合わせください | 募集終了 | 検討リスト | |
![]() | 6階 | 34.48坪 | お問い合わせください | 募集終了 | 検討リスト | |
![]() | 6階 | 34.59坪 | お問い合わせください | 募集終了 | 検討リスト | |
![]() | 7階 | 36.16坪 | お問い合わせください | 募集終了 | 検討リスト | |
![]() | 7階 | 36.16坪 | お問い合わせください | 募集終了 | 検討リスト | |
![]() | 7階 | 72.50坪 | お問い合わせください | 募集終了 | 検討リスト | |
![]() | 7階 | 22.74坪 | お問い合わせください | 募集終了 | 検討リスト | |
![]() | 7階 | 36.01坪 | お問い合わせください | 募集終了 | 検討リスト | |
![]() | 9階 | 14.61坪 | お問い合わせください | 募集終了 | 検討リスト | |
![]() | 9階 | 104.34坪 | お問い合わせください | 募集終了 | 検討リスト | |
![]() | 9階 | 27.40坪 | お問い合わせください | 募集終了 | 検討リスト | |
![]() | 9階 | 64.54坪 | お問い合わせください | 募集終了 | 検討リスト |
近くの物件紹介
千代田区のエリア
近くの駅
| 取扱態様 | 仲介 |
|---|---|
| 取扱会社 | 株式会社アドマイアー 東京都中央区日本橋3-2-3ユニバース第1ビル2F TEL. 03-5204-1031 宅地建物取引業免許 東京都知事(3)第94663号 マンション管理業免許 国土交通大臣(2)第034224号 賃貸住宅管理業免許 国土交通大臣(01)第005938号 |





























