人形町センタービル(中央区、日本橋人形町、人形町、水天宮前) の賃貸オフィス情報

- 所在地
- 東京都中央区日本橋人形町1-4-10
- 最寄り駅
- 人形町駅徒歩1分、水天宮前駅徒歩5分、小伝馬町駅徒歩8分
- 竣工
- 1994年
- 規模
- 地上9階・地下2階
- 構造
- SRC造(鉄骨鉄筋コンクリート造)
- 耐震基準
- 新耐震基準適合
- セキュリティ
- 機械警備(24時間監視)
- エントランス
- 平日開放
- エレベーター総数
- 2基
- 駐車場設備
- 有(機械式駐車場29台)
■人形町駅A6出口徒歩1分の駅直結好立地
■基準階110.67坪のワンフロアワンテナント設計
■個別空調とOAフロアで快適オフィス環境
■ガラス張りの洗練された外観デザイン
■機械式駐車場29台完備の利便性
■基準階110.67坪のワンフロアワンテナント設計
■個別空調とOAフロアで快適オフィス環境
■ガラス張りの洗練された外観デザイン
■機械式駐車場29台完備の利便性
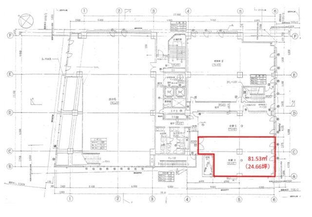
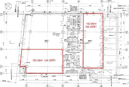
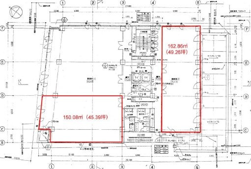
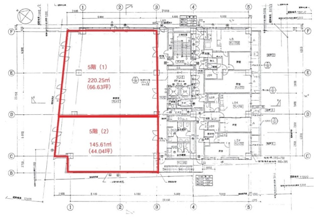
人形町センタービル の募集区画 (総募集面積 110.67坪)
※月額費用、坪単価 ともに共益費込・税別の価格です
建物に関するよくある質問と回答
Q1: 最寄り駅からの所要時間は?
A1: 東京メトロ日比谷線・都営浅草線「人形町駅」A6出口から徒歩1分、東京メトロ半蔵門線「水天宮前駅」8番出口から徒歩5分です。
Q2: 竣工年と築年数は?
A2: 1994年3月竣工、築31年の新耐震基準ビルです。
Q3: ビルの構造と規模は?
A3: SRC造(鉄骨鉄筋コンクリート造)、地上9階・地下2階建です。
Q4: エレベーターの台数は?
A4: 11人乗りエレベーターを2基設置しています。
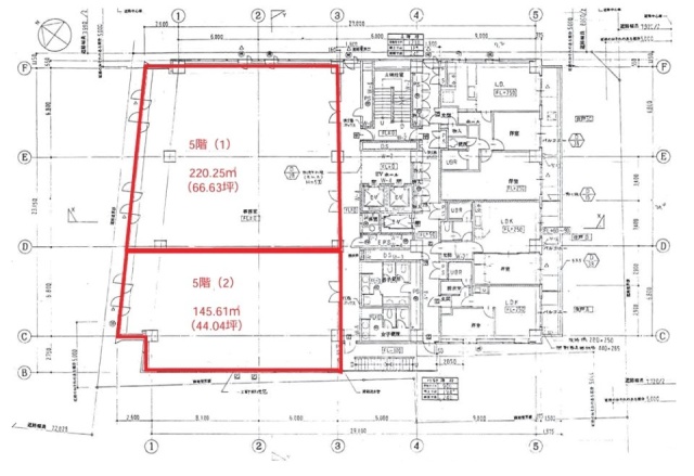
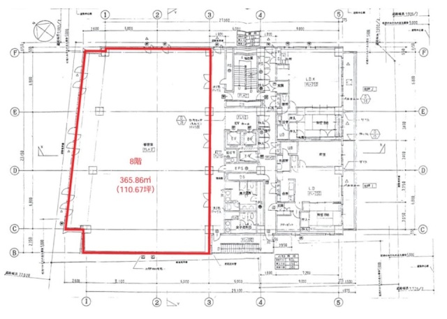
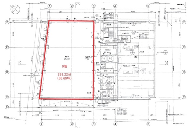
Q5: 基準階の面積は?
A5: 基準階は約110.67坪(365.86㎡)で、ワンフロア・ワンテナント設計です。
Q6: 空調設備の種類は?
A6: 個別空調システムを採用し、各フロアで温度管理が可能です。
Q7: OAフロアの有無は?
A7: OAフロア40~70mm完備で、配線・配管が容易です。
Q8: 駐車場はありますか?
A8: 機械式立体駐車場を29台分完備しています。
Q9: ビルの使用時間は?
A9: 24時間使用可能です。
Q10: セキュリティ体制は?
A10: 機械警備と有人警備を併用し、AEDも設置しています。
A1: 東京メトロ日比谷線・都営浅草線「人形町駅」A6出口から徒歩1分、東京メトロ半蔵門線「水天宮前駅」8番出口から徒歩5分です。
Q2: 竣工年と築年数は?
A2: 1994年3月竣工、築31年の新耐震基準ビルです。
Q3: ビルの構造と規模は?
A3: SRC造(鉄骨鉄筋コンクリート造)、地上9階・地下2階建です。
Q4: エレベーターの台数は?
A4: 11人乗りエレベーターを2基設置しています。
Q5: 基準階の面積は?
A5: 基準階は約110.67坪(365.86㎡)で、ワンフロア・ワンテナント設計です。
Q6: 空調設備の種類は?
A6: 個別空調システムを採用し、各フロアで温度管理が可能です。
Q7: OAフロアの有無は?
A7: OAフロア40~70mm完備で、配線・配管が容易です。
Q8: 駐車場はありますか?
A8: 機械式立体駐車場を29台分完備しています。
Q9: ビルの使用時間は?
A9: 24時間使用可能です。
Q10: セキュリティ体制は?
A10: 機械警備と有人警備を併用し、AEDも設置しています。
地図
東京都中央区日本橋人形町1-4-10 地図をクリックして拡大できます
人形町センタービル の外観イメージ
人形町センタービルは、アルミカーテンウォールのガラス張りファサードが特徴的な近代的外観を誇ります。角地に位置し、視認性が高く、シャープで洗練されたデザインが訪れる人々に好印象を与えます。グレー系の石貼りをベースにした堅実さと、ガラスの透明感が調和した外観は、歴史と風情ある人形町の街並みに映えるスタイリッシュなビルです。







人形町センタービル の周辺イメージ
人形町駅周辺は江戸の風情と現代の利便性が融合したエリア。甘酒横丁や水天宮などの名所が徒歩圏内にあり、多彩な飲食店や老舗が軒を連ねます。コンビニ、銀行、郵便局も近く、ビジネスに必要なサービスが充実。隅田川沿いの遊歩道も近く、落ち着いたビジネス環境が整っています。


人形町センタービル の募集終了区画
近くの物件紹介
中央区のエリア
近くの駅
| 取扱態様 | 仲介 |
|---|---|
| 取扱会社 | 株式会社アドマイアー 東京都中央区日本橋3-2-3ユニバース第1ビル2F TEL. 03-5204-1031 宅地建物取引業免許 東京都知事(3)第94663号 マンション管理業免許 国土交通大臣(2)第034224号 賃貸住宅管理業免許 国土交通大臣(01)第005938号 |




































