FORUM赤坂(港区、赤坂、溜池山王、六本木一丁目) の賃貸オフィス情報

- 所在地
- 東京都港区赤坂2-19-4
- 最寄り駅
- 溜池山王駅徒歩3分、六本木一丁目駅徒歩5分、赤坂駅徒歩8分
- 竣工
- 1991年
- 規模
- 地上11階・地下1階
- 構造
- SRC造(鉄骨鉄筋コンクリート造)
- 耐震基準
- 新耐震基準適合
- セキュリティ
- 機械警備(24時間監視)
- エントランス
- 平日開放
- エレベーター総数
- 2基
- 駐車場設備
- 要確認
FORUM赤坂は、六本木通り沿いの視認性と複数駅利用可能な交通利便性が魅力のオフィスビルです。基準階58坪の柱のない整形空間は、自由度の高いレイアウトが可能で、OAフロアや個別空調、光ファイバー、男女別トイレ、機械警備、機械式駐車場など、現代ビジネスに必要な設備が揃っています。新耐震基準対応で安全性も良好。周辺にはアークヒルズや銀行、コンビニ、飲食店が充実し、働くスタッフや来客にも配慮された環境です。利便性と快適性を重視する企業の拠点として、優れた選択肢となります。
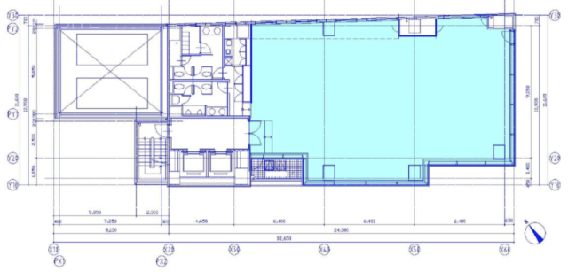
FORUM赤坂 の募集区画 (総募集面積 174.00坪)
| 図面 | 階数 | 坪数 | 月額費用 | 坪単価 | 入居可能日 | |
|---|---|---|---|---|---|---|
![]() | 3階 | 58.00坪 | お問い合わせください | 2026/1 | 検討リスト お問い合わせ | |
![]() | 6階 | 58.00坪 | お問い合わせください | 即時 | 検討リスト お問い合わせ | |
![]() | 7階 | 58.00坪 | お問い合わせください | 即時 | 検討リスト お問い合わせ |
※月額費用、坪単価 ともに共益費込・税別の価格です
地図
東京都港区赤坂2-19-4 地図をクリックして拡大できます
FORUM赤坂 の外観イメージ
FORUM赤坂は、白とグレーを基調としたシックで洗練された外観が特徴です。六本木通りに面し、堂々とした11階建てのフォルムが視認性の高さを際立たせます。エントランスはスタイリッシュなデザインで、数段の階段を上がると広がる開放的な空間が来訪者を迎えます。ガラスとパネルをバランス良く配した外壁は、都市的な雰囲気と落ち着きを演出。周辺のオフィス街や各国大使館とも調和し、ビジネスシーンにふさわしい高級感と安心感を与える外観です。














FORUM赤坂 の周辺イメージ
六本木通り沿いのため視認性・説明性が良好で、バス停も至近。周辺にはアークヒルズや赤坂アークヒルズ出張所、みずほ銀行ATM、郵便局、ナチュラルローソンなどが徒歩5分圏内に揃い、ビジネス・日常の利便性が高い環境です。複数路線の駅が利用でき、赤坂・溜池山王・六本木一丁目・国会議事堂前・永田町駅が徒歩圏内。周辺はオフィスビルや各国大使館が集まり、飲食店やカフェも豊富で、ランチや打ち合わせにも便利な都市型ビジネスエリアです。


FORUM赤坂 の募集終了区画
近くの物件紹介
港区のエリア
近くの駅
| 取扱態様 | 仲介 |
|---|---|
| 取扱会社 | 株式会社アドマイアー 東京都中央区日本橋3-2-3ユニバース第1ビル2F TEL. 03-5204-1031 宅地建物取引業免許 東京都知事(3)第94663号 マンション管理業免許 国土交通大臣(2)第034224号 賃貸住宅管理業免許 国土交通大臣(01)第005938号 |



























