溜池山王駅の賃貸オフィス・貸事務所情報
東京メトロ銀座線・南北線が乗り入れ、丸ノ内線・千代田線の国会議事堂前駅とも直結する「溜池山王駅」。赤坂と虎ノ門の境界に位置し、政治・経済の深部と接する極めて高い戦略性を誇ります。大手企業の本社や外資系ホテルが立ち並ぶ国際色豊かな環境で、高い機動力と品格を兼ね備えたビジネス拠点です。
検索結果 155 件
霞が関コモンゲート西館(千代田区、霞が関、虎ノ門、霞ケ関)
- 所在地
- 東京都千代田区霞が関3-2-1
- 最寄り駅
- 虎ノ門駅徒歩1分、霞ケ関駅徒歩2分、国会議事堂前駅徒歩6分
- 竣工
- 2007年
- 規模
- 地上38階・地下3階
- 耐震基準
- 新耐震基準適合・制震構造
- セキュリティ
- 機械警備・有人管理(24時間体制)
- 駐車場設備
- 有(機械式54台 自走式69台)
- 設備
- 非常用発電機、 貸会議室、 喫煙室、 トイレ男女別
霞が関コモンゲート西館 の募集区画 (総募集面積 330.14坪)
※月額費用、坪単価 ともに共益費込・税別の価格です
赤坂エイトワンビル(千代田区、永田町、赤坂見附、赤坂)
- 所在地
- 東京都千代田区永田町2-13-5
- 最寄り駅
- 赤坂見附駅徒歩1分、永田町駅徒歩6分、赤坂駅徒歩6分
- 竣工
- 1985年
- 規模
- 地上8階・地下3階
- 耐震基準
- 新耐震基準適合
- セキュリティ
- 機械警備・有人管理(24時間体制)
- 駐車場設備
- 要確認
- 設備
- トイレ男女別
赤坂エイトワンビル の募集区画 (総募集面積 515.59坪)
※月額費用、坪単価 ともに共益費込・税別の価格です
合人社東京永田町ビル(千代田区、永田町、赤坂見附、溜池山王)
- 所在地
- 東京都千代田区永田町1-11-28
- 最寄り駅
- 永田町駅徒歩1分、赤坂見附駅徒歩5分、溜池山王駅徒歩8分
- 竣工
- 1967年
- 規模
- 地上9階・地下2階
- 耐震基準
- 耐震補強済み(新耐震相当)
- セキュリティ
- 機械警備(24時間監視)
- 駐車場設備
- 有(自走式・機械式併用/最大16台)
- 設備
- トイレ男女別
合人社東京永田町ビル の募集区画 (総募集面積 23.47坪)
※月額費用、坪単価 ともに共益費込・税別の価格です
永田町SRビル(千代田区、永田町、溜池山王、赤坂見附)
- 所在地
- 東京都千代田区永田町2-12-8
- 最寄り駅
- 溜池山王駅徒歩3分、赤坂見附駅徒歩4分、永田町駅徒歩5分
- 竣工
- 2011年
- 規模
- 地上8階
- 耐震基準
- 新耐震基準適合
- セキュリティ
- 機械警備(24時間監視)
- 駐車場設備
- 無
- 設備
- トイレ男女別
永田町SRビル の募集区画 (総募集面積 25.80坪)
※月額費用、坪単価 ともに共益費込・税別の価格です
アイオス永田町(Aios永田町)(千代田区、永田町、赤坂見附、溜池山王)
- 所在地
- 東京都千代田区永田町2-17-17
- 最寄り駅
- 永田町駅徒歩3分、赤坂見附駅徒歩7分、溜池山王駅徒歩7分
- 竣工
- 2013年
- 規模
- 地上7階・地下1階
- 耐震基準
- 新耐震基準適合・免震構造
- セキュリティ
- 機械警備(24時間監視)
- 駐車場設備
- 有(駐車場21台(時間貸・身障者用・荷捌用含む))
- 設備
- 24時間(要ICカード)、 貸会議室、 屋上テラス(ルーフトップテラス)、 トイレ男女別
アイオス永田町(Aios永田町) の募集区画 (総募集面積 14.65坪)
※月額費用、坪単価 ともに共益費込・税別の価格です
山王グランドビル(千代田区、永田町、赤坂見附、溜池山王)
- 所在地
- 東京都千代田区永田町2-14-2
- 最寄り駅
- 赤坂見附駅徒歩1分、永田町駅徒歩3分、溜池山王駅徒歩7分
- 竣工
- 1966年
- 規模
- 地上9階・地下2階
- 耐震基準
- 耐震補強済み(新耐震相当)
- セキュリティ
- 機械警備・有人管理(24時間体制)
- 駐車場設備
- 有(95台)
- 設備
- 貸会議室、 トイレ男女別
山王グランドビル の募集区画 (総募集面積 220.28坪)
| 図面 | 階数 | 坪数 | 月額費用 | 坪単価 | 入居可能日 | |
|---|---|---|---|---|---|---|
![]() | 2階 | 46.28坪 | お問い合わせください | 即時 | 検討リスト お問い合わせ | |
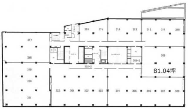
![]() | 3階 | 81.04坪 | お問い合わせください | 即時 | 検討リスト お問い合わせ | |
![]() | B1階 | 46.19坪 | お問い合わせください | 即時 | 検討リスト お問い合わせ | |
![]() | 1階 | 46.77坪 | お問い合わせください | 2026/5/1 | 検討リスト お問い合わせ |
※月額費用、坪単価 ともに共益費込・税別の価格です
中村ビル(港区、赤坂、溜池山王)
- 所在地
- 東京都港区赤坂2-12-9
- 最寄り駅
- 溜池山王駅徒歩2分、赤坂駅徒歩5分
- 竣工
- 1976年
- 規模
- 地上5階
- 駐車場設備
- 無
中村ビル の募集区画 (総募集面積 20.00坪)
※月額費用、坪単価 ともに共益費込・税別の価格です
グローヴビル(港区、赤坂、溜池山王、六本木一丁目)
- 所在地
- 東京都港区赤坂2-17-46
- 最寄り駅
- 溜池山王駅徒歩4分、赤坂駅徒歩4分、六本木一丁目駅徒歩9分
- 竣工
- 1986年
- 規模
- 地上4階・地下1階
- 耐震基準
- 新耐震基準適合
- セキュリティ
- 機械警備(24時間監視)
- 駐車場設備
- 有(平面式4台 【バイク置場】1台)
- 設備
- 24時間(要ICカード)、 トイレ男女別
グローヴビル の募集区画 (総募集面積 25.19坪)
※月額費用、坪単価 ともに共益費込・税別の価格です
楽ビル(旧 河村ビル)(港区、赤坂、赤坂見附、溜池山王)
- 所在地
- 東京都港区赤坂3-21-6
- 最寄り駅
- 赤坂見附駅徒歩2分、溜池山王駅徒歩9分、赤坂駅徒歩8分
- 竣工
- 1969年
- 規模
- 地上6階
- セキュリティ
- 機械警備(24時間監視)
- 駐車場設備
- 要確認
楽ビル(旧 河村ビル) の募集区画 (総募集面積 80.57坪)
| 図面 | 階数 | 坪数 | 月額費用 | 坪単価 | 入居可能日 | |
|---|---|---|---|---|---|---|
![]() | 2階 | 15.12坪 | 343,637円 | 22,727円 | 即時 | 検討リスト お問い合わせ |
![]() | 3階 | 37.93坪 | 827,564円 | 21,818円 | 2026/3 | 検討リスト お問い合わせ |
![]() | 5階 | 27.52坪 | 587,928円 | 21,364円 | 即時 | 検討リスト お問い合わせ |
※月額費用、坪単価 ともに共益費込・税別の価格です
関ビル(港区、赤坂、六本木一丁目、溜池山王)
- 所在地
- 東京都港区赤坂2-19-4
- 最寄り駅
- 六本木一丁目駅徒歩3分、溜池山王駅徒歩5分、赤坂駅徒歩10分
- 竣工
- 1990年
- 規模
- 地上9階・地下1階
- 耐震基準
- 新耐震基準適合
- セキュリティ
- 共用部警備なし(簡易管理)
- 駐車場設備
- 要確認
関ビル の募集区画 (総募集面積 17.38坪)
※月額費用、坪単価 ともに共益費込・税別の価格です
NBF赤坂山王スクエアビル(港区、赤坂、溜池山王、国会議事堂前)
- 所在地
- 東京都港区赤坂2-2-12
- 最寄り駅
- 溜池山王駅徒歩1分、国会議事堂前駅徒歩1分、赤坂駅徒歩8分
- 竣工
- 1989年
- 規模
- 地上8階・地下1階
- 耐震基準
- 新耐震基準適合
- セキュリティ
- 機械警備(24時間監視)
- 駐車場設備
- 有(17台)
- 設備
- トイレ男女別
NBF赤坂山王スクエアビル の募集区画 (総募集面積 424.94坪)
| 図面 | 階数 | 坪数 | 月額費用 | 坪単価 | 入居可能日 | |
|---|---|---|---|---|---|---|
![]() | 5階 | 212.47坪 | お問い合わせください | 2026/4/1 | 検討リスト お問い合わせ | |
![]() | 6階 | 212.47坪 | お問い合わせください | 2026/4/1 | 検討リスト お問い合わせ |
※月額費用、坪単価 ともに共益費込・税別の価格です
細川ビル(港区、赤坂、溜池山王、六本木一丁目)
- 所在地
- 東京都港区赤坂1-1-17
- 最寄り駅
- 溜池山王駅徒歩3分、六本木一丁目駅徒歩7分、赤坂駅徒歩10分
- 竣工
- 1958年
- 規模
- 地上10階
- 駐車場設備
- 要確認
細川ビル の募集区画 (総募集面積 13.98坪)
※月額費用、坪単価 ともに共益費込・税別の価格です
溜池山王葵ビル(港区、赤坂、溜池山王、国会議事堂前)
- 所在地
- 東京都港区赤坂2-8-11
- 最寄り駅
- 溜池山王駅徒歩1分、国会議事堂前駅徒歩7分、赤坂駅徒歩5分
- 竣工
- 1969年
- 規模
- 地上10階・地下1階
- セキュリティ
- 機械警備(24時間監視)
- 駐車場設備
- 要確認
溜池山王葵ビル の募集区画 (総募集面積 64.53坪)
| 図面 | 階数 | 坪数 | 月額費用 | 坪単価 | 入居可能日 | |
|---|---|---|---|---|---|---|
![]() | 6階 | 16.42坪 | 295,560円 | 18,000円 | 相談 | 検討リスト お問い合わせ |
![]() | 1階 | 39.69坪 | 1,190,700円 | 30,000円 | 相談 | 検討リスト お問い合わせ |
![]() | 4階 | 8.42坪 | 180,000円 | 21,378円 | 即時 | 検討リスト お問い合わせ |
※月額費用、坪単価 ともに共益費込・税別の価格です
AKASAKA SUGAIビル(港区、赤坂、溜池山王、六本木一丁目)
- 所在地
- 東京都港区赤坂2-20-19
- 最寄り駅
- 溜池山王駅徒歩4分、赤坂駅徒歩5分、六本木一丁目駅徒歩9分
- 竣工
- 1993年
- 規模
- 地上4階・地下1階
- 耐震基準
- 新耐震基準適合
- セキュリティ
- 共用部警備なし(簡易管理)
- 駐車場設備
- 無
AKASAKA SUGAIビル の募集区画 (総募集面積 67.16坪)
| 図面 | 階数 | 坪数 | 月額費用 | 坪単価 | 入居可能日 | |
|---|---|---|---|---|---|---|
![]() | 2階 | 51.92坪 | 934,560円 | 18,000円 | 2026/8 | 検討リスト お問い合わせ |
![]() | 3階 | 15.24坪 | 274,320円 | 18,000円 | 2026/6 | 検討リスト お問い合わせ |
※月額費用、坪単価 ともに共益費込・税別の価格です
陶香堂(とうこうどう)ビル(港区、赤坂、赤坂見附、永田町)
- 所在地
- 東京都港区赤坂3-21-12
- 最寄り駅
- 赤坂見附駅徒歩2分、永田町駅徒歩5分、赤坂駅徒歩5分
- 竣工
- 1990年
- 規模
- 地上7階・地下1階
- 耐震基準
- 新耐震基準適合
- セキュリティ
- 機械警備(24時間監視)
- 駐車場設備
- 無
- 設備
- 24時間(要ICカード)、 トイレ男女別
陶香堂(とうこうどう)ビル の募集区画 (総募集面積 36.00坪)
※月額費用、坪単価 ともに共益費込・税別の価格です
福吉坂ビル(港区、赤坂、溜池山王、六本木一丁目)
- 所在地
- 東京都港区赤坂2-17-44
- 最寄り駅
- 溜池山王駅徒歩9分、赤坂駅徒歩5分、六本木一丁目駅徒歩7分
- 竣工
- 1987年
- 規模
- 地上4階・地下1階
- 耐震基準
- 新耐震基準適合
- セキュリティ
- 機械警備(24時間監視)
- 駐車場設備
- 要確認
福吉坂ビル の募集区画 (総募集面積 53.48坪)
※月額費用、坪単価 ともに共益費込・税別の価格です
赤坂TKビル(港区、赤坂、溜池山王、赤坂見附)
- 所在地
- 東京都港区赤坂2-16-6
- 最寄り駅
- 赤坂駅徒歩2分、溜池山王駅徒歩2分、赤坂見附駅徒歩11分
- 竣工
- 1989年
- 規模
- 地上4階・地下1階
- 耐震基準
- 新耐震基準適合
- 駐車場設備
- 要確認
赤坂TKビル の募集区画 (総募集面積 16.17坪)
※月額費用、坪単価 ともに共益費込・税別の価格です
南部坂アネックス(港区、赤坂、六本木一丁目、溜池山王)
- 所在地
- 東京都港区赤坂2-22-19
- 最寄り駅
- 六本木一丁目駅徒歩3分、赤坂駅徒歩6分、溜池山王駅徒歩6分
- 竣工
- 1975年
- 規模
- 地上6階・地下2階
- 駐車場設備
- 要確認
南部坂アネックス の募集区画 (総募集面積 8.62坪)
※月額費用、坪単価 ともに共益費込・税別の価格です
ゴールド赤坂(港区、赤坂、溜池山王、永田町)
- 所在地
- 東京都港区赤坂3-12-11
- 最寄り駅
- 赤坂駅徒歩2分、溜池山王駅徒歩7分、永田町駅徒歩8分
- 竣工
- 1988年
- 規模
- 地上8階・地下1階
- 耐震基準
- 新耐震基準適合
- 駐車場設備
- 要確認
ゴールド赤坂 の募集区画 (総募集面積 17.58坪)
※月額費用、坪単価 ともに共益費込・税別の価格です
ユタカ産業ビル(港区、赤坂、赤坂見附、溜池山王)
- 所在地
- 東京都港区赤坂3-16-5
- 最寄り駅
- 赤坂駅徒歩3分、赤坂見附駅徒歩5分、溜池山王駅徒歩5分
- 竣工
- 1973年
- 規模
- 地上5階・地下1階
- 駐車場設備
- 要確認
ユタカ産業ビル の募集区画 (総募集面積 14.20坪)
※月額費用、坪単価 ともに共益費込・税別の価格です
FORUM赤坂(港区、赤坂、溜池山王、六本木一丁目)
- 所在地
- 東京都港区赤坂2-19-4
- 最寄り駅
- 溜池山王駅徒歩3分、六本木一丁目駅徒歩3分、赤坂駅徒歩7分
- 竣工
- 1991年
- 規模
- 地上11階・地下1階
- 耐震基準
- 新耐震基準適合
- セキュリティ
- 機械警備(24時間監視)
- 駐車場設備
- 要確認
FORUM赤坂 の募集区画 (総募集面積 174.00坪)
| 図面 | 階数 | 坪数 | 月額費用 | 坪単価 | 入居可能日 | |
|---|---|---|---|---|---|---|
![]() | 3階 | 58.00坪 | お問い合わせください | 即時 | 検討リスト お問い合わせ | |
![]() | 6階 | 58.00坪 | お問い合わせください | 即時 | 検討リスト お問い合わせ | |
![]() | 7階 | 58.00坪 | お問い合わせください | 即時 | 検討リスト お問い合わせ |
※月額費用、坪単価 ともに共益費込・税別の価格です
DeLCCS溜池山王(港区、赤坂、溜池山王、国会議事堂前)
- 所在地
- 東京都港区赤坂2-11-1
- 最寄り駅
- 溜池山王駅徒歩1分、国会議事堂前駅徒歩5分、赤坂駅徒歩7分
- 竣工
- 1987年
- 規模
- 地上8階・地下1階
- 耐震基準
- 新耐震基準適合
- セキュリティ
- 機械警備(24時間監視)
- 駐車場設備
- 無
- 設備
- 24時間(要ICカード)、 トイレ男女別
DeLCCS溜池山王 の募集区画 (総募集面積 86.33坪)
| 図面 | 階数 | 坪数 | 月額費用 | 坪単価 | 入居可能日 | |
|---|---|---|---|---|---|---|
![]() | 3階 | 32.39坪 | 842,140円 | 26,000円 | 2026/4 | 検討リスト お問い合わせ |
![]() | 4階 | 32.39坪 | 842,140円 | 26,000円 | 2026/4 | 検討リスト お問い合わせ |
![]() | 8階 | 21.55坪 | 600,000円 | 27,842円 | 2026/4 | 検討リスト お問い合わせ |
※月額費用、坪単価 ともに共益費込・税別の価格です
アローム赤坂(港区、赤坂、溜池山王、六本木一丁目)
- 所在地
- 東京都港区赤坂2-21-12
- 最寄り駅
- 溜池山王駅徒歩4分、六本木一丁目駅徒歩6分、赤坂駅徒歩7分
- 竣工
- 1989年
- 規模
- 地上5階
- 耐震基準
- 新耐震基準適合
- セキュリティ
- 機械警備(24時間監視)
- 駐車場設備
- 無
- 設備
- トイレ男女別
アローム赤坂 の募集区画 (総募集面積 23.61坪)
※月額費用、坪単価 ともに共益費込・税別の価格です
赤坂1丁目センタービル(港区、赤坂、溜池山王、国会議事堂前)
- 所在地
- 東京都港区赤坂1-11-30
- 最寄り駅
- 溜池山王駅徒歩1分、国会議事堂前駅徒歩1分、虎ノ門ヒルズ駅徒歩9分
- 竣工
- 1988年
- 規模
- 地上14階・地下2階
- 耐震基準
- 新耐震基準適合
- セキュリティ
- 機械警備・有人管理(24時間体制)
- 駐車場設備
- 有(34台)
- 設備
- 非接触ICカード、 リフレッシュコーナー
赤坂1丁目センタービル の募集区画 (総募集面積 246.20坪)
※月額費用、坪単価 ともに共益費込・税別の価格です
アーク森ビル(港区、赤坂、六本木一丁目、溜池山王)
- 所在地
- 東京都港区赤坂1-12-32
- 最寄り駅
- 六本木一丁目駅徒歩2分、溜池山王駅徒歩4分、神谷町駅徒歩8分
- 竣工
- 1986年
- 規模
- 地上37階・地下4階
- 耐震基準
- 新耐震基準適合
- セキュリティ
- 機械警備(24時間監視)
- 駐車場設備
- 有
- 設備
- 非常用発電機、 リニューアル済み、 防災・BCP、 省エネ・環境配慮
アーク森ビル の募集区画 (総募集面積 1,218.90坪)
| 図面 | 階数 | 坪数 | 月額費用 | 坪単価 | 入居可能日 | |
|---|---|---|---|---|---|---|
![]() | 14階 | 411.50坪 | お問い合わせください | 2026/6/上 | 検討リスト お問い合わせ | |
![]() | 15階 | 807.40坪 | お問い合わせください | 2027/4/上 | 検討リスト お問い合わせ |
※月額費用、坪単価 ともに共益費込・税別の価格です
赤坂溜池タワー(港区、赤坂、溜池山王、国会議事堂前)
- 所在地
- 東京都港区赤坂2-17-7
- 最寄り駅
- 溜池山王駅徒歩4分、赤坂駅徒歩4分、国会議事堂前駅徒歩8分
- 竣工
- 2000年
- 規模
- 地上26階・地下2階
- 耐震基準
- 新耐震基準適合
- セキュリティ
- 機械警備・有人管理(24時間体制)
- 駐車場設備
- 有
- 設備
- 屋上テラス(ルーフトップテラス)、 荷捌き場(搬出入ヤード)、 リニューアル済み、 貨物EVあり、 トイレ男女別、 防災・BCP
赤坂溜池タワー の募集区画 (総募集面積 577.30坪)
※月額費用、坪単価 ともに共益費込・税別の価格です
赤坂周山ビル(港区、赤坂、溜池山王、赤坂見附)
- 所在地
- 東京都港区赤坂5-5-13
- 最寄り駅
- 赤坂駅徒歩3分、溜池山王駅徒歩9分、赤坂見附駅徒歩10分
- 竣工
- 1977年
- 規模
- 地上8階
- セキュリティ
- 機械警備(24時間監視)
- 駐車場設備
- 無
赤坂周山ビル の募集区画 (総募集面積 64.62坪)
※月額費用、坪単価 ともに共益費込・税別の価格です
赤坂フェニックスビル(港区、赤坂、溜池山王、赤坂見附)
- 所在地
- 東京都港区赤坂2-17-69
- 最寄り駅
- 赤坂駅徒歩3分、溜池山王駅徒歩4分、赤坂見附駅徒歩9分
- 竣工
- 2008年
- 規模
- 地上7階
- 耐震基準
- 新耐震基準適合
- セキュリティ
- 機械警備(24時間監視)
- 駐車場設備
- 無
- 設備
- トイレ男女別
赤坂フェニックスビル の募集区画 (総募集面積 37.46坪)
※月額費用、坪単価 ともに共益費込・税別の価格です
赤坂光映ビル(港区、赤坂、赤坂見附、永田町)
- 所在地
- 東京都港区赤坂3-2-6
- 最寄り駅
- 赤坂見附駅徒歩1分、永田町駅徒歩3分、溜池山王駅徒歩7分
- 竣工
- 1972年
- 規模
- 地上8階・地下1階
- 耐震基準
- 耐震補強済み(新耐震相当)
- セキュリティ
- 機械警備(24時間監視)
- 駐車場設備
- 無
- 設備
- トイレ男女別
赤坂光映ビル の募集区画 (総募集面積 46.07坪)
※月額費用、坪単価 ともに共益費込・税別の価格です
赤坂中西ビル別館(港区、赤坂、永田町、溜池山王)
- 所在地
- 東京都港区赤坂4-1-4
- 最寄り駅
- 赤坂駅徒歩7分、永田町駅徒歩10分、溜池山王駅徒歩10分
- 竣工
- 1991年
- 規模
- 地上3階
- 耐震基準
- 新耐震基準適合
- セキュリティ
- 有人管理(警備員常駐)
- 駐車場設備
- 無
赤坂中西ビル別館 の募集区画 (総募集面積 40.72坪)
※月額費用、坪単価 ともに共益費込・税別の価格です
いちご赤坂Village(港区、赤坂、赤坂見附、溜池山王)
- 所在地
- 東京都港区赤坂3-17-1
- 最寄り駅
- 赤坂見附駅徒歩3分、赤坂駅徒歩4分、溜池山王駅徒歩8分
- 竣工
- 2009年
- 規模
- 地上8階・地下1階
- 耐震基準
- 新耐震基準適合
- セキュリティ
- 機械警備(24時間監視)
- 駐車場設備
- 有
- 設備
- トイレ男女別
いちご赤坂Village の募集区画 (総募集面積 90.72坪)
※月額費用、坪単価 ともに共益費込・税別の価格です
近文(キンブン)ビル(港区、赤坂、溜池山王、六本木)
- 所在地
- 東京都港区赤坂6-14-3
- 最寄り駅
- 赤坂駅徒歩5分、溜池山王駅徒歩12分、六本木駅徒歩10分
- 竣工
- 1970年
- 規模
- 地上6階・地下1階
- 耐震基準
- 耐震補強済み(新耐震相当)
- セキュリティ
- 有人管理(警備員常駐)
- 駐車場設備
- 有
- 設備
- トイレ男女別
近文(キンブン)ビル の募集区画 (総募集面積 81.75坪)
※月額費用、坪単価 ともに共益費込・税別の価格です
【エリアのオフィス市況】 「山王パークタワー」などの超大型ランドマークビルから、赤坂エリア特有のデザイン性に優れた中型オフィスまで幅広く揃います。官公庁や大手企業への近接性を重視する士業、コンサル、金融関係の需要が非常に高いマーケットです。賃料は利便性に比例して高位ですが、企業の社会的地位を確固たるものにする信頼の厚いエリアです。
【交通アクセスと採用メリット】 計4路線が実質利用可能で、都内主要駅へ数分でアプローチできる圧倒的なフットワークを誇ります。広域からの人材募集において絶大なアドバンテージを発揮。周辺には洗練された飲食店が多く、ビジネスランチや会食にも困りません。格式高い街並みと卓越した利便性は、従業員の満足度を高め、組織の質を向上させる理想的な環境です。


























































































































































































































































































































































































































