ワイ・エヌ銀座ビル(中央区、銀座、築地市場、東銀座) の賃貸オフィス情報

- 所在地
- 東京都中央区銀座8-14-11
- 最寄り駅
- 築地市場駅徒歩4分、東銀座駅徒歩6分、新橋駅徒歩9分
- 竣工
- 1990年
- 規模
- 地上10階
- 構造
- SRC造(鉄骨鉄筋コンクリート造)
- 耐震基準
- 新耐震基準適合
- セキュリティ
- 機械警備(24時間監視)
- エントランス
- 平日開放(【平日】6:30~20:00/開 【土日祝日】/閉 ※時間外は正面エントランスよりセキュリティカードにて入館可)
- エレベーター総数
- 1基(乗用1基 9人乗 600kg(三菱)/EV不停止機能有)
- 駐車場設備
- 無
- 設備
- 24時間(要ICカード)
ワイ・エヌ銀座ビル の物件特徴・おすすめポイント
■竹中工務店が設計・施工を担当した、高い信頼性を誇るオフィスビルです。
■1フロア1テナントの構成により、独立性とプライバシーを確保できます。
■ALSOKの機械警備とEV不停止機能により、強固なセキュリティを実現します。
■銀座八丁目の落ち着いた環境で、集中して業務に取り組むことが可能です。
ワイ・エヌ銀座ビル の募集区画 (総募集面積 20.96坪)
※月額費用、坪単価 ともに共益費込・税別の価格です
建物に関するよくある質問と回答
メインの最寄り駅である都営大江戸線の築地市場駅からは、A3出口を出て新橋・汐留方面へ進み、徒歩4分の道順です。また、日比谷線の東銀座駅からも徒歩6分、JR新橋駅からも徒歩9分と、複数のターミナル駅からスムーズにアクセスできる利便性の高い立地にあります。
Q2. ワイ・エヌ銀座ビルの耐震性能・構造はどうなっていますか?
1989年3月に竣工した建物であり、現行の新耐震基準に適合しています。構造は鉄骨造を採用しており、日本を代表する大手ゼネコンである株式会社竹中工務店が設計と施工を一貫して手掛けた、安全性と品質に配慮されたオフィスビルとなっています。
Q3. ワイ・エヌ銀座ビルの室内スペック(天井高・床仕様・空調など)について教えてください。
室内は各フロアに個別空調が導入されており、テナントごとに自由な温度設定が可能です。床仕様については1WAYのフロアダクト配線方式を採用しているため、電話やPCの配線を整理して配置することができます。窓面からの採光もあり、業務に集中しやすい環境が整っています。
Q4. ワイ・エヌ銀座ビルのエントランス開放時間と入館方法を教えてください。
正面入口の開放時間は平日の6:30から20:00までとなっています。土日祝日は閉鎖されますが、開放時間外であっても正面エントランスよりセキュリティカードを使用することで、24時間の入退館が可能な管理体制が敷かれています。
Q5. ワイ・エヌ銀座ビルのセキュリティ体制はどうなっていますか?
ALSOKによる機械警備システムを導入しています。加えて、エレベーターには不停止機能が備わっており、入居フロアへの不審者の侵入を制限できるため、機密情報を扱う企業やプライバシーを重視する組織にとっても安全な就業環境が提供されています。
Q6. ワイ・エヌ銀座ビルのインターネット環境はどうなっていますか?
光ケーブルが共用部のMDF(主配線盤)まで引き込まれています。各入居区画への配線工事を行うことで、高速通信を必要とするデスクワークやオンライン会議にも対応可能なITインフラをスムーズに構築することが可能です。
Q7. ワイ・エヌ銀座ビルの駐車場はありますか?
本物件の敷地内に駐車場は設置されていません。周辺には複数のコインパーキングや時間貸し駐車場が点在しているため、社用車での来客や一時的な車両利用が必要な際にも、近隣の駐車施設を活用することで対応が可能です。
Q8. ワイ・エヌ銀座ビルの管理形態について教えてください。
地上10階建ての規模ながら、1フロアの面積を有効に活用できる設計となっており、建物全体の清掃や設備の保守点検も定期的に実施されています。大手ゼネコン施工物件ならではの、質の高い維持管理が期待できるビジネス拠点です。
地図
東京都中央区銀座8-14-11 地図をクリックして拡大できます
ワイ・エヌ銀座ビル の外観イメージ
1989年3月に竣工した地上10階建てのオフィスビルです。竹中工務店の設計・施工による意匠は、銀座の街並みに調和するシンプルかつ洗練されたフォルムが特徴です。10階建てという高さがありながらも、110平米超の敷地を最大限に活かしたスマートな佇まいは、企業の顔として相応しい清潔感と誠実な印象を来客に与えます。エントランス周りは落ち着きのあるデザインでまとめられており、銀座八丁目の閑静な通りにおいて、確かな存在感と信頼性を放つハイグレードな賃貸オフィスビルです。





ワイ・エヌ銀座ビル の周辺イメージ
銀座八丁目の南側に位置し、汐留の再開発エリアや築地エリアにもほど近い、ビジネスの結節点ともいえる環境です。周辺には「銀座郵便局」や金融機関の支店が点在し、事務手続きの利便性も高い立地です。ランチ環境は極めて豊富で、銀座の老舗飲食店から築地場外市場の新鮮な店舗まで、幅広い選択肢を日々楽しめます。コンビニエンスストアや「肉のハナマサ銀座店」なども至近にあり、急な買い出しや日常の利便性も抜群です。華やかな銀座の利便性を享受しつつ、落ち着いて働ける優れた周辺環境が整っています。


ワイ・エヌ銀座ビル のアクセス・ロケーション
中央区の主要エリアを結ぶ場所に位置し、複数路線を使い分けることで都内全域へダイレクトに移動できる機動力に優れたロケーションです。
■ 駅徒歩分数 ・都営大江戸線 「築地市場」 駅 A3出口より徒歩4分 ・東京メトロ日比谷線・都営浅草線 「東銀座」 駅 徒歩6分 ・東京メトロ銀座線・JR各線 「新橋」 駅 徒歩9分 ・東京メトロ銀座線・丸ノ内線・日比谷線 「銀座」 駅 徒歩10分
■ 主要エリアへのアクセス 都営大江戸線を利用して六本木・新宿方面へ、日比谷線や銀座線を使って霞ヶ関・大手町・渋谷方面へ、さらにはJR新橋駅から品川や東京駅へも短時間でアクセス可能です。都心の主要ビジネス街を網羅する優れた交通網が、営業活動や顧客訪問の効率を最大化させます。
■ エリア特性 銀座八丁目は、世界的な商業地である銀座の利便性と、ビジネス街である汐留・新橋、そして活気ある築地の境界に位置します。一流のイメージを持ちながらも、周辺は比較的落ち着いたオフィス環境となっており、企業の信頼性を高めるアドレスとして、士業やコンサルティング業、情報通信業など幅広い業種に適したビジネスエリアです。
ワイ・エヌ銀座ビル の募集終了区画
| 図面 | 階数 | 坪数 | 月額費用 | 坪単価 | 入居可能日 | |
|---|---|---|---|---|---|---|
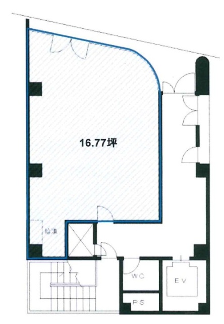
![]() | 1階 | 16.77坪 | お問い合わせください | 募集終了 | 検討リスト | |
![]() | 2階 | 20.96坪 | お問い合わせください | 募集終了 | 検討リスト | |
![]() | 3階 | 20.96坪 | お問い合わせください | 募集終了 | 検討リスト | |
![]() | 4階 | 20.96坪 | お問い合わせください | 募集終了 | 検討リスト | |
![]() | 5階 | 20.96坪 | お問い合わせください | 募集終了 | 検討リスト | |
![]() | 6階 | 20.96坪 | お問い合わせください | 募集終了 | 検討リスト | |
![]() | 7階 | 20.96坪 | お問い合わせください | 募集終了 | 検討リスト | |
![]() | 8階 | 20.96坪 | お問い合わせください | 募集終了 | 検討リスト | |
![]() | 9階 | 20.96坪 | お問い合わせください | 募集終了 | 検討リスト |
ワイ・エヌ銀座ビル が選ばれる理由
■ 竹中工務店施工による高い信頼性とブランド力 日本を代表するゼネコンが手掛けたビルであるという事実は、入居企業の社会的信用を補完する重要な要素となります。質の高い建築構造と洗練されたデザインは、来客や取引先に対しても誠実で安定した企業イメージを印象付けます。
■ 3駅複数路線利用による機動的なビジネス展開 築地市場、東銀座、新橋の各駅を徒歩圏内に収める立地は、都内全域へのアクセスを容易にします。営業効率の向上はもちろん、広域からの従業員採用を容易にすることで、優秀な人材の確保と定着に向けた大きなアドバンテージとなります。
■ 独立性の高い1フロア1テナントと強固なセキュリティ 小規模オフィスでありながら、フロアを独占できるため、他のテナントを気にせずプライバシーを守った業務が可能です。ALSOKの機械警備とEV不停止機能の組み合わせにより、情報の機密性を重視する企業にとっても、高い安全性が確保された理想的な拠点となります。
近くの物件紹介
中央区のエリア
近くの駅
| 取扱態様 | 仲介 |
|---|---|
| 取扱会社 | 株式会社アドマイアー 東京都中央区日本橋3-2-3ユニバース第1ビル2F TEL. 03-5204-1031 宅地建物取引業免許 東京都知事(3)第94663号 マンション管理業免許 国土交通大臣(2)第034224号 賃貸住宅管理業免許 国土交通大臣(01)第005938号 |




























